
Access & Power Integration
Altronix/AMAG M4000 Kits
T2AGK3F8 8-Door Kit with Fused Outputs
Installation Guide
T2AGK3F8 8-Door Kit with Fused Outputs
Models Include:
T2AGK3F8
8-Door Kit with Fused Outputs The fully assembled kit includes:
- Trove2 enclosure with TAG2 Altronix/AMAG backplane
- One (1) eFlow6NB – Power Supply/Charger
- One (1) ACM8 – Fused Access Power Controller
- One (1) VR6 – Voltage Regulator
- One (1) PDS8 – Dual Input Fused Power Distribution Module
T2AGK7F12
12-Door Kit with Fused Outputs The fully assembled kit includes:
- Trove2 enclosure with TAG2 Altronix/AMAG backplane
- One (1) eFlow104NB – Power Supply/Charger
- One (1) ACM8 – Fused Access Power Controller
- One (1) ACM4 – Fused Access Power Controller
- One (1) VR6 – Voltage Regulator
- One (1) PDS8 – Dual Input Fused Power Distribution Module
T2AGK75F12
12-Door Kit with Fused Outputs The fully assembled kit includes:
- Trove2 enclosure with TAG2 Altronix/AMAG backplane
- One (1) eFlow104NB – Power Supply/Charger
- One (1) eFlow102NB – Power Supply/Charger
- One (1) ACM8 – Fused Access Power Controller
- One (1) ACM4 – Fused Access Power Controller
- One (1) PD4UL – Fused Power Distribution Module
All components of this Trove kit are UL Listed as sub-assemblies.
Please refer to the included corresponding Sub-Assembly Installation Guides for further information.
All registered trademarks are the property of their respective owners.
Rev. TAGK_042319
Installing Company: _________________________ Service Rep. Name: __________________________________________
Address: __________________________________ Phone #: _________________________
Overview
Altronix Trove AMAG kits are pre-assembled and consist of Trove enclosures/backplanes with factory-installed Altronix power supply/chargers and sub-assemblies. Kits accommodate up to three (3) AMAG M4000 modules for up to twelve (12) doors in a single enclosure.
Configuration Chart

Installation Instructions
Wiring methods shall be in accordance with the National Electrical Code/NFPA 70/ANSI, and with all local codes and authorities having jurisdiction. The product is intended for indoor use only.
- Remove the backplane from the enclosure. Do not discard hardware.
- Mark and predrill holes in the wall to line up with the top three keyholes in the enclosure. Install three upper fasteners and screws in the wall with the screw heads protruding. Place the enclosure’s upper keyholes over the three upper screws, level, and secure. Mark the position of the lower three holes. Remove the enclosure. Drill the lower holes and install the three fasteners. Place the enclosure’s upper keyholes over the three upper screws. Install the three lower screws and make sure to tighten all screws.
- Mount included UL Listed tamper switch (Altronix Model TS112 or equivalent) in the desired location, opposite hinge. Slide the tamper switch bracket onto the edge of the enclosure approximately 2” from the right side (Fig. 1, pg. 2). Connect the tamper switch wiring to the Access Control Panel input or the appropriate UL Listed reporting device. To activate the alarm signal open the door of the enclosure.
- Mount AMAG M4000 modules to TAG2 backplane, refer to pages 3-5.
- Refer to the eFlow Power Supply/Charger Installation Guide for eFlow6NB, eFlow102NB, eFlow104NB, and corresponding Sub-Assembly Installation Guides for the following models: ACM8, ACM4, PD4UL, PDS8, and VR6 for further installation instructions.
Hardware
| Nylon Spacer | 5/16” Pan Head Screw | Lock Nut |

T2AGK3F8: Configuration of AMAG M4000 Modules:
- Align the AMAG M4000 modules on the backplane to match the boards’ mounting holes with the corresponding poems.
- Fasten spacers (provided) onto metal pets (Fig. 2a, pg. 3).
- Mount AMAG M4000 modules to spacers utilizing pan head screws (provided) (Fig. 2a, pg. 3).
- Fasten the TAG2 backplane to the Trove2 enclosure utilizing the hardware (provided).

T2AGK7F12: Configuration of AMAG M4000 Modules:
- Align the AMAG M4000 modules on the backplane to match the boards’ mounting holes with the corresponding poems.
- Fasten spacers (provided) onto metal poems (Fig. 3a, pg. 4).
- Mount AMAG M4000 modules to spacers utilizing pan head screws (provided) (Fig. 3a, pg. 4).
- Fasten the TAG2 backplane to the Trove2 enclosure utilizing the hardware (provided).

T2AGK75F12: Configuration of AMAG M4000 Modules:
- Align the AMAG M4000 modules on the backplane to match the boards’ mounting holes with the corresponding poems.
- Fasten spacers (provided) onto metal pets (Fig. 4a, pg. 5).
- Mount AMAG M4000 modules to spacers utilizing pan head screws (provided) (Fig. 4a, pg. 5).
- Fasten the TAG2 backplane to the Trove2 enclosure utilizing hardware (provided).

eFlow Power Supply/Chargers can be Controlled and Monitored while Reporting Power/Diagnostics from Anywhere over the Network…

LINQ2 – Network Communication Module
LINQ2 provides remote IP access to real-time data from eFlow power supply/chargers to help keep systems up and running at optimal levels. It facilitates fast and easy installation and set-up, minimizes system downtime, and eliminates unnecessary service calls, which helps reduce the Total Cost of Ownership (TCO) – as well as creates a new source of Recurring Monthly Revenue (RMR).
Features
- UL is Listed in the U.S. and Canada.
- Local or remote control of up to (2) two Altronix eFlow power output(s) via LAN and/or WAN.
- Monitor real-time diagnostics: DC output voltage, output current, AC & battery status/service, input trigger state change, output state change and unit temperature.
- Access control and user management: Restrict read/write, Restrict users to specific resources
- Two (2) integral network controlled Form “C” Relays.
- Three (3) programmable input triggers: Control relays and power supplies via external hardware sources.
- Email and Windows Dashboard notifications
- The event log tracks history.
- Secure Socket Layer (SSL).
- Programmable via USB or web browser – includes operating software and 6 ft. USB cable.
LINQ2 Mounts Inside any Trove Enclosure

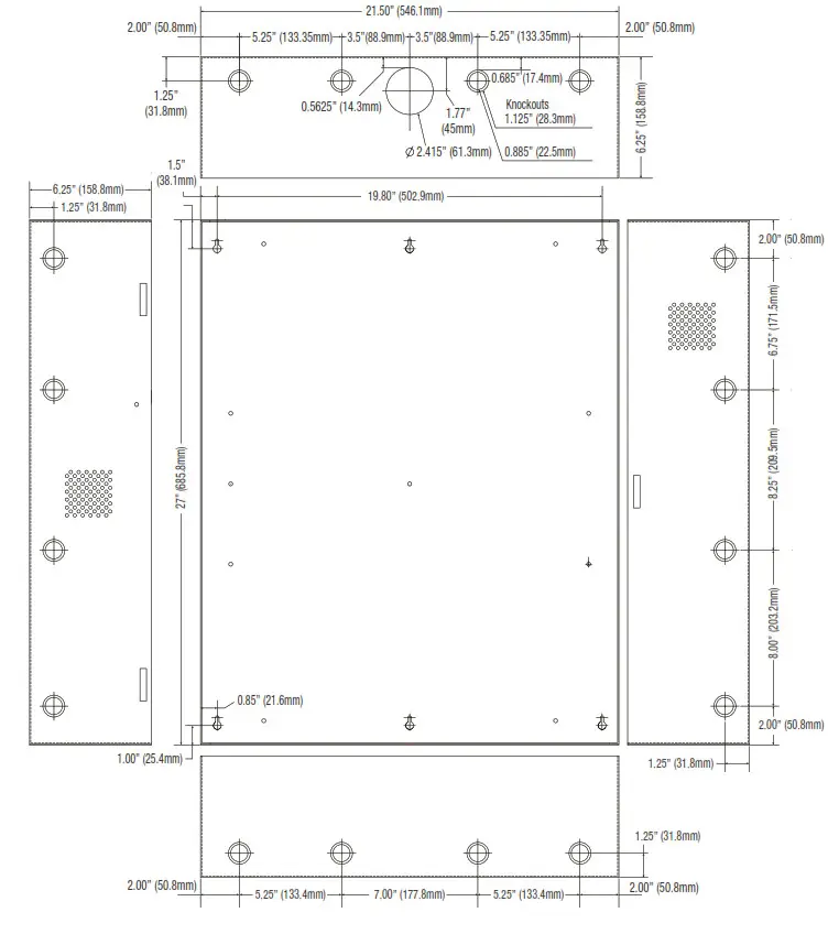
Enclosure Dimensions (H x W x D approximate):
27.25” x 21.5” x 6.5” (692.15mm x 546.1mm x 165.1mm)

Altronix is not responsible for any typographical errors.
140 58th Street, Brooklyn, New York 11220 USA | phone: 718-567-8181 | fax: 718-567-9056
web site: www.altronix.com
e-mail: [email protected]
Lifetime Warranty
IITrove AMAG M4000 Kits I17U
Trove AMAG M4000 Kits Installation Guide



















