Altronix T2PXK7F8 8 Door Kit with Fused Outputs

T2PXK7F8
8 Door Kit with Fused Outputs Fully assembled kit includes:
- Trove2 enclosure with TPX2 Altronix/Paxton backplane
- One (1) eFlow104NB – Power Supply/Charger
- One (1) ACM8 – Fused Access Power Controller
- One (1) VR6 – Voltage Regulator
- One (1) PDS8 – Dual Input Fused Power Distribution Module
T2PXK7F8D
8 Door Kit with PTC Outputs Fully assembled kit includes:
- Trove2 enclosure with TPX2 Altronix/Paxton backplane
- One (1) eFlow104NB – Power Supply/Charger
- One (1) ACM8CB – PTC Access Power Controller
- One (1) VR6 – Voltage Regulator
- One (1) PDS8CB – Dual Input PTC Power Distribution Module
All components of these Trove kits are UL Listed as sub-assemblies. Please refer to the included corresponding Sub-Assembly Installation Guides for further information.
Overview
Altronix Trove Paxton kits are pre-assembled and consist of a Trove2PX2 enclosure/backplane with factory-installed Altronix power supply/charger and sub-assemblies. They also accommodate up to eight (8) Paxton Net2 Plus modules for up to eight (8) doors in a single enclosure.
Configuration Chart
|
Altronix Model Number | 120VAC 60Hz Input Current (A) | Power Supply Board Input Fuse Rating | Power Supply Board Battery Fuse Rating |
Maximum Supply Current for Main and Aux. Outputs on Power Supply board and ACM8(CB) Access Power Controller’s outputs | Nominal DC Output Voltage | Class 2 Rated Power- Limited Outputs | Fail-Safe/Fail-Secure or Dry Form “C” Outputs | Additional Fuse or PTC Protected Outputs | ACM8(CB) Board Input Fuse Rating | ACM8 Board Output Fuse Rating | ACM8CB Board Output PTC Rating | PDS8 Board Input Fuse Rating | PDS8 Board Output Fuse Rating | PDS8CB Board Input PTC Rating | PDS8CB Board Output PTC Rating | |
| [DC] | [Aux] | |||||||||||||||
| Output Range (VDC) | Output Range (VDC) | |||||||||||||||
| T2PXK7F8 | 4.5 | 6.3A/ 250V | 15A/ 32V | 24VDC @ 9.7A | 20.17- 26.4 | 20.28- 26.4 | – | 8 | 8 | 10A/ 250V | 2.5A/ 250V | – | 10A/ 32V | 3A/ 32V | – | – |
| T2PXK7F8D | 8 | 8 | 10A/ 250V | – | 2.5A | – | – | 9A | 2.5A | |||||||
Installation Instructions
Wiring methods shall be in accordance with the National Electrical Code/NFPA 70/ANSI, and with all local codes and authorities having jurisdiction. Product is intended for indoor use only.
- Remove the backplane from the enclosure. Do not discard hardware.
- Mark and predrill holes in the wall to line up with the top three keyholes in the enclosure. Install three upper fasteners and screws in the wall with the screw heads protruding. Place the enclosure’s upper keyholes over the three upper screws; level and secure. Mark the position of the lower three holes. Remove the enclosure. Drill the lower holes and install the three fasteners. Place the enclosure’s upper keyholes over the three upper screws. Install the three lower screws and make sure to tighten all screws.
- Mount included UL Listed tamper switch (Altronix Model TS112 or equivalent) in desired location, opposite hinge. Slide the tamper switch bracket onto the edge of the enclosure, approximately 2” from the right side (Fig. 1, pg. 2).

Connect tamper switch wiring to the Access Control Panel input or the appropriate UL Listed reporting device. To activate alarm signal open the door of the enclosure. - Mount Paxton Net2 Plus modules to TPX2 backplane, refer to page 3.
- Refer to the eFlow Power Supply/Charger Installation Guide for eFlow104NB and corresponding Sub-Assembly Installation Guides for the following models: ACM8(CB), PDS8(CB) and VR6 for further installation instructions.
Hardware
![]()
Configuration of Paxton Net2 Plus Modules
- Align the Paxton Net2 Plus modules on the backplane to match the modules’ mounting holes with the corresponding pems.
- Fasten spacers (provided) onto metal pems (Fig. 2a, pg. 3).
- Mount Paxton Net2 Plus modules to spacers utilizing pan head screws (provided) (Fig. 2a, pg. 3).

Note: Paxton Net2 Plus modules have one (1) RJ45 jack and one (1) switch each.
Please make sure that they are mounted correctly, as shown in Fig. 2 below.
- Fasten TPX2 backplane to Trove2 enclosure utilizing hardware (provided).
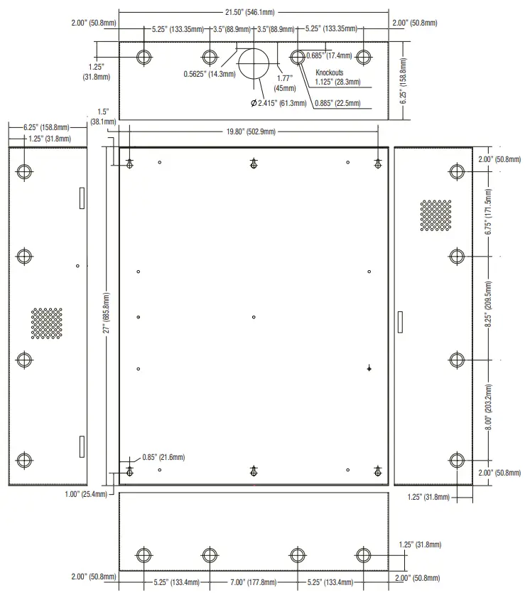
Enclosure Dimensions
27.25” x 21.5” x 6.5” (692.15mm x 546.1mm x 165.1mm)

Altronix is not responsible for any typographical errors.
140 58th Street, Brooklyn, New York 11220 USA | phone: 718-567-8181 | fax: 718-567-9056
web site: www.altronix.com | e-mail: [email protected] | Lifetime Warranty IITrove PX Kits























