
Access & Power Integration
Altronix/CDVI Kits
T1CVK3F4 4-Door Kit with Fused Outputs
Installation Guide
T1CVK3F4 4 Door Kit with Fused Outputs
Models Include:
T1CVK3F4
4 Door Kit with Fused Outputs
The fully assembled kit includes:
- Trove1 enclosure with TC1 Altronix/CDVI backplane
- One (1) eFlow6NB – Power Supply/Charger
- One (1) ACM4 – Fused Access Power Controller
T2CVK7F10
10 Door Kit with Fused Outputs
The fully assembled kit includes:
- Trove2 enclosure with TCV2 Altronix/CDVI backplane
- One (1) eFlow104NB – Power Supply/Charger
- One (1) ACM8 – Fused Access Control Module
- One (1) ACM4 – Fused Access Control Module
- One (1) PD8UL – Fused Power Distribution Module
T2CVK33F10
10 Door Kit with PTC Outputs
The fully assembled kit includes:
- Trove2 enclosure with TCV2 Altronix/CDVI backplane
- Two (2) eFlow6NB – Power Supply/Chargers
- Two (2) MOM5 – PTC Power Distribution Modules with Fire Alarm Interface
T2CVK33F10Q
10 Door Kit with PTC Outputs
The fully assembled kit includes:
- Trove2 enclosure with TCV2 Altronix/CDVI backplane
- One (1) LINQ2 – Network Communication Module
- Two (2) eFlow6NB – Power Supply/Chargers
- Two (2) MOM5 – PTC Power Distribution Modules with Fire Alarm Interface
T3CVK77F20
20 Door Kit with Fused Outputs
The fully assembled kit includes:
- Trove3 enclosure with TCV3 Altronix/CDVI backplane
- Two (2) eFlow104NB – Power Supply/Chargers
- Two (2) ACM8 – Fused Access Control Modules
- One (1) ACM4 – Fused Access Control Module
- One (1) PD8UL – Fused Power Distribution Module
- One (1) RSB2 – Rocker Switch Bracket with Two (2) Rocker Switches (Not evaluated by UL
All components of this Trove kit are UL Listed as sub-assemblies.
Please refer to the included corresponding Sub-Assembly Installation Guides for further information.
All registered trademarks are the property of their respective owners.
Rev. TCVK_042619
Installing Company: _________________________ Service Rep. Name: __________________________________________
Address: ________________________________________ Phone #: _________________________
Overview
Altronix Trove CDVI kits are pre-assembled and consist of Trove enclosures/backplanes with factory-installed Altronix power supply/chargers and sub-assemblies. These kits also accommodate various combinations of CDVI Atrium A22K/A22NB/ADH10 boards for up to twenty (20) doors in a single enclosure.
Configuration Chart

Installation Instructions
Wiring methods shall be in accordance with the National Electrical Code/NFPA 70/ANSI, and with all local codes and authorities having jurisdiction. The product is intended for indoor use only.
- Remove the backplane from the enclosure. Do not discard hardware. If your application requires a raised backplane, re-mount it using metal spacers and screws (provided).
- Mark and predrill holes in the wall to line up with the top three keyholes in the enclosure. Install two/three upper fasteners and screws in the wall with the screw heads protruding. Place the enclosure’s upper keyholes over the two/three upper screws; level and secure. Mark the position of the lower two/three holes. Remove the enclosure. Drill the lower holes and install the fasteners. Place the enclosure’s upper keyholes over the upper screws. Install the lower screws and make sure to tighten all screws.
- Mount included UL Listed tamper switch(es) (Altronix Model TS112 or equivalent) in the desired location, opposite hinge. Slide the tamper switch bracket onto the edge of the enclosure approximately 2” from the right side (Fig. 1, pg. 2). Connect the tamper switch wiring to the Access Control Panel input or the appropriate UL Listed reporting device. To activate the alarm signal open the door of the enclosure.
- Mount CDVI A22K/A22NB/ADH10 boards to the backplane, refer to pages 3-6.
- Refer to the eFlow Power Supply/Charger Installation Guide (eFlow6NB, eFlow102NB, eFlow104NB) and corresponding Sub-Assembly Installation Guide (LINQ2, ACM4, ACM8, PD8UL, MOM5) for further installation instructions.

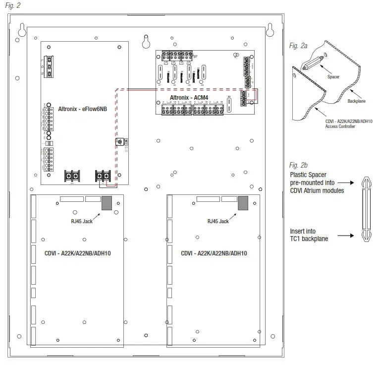
T1CVK3F4: Configuration of CDVI A22K/A22NB/ADH10 Boards
- Fasten spacers (supplied with A22K/A22NB/ADH10) to CDVI A22K/A22NB/ADH10 board (Fig. 2b, pg. 3).
- Mount CDVI A22K/A22NB/ADH10 boards into the correct positions (Fig. 2, pg. 3) by positioning spacers over appropriate holes on the backplane and depressing down on board to secure the spacer to the backplane (Fig. 2a, 2b, pg. 3).
Note: CDVI A22K/A22NB/ADH10 boards have one (1) RJ45 jack each.
Please make sure that they are mounted correctly, as shown in Fig. 2 below. - Fasten the backplane to the Trove2 enclosure utilizing pan head screws (provided).

T2CVK7F10: Configuration of CDVI A22K/A22NB/ADH10 Boards
- Fasten spacers (supplied with A22K/A22NB/ADH10) to CDVI A22K/A22NB/ADH10 board (Fig. 3b, pg. 4).
- Mount CDVI A22K/A22NB/ADH10 boards into the correct positions (Fig. 3, pg. 4) by positioning spacers over appropriate holes on the backplane and depressing down on board to secure the spacer to the backplane (Fig. 3a, 3b, pg. 4).
Note: CDVI A22K/A22NB/ADH10 boards have one (1) RJ45 jack each.
Please make sure that they are mounted correctly, as shown in Fig. 3 below. - Fasten the backplane to the Trove2 enclosure utilizing pan head screws (provided).

T2CVK33F10 and T2CVK33F10Q: Configuration of CDVI A22K/A22NB/ADH10 Boards
- Fasten spacers (supplied with A22K/A22NB/ADH10) to CDVI A22K/A22NB/ADH10 board (Fig. 4b, pg. 5).
- Mount CDVI A22K/A22NB/ADH10 boards into the correct positions (Fig. 4, pg. 5) by positioning spacers over appropriate holes on the backplane and depressing down on board to secure the spacer to the backplane (Fig. 4a, 4b, pg. 5).
Note: CDVI A22K/A22NB/ADH10 boards have one (1) RJ45 jack each.
Please make sure that they are mounted correctly, as shown in Fig. 4 below. - Fasten the backplane to the Trove2 enclosure utilizing pan head screws (provided).

T3CVK77F20: Configuration of CDVI A22K/A22NB/ADH10 Boards
- Fasten spacers (supplied with A22K/A22NB/ADH10) to CDVI A22K/A22NB/ADH10 board (Fig. 5b, pg. 6).
- Mount CDVI A22K/A22NB/ADH10 boards into the correct positions (Fig. 5, pg. 6) by positioning spacers over appropriate holes
on the backplane and depressing down on board to secure the spacer to the backplane (Fig. 5a, 5b, pg. 6).
Note: CDVI A22K/A22NB/ADH10 boards have one (1) RJ45 jack each.
Please make sure that they are mounted correctly, as shown in Fig. 5 below. - Fasten the backplane to the Trove3 enclosure utilizing pan head screws (provided).

eFlow Power Supply/Chargers can be Controlled and Monitored while Reporting Power/Diagnostics from Anywhere over the Network…

LINQ2 – Network Communication Module
LINQ2 provides remote IP access to real-time data from eFlow power supply/chargers to help keep systems up and running at optimal levels. It facilitates fast and easy installation and set-up, minimizes system downtime, and eliminates unnecessary service calls, which helps reduce the Total Cost of Ownership (TCO) – as well as creates a new source of Recurring Monthly Revenue (RMR).
Features
- UL is Listed in the U.S. and Canada.
- Local or remote control of up to (2) two Altronix eFlow power output(s) via LAN and/or WAN.
- Monitor real-time diagnostics: DC output voltage, output current, AC & battery status/service, input trigger state change, output state change, and unit temperature.
- Access control and user management: Restrict read/write, Restrict users to specific resources
- Two (2) integral network controlled Form “C” Relays.
- Three (3) programmable input triggers: Control relays and power supplies via external hardware sources.
- Email and Windows Dashboard notifications
- The event log tracks history.
- Secure Socket Layer (SSL).
- Programmable via USB or web browser – includes operating software and 6 ft. USB cable.
LINQ2 Mounts Inside any Trove Enclosure

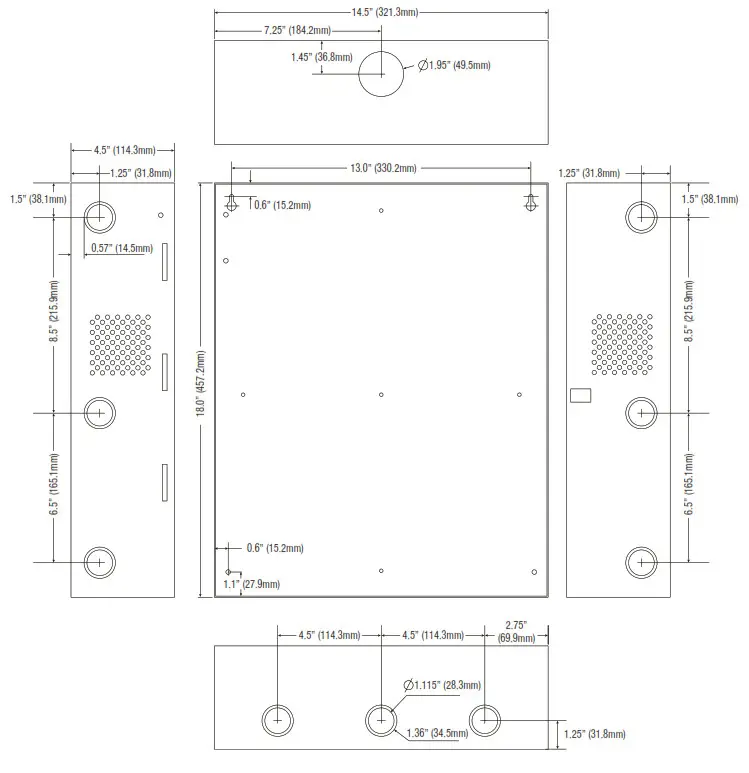
T1CVK3F4 (Trove1) Enclosure Dimensions (H x W x D approximate):
18” x 14.5” x 4.625” (457mm x 368mm x 118mm)

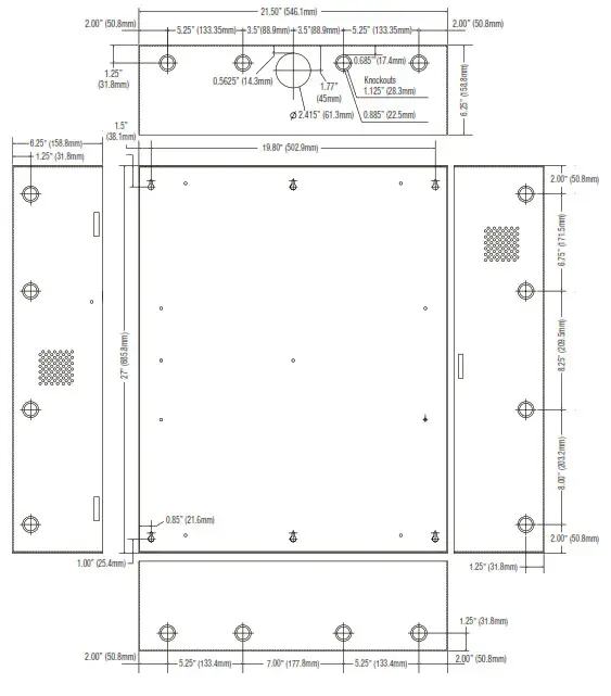
T2CVK7F10 and T2CVK33F10 (Trove2) Enclosure Dimensions (H x W x D approximate):
27.25” x 21.5” x 6.5” (692.2mm x 552.5mm x 165.1mm)

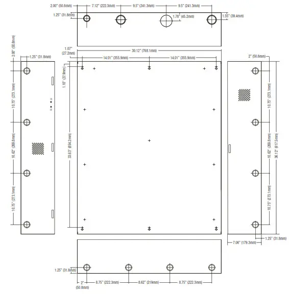
T3CVK77F20 (Trove3) Enclosure Dimensions (H x W x D approximate):
36.12” x 30.125” x 7.06” (917.5mm x 768.1mm x 179.3mm)

Altronix is not responsible for any typographical errors.
140 58th Street, Brooklyn, New York 11220 USA | phone: 718-567-8181 | fax: 718-567-9056
web site: www.altronix.com
e-mail: [email protected]
Lifetime Warranty
IITrove CDVI Kits
I27U
Trove CDVI Kits Installation Guide



















