Altronix TROVE Keyscan Kits 8 Door Kit with Fused Outputs Installation Guide
Models Include:
T2KK3F8
8 Door Kit with Fused Outputs
Fully assembled kit includes:
- Trove2 enclosure with TKA2 Altronix/Keyscan backplane
- (1) eFlow6NB – Power Supply/Charger
- (1) ACM8 – Fused Access Power Controller
- (1) T16100 Transformer
T2KK3F8Q
8 Door Kit with Fused Outputs
Fully assembled kit includes:
- Trove2 enclosure with TKA2 Altronix/Keyscan backplane
- (1) eFlow6NB – Power Supply/Charger
- (1) LINQ2 – Network Communications Module
- (1) ACM8 – Fused Access Power Controller
- (1) T16100 Transformer
T2KK3F8D
8 Door Kit with PTC Outputs
Fully assembled kit includes:
- Trove2 enclosure with TKA2 Altronix/Keyscan backplane
- (1) eFlow6NB – Power Supply/Charger
- (1) ACM8CB – PTC Access Power Controller
- (1) T16100 Transformer
T2KK3F8DQ
8 Door Kit with PTC Outputs
Fully assembled kit includes:
- Trove2 enclosure with TKA2 Altronix/Keyscan backplane
- (1) eFlow6NB – Power Supply/Charger
- (1) LINQ2 – Network Communications Module
- (1) ACM8CB – PTC Access Power Controller
- (1) T16100 Transformer
All components of these Trove kits are UL Listed sub-assemblies.
Please refer to the included corresponding Sub-Assembly Installation Guides for further information.
Overview
Altronix Trove Keyscan kits are pre-assembled and consist of Trove2KA2 enclosure/backplane with factory installed Altronix power supply/ charger, transformer, and sub-assemblies. These kits also accommodate various combinations of Keyscan boards for up to eight (8) doors in a single enclosure.
Configuration Chart
| Altronix Model Number | Networkable | 120VAC 60Hz Input Current (A) | Power Supply Board Input Fuse Rating | Power Supply Board Battery Fuse Rating | Nominal DC Output Voltage | Maximum Supply Current for Main and Aux. Outputs on Power Supply board and ACM8/ACM8CB Access Power Controller’s outputs (A) | Fail-Safe/Fail-Secure or Dry Form “C” Outputs | Fail-Safe/Fail-Secure Outputs (auto-resettable) | Current Per ACM8 Output (A) | Current Per ACM8CB Output (A) | ACM8/ACM8CB Board Input Fuse Rating | ACM8 Board Output Fuse Rating | ACM8CB Board Output PTC Rating | |
| [DC] | [Aux] | |||||||||||||
| 24VDC Output Range (V) | 24VDC Output Range (V) | |||||||||||||
| T2KK3F8 | – | 3.5 | 5A/ | 10A/ | 20.19- | 20.19- | 24VDC @ 5.8A | 8 | – | 2.5 | – | 10A/ | 2.5A | – |
| 250V | 32V | 26.4 | 26.4 | 250V | ||||||||||
| T2KK3F8Q | 3.5 | 5A/ | 10A/ | 20.19- | 20.19- | 24VDC @ 5.8A | 8 | – | 2.5 | – | 10A/ | 2.5A | – | |
| 250V | 32V | 26.4 | 26.4 | 250V | ||||||||||
| T2KK3F8D | – | 3.5 | 6.3A/ | 15A/ | 20.17- | 20.28- | 24VDC @ 5.8A | – | 8 | – | 2.0 | 10A/ | – | 2A |
| 250V | 32V | 26.4 | 26.4 | 250V | ||||||||||
| T2KK3F8DQ | 3.5 | 6.3A/ | 15A/ | 20.17- | 20.28- | 24VDC @ 5.8A | – | 8 | – | 2.0 | 10A/ | – | 2A | |
| 250V | 32V | 26.4 | 26.4 | 250V | ||||||||||
Installation Instructions
Wiring methods shall be in accordance with the National Electrical Code/NFPA 70/ANSI and with all local codes and authorities having jurisdiction.
Product is intended for indoor use only.
- Remove backplane from enclosure. Do not discard hardware.
- Mark and predrill holes in the wall to line up with the top three keyholes in the enclosure. Install three upper fasteners and screws in the wall with the screw heads protruding. Place the enclosure’s upper keyholes over the three upper screws, level and secure.
Mark the position of the lower three holes. Remove the enclosure. Drill the lower holes and install the three fasteners.
Place the enclosure’s upper keyholes over the three upper screws. Install the three lower screws and make sure to tighten all screws. - Mount included UL Listed tamper switch (Altronix Model TS112 or equivalent) in desired location, opposite hinge. Slide the tamper switch bracket onto the edge of the enclosure approximately 2” from the right side (Fig. 1, pg. 2).
Connect tamper switch wiring to the Access Control Panel input or the appropriate UL Listed reporting device. To activate alarm signal open the door of the enclosure. - Mount Keyscan boards to backplane, refer to page 3.
- Refer to the eFlow Power Supply/Charger Installation Guide for eFlow6NB, corresponding Sub-Assembly Installation Guide for ACM8(CB) and LINQ2, and T16100 Installation Instructions for T16100 for further installation instructions

Hardware

T2KK3F8(D)(Q): Configuration of Keyscan Boards
- Mount appropriate Keyscan boards into the correct positions (Fig. 2, pg. 2) by postioning spacers over appropriate holes in the backplane and depressing down on board to secure spacer to the backplane (Fig. 2b, pg. 2).
- Fasten backplane to Trove2 enclosure utilizing pan head screws (provided).

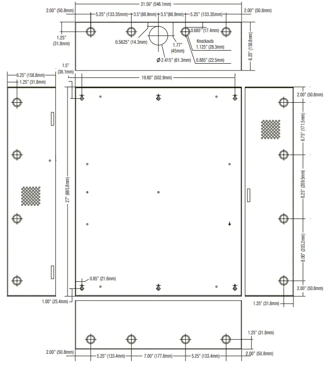
Enclosure Dimensions (H x W x D approximate):
27.25” x 21.5” x 6.5” (692.2mm x 552.5mm x 165.1mm)

Altronix is not responsible for any typographical errors.
140 58th Street, Brooklyn, New York 11220 USA | phone: 718-567-8181 | fax: 718-567-9056
web site: www.altronix.com | e-mail: [email protected] | Lifetime Warranty
IITrove2KA2 Kit Series



















