8 Door Kits with Fused Outputs Wired Kits
Instruction Manual
Models Include:
8 Door Kits with Fused Outputs:
T2M7XK1
Accommodates one (1) Intelligent Dual Reader Controller and three (3) Dual Reader Interface Modules.
T2M7XK2
Accommodates one (1) Intelligent Dual Reader Controller and three (3) Dual Reader Interface Modules.
T2M7XK3
Accommodates up to four (4) Dual Reader Interface Modules.
Each fully assembled kit includes:
- Trove2 enclosure with TM2 Altronix/Mercury backplane
- One (1) eFlow104NB – Power Supply/Charger
- One (1) ACMS8 – Dual Input/Output Fuse Protected Access Power Controller
- One (1) VR6 – Voltage Regulator
- One (1) PDS8 – Dual Input/Output Fuse Protected Power Distribution Module
- One (1) Rocker Switch Bracket with One (1) Rocker Switch (Not evaluated by UL)
- Wire harnesses and finger duct
All components of this Trove kit are UL Listed as sub-assemblies.
Please refer to the included corresponding Sub-Assembly Installation Guides for further information.
All registered trademarks are the property of their respective owners.
Rev. T2M7XK_03152022
Installing Company: _________________________ Service Rep. Name: __________________________________________
Address: _________________________________________________________ Phone #: _________________________
Overview:
Altronix Trove Plus kits are pre-wired, and pre-assembled and consist of a Trove2M2 enclosure/backplane with factory-installed Altronix power supply/ charger and sub-assemblies, wire harnesses, and finger duct.
Configuration Chart:

Hardware and Accessories:
- One(1) tamper switch (Altronix Model TS112 or equivalent).
- Cam lock.
- Battery leads.
Mechanical:
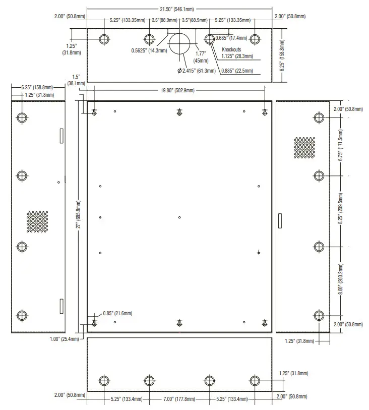
- 16 Gauge enclosure with ample knockouts for convenient access.
- Enclosure Dimensions (H x W x D): 27.25” x 21.75” x 6.5” (692.2mm x 552.5mm x 165.1mm).
Installation Instructions:
Wiring methods shall be in accordance with the National Electrical Code/NFPA 70/ANSI, and with all local codes and authorities having jurisdiction.
The product is intended for indoor use only.
- Remove the backplane from the enclosure. Do not discard hardware.
- Mark and predrill holes in the wall to line up with the top three keyholes in the enclosure. Install three upper fasteners and screws in the wall with the screw heads protruding. Place the enclosure’s upper keyholes over the three upper screws, level, and secure. Mark the position of the lower three holes. Remove the enclosure. Drill the lower holes and install the three fasteners. Place the enclosure’s upper keyholes over the three upper screws. Install the three lower screws and make sure to tighten all screws.
- Mount included UL Listed tamper switch (Altronix Model TS112 or equivalent) in the desired location, opposite hinge. Slide the tamper switch bracket onto the edge of the enclosure approximately 2” from the right side (Fig. 1, pg. 2). Connect the tamper switch wiring to the Access Control Panel input or the appropriate UL Listed reporting device.
To activate the alarm signal open the door of the enclosure. - Refer to the eFlow Power Supply/Charger Installation Guide for eFlow104NB and corresponding Sub-Assembly Installation Guides for PDS8(CB) and ACMS8(CB) for further installation instructions.
- Position Mercury access controller modules over corresponding spacers and depress them onto snap-on spacers (Fig. 2-4, pg. 3-5).
- Connect wire harnesses to Mercury access controller modules (Fig. 2-4, pg. 3-5).
- Mount the backplane to the enclosure with hardware.

T2M7XK1(D) Configuration:
- Position the access controller module over corresponding spacers and depress it onto snap-on spacers (Fig. 2, pg. 3).
- Mount the backplane to the enclosure with hardware.
Access Controller Position Chart for the Following Models:
| LenelS2 / Mercury Access Controller | Pem Mounting |
| LNL-2220 / LP1502 | A |
| LNL-1320 / MR52 | B |

T2M7XK2(D) Configuration:
- Position the access controller module over the corresponding spacers and depress it onto the snap-on spacers (Fig. 3, pg. 4).
- Mount the backplane to the enclosure with hardware.
Access Controller Position Chart for the Following Models:
| LenelS2 / Mercury Access Controller | Pem Mounting |
| LNL-3300 / LP2500 | A |
| LNL-1320 / MR52 | B C D |

T2M7XK3(D) Configuration:
- Position the access controller module over corresponding spacers and depress it onto snap-on spacers (Fig. 4, pg. 5).
- Mount the backplane to the enclosure with hardware.
Access Controller Position Chart for the Following Models:
| LenelS2 / Mercury Access Controller | Pem Mounting |
| LNL-1320 / MR52 | A B C D |

Notes:
Trove2 Enclosure Dimensions (H x W x D approximate):
27.25” x 21.5” x 6.5” (692.2mm x 552.5mm x 165.1mm)

Altronix is not responsible for any typographical errors.
140 58th Street, Brooklyn, New York 11220 USA | phone: 718-567-8181 | fax: 718-567-9056
web site: www.altronix.com | e-mail: [email protected] | Lifetime Warranty
IIT2M7XK Kit Series



















