
Access & Power Integration
T2MK7F8PQ 8 Door Kit with Fused Outputs
Installation Guide![]()
TROVE T2MK7F8PQ 8 Door Kit with Fused Outputs
T2MK7F8PQ
8 Door Kit with Fused Outputs
The fully assembled kit includes:
- Trove2 enclosure with TM2 Altronix/Mercury backplane
- One (1) eFlow104NB – Power Supply/Charger
- One (1) LINQ8PD – Fuse Protected Networked Power Distribution Module
- One (1) VR6 – Voltage Regulator
- One (1) PDS8 – Dual Input Fuse Protected Power Distribution Module
Overview:
Altronix T2MK7F8PQ Trove Mercury kit is pre-assembled and consists of a Trove2M2 enclosure with factory-installed Altronix power supply/charger and sub-assemblies. T2MK7F8PQ kit also accommodates various combinations of Mercury boards for up to eight (8) doors in a single enclosure.
Configuration Chart:
| Altronix Model Number | 120VAC 60Hz Input Current (A) | Power Supply Board Input Fuse Rating | Power Supply Board Battery Fuse Rating | Nominal DC Output Voltage | Maximum Supply Current for Main and Aux. Outputs on Power Supply Board | LINQ8PD Board Input Fuse Rating | LINQ8PD Board Output Fuse Rating | PDS8 Board Input Fuse Rating | PDS8 Board Output Fuse Rating | |
| [DC] | [Aux] | |||||||||
| Output Range (VDC) | Output Range (VDC) | |||||||||
| T2MK7F8PQ | 4.5 | 6.3A/ 250V | 15A/ 32V | 20.1926.4 | 20.1926.4 | 24VDC @ 9.2A | 15A/32V | 3A/32V | 10A/ 32V | 3A/ 32V |
Installation Instructions:
Wiring methods shall be in accordance with the National Electrical Code/NFPA 70/ANSI, and with all local codes and authorities having jurisdiction.
The product is intended for indoor use only.
- Remove the backplane from the enclosure. Do not discard hardware.
- Mark and predrill holes in the wall to line up with the top two/three keyholes in the enclosure. Install two/three upper fasteners and screws in the wall with the screw heads protruding. Place the enclosure’s upper keyholes over the two/three upper screws; level and secure. Mark the position of the lower three holes. Remove the enclosure. Drill the lower holes and install the three fasteners. Place the enclosure’s upper keyholes over the two/three upper screws. Install the three lower screws and make sure to
tighten all screws. - Mount included UL Listed tamper switch (Altronix Model TS112 or equivalent) in the desired location, opposite hinge. Slide the tamper switch bracket onto the edge of the
enclosure approximately 2” from the right side (Fig. 1, pg. 2).
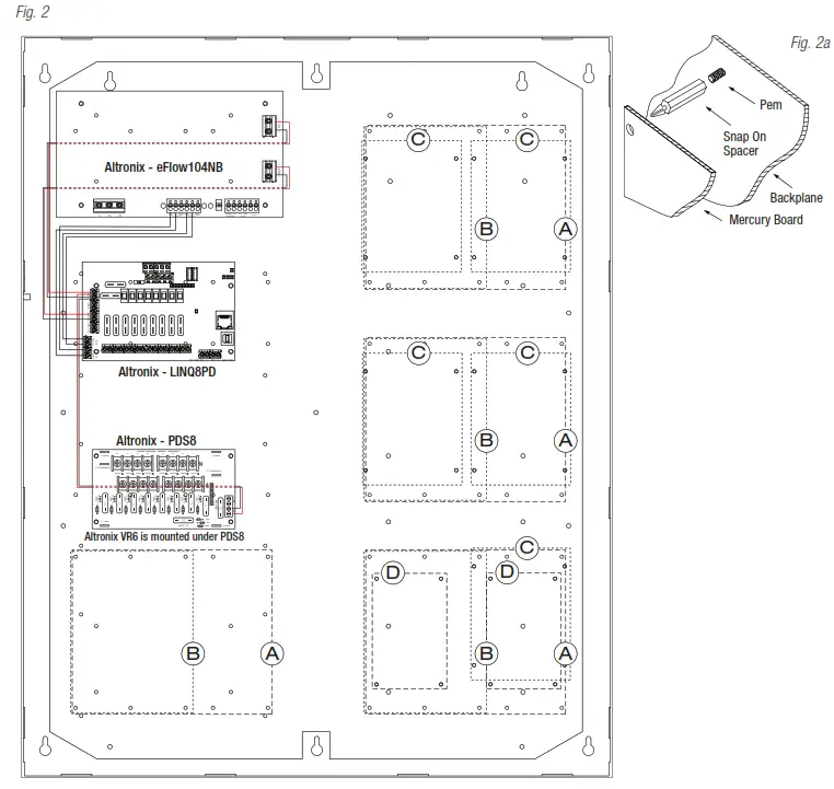
Connect tamper switch wiring to the Access Control Panel input or the appropriate UL Listed reporting device. To activate the alarm signal open the door of the enclosure. - Mount Mercury modules to the backplane(s), refer to page 3.
- Refer to the eFlow Power Supply/Charger Installation Guide for eFlow104NB and corresponding Sub-Assembly Installation Guides for LINQ8PD, PDS8, and VR6 for further installation instructions.

Hardware:
T2MK7F8PQ: Configuration of Mercury Boards:
- Fasten snap-on spacers onto metal pens configuration (A), (B), (C), or (D) of the backplane depending on the access controller (Fig. 2, pg. 3).
- Position the access controller module over corresponding spacers and depress it onto snap-on spacers (Fig. 2a, pg. 3).
- Mount the backplane to the enclosure with hardware.
Access Controller Position Chart for the Following Models:
| Mercury Access Controller | Pem Mounting |
| EP1502, MR52, MR16IN, MR16OUT | A |
| EP2500, MUX8 | B |
| EP1501, MR51e | C |
| MR50 | D |

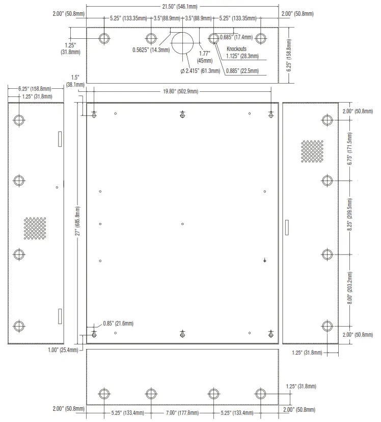
Trove2 Enclosure Dimensions (H x W x D approximate): 27.25” x 21.75” x 6.5” (692.2mm x 552.5mm x 165.1mm)

All registered trademarks are the property of their respective owners.
Rev. 080118
Installing Company:……..
Service Rep. Name:………………..
Address:……….
Phone #:………….
Altronix is not responsible for any typographical errors.
140 58th Street, Brooklyn, New York 11220 USA | phone: 718-567-8181 | fax: 718-567-9056
web site: www.altronix.com | e-mail: [email protected] | Lifetime Warranty
IIT2MK7F8PQ I29U



















