Altronix T3SSK75F28 28 Door Kit with Fused Outputs

Overview
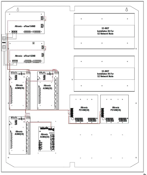
Altronix T3SSK75F28 and T3SSK75F28D Trove S2 kits are pre-assembled and consist of Trove enclosures/backplanes with factory installed Altronix power supply/chargers and sub-assemblies. Both kits accommodate Lenel-S2 (S2 Security Platform) S2-INST Installation Kit for S2 Network Node for up to twenty-eight (28) (T2SSK7F8) doors in a single enclosure.
Configuration Chart
| Altronix Model Number | 120VAC 60Hz Input Current A | Power Supply Board Input Fuse Rating | Power Supply Board Battery Fuse Rating | Nominal DC Output Voltage |
Maximum Supply Current for Main and Aux. Outputs on Power Supply board and ACM8(CB) Access Power Controllers outputs | Fail-Safe/Fail-Secure Outputs | Additional Fused Outputs | ACM8 CB Board Input Fuse Rating | ACM8 Board Output Fuse Rating | ACM8CB Board Output PTC Rating | ACM4 CB Board Input Fuse Rating | ACM4 Board Output Fuse Rating | ACM4CB Board Output PTC Rating | PD16W Board Output Fuse Rating | PD16WCB Board Output PTC Rating | |||
| Power Supply 1 | Power Supply 2 | |||||||||||||||||
| DC | Aux | DC | Aux | |||||||||||||||
| Output Range VDC | Output Range VDC | Output Range VDC | Output Range VDC | |||||||||||||||
| T3SSK75F28 |
7.5 | eFlow104NB 6.3A/ 250V eFlow102NB 5A/ 250V | 15A/ 32V | 20.17- 26.4 | 20.28- 26.4 | 9.7- 13.2 | 10.03- 13.2 | 24VDC 9.4A 12VDC 10A |
28 |
16 | 10A/ 250V | 3.5A/ 250V | 10A/ 32V | 3A/ 32V | 3.5A/ 250V | |||
| T3SSK75F28D | 2.5A | 2.5A | 2.5A | |||||||||||||||
Installation Instructions

Wiring methods shall be in accordance with the National Electrical Code/NFPA 70/ANSI, and with all local codes and authorities having jurisdiction. Product is intended for indoor use only.
- Remove backplane from enclosure.
- Do not discard hardware.
- Mark and predrill holes in the wall to line up with the top two/three keyholes in the enclosure.
- Install two/three upper fasteners and screws in the wall with the screw heads protruding.
- Place the enclosure’s upper keyholes over the two/three upper screws level and secure. Mark the position of the lower three holes.
- Remove the enclosure.
- Drill the lower holes and install the three fasteners.
- Place the enclosure’s upper keyholes over the two/three upper screws.
- Install the three lower screws and make sure to tighten all screws.
- Mount included UL Listed tamper switches Altronix Model TS112 or equivalent) in desired locations, opposite hinge. ;
- Slide the tamper switch bracket onto the edge of the enclosure approximately 2 from the right side.
- Connect tamper switch wiring to the Access Control Panel input or the appropriate UL Listed reporting device.
- To activate alarm signal open the door of the enclosure.
- Mount S2-INST Installation Kit to backplane ACM8(CB) and PD16W(CB) for further installation instructions.
T3SSK75F28(D)
Access Controller Position Chart for the S2-INST Installation Kit
- Align S2-INST mounting holes with pems on TSS3.
- Attach S2-INST to backplane with lock nuts provided.
- Mount backplane to enclosure with hardware.
- Fasten TSS3 backplane to Trove3 enclosure utilizing hardware provided.

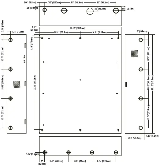
Trove3 Enclosure Dimensions H x W x D approximate
36.12x 30.125 x 7.06 917.5mm x 768.1mm x 179.3mm

Altronix is not responsible for any typographical errors 140 58th Street, Brooklyn, New York 11220 USA
- Phone: 718-567-8181
- Fax: 718-567-9056
- Web site: www.altronix.com
- E-mail: [email protected]
- Lifetime Warranty IITrove3 SS Kits.




















