Altronix TROVE T1PDK7F24 24 Door Kit Installation Guide
Overview
Altronix T1PDK7F24 Trove PDK kit is pre-assembled and consists of Trove1PD1 enclosure/backplane with factory installed Altronix power supply/ charger. T1PDK7F24 kit also accommodates up to three (3) PDK 8DEE modules for up to twenty-four (24) doors in a single enclosure.
Installation Instructions
Wiring methods shall be in accordance with the National Electrical Code/NFPA 70/ANSI, and with all local codes and authorities having jurisdiction.
Product is intended for indoor use only.
- Remove backplane from enclosure. Do not discard hardware.
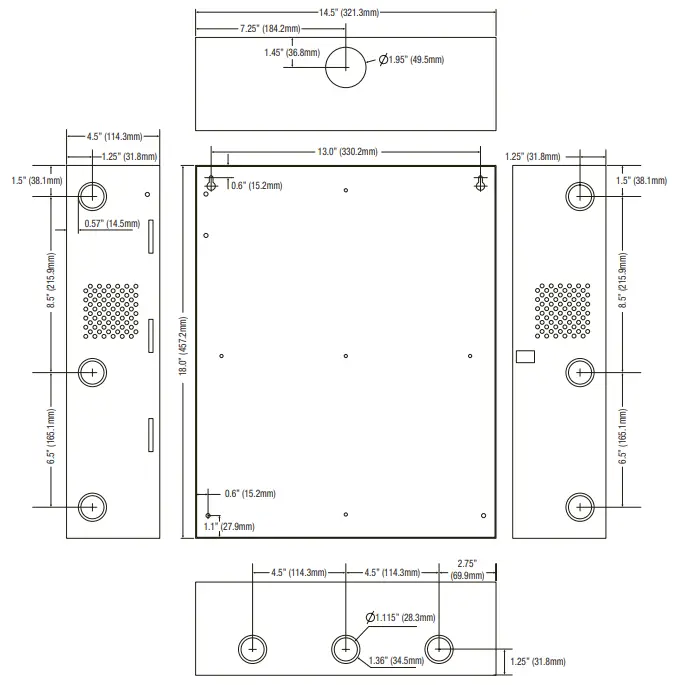
- Mark and predrill holes in the wall to line up with the top three keyholes in the enclosure. Install three upper fasteners and screws in the wall with the screw heads protruding. Place the enclosure’s upper keyholes over the three upper screws, level and secure. Mark the position of the lower three holes. Remove the enclosure. Drill the lower holes and install the three fasteners. Place the enclosure’s upper keyholes over the three upper screws. Install the three lower screws and make sure to tighten all screws.
- Mount included UL Listed tamper switch (Altronix Model TS112 or equivalent) in desired location, opposite hinge. Slide the tamper switch bracket onto the edge of the enclosure, approximately 2” from the right side (Fig. 1, pg. 2).

Connect tamper switch wiring to the Access Control Panel input or the appropriate UL Listed reporting device. To activate alarm signal open the door of the enclosure. - Mount PDK 8DEE modules to TPD1 backplane.
- Refer to the eFlow Power Supply/Charger Installation Guide for further installation instructions.
Hardware
![]()
Configuration of PDK 8DEE Modules
- Fasten spacers (provided) to pems that match the hole pattern for PDK 8DEE modules (Fig. 2, pg. 3).
- Mount boards to spacers utilizing 5/16” pan head screws (provided) (Fig. 2, 2a, pg. 3).
Note: PDK 8DEE modules have one (1) RJ45 jack each.
Please make sure that they are mounted correctly, as shown in Fig. 2 below. - Fasten TPD1 backplane to Trove1 enclosure utilizing hardware (provided).


Trove1 Enclosure Dimensions
(H x W x D approximate):
18” x 14.5” x 4.625” (457mm x 368mm x 118mm)

Altronix is not responsible for any typographical errors.
140 58th Street, Brooklyn, New York 11220 USA | phone: 718-567-8181 | fax: 718-567-9056
web site: www.altronix.com | e-mail: [email protected] | Lifetime Warranty IIT1PDK7F J05U





















