Trove1V1 Trove1 Enclosure
Installation Guide
Access & Power Integration
Trove1V1
- Trove1 enclosure with Altronix/HID VertX® backplane (TV1)
TV1
- Altronix/HID VertX® backplane only
Trove2V2
- Trove2 enclosure with Altronix/HID VertX® backplane (TV2)
TV2
- Altronix/HID VertX® backplane only
TMV2
- Altronix/HID VertX®
Door Backplane. Fits Trove2 and Trove3 enclosures
Trove3V3
- Trove3 enclosure with Altronix/HID VertX® backplane (TV3) TV3
- Altronix/HID VertX® backplane only
Overview
Altronix Trove1V1, Trove2V2, and Trove3V3 accommodate various combinations of HID VertX® boards with or without Altronix power supplies and sub-assemblies for access systems.
Agency Listings
- UL 294 – 6th edition: Line Security I, Destructive Attack I, Endurance IV, Stand-by Power II (Stand-by Power Level I if no battery is supplied).
- This Class B digital apparatus complies with Canadian ICES-003.
- CE European Conformity.
Specifications
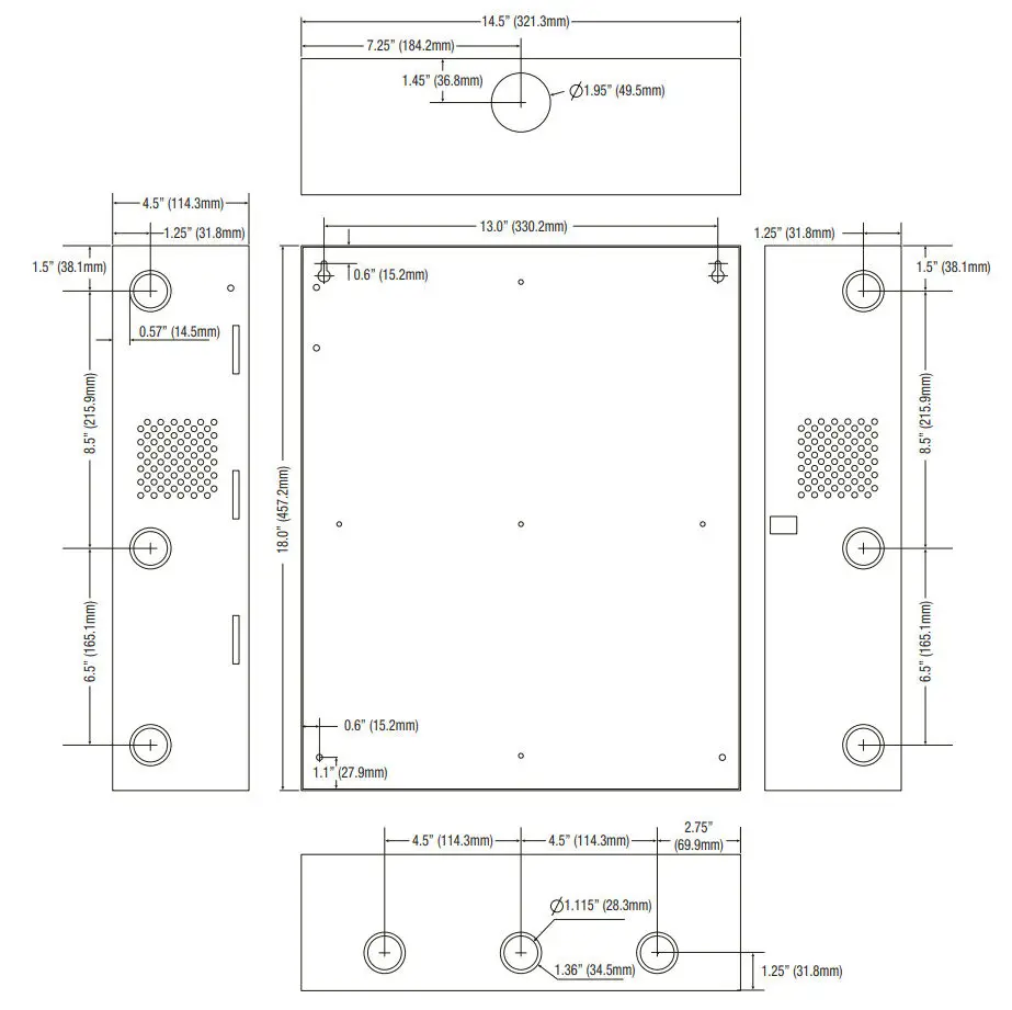
Trove1V1
Trove1 enclosure with TV1 Altronix/HID VertX® backplane.
- 16 Gauge enclosure with ample knockouts for convenient access.
- Includes: tamper switch, cam lock, lock nuts and mounting hardware.
- Enclosure Dimensions (H x W x D): 18” x 14.5” x 4.625” (457mm x 368mm x 118mm).
TV1
Altronix/VertX® backplane.
- 16 Gauge backplane.
- Includes mounting hardware.
- Dimensions (H x W x D):
16.625” x 12.5” x 0.3125” (422.3mm x 317.5mm x 7.9mm).
See TV1 Sub-Assembly Position Chart on Pg. 3 for the list of compatible sub-assemblies.
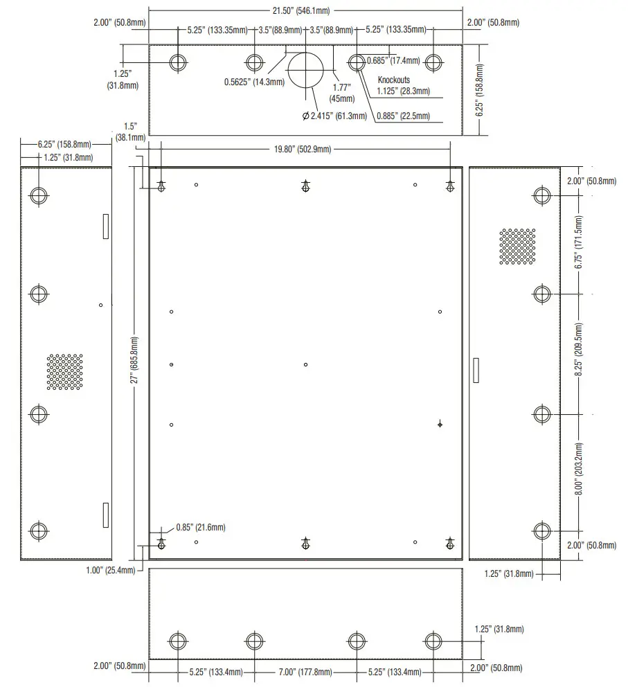
Trove2V2
Trove2 enclosure with TV2 Altronix/VertX® backplane.
- 16 Gauge enclosure with ample knockouts for convenient access.
- Includes: tamper switch, cam lock, lock nuts and
mounting hardware. - Enclosure Dimensions (H x W x D):
27.25” x 21.75” x 6.5” (692.2mm x 552.5mm x 165.1mm).
TV2
Altronix/HID VertX® backplane only.
- 16 Gauge backplane.
- Includes: lock nuts and mounting hardware.
- Dimensions (H x W x D):
25.375” x 19.375” x 0.3125” (644.5mm x 492.1mm x 7.9mm).
See TV2 Sub-Assembly Position Charts on Pgs. 5, 7 for the list of compatible sub-assemblies.
TMV2 – Optional Door Backplane
- Fits Altronix Trove2 and Trove3 enclosure door.
- Dimensions (H x W x D):
23.75” x 18.125” x 0.3125” (603.3mm x 460.4mm x 7.9mm).
See TMV2 Sub-Assembly Position Chart on Pg. 8 for the list of
compatible sub-assemblies.
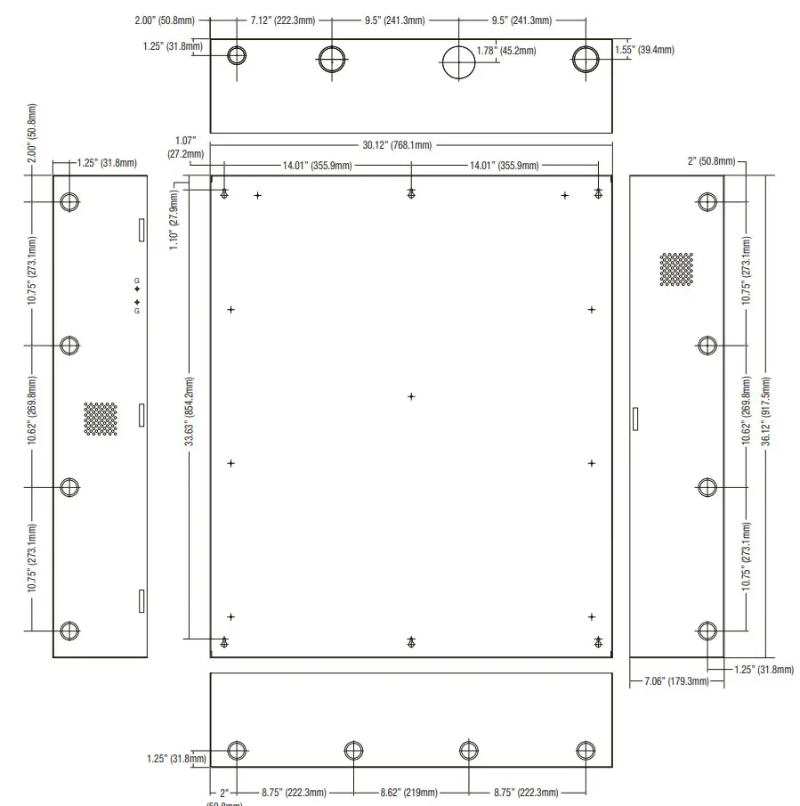
Trove3V3
Trove3 enclosure with TV3 Altronix/VertX® backplane.
- 16 Gauge enclosure with ample knockouts for convenient access.
- Includes two (2) tamper switches, cam lock, lock nuts, and mounting hardware.
- Enclosure Dimensions (H x W x D): 36.12” x 30.125” x 7.06” (917.5mm x 768.1mm x 179.3mm).
TV3
Altronix/HID VertX® backplane only.
- 16 Gauge backplane.
- Includes: lock nuts and mounting hardware.
- Dimensions (H x W x D): 34” x 28” x 0.3125” (863.6mm x 711.2mm x 7.9mm).
See TV3 Sub-Assembly Position Charts on Pgs. 9, 11 for the list of compatible sub-assemblies.
Battery Backup:
- Trove1 enclosure accommodates up to two (2) 12VDC/7AH batteries.
- Trove2 enclosure accommodates up to two (2) 12VDC/12AH batteries.
- Trove3 enclosure accommodates up to four (4) 12VDC/12AH batteries.
Hardware:

Installation Instructions for Trove1, Trove2, Trove3:
Wiring methods shall be in accordance with the National Electrical Code/NFPA 70/ANSI, and with all local codes and authorities having jurisdiction.
The product is intended for indoor use only.
- Remove the backplane from the enclosure. Do not discard hardware.
- Mark and predrill holes in the wall to line up with the top two/three keyholes in the enclosure.
Install two/three upper fasteners and screws in the wall with the screw heads protruding.
Place the enclosure’s upper keyholes over the two/three upper screws, level, and secure.
Mark the position of the lower two/three holes. Remove the enclosure. Drill the lower holes and install the two/three fasteners. Place the enclosure’s upper keyholes over the two/three upper screws. Install the two/three lower screws and make sure to tighten all screws. - Mount included UL Listed tamper switch(es) (Altronix Model TS112 or equivalent) in the desired location, opposite hinge. Slide the tamper switch bracket onto the edge of the enclosure approximately 2” from the right side (Fig. 1, pg. 3). Connect the tamper switch wiring to the Access Control Panel input or the appropriate UL Listed reporting device.
To activate the alarm signal open the door of the enclosure.
TV1 Sub-Assembly Position Chart for the Following Models:
| Altromx Power Supplies/Sub-Assemblies | |||
| Sub-Assembly | C 2 | Input Rating 115VAC, 60Hz, 3.5A | Output Rating 12VDC © 4A or 24VDC © 3A |
| AL400ULYB2 | |||
| AL6000LYB | 115VAC, 60Hz, 3.5A | 12VDC or 24VDC © 6A | |
| AL1012UUS | 115VAC, 60Hz, 2.6A | 12VDC ©10A | |
| AL1024UUS2 | 115VAC, 60Hz, 4.2A | 24VDC 0 10A | |
| eFlow4NB* | 120VAC, 60Hz, 3.5A | 12VDC or 24VDC © 4A | |
| eFlow6NB* | 120VAC, 60Hz, 3.5A | 12VDC or 24VDC @ 6A | |
| eFlow102Nr | 120VAC, 60Hz, 3.5A | 12VDC ©10A | |
| eFlow104Nr | 120VAC, 60Hz, 4.5A | 24VDC ©10A | |
| Altronix Sub-Assemblies | |||
| Sub-Assembly | Pem Mounting | Current Draw | |
| ACM4(CB) | ® | 12VDC 4 0.4A max. or 24VDC © 0.2A max. | |
| MOMS | 12-24VDC 4 55mA max. | ||
| PD4UL(CB) | WA | ||
| PD8UL(CB) | WA | ||
| LINO2* | © | 12-24VDC @ 100mA max. | |
| HID VerteSub-Assemblies | |||
| Sub-Assembly | Pem Mounting_ 0 | Current Draw | |
| V100 | 12VDC @ 60mA | ||
| V200 | 12VDC @5OrnA | ||
| V300 | 12VDC @ 60mA | ||
| 12/24VDC lg. 1000mA | |||
| V1000 | |||
| V2000 | 12/24VDC © 1000mA | ||
Installation Instructions for Sub-Assemblies to TV1:
Altronix Power Supplies/Chargers and/or Sub-Assemblies:
- Fasten spacers (provided) to poems that match the hole pattern for Altronix Power Supply/Chargers or Altronix Sub-Assembly
boards (positions (A) and (B), Fig. 2, pg. 4). Use snap-on nylon spacers for the upper two mounting holes in the board.
Use metal spacers for the bottom mounting holes to provide sufficient grounding for the board. - Affix boards to spacers (Fig. 2, pg. 4) by pressing down the upper mounting holes onto snap-on spacers.
Use provided mounting screws to affix the lower mounting holes. Make sure that boards are locked onto spacers. - For detailed information about installing and connecting Altronix sub-assemblies refer to the individual Installation Instructions and Trove Installation Guide, Rev. 101817. HID VertX® Sub-Assemblies:
- Fasten spacers (provided) onto metal pens configuration (D) of the backplane (Fig. 2, pg. 4).
- Mount boards to spacers utilizing 7/8” pan head screws (provided) (Fig. 2a, pg. 4).
- Fasten backplane to Trove1 enclosure utilizing lock nuts (provided).

TV2 Sub-Assembly Position Chart for the Following Models:
| Altronix Power Supplies/Sub-Assemblies | |||
| Sub-Assembly | Pem Mounting | Input Rating | Output Rating |
| AL4000LXB2 | A | 115VAC, 60Hz, 3.5A | 12VDC @ 4A or 24VDC 0 3A |
| AL6000LXB | 115VAC, 60Hz, 3.5A | 12VDC or 24VDC @ 6A | |
| AL1 01 2ULXB | 115VAC, 60Hz, 2.6A | 12VDC @ 10A | |
| AL1024ULXB2 | 115VAC, 601-1z, 4.2A | 24VDC @ 10A | |
| eFIow4NB* | 120VAC, 60Hz, 3.5A | 12VDC or 24VDC @ 4A | |
| eFlow6NB* | 120VAC, 60Hz, 3.5A | 12VDC or 24VDC @ 6A | |
| eFlow102NB* | 120VAC, 60Hz, 3.5A | 12VDC @ 10A | |
| eFlow104NB* | 120VAC, 601-1z, 4.5A | 24VDC @ 10A | |
| Altronix Sub-Assemblies | |||
| Sub-Assembly | Pem Mounting | Current Draw | |
| ACM4(CB) | (B) | 12VDC @ 0.4A max. or 24VDC 0 0.2A max. | |
| MOMS | 12-24VDC @ 55mA max. | ||
| PD4UL(CB) | N/A | ||
| PD8UL(CB) | N/A | ||
| LINQ2* | (C) | 12-24VDC @ 100mA max. | |
| Altronix Adapters | |||
| Adapter | Pem Mounting | Current Draw | |
| GB1 | (D) | GenetecTM SynergisTM Cloud Link adapter plate | |
*LINQ2 can be installed when utilizing eFlow power supply/charger boards.
Installation Instructions for Altronix Sub-Assemblies to TV2:
- Fasten spacers (provided) to poems that match the hole pattern for Altronix Power Supply/Chargers, Sub-Assembly boards, or adapters. Use snap-on nylon spacers for the upper two mounting holes in the board.
Use metal spacers for the bottom mounting holes to provide sufficient grounding for the board. - Affix boards to spacers (Fig. 3, pg. 6) by pressing down the upper mounting holes onto nylon spacers.
Use provided mounting screws to affix the lower mounting holes. Make sure that boards are locked onto spacers. - For detailed information about installing and connecting Altronix sub-assemblies refer to the individual Installation Instructions and Trove Installation Guide, Rev. 101817.
Note: For GB1 please use spacers supplied with the adapter.
Fig. 3 – Refer to TV2 Sub-Assembly Position Chart, Pg. 5.
Installation Instructions for HID VertX® Sub-Assemblies to TV2:
- Fasten spacers (provided) onto metal pens configuration (A) of the backplane (Fig. 4, pg. 7).
- Mount boards to spacers utilizing 7/8” pan head screws (provided) (Fig. 4a, pg. 7).
- Fasten the backplane to the Trove2 enclosure utilizing lock nuts (provided).
TV2 Sub-Assembly Position Chart for the Following Models:
| HID Vertx® Sub-Assemblies | ||
| Sub-Assembly | Pem Mounting | Current Draw |
| V100 | (A) | 12VDC © 60mA |
| V200 | 12VDC @ 50mA | |
| V300 | 12VDC 12 60mA | |
| V1000 | 12/24VDC @ 1000mA | |
| V2000 | 12/24VDC © 1000mA | |

TMV2: Configuration of HID VertX® and/or Altronix Boards
HID VertX® Access Controllers:
- Fasten spacers (provided) to poems that match the hole pattern for HID VertX® V100, V200, V300, V1000 or V2000 boards (Fig. 5, pg. 8).
- Mount boards to spacers (Fig. 5, pg. 8) utilizing 7/8” pan head screws (provided).
- Fasten the backplane to the Trove2 enclosure door utilizing lock nuts (provided).
Altronix Sub-Assemblies and/or Adapters:
- Fasten nylon / snap-on spacers to poems which match the hole pattern for Altronix Sub-Assemblies (Fig. 5, 5b, pg. 8).
- Mount boards to spacers utilizing pan head screws provided with the product or by depressing board onto the snap-on spacer (Fig. 5, pg. 8).
Note: For GB1 please use spacers supplied with the adapter.
Access Controller Position Chart for the Following Models
| HID VertX® | |
| Access Controller | Pem Mounting |
| V100, V200, V300, V1000 or V2000 | (A) |
| Altronix | |
| Sub-Assembly or Adapter | Pem Mounting |
| ACM4(CB), MOMS, PD4UL(CB), PD8UL(CB), PDS8(CB), VR6, GB1 (Genetec Synergis Cloud Link adapter plate) | (B) |

TV3 Sub-Assembly Position Chart for the Following Models:
| Altronix Power Supplies/Sub-Assemblies | |||
| Sub-Assembly | Pem Mounting | Input Rating | Output Rating |
| AL400UM2 | 115VAC, 60Hz, 3.5A | 12VDC @ 4A or 24VDC © 3A | |
| AL60OULXB | 115VAC, 60Hz, 3.5A | 12VDC or 24VDC @ 6A | |
| ALI 012UUKB | 115VAC, 60Hz, 2.6A | 12VDC @ 10A | |
| ALI 024UUKB2 | 115VAC, 60Hz, 4.2A | 24VDC @ 10A | |
| eFlow4NB* | 120VAC, 60Hz, 3.5A | 12VDC or 24VDC @ 4A | |
| eFlow6NB* | 120VAC, 60Hz, 3.5A | 12VDC or 24VDC @ 6A | |
| eFlow102NB* | 120VAC, 60Hz, 3.5A | 12VDC @ 10A | |
| eFlow104NB* | 120VAC, 60Hz, 4.5A | 24VDC @ 10A | |
| Altronix Sub-Assemblies | ||
| Sub-Assembly | Pem Mounting | Current Draw |
| ACM8(CB) | A | 12VDC @ 0.5A max. or 24VDC CO 0.3A max. |
| ACM4(CB) | B | 12VDC @ 0.4A max. or 24VDC @ 0.2A max. |
| MOM5 | 12-24VDC @ 55mA max. | |
| PD4UL(CB) | N/A | |
| PD8UL(CB) | N/A | |
| LINO? | C | 12-24VDC @ 100mA max. |
| Altronix Adapters | ||
| Adapter | Pem Mounting | Current Draw |
| G B 1 | 0 | GenetecTM Synergism^ Cloud Link adapter plate |
*LINQ2 can be installed when utilizing eFlow power supply/charger boards.
Installation Instructions for Altronix Sub-Assemblies to TV3:
- Fasten spacers (provided) to poems that match the hole pattern for Altronix Power Supply/Chargers, Sub-Assembly boards or adapters.
Use snap-on nylon spacers for the upper two mounting holes in the board.
Use metal spacers for the bottom mounting holes to provide sufficient grounding for the board. - Affix boards to spacers (Fig. 6, pg. 10) by pressing down the upper mounting holes onto nylon spacers.
Use provided mounting screws to affix the lower mounting holes. Make sure that boards are locked onto spacers. - For detailed information about installing and connecting Altronix sub-assemblies refer to the individual Installation Instructions and Trove Installation Guide, Rev. 101817.
Fig. 6 – Refer to TV3 Sub-Assembly Position Chart, Pg. 9.

Installation Instructions for HID VertX® Sub-Assemblies to TV3:
- Fasten spacers (provided) onto metal pens configuration (A) of the backplane (Fig. 7, pg. 11).
- Mount boards to spacers utilizing 7/8” pan head screws (provided) (Fig. 7a, pg. 11).
- Fasten the backplane to the Trove2 enclosure utilizing lock nuts (provided).
TV3 Sub-Assembly Position Chart for the Following Models:
| HID VertX® Sub-Assemblies | ||
| Sub-Assembly | Pem Mounting | Current Draw |
| V100 | 0‹ | 12VDC © 60mA |
| V200 | 12VDC @ 50mA | |
| V300 | 12VDC et) 60mA | |
| V1000 | 12/24VDC @ 1000mA | |
| V2000 | 12/24VDC © 1000mA | |

eFlow Power Supply/Chargers can be Controlled and Monitored while Reporting Power/Diagnostics from Anywhere over the Network…

LINQ2 – Network Communication Module
LINQ2 provides remote IP access to real-time data from eFlow power supply/chargers to help keep systems up and running at optimal levels. It facilitates fast and easy installation and set-up, minimizes system downtime, and eliminates unnecessary service calls, which helps reduce Total Cost of Ownership (TCO) – as well as creates a new source of Recurring Monthly Revenue (RMR).
Features
- UL is Listed in the U.S. and Canada.
- Local or remote control of up to (2) two Altronix eFlow power output(s) via LAN and/or WAN.
- Monitor real-time diagnostics: DC output voltage, output current, AC & battery status/service, input trigger state change, output state change and unit temperature.
- Access control and user management: Restrict read/write, Restrict users to specific resources
- Two (2) integral network controlled Form “C” Relays.
- Three (3) programmable input triggers: Control relays and power supplies via external hardware sources.
- Email and Windows Dashboard notifications
- The event log tracks history.
- Secure Socket Layer (SSL).
- Programmable via USB or web browser – includes operating software and 6 ft. USB cable.
LINQ2 Mounts Inside any Trove Enclosure

Trove1 Enclosure Dimensions (H x W x D approximate): 18” x 14.5” x 4.625” (457mm x 368mm x 118mm)

Trove2 Enclosure Dimensions (H x W x D approximate): 27.25” x 21.75” x 6.5” (692.15mm x 546.1mm x 165.1mm)
Trove3 Enclosure Dimensions (H x W x D approximate): 36.12” x 30.125” x 7.06” (917.5mm x 768.1mm x 179.3mm)
![]()
Altronix is not responsible for any typographical errors.
140 58th Street, Brooklyn, New York 11220 USA | phone: 718-567-8181 | fax: 718-567-9056
web site: www.altronix.com | e-mail: [email protected]
IITrove / HID VertX
J20U





















