Trove2HW2 Trove2 Enclosure with Altronix-Honeywell ProWatch-WinPak Backplane

Trove2HW2
- Trove2 enclosure with Altronix/Honeywell ProWatch/WinPak backplane (THW2)
THW2
- Altronix/Honeywell ProWatch/WinPak backplane only
Trove3HW3
- Trove3 enclosure with Altronix/Honeywell ProWatch/WinPak backplane (THW3)
THW3
- Altronix/Honeywell ProWatch/WinPak backplane only
THWD2
- Honeywell ProWatch/WinPak door backplane for Trove2 and Trove3
Overview
Trove2HW2 and Trove3HW3 accommodate various combinations of Honeywell ProWatch/WinPak boards with or without Altronix power supplies and accessories for access systems.
Agency Listings:
- UL 294 – 6th edition: Line Security I, Destructive Attack I, Endurance IV, Stand-by Power II*. *Stand-by Power Level I if no battery is supplied.
- This Class B digital apparatus complies with Canadian ICES-003.
Cet appareil numérique de la classe B est conforme á la norme NMB-003 du Canada. - CE European Conformity.
Specifications
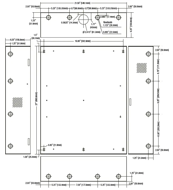
Trove2HW2
Trove2 enclosure with THW2 Altronix/Honeywell backplane.
- Includes: tamper switch, cam lock, mounting hardware.
- 16 Gauge enclosure with ample knockouts for convenient access.
Enclosure Dimensions (H x W x D): 27.25” x 21.75” x 6.5” (692.2mm x 552.5mm x 165.1mm).
Accommodates up to four (4) 12VDC/7AH batteries.
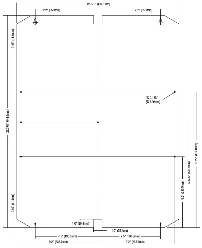
THW2
THW2 Altronix/Honeywell backplane.
- 16 Gauge backplane.
- Includes mounting hardware.
Dimensions (H x W x D): 25.375” x 19.375” x 0.3125” (644.6mm x 492.1mm x 7.9mm).
THW2 accommodates a combination of the following:
Altronix: - Up to four (4) AL400ULXB2, AL600ULXB, AL1012ULXB, AL1024ULXB2, eFlow4NB, eFlow6NB, eFlow102NB, or eFlow104NB.
- Up to four (4) ACM8(CB) or ACM8S(CB).
- Up to three (2) ACM4(CB), MOM5, PD4UL(CB), PD8UL(CB), PDS8(CB), or VR6.
Honeywell:
- Up to six (6) PRO32IC, PRO32R2, PRO32IN, PRO32OUT, PW51KEN, PW6K1IC, PW6K1IN, PW6K1OUT, PW6K1R2 modules.
- One (1) PRO32E1PS or PW6K2E2PS power supply.
- Up to two (2) PW6K1ICE or PW6K1R1E modules.
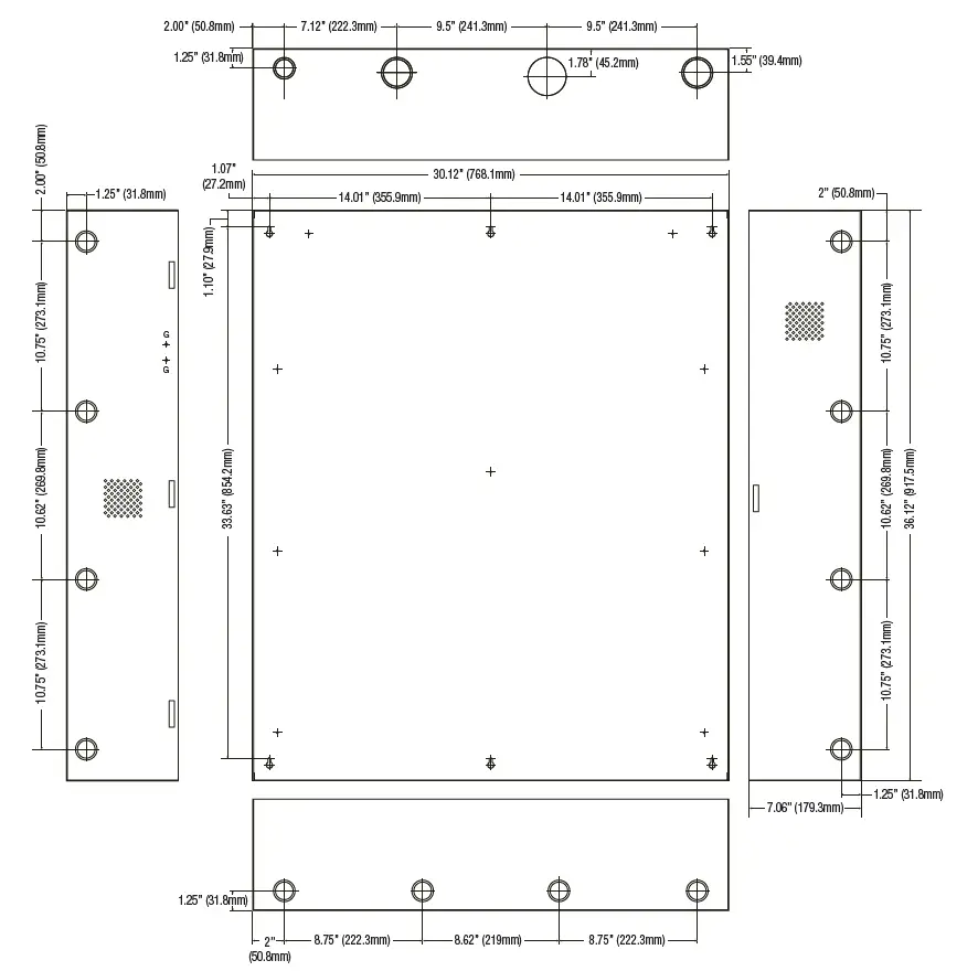
Trove3HW3
Trove3 enclosure with THW3 Altronix/Honeywell backplane.
- Includes: two (2) tamper switches, cam lock, mounting hardware.
- 16 Gauge enclosure with ample knockouts for convenient access.
Enclosure Dimensions (H x W x D): 36.12” x 30.125” x 7.06” (917.5mm x 768.1mm x 179.3mm).
Accommodates up to four (4) 12VDC/12AH batteries.
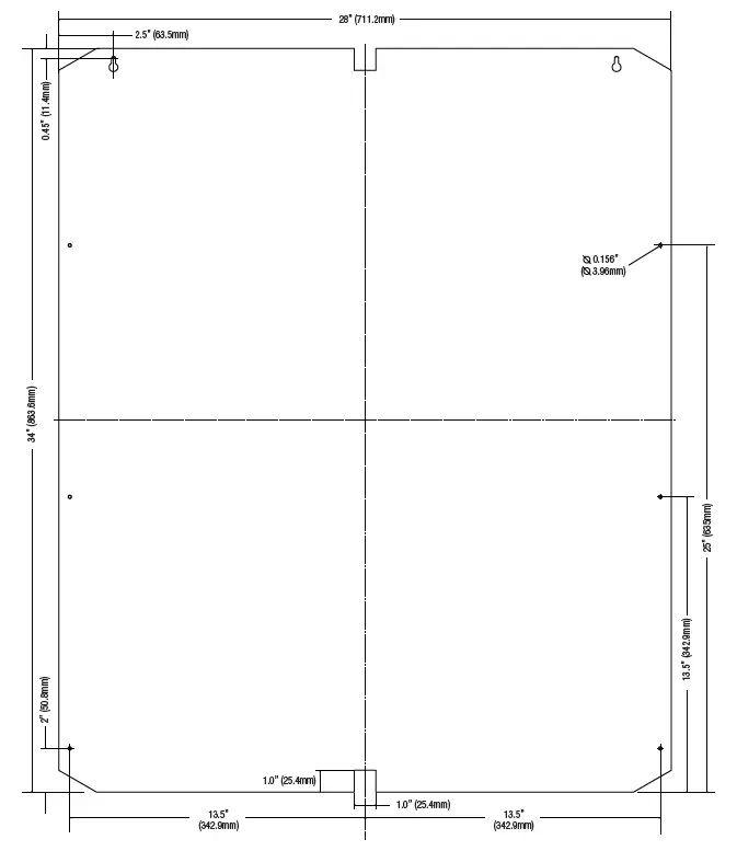
THW3
THW3 Altronix/Honeywell backplane.
- 16 Gauge backplane.
- Includes mounting hardware.
Dimensions (H x W x D): 34” x 28” x 0.3125” (863.6mm x 711.2mm x 7.9mm).
THW3 accommodates a combination of the following:
Altronix:
- Up to four (4) AL400ULXB2, AL600ULXB, AL1012ULXB, AL1024ULXB2, eFlow4NB, eFlow6NB, eFlow102NB, or eFlow104NB.
- Up to four (4) ACM8(CB) or ACM8S(CB).
- Up to six (6) ACM4(CB), MOM5, PD4UL(CB), PD8UL(CB), PDS8(CB), or VR6.
Honeywell:
- Up to nine (9) PRO32IC, PRO32R2, PRO32IN, PRO32OUT, PW51KEN, PW6K1IC, PW6K1IN, PW6K1OUT, PW6K1R2 modules.
- Up to two (2) PRO32E1PS or PW6K2E2PS power supplies.
- Up to two (2) PRO22MX8 modules.
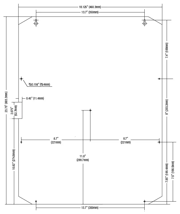
THWD2
Trove2 and Trove3 Honeywell door backplane.
- 16 Gauge backplane.
- Includes mounting hardware.
Dimensions (H x W x D): 23.75” x 18.125” x 0.3125” (603.3mm x 460.3mm x 7.9mm).
THWD2 accommodates a combination of the following: - Up to six (6) PRO32IC, PRO32R2, PRO32IN, PRO32OUT, PW6K1IC, PW6K1R2, PW6K1IN, PW6K1OUT modules.
- One (1) PRO22MX8 module.
Installation
Instructions:
Wiring methods shall be in accordance with the National Electrical Code/NFPA 70/ANSI, and with all local codes and authorities having jurisdiction.
Product is intended for indoor use only.
- Remove backplane from enclosure. Do not discard hardware.
- Mark and predrill holes in the wall to line up with the top three keyholes in the enclosure. Install three upper fasteners and screws in the wall with the screw heads protruding. Place the enclosure’s upper keyholes over the three upper screws; level and secure.
Mark the position of the lower three holes. Remove the enclosure. Drill the lower holes and install the three fasteners. Place the enclosure’s upper keyholes over the three upper screws.
Install the three lower screws and make sure to tighten all screws. - Mount included UL Listed tamper switch(es) (Altronix Model TS112 or equivalent) in desired location, opposite hinge. Slide the tamper switch bracket onto the edge of the enclosure approximately 2” from the right side (Fig. 1, pg. 3). Connect tamper switch wiring to the Access Control Panel input or the appropriate UL Listed reporting device.
To activate alarm signal open the door of the enclosure. - Mount Altronix/Honeywell boards to backplane, refer to pages 4-8.

Installation Instructions for Altronix Power Supplies and Sub-Assemblies to THW2:
- Fasten spacers (provided) into pem configuration (A) or (B) of backplane (Fig. 2, pg. 4).
- Mount boards to spacers utilizing 5/16” pan head screws (provided) (Fig. 2a, pg. 4).
- Mount backplane to enclosure with hardware.
Access Controller Position Chart for the Following Models:

Fig. 2


Installation
Instructions for Honeywell PRO32E1PS or PW6K2E2PS to THW2:
- Install four (4) mounting screws approximately halfway into mounting holes in the power supply’s frame.
- Position the power supply over four (4) keyholes (B) on THW2 so the AC Input terminal marked [CN1] (smaller opening in the frame) is positioned to the left.
- Slide the power supply to the left until secure. Tighten the mounting screws.
Installation Instructions for Honeywell Access Controllers to THW2:
- Fasten spacers (provided) into pem configuration (A) or (C) of backplane (Fig. 3, pg. 5).
- Mount boards to spacers utilizing 5/16” pan head screws (provided) (Fig. 3a, pg. 5).
- Mount backplane to enclosure with hardware.
Honeywell ProWatch/WinPak Power Supply or Access Controller Position Chart for the Following Models:



Instructions for Altronix Power Supplies and Sub-Assemblies to THW3:
- Fasten spacers (provided) into pem configuration (A) or (B) of backplane (Fig. 4, pg. 6).
- Mount boards to spacers utilizing 5/16” pan head screws (provided) (Fig. 4a, pg. 6).
- Mount backplane to enclosure with hardware.
Access Controller Position Chart for the Following Models:



Instructions for Honeywell PRO32E1PS or PW6K2E2PS to THW3:
- Install four (4) mounting screws approximately halfway into mounting holes in the power supply’s frame.
- Position the power supply over four (4) keyholes (B) on THW3 so the AC Input terminal marked [CN1] (smaller opening in the frame) is positioned to the bottom.
- Slide the power supply to the left until secure. Tighten the mounting screws.
Installation Instructions for Honeywell Access Controllers to THW3:
- Fasten spacers (provided) into pem configuration (A) or (C) of backplane (Fig. 5, pg. 7).
- Mount boards to spacers utilizing 5/16” pan head screws (provided) (Fig. 5a, pg. 7).
- Mount backplane to enclosure with hardware.
Honeywell ProWatch/WinPak Power Supply or Access Controller Position Chart for the Following Models:


THWD2: Configuration of Honeywell ProWatch/WinPak Boards:
Honeywell ProWatch/WinPak Access Controllers:
- Fasten spacers (provided) into pem configuration (A) or (B) of backplane (Fig. 6, pg. 8).
- Mount boards to spacers utilizing 5/16” pan head screws (provided) (Fig. 6a, pg. 8).
- Mount backplane to enclosure with hardware.
Honeywell ProWatch/WinPak Access Controller Position Chart for the Following Models:



Flow
Power Supply/Chargers can be Controlled and Monitored while
Reporting Power/Diagnostics from Anywhere over the Network…

LINQ2 – Network Communication Module
LINQ2 provides remote IP access to real-time data from eFlow power supply/chargers to help keep systems up and running at optimal levels. It facilitates fast and easy installation and set-up, minimizes system downtime, and eliminates unnecessary service calls, which helps reduce Total Cost of Ownership (TCO) – as well as creating a new source of Recurring Monthly Revenue (RMR).
Features
- UL Listed in the U.S. and Canada.
- Local or remote control of up to (2) two Altronix eFlow power output(s) via LAN and/or WAN.
- Monitor real time diagnostics: DC output voltage, output current, AC & battery status/service, input trigger state change, output state change and unit temperature.
- Access control and user managment: Restrict read/write, Restrict users to specific resources
- Two (2) integral network controlled Form “C” Relays.
- Three (3) programmable input triggers: Control relays and power supplies via external hardware sources.
- Email and Windows Dashboard notifications
- Event log tracks history.
- Secure Socket Layer (SSL).
- Programmable via USB or web browser – includes operating software and 6 ft. USB cable.
LINQ2 Mounts Inside any Trove Enclosure

THW2 Dimensions (H x W x D):
25.375” x 19.375” x 0.3125” (644.6mm x 492.1mm x 7.9mm)

Trove2 Enclosure Dimensions (H x W x D approximate):
27.25” x 21.75” x 6.5” (692.2mm x 552.5mm x 165.1mm)

THWD2 Dimensions (H x W x D):
23.75” x 18.125” x 0.3125” (603.3mm x 460.3mm x 7.9mm)

THW3 Dimensions (H x W x D):
34” x 28” x 0.3125” (863.6mm x 711.2mm x 7.9mm)

Trove3 Enclosure Dimensions (H x W x D approximate):
36.12” x 30.125” x 7.06” (917.5mm x 768.1mm x 179.3mm)

Altronix is not responsible for any typographical errors.
140 58th Street, Brooklyn, New York 11220 USA | phone: 718-567-8181 | fax: 718-567-9056
web site: www.altronix.com | e-mail: [email protected]
IITroveHW




















