Altronix Trove2BH2 Trove2 Enclosure with Backplane

Overview:
Trove2BH2 accommodates various combinations of Bosch boards with or without Altronix accessories for access control systems.
Agency Listings:
- UL 294 – 6th edition: Line Security I, Destructive Attack I, Endurance IV, Stand-by Power II*.
- Stand-by Power Level I if no battery is supplied.
- This Class B digital apparatus complies with Canadian ICES-003.
- CE European Conformity.
Specifications:
- 16 Gauge backplane and enclosure with ample knockouts for convenient access.
Trove2BH2
Trove2 enclosure with TBH2 Altronix/Bosch backplane
- Includes: tamper switch, cam lock, and mounting hardware.
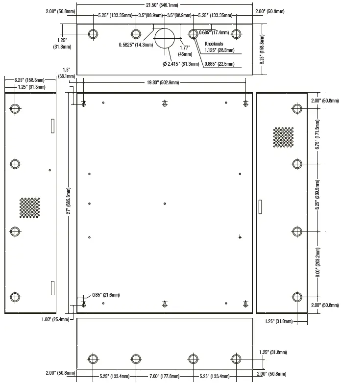
Enclosure Dimensions (H x W x D): 27.25” x 21.75” x 6.5” (692.2mm x 552.5mm x 165.1mm).
TBH2
Altronix/Bosch backplane only
- Includes mounting hardware.
Dimensions (H x W x D): 25.375” x 19.375” x 0.3125” (644.5mm x 482.6mm x 7.9mm).
TBH2 accommodates a combination of the following:
Altronix Modules:
- Two (2) MOM5, PD4UL(CB), PD8UL(CB), PDS8(CB), PD16W(CB), VR6.
Bosch Modules:
- One (1) B520 power supply.
- One (1) D7412GV4, D9412GV4, B8512G, B9512G controller.
- Up to six (6) B299, B308, B426, B450, B901, D125B, D129, D185, D192G, D8128D, D8129, D8130, ICP-SDI-9114
- Up to ten (10) B208, B600, B800, D132A, D8125/MUX
TBHD2
Bosch door backplane only
- Fits Altronix Trove2 enclosure.
Dimensions (H x W x D): 23.75” x 18.125” x 0.3125” (603.3mm x 460.4mm x 7.9mm).
TBHD2 accommodates a combination of the following:
Bosch Modules:
- One (1) D7412GV4, D9412GV4, B8512G, B9512G controller.
- Up to eleven (6) B208, B299, B308, B426, B450, B600, B901, D125B, D129, D132A, D185, D192G, D8125/MUX, D8128D, D8129, D8130, ICP-SDI-9114.
Installation Instructions for Trove2:
- Remove backplane from enclosure prior to mounting (do not discard hardware).
- Mark and predrill holes in the wall to line up with the top keyholes in the enclosure. Install the upper fasteners and screws in the wall with the screw heads protruding. Place the enclosure’s upper keyholes over the screws; level and secure. Mark the position of the lower holes. Remove the enclosure. Drill the lower holes and install the fasteners. Place the enclosure’s upper keyholes over the upper screws. Install the lower screws and make sure to tighten all screws (Enclosure Dimensions, pg. 4).
- Mount included UL Listed tamper switch (Altronix Model TS112 or equivalent) in desired location, opposite hinge. Slide the tamper switch bracket onto the edge of the
enclosure approximately 2” from the right side .
Connect tamper switch wiring to the Access Control Panel input or the appropriate Enclosure UL Listed reporting device. To activate alarm signal open the door of the enclosure. - Mount Altronix/Bosch boards to backplane, refer to pages 3-5.
Installation Instructions for Altronix Sub-Assemblies to TBH2:
- Insert screw (provided) into hole configuration (A) from the backside of backplane .
Screw spacer onto screws, repeat for additional three (3) board mounting holes. - Mount boards to spacers utilizing 5/16” pan head screws (provided) .

Altronix Sub-Assemblies Position Chart:
| Altronix Board | Pem Mounting |
| Altronix PD16W(CB) Sub-Assembly | A |
Installation Instructions for Bosch Boards to TBH2: Mounting Bosch B520 Power Supply:
- Fasten spacers (provided) into hole configuration (A) of backplane .

- Mount boards to spacers utilizing 5/16” pan head screws (provided) .

Mounting Bosch B8512G/B9512G IP Control Panels:
- Fasten lock nuts onto top two (2) pems, leaving enough space to accommodate B8512G/B9512G.
- Slide top mounting holes of B8512G/B9512G over pems of backplane configuration (B).

- Fasten 5/16” pan head screw (provided) through mounting hole of B8512G/B9512G.
Mounting Bosch Modules:
- Utilize mounting bracket to mount Bosch modules to the backplane configurations (C).

Bosch Board Position Chart:
| Bosch Board(s) | Mounting | |
| Power Supply | B520 | A |
| Controllers | D7412GV4, D9412GV4, B8512G, B9512G | B |
| Access Control* | B901 | C |
| Expansion Modules* | B299, B600, D8128D, D8125/MUX, D8129 | |
| Interface Cards* | D125B, D129, D132A, D185, D192G, D8130 | |
| SDI/2 Devices* | B208, B308, B426, B450, ICP-SDI-9114 | |
- These boards have the same keyhole mounting bracket .

Position them according to your specific design.
Installation Instructions for Bosch Boards to TBHD2: Mounting Bosch B8512G/B9512G IP Control Panels:
- Fasten lock nuts onto top two (2) pems, leaving enough space to accommodate B8512G/B9512G.
- Slide top mounting holes of B8512G/B9512G over pems of backplane configuration (B).

- Fasten 5/16” pan head screw (provided) through mounting hole of B8512G/B9512G.
Mounting Bosch Modules:
- Utilize mounting bracket to mount Bosch modules to the backplane configurations (B) .

Bosch Board Position Chart:
| Bosch Board(s) | Mounting | |
| Access Control* | B901 | A |
| Expansion Modules* | B299, B600, D8128D, D8125/MUX, D8129 | |
| Interface Cards* | D125B, D129, D132A, D185, D192G, D8130 | |
| SDI/2 Devices* | B208, B308, B426, B450, ICP-SDI-9114 | |
| Controllers | D7412GV4, D9412GV4, B8512G, B9512G | B |
TBH2 Dimensions

25.375” x 19.375” x 0.3125” (644.5mm x 482.6mm x 7.9mm).
TBHD2 Dimensions

23.75” x 18.125” x 0.3125” (603.3mm x 460.3mm x 7.9mm).
Trove2 Enclosure Dimensions
(H x W x D approximate): 27.25” x 21.75” x 6.5” (692.15mm x 552.5mm x 165.1mm)

Connect tamper switch wiring to the Access Control Panel input or the appropriate Enclosure UL Listed reporting device. To activate alarm signal open the door of the enclosure.
Screw spacer onto screws, repeat for additional three (3) board mounting holes.






















