Trove1DR1 Trove1 Enclosure with Altronix-DIN Rail Backplane (TDR1)
Installation Guide
Access & Power Integration
Trove1DR1
– Trove1 enclosure with Altronix/DIN Rail backplane (TDR1)
TDR1
– Altronix/DIN Rail backplane only
Trove2DR2
– Trove2 enclosure with Altronix/DIN Rail backplane (TDR2)
TDR2
– Altronix/DIN Rail backplane only
All registered trademarks are property of their respective owners.
Rev. TDR101321
Installing Company: ___________________
Service Rep. Name: __________________
Address: __________________________
Phone #: _________________________
Overview:
Altronix Trove1DR1 and Trove2DR2 are designed to easily combine Altronix power and sub-assemblies with DIN Rail mountable products such as access controllers, building automation modules, network switches, utility boxes, terminal blocks and more. The removable backplane accommodates various lengths of DIN Rail to mount in vertically or horizontally, for any security or industrial application.
Specifications:
16 Gauge backplanes and enclosures with ample knockouts for convenient access.
Trove1DR1
Trove1 enclosure with TDR1 Altronix/DIN Rail backplane
- Includes: tamper switch, cam lock, lock nuts, and mounting hardware.
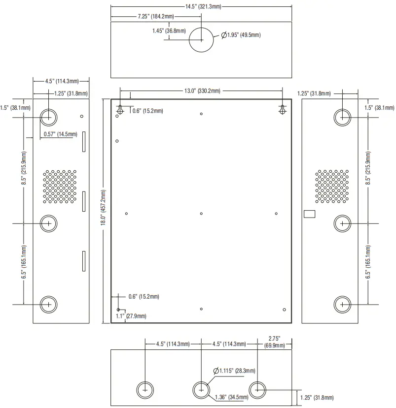
Enclosure Dimensions (H x W x D): 18” x 14.5” x 4.625” (457mm x 368mm x 118mm).
TDR1
Altronix/DIN Rail backplane only - Includes mounting hardware.
Dimensions (H x W x D): 16.625” x 12.5” x 0.3125” (422.3mm x 317.5mm x 7.9mm).
TDR1 accommodates a combination of the following: - Altronix Modules:
– One (1) ACM8/ACM8CB, ACMS8/ACMS8CB, AL400ULXB2, AL600ULXB, AL1012ULXB, AL1024ULXB2, eFlow4NB, eFlow6NB, eFlow102NB or eFlow104NB.
– Up to four (4) ACM4/ACM4CB, LINQ8PD/LINQ8PDCB, PD4UL/PD4ULCB, PD8UL/PD8ULCB, MOM5, PDS8/PDS8CB or VR6. - DIN Rail:
– Up to three (3) D12.
Trove2DR2
Trove2 enclosure with TDR2 Altronix/DIN Rail backplane
- Includes: tamper switch, cam lock, lock nuts, and mounting hardware.
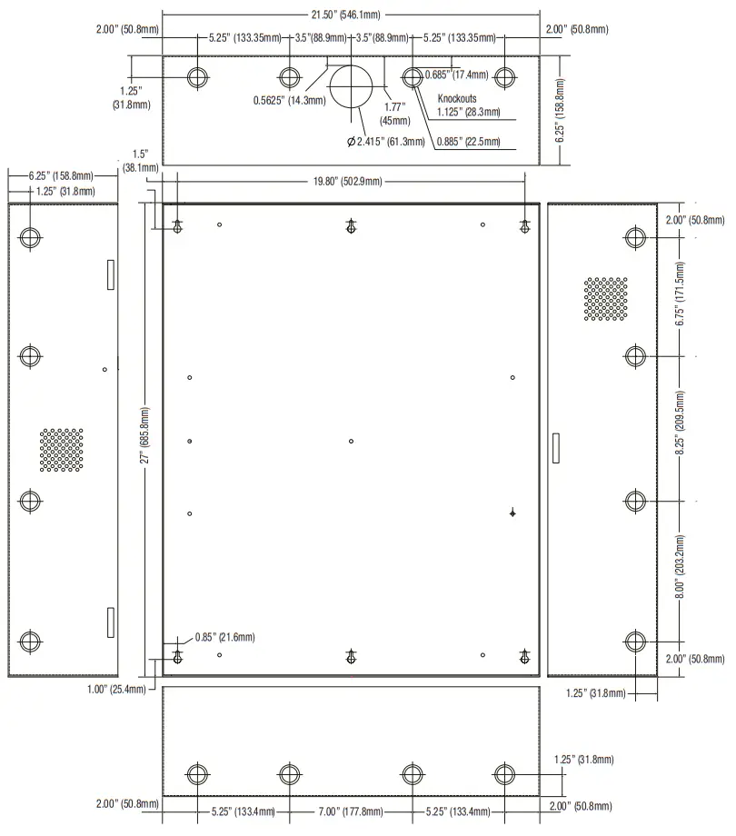
Enclosure Dimensions (H x W x D): 27.25” x 21.75” x 6.5” (692.15mm x 552.5mm x 165.1mm).
TDR2
Altronix/DIN Rail backplane only - Includes mounting hardware.
Dimensions (H x W x D): 25.375” x 19.375” x 0.3125” (644.5mm x 482.6mm x 7.9mm).
TDR2 accommodates a combination of the following: - Altronix Modules:
– Up to two (2) AL400ULXB2, AL600ULXB, AL1012ULXB, AL1024ULXB2, eFlow4NB, eFlow6NB, eFlow102NB or eFlow104NB.
– Up to three (3) ACM8/ACM8CB, ACMS8/ACMS8CB, LINQ8ACM/LINQ8ACMCB.
– Up to four (4) ACM4/ACM4CB, LINQ8PD/LINQ8PDCB, PD4UL/PD4ULCB, PD8UL/PD8ULCB, MOM5, PDS8/PDS8CB or VR6. - DIN Rail:
– Up to four (4) D10, with Altronix Power and Sub-Assemblies.
– Up to four (4) D19, no Altronix Power and Sub-Assemblies.
– Up to six (6) D24, no Altronix Power and Sub-Assemblies.
Agency Listings:
- UL 294 – 6th edition: Line Security I, Destructive Attack I, Endurance IV, Stand-by Power II*. *Stand-by Power Level I if no battery is supplied.
- This Class B digital apparatus complies with Canadian ICES-003.
Installation Instructions for Trove1 and Trove2:
- Remove backplane from enclosure prior to mounting (do not discard hardware).
- Trove1DR1 (Pg. 10):
Mark and predrill holes on the wall to line up with the top two keyholes in the enclosure. Install two upper fasteners and screws in the wall with the screw heads protruding. Place the enclosure’s upper keyholes over the two upper screws; level and secure.
Mark the position of the lower two holes. Remove the enclosure. Drill the lower holes and install the two fasteners.
Place the enclosure’s upper keyholes over the two upper screws. Install the two lower screws and make sure to tighten all screws.
Trove2DR2 (Pg. 12):
Mark and predrill holes on the wall to line up with the top three keyholes in the enclosure.
Install three upper fasteners and screws in the wall with the screw heads protruding.
Place the enclosure’s upper keyholes over the three upper screws; level and secure.
Mark the position of the lower three holes. Remove the enclosure. Drill the lower holes and install the three fasteners. Place the enclosure’s upper keyholes over the three upper screws.
Install the three lower screws and make sure to tighten all screws. - Mount included UL Listed tamper switch (Altronix Model TS112 or equivalent) in desired location, opposite hinge. Slide the tamper switch bracket onto the edge of the enclosure approximately 2” from the right side (Fig. 1, pg. 2).
Connect tamper switch wiring to the Access Control Panel input or the appropriate UL Listed reporting device. To activate alarm signal open the door of the enclosure. - Mount Altronix/DIN Rail to backplane, refer to pages 3-5.

TDR1: Configuration of Altronix Power Supply/Sub-Assembly Boards and DIN Rail
- Fasten spacers (provided) to pems that match the hole pattern for Altronix power supply/chargers and sub-assemblies (Fig. 2, pg. 3).
Fasten metal spacers in the correct locations to provide proper grounding, see below (Fig. 2, pg. 3).
Fasten spacers (provided) to pems that match the hole pattern for DIN RAIL. - Mount boards to spacers utilizing 5/16” pan head screws (provided) (Fig. 2, 2a, pg. 3).
- Fasten TDR1 backplane to Trove1 enclosure utilizing lock nuts (provided).
Power Supply, Sub-Assembly and Access Controller Position Chart for the Following Models:
| Altronix Boards / DIN Rail | Pem Mounting |
| AL400ULXB2, AL600ULXB, AL1012ULXB, AL1024ULXB2, eFlow4NB, eFlow6NB, eFlow102NB, eFlow104NB, ACM8/ACM8CB, ACMS8/ACMS8CB, LINQ8ACM/LINQ8ACMCB | A |
| ACM4/ACM4CB, LINQ8PD/LINQ8PDCB, PD4UL/PD4ULCB, PD8UL/PD8ULCB, MOM5, PDS8/PDS8CB or VR6 | B |
| D12 | C |
Fig. 2 – Trove1DR1/TDR1 Altronix/DIN Rail Configurations

TDR2: Configuration of Altronix Power Supply/Sub-Assembly Boards and DIN Rail
- Fasten spacers (provided) to pems that match the hole pattern for Altronix power supply/chargers and sub-assemblies (Fig. 3, pg. 4).
Fasten metal spacers in the correct locations to provide proper grounding, see below (Fig. 3, pg. 4).
Fasten spacers (provided) to pems that match the hole pattern for DIN Rail. - Mount boards to spacers utilizing 5/16” pan head screws (provided) (Fig. 3, 3a, pg. 4).
- Fasten TDR2 backplane to Trove2 enclosure utilizing lock nuts (provided).
Power Supply, Sub-Assembly and Access Controller Position Chart for the Following Models:
| Altronix Boards / DIN Rail | Pem Mounting |
| AL400ULXB2, AL600ULXB, AL1012ULXB, AL1024ULXB2, eFlow4NB, eFlow6NB, eFlow102NB, eFlow104NB, ACM8/ACM8CB, ACMS8/ACMS8CB, LINQ8ACM/LINQ8ACMCB | A |
| ACM4/ACM4CB, LINQ8PD/LINQ8PDCB, PD4UL/PD4ULCB, PD8UL/PD8ULCB, MOM5, PDS8/PDS8CB or VR6 | B |
Fig. 3 – Trove2DR2/TDR2 Altronix/DIN Rail Configuration

TDR2: Configuration of DIN Rail
- Fasten spacers (provided) to pems that match the hole pattern for DIN Rail (Fig. 4, pg. 5).
- Mount boards to spacers utilizing 5/16” pan head screws (provided) (Fig. 4, 4a, pg. 5).
- Fasten TDR2 backplane to Trove2 enclosure utilizing lock nuts (provided).
Access Controller Position Chart for the Following Models:
| DIN Rail | Pem Mounting |
| D10, D12, D19 | A |
| D24 | B |
Fig. 4 – Trove2DR2/TDR2 DIN Rail Configuration

eFlow Power Supply/Chargers can be Controlled and Monitored while Reporting Power/Diagnostics from Anywhere over the Network…
LINQ2 – Network Communication Module
LINQ2 provides remote IP access to real-time data from eFlow power supply/chargers to help keep systems up and running at optimal levels. It facilitates fast and easy installation and set-up, minimizes system downtime, and eliminates unnecessary service calls, which helps reduce Total Cost of Ownership (TCO) – as well as creating a new source of Recurring Monthly Revenue (RMR).
Features:
- UL Listed in the U.S. and Canada.
- Local or remote control of up to (2) two Altronix eFlow power output(s) via LAN and/or WAN.
- Monitor real time diagnostics: DC output voltage, output current, AC & battery status/service, input trigger state change, output state change and unit temperature.
- Access control and user managment: Restrict read/write, Restrict users to specific resources
- Two (2) integral network controlled Form “C” Relays.
- Three (3) programmable input triggers: Control relays and power supplies via external hardware sources.
- Email and Windows Dashboard notifications
- Event log tracks history.
- Secure Socket Layer (SSL).
- Programmable via USB or web browser – includes operating software and 6 ft. USB cable.
LINQ2 Mounts Inside any Trove Enclosure
TDR1 Dimensions:
16.625” x 12.5” x 0.3125” (422.3mm x 317.5mm x 7.9mm)

Trove1DR1 Enclosure Dimensions (H x W x D):
18” x 14.5” x 4.625” (457mm x 368mm x 118mm)

TDR2 Dimensions:
25.375” x 19.375” x 0.3125” (644.5mm x 482.6mm x 7.9mm)
Trove2DR2 Enclosure Dimensions (H x W x D):
27.25” x 21.75” x 6.5” (692.15mm x 552.5mm x 165.1mm)

Altronix is not responsible for any typographical errors.
140 58th Street, Brooklyn, New York 11220 USA |
phone: 718-567-8181 | fax: 718-567-9056
web site: www.altronix.com | e-mail: [email protected]
IITrove1DR1 / TDR1 / Trove2DR2 / TDR2
Trove1DR1 / TDR1 / Trove2DR2 / TDR2 Installation Guide



















