
Access & Power Integration
Trove2KA2
Trove2 enclosure with Altronix/Keyscan backplane (TKA2)
TKA2
Altronix/Keyscan backplane only
Trove3KA3
Trove3 enclosure with Altronix/Keyscan backplane (TKA3)
TKA3
Altronix/Keyscan backplane only
Installation Guide
Trove2KA2 Trove2 Enclosure with Keyscan Backplane
All registered trademarks are the property of their respective owners.
Rev. TKA042816
Installing Company: _________________________ Service Rep. Name: __________________________________________
Address: _________________________________________________________ Phone #: _________________________
Overview
Trove2KA2/Trove3KA3 accommodates various combinations of Keyscan boards with or without Altronix power supplies and accessories for access systems.
Specifications
Trove2KA2
Trove2 enclosure with TKA2 Altronix/Keyscan backplane
- Includes tamper switch, cam lock, and mounting hardware.
Enclosure Dimensions (H x W x D):
27.25” x 21.75” x 6.5” (692.2mm x 552.5mm x 165.1mm).
TKA2
Altronix/Keyscan backplane only
- Includes mounting hardware.
Dimensions (H x W x D):
25.375” x 19.375” x 0.3125” (644.5mm x 482.6mm x 7.9mm).
TKA2 accommodates a combination of the following:
Altronix Modules:
- One (1) AL400ULXB2, AL600ULXB, AL1012ULXB, AL1024ULXB2, eFlow4NB, eFlow6NB, eFlow102NB, or eFlow104NB.
- One (1) T16100, ACM4(CB), ACM8(CB), MOM5, PD4UL(CB), PD8UL(CB), PDS8(CB), VR6.
Keyscan Modules:
- One (1) CA250B, CA4500B, CA8500B, one (1) DPS-15, one (1) CIM.
- Two (2) OCB8
Trove3KA3
Trove3 enclosure with TKA3 Altronix/Keyscan backplane
- Includes (2) tamper switches, cam lock, and mounting hardware.
Enclosure Dimensions (H x W x D):
36.12” x 30.125” x 7.06” (917.5mm x 768.1mm x 179.3mm).
TKA3
Altronix/Keyscan backplane only
- Includes mounting hardware.
Dimensions (H x W x D):
34” x 28” x 0.3125” (863.6mm x 711.2mm x 7.9mm).
TKA3 accommodates a combination of the following:
Altronix Modules:
- One (1) AL400ULXB2, AL600ULXB, AL1012ULXB, AL1024ULXB2, eFlow4NB, eFlow6NB, eFlow102NB, or eFlow104NB.
- One (1) T16100, ACM4(CB), ACM8(CB), MOM5, PD4UL(CB), PD8UL(CB), PDS8(CB), VR6.
Keyscan Modules:
- Two (2) CA250B, CA4500B, CA8500B, two (2) DPS-15, two (2) CIM.
- Four (4) OCB8
Agency Listings
- UL 294 – 6th edition: Line Security I, Destructive Attack I, Endurance IV, Stand-by Power II*. *Stand-by Power Level I if no battery is supplied.
- This Class B digital apparatus complies with Canadian ICES-003. Cet appareil numérique de la classe B est conforme á la norme NMB-003 du Canada.
- CE European Conformity.
Installation Instructions for Trove2/Trove3
- Remove the backplane from the enclosure prior to mounting (do not discard hardware).
- Mark and predrill holes in the wall to line up with the top keyholes in the enclosure. Install the upper fasteners and screws in the wall with the screw heads protruding. Place the enclosure’s upper keyholes over the screws; level and secure. Mark the position of the lower holes. Remove the enclosure. Drill the lower holes and install the fasteners. Place the enclosure’s upper keyholes over the upper screws. Install the lower screws and make sure to tighten all screws (Enclosure Dimensions, pg. 6, 8).
- Mount included UL Listed tamper switch (Altronix Model TS112 or equivalent) in the desired location, opposite hinge. Slide the tamper switch bracket onto the edge of the enclosure approximately 2” from the right side (Fig. 1, pg. 2). Connect the tamper switch wiring to the Access Control Panel input or the appropriate UL Listed reporting device.
To activate the alarm signal open the door of the enclosure. - Mount Altronix/Keyscan boards to the backplane, refer to pages 3, and 4.
Hardware
| Nylon Spacer | Metal Spacer | Pan Head Screw | Lock Nut |

TKA2: Configuration of Altronix Power Supply and/or Sub-Assembly Boards and Keyscan Boards
- Fasten metal and snap on spacers (provided) to poems that match the hole pattern for Altronix Power Supply/Chargers or Altronix Sub-Assembly boards (Fig. 2, 2a, pg. 3). Note: Please fasten metal and snap on spacers in the proper locations (Fig. 2, pg. 3).
- Mount boards to spacers utilizing 5/16” pan head screws (provided) (Fig. 2, pg. 3).
- Mount the Altronix T16100 transformer to the backplane using two locking nuts (Fig. 2, pg. 3).
- Mount appropriate Keyscan boards into the correct positions (Fig. 2, pg. 3) by positioning spacers over appropriate holes on the backplane and depressing down on board to secure the spacer to the backplane (Fig. 2b, pg. 3).
- Fasten the backplane to the Trove2 enclosure utilizing pan head screws (provided).

TKA3: Configuration of Altronix Power Supply and/or Sub-Assembly Boards and Keyscan Boards
- Fasten metal and snap on spacers (provided) to poems that match the hole pattern for Altronix Power Supply/Chargers or Altronix Sub-Assembly boards (Fig. 3, 3a, pg. 4). Note: Please fasten metal and snap on spacers in the proper locations (Fig. 3, pg. 4).
- Mount boards to spacers utilizing 5/16” pan head screws (provided) (Fig. 3, pg. 4).
- Mount Altronix T16175 transformer to the backplane using four locking nuts and TKA3BK: tighten the top two lock nuts first, then, utilizing the TKA3BK bracket, insert poems through T16175 feet and backplane and tighten locknuts to the poems protruding through the backplane. (Fig. 3b, pg. 4).
- Mount appropriate Keyscan boards into the correct positions (Fig. 3, pg. 4) by positioning spacers over appropriate holes on the backplane and depressing down on board to secure the spacer to the backplane (Fig. 3c, pg. 4).
- Fasten the backplane to the Trove3 enclosure utilizing pan head screws (provided).

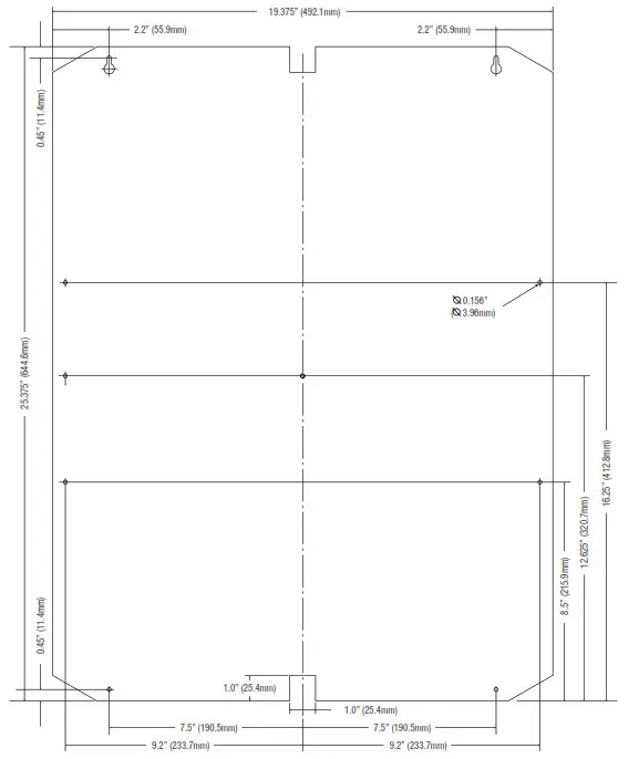
TKA2 Dimensions (H x W x D):
25.375” x 19.375” x 0.3125” (644.6mm x 492.1mm x 7.9mm)

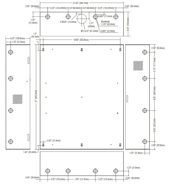
Trove2KA2 Enclosure Dimensions (H x W x D approximate):
27.25” x 21.75” x 6.5” (692.15mm x 546.1mm x 165.1mm)

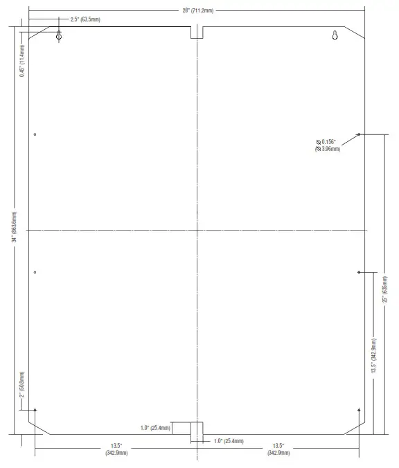
TKA3 Dimensions
34” x 28” x 0.3125” (863.6mm x 711.2mm x 7.9mm)

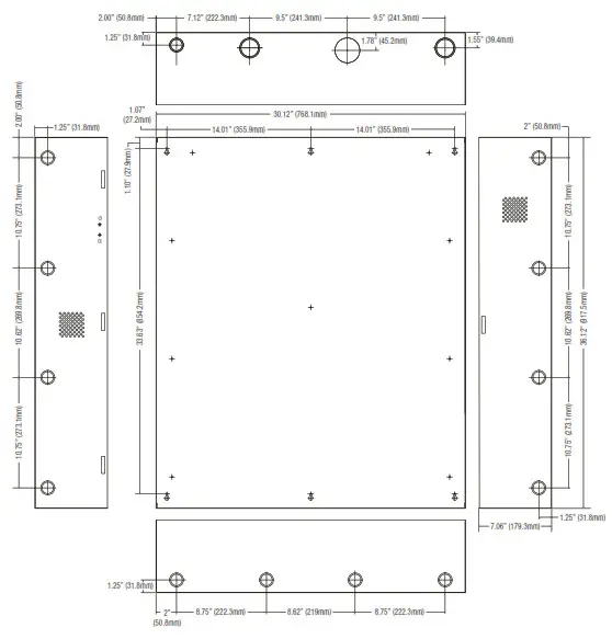
Trove3KA3 Enclosure Dimensions (H x W x D approximate):
36.12” x 30.125” x 7.06” (917.5mm x 768.1mm x 179.3mm)

Altronix is not responsible for any typographical errors.
140 58th Street, Brooklyn, New York 11220 USA | phone: 718-567-8181 | fax: 718-567-9056
web site: www.altronix.com
e-mail: [email protected]
IITrove2KA2/3KA3 I28U
Trove2KA2 / Trove3KA3 Installation Guide![]()



















