

![]()
Installation Guide
Trove1SA1, TSA1, Trove2SA2, TSA2 TROVE Outdoor Enclosure Backplane
Trove1SA1
– Trove1 enclosure with Altronix/SALTO backplane (TSA1)
TSA1
– Altronix/SALTO backplane only
Trove2SA2
– Trove2 enclosure with Altronix/SALTO backplane (TSA2)
TSA2
– Altronix/SALTO backplane only
Overview:
Altronix Trove1SA1 and Trove2SA2 accommodate combinations of SALTO boards with or without Altronix power supplies and sub-assemblies for access systems.
Specifications:
- 16 Gauge backplanes and enclosures with ample knockouts for convenient access.
Trove1SA1
Trove1 enclosure with TSA1 Altronix/SALTO backplane
- Includes: tamper switch, cam lock, lock nuts, and mounting hardware.
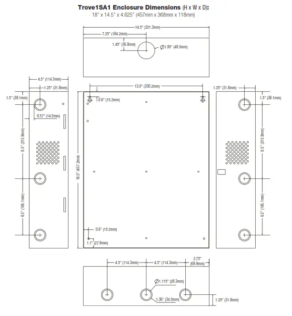
Enclosure Dimensions (H x W x D): 18” x 14.5” x 4.625” (457mm x 368mm x 118mm).
TSA1
Altronix/SALTO backplane only - Includes mounting hardware.
Dimensions (H x W x D): 16.625” x 12.5” x 0.3125” (422.3mm x 317.5mm x 7.9mm).
TSA1 accommodates a combination of the following: - Altronix Modules:
– One (1) AL400ULXB2, AL600ULXB, AL1012ULXB, AL1024ULXB2, eFlow4NB, eFlow6NB, eFlow102NB or eFlow104NB.
– Up to two (2) PD4UL/PD4ULCB, PD8UL/PD8ULCB, MOM5, PDS8/PDS8CB or VR6. - SALTO Modules:
– Up to four (4) CU42E0, CU4200 or CU4EB8 modules.
Trove2SA2
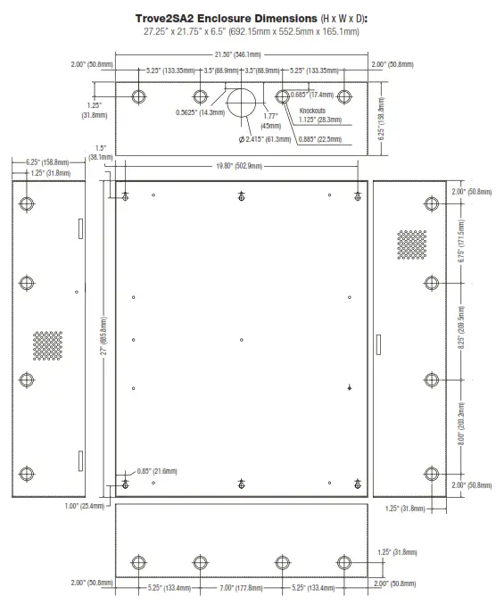
Trove2 enclosure with TSA2 Altronix/SALTO backplane - Includes: tamper switch, cam lock, lock nuts, and mounting hardware.
Enclosure Dimensions (H x W x D): 27.25” x 21.75” x 6.5” (692.15mm x 552.5mm x 165.1mm).
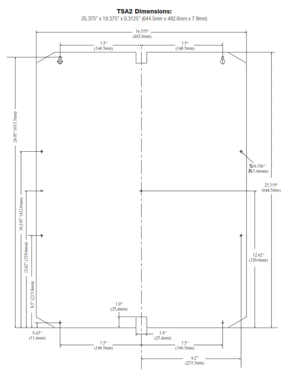
TSA2
Altronix/SALTO backplane only - Includes mounting hardware.
Dimensions (H x W x D): 25.375” x 19.375” x 0.3125” (644.5mm x 482.6mm x 7.9mm).
TSA2 accommodates a combination of the following: - Altronix Modules:
– Up to two (2) AL400ULXB2, AL600ULXB, AL1012ULXB, AL1024ULXB2, eFlow4NB, eFlow6NB, eFlow102NB or eFlow104NB.
– Up to three (3) ACM8/ACM8CB or ACMS8/ACMS8CB.
– Up to four (4) PD4UL/PD4ULCB, PD8UL/PD8ULCB, MOM5, PDS8/PDS8CB or VR6. - SALTO Modules:
– Up to nine (9) CU42E0, CU4200 or CU4EB8 modules.
Agency Listings:
- UL 294 – 6th edition: Line Security I, Destructive Attack I, Endurance IV, Stand-by Power II*. *Stand-by Power Level I if no battery is supplied.
- This Class B digital apparatus complies with Canadian ICES-003.
Cet appareil numérique de la classe B est conforme á la norme NMB-003 du Canada. - CE European Conformity.
Installation Instructions for Trove1 and Trove2:
- Remove the backplane from the enclosure prior to mounting (do not discard hardware).
- Trove1SA1 (Pg. 10):
Mark and predrill holes on the wall to line up with the top two keyholes in the enclosure. Install two upper fasteners and screws in the wall
with the screw heads protruding. Place the enclosure’s upper keyholes over the two upper screws; level and secure.
Mark the position of the lower two holes. Remove the enclosure. Drill the lower holes and install the two fasteners.
Place the enclosure’s upper keyholes over the two upper screws. Install the two lower screws and make sure to tighten all screws.
Trove2SA2 (Pg. 12):
Mark and predrill holes on the wall to line up with the top three keyholes in the enclosure.
Install three upper fasteners and screws in the wall with the screw heads protruding.
Place the enclosure’s upper keyholes over the three upper screws; level and secure.
Mark the position of the lower three holes. Remove the enclosure. Drill the lower holes and install the three fasteners. Place the enclosure’s upper keyholes over the three upper screws.
Install the three lower screws and make sure to tighten all screws. - Mount included UL Listed tamper switch (Altronix Model TS112 or equivalent) in the desired location, opposite hinge. Slide the tamper switch bracket onto the edge of the
enclosure approximately 2” from the right side (Fig. 1, pg. 2). Connect the tamper switch wiring to the Access Control Panel input or the appropriate UL Listed reporting device. To activate the alarm signal open the door of the enclosure. - Mount Altronix/SALTO modules to the backplane, refer to pages 3-5.

TSA1: Configuration of Altronix Power Supply/Sub-Assembly Boards and SALTO Modules
- Fasten spacers (provided) to pems that match the hole pattern for Altronix power supply/chargers and sub-assemblies (Fig. 2, pg. 3).
Fasten metal spacers in the correct locations to provide proper grounding, see below (Fig. 2, pg. 3).
Fasten spacers (provided) to pems that match the hole pattern for SALTO CU42E0, CU4200 or CU4EB8 modules. - Mount boards to spacers utilizing 5/16” pan head screws (provided) (Fig. 2, 2a, pg. 3).
- Fasten TSA1 backplane to Trove1 enclosure utilizing lock nuts (provided).
Power Supply, Sub-Assembly and Access Controller Position Chart for the Following Models:
| Altronix Boards | Pem Mounting |
| AL400ULXB2, AL600ULXB, AL1012ULXB, AL1024ULXB2, eFlow4NB, eFlow6NB, eFlow102NB, eFlow104NB, ACM8/ACM8CB or ACMS8/ACMS8CB | A |
| PD4UL/PD4ULCB, PD8UL/PD8ULCB, MOM5, PDS8/PDS8CB or VR6 | B |
| SALTO Boards | Pem Mounting |
| CU42E0, CU4200 or CU4EB8 | C |
Fig. 2 – Trove1SA1/TSA1 Configurations
TSA2: Configuration of Altronix Power Supply/Sub-Assembly Boards and SALTO Modules
- Fasten spacers (provided) to poems that match the hole pattern for Altronix power supply/chargers and sub-assemblies (Fig. 3, pg. 4).
Fasten metal spacers in the correct locations to provide proper grounding, see below (Fig. 3, pg. 4).
Fasten spacers (provided) to pens that match the hole pattern for SALTO CU42E0, CU4200 or CU4EB8 modules. - Mount boards to spacers utilizing 5/16” pan head screws (provided) (Fig. 3, 3a, pg. 4).
- Fasten TSA2 backplane to Trove2 enclosure utilizing lock nuts (provided).
Power Supply, Sub-Assembly and Access Controller Position Chart for the Following Models:
| Altronix Boards | Pem Mounting |
| AL400ULXB2, AL600ULXB, AL1012ULXB, AL1024ULXB2, eFlow4NB, eFlow6NB, eFlow102NB, eFlow104NB, ACM8/ACM8CB or ACMS8/ACMS8CB | A |
| PD4UL/PD4ULCB, PD8UL/PD8ULCB, MOM5, PDS8/PDS8CB or VR6 | B |
| SALTO Boards | Pem Mounting |
| CU42E0, CU4200 or CU4EB8 | C |

TSA2: Configuration of SALTO Modules
- Fasten spacers (provided) to pets that match the hole pattern for SALTO CU42E0, CU4200 or CU4EB8 modules (Fig. 4, pg. 5).
- Mount boards to spacers utilizing 5/16” pan head screws (provided) (Fig. 4, 4a, pg. 5).
- Fasten TSA2 backplane to Trove2 enclosure utilizing lock nuts (provided).
Access Controller Position Chart for the Following Models:
| SALTO Boards | Pem Mounting |
| CU42E0, CU4EB8 or CU4200 | C |

eFlow Power Supply/Chargers can be Controlled and Monitored while
Reporting Power/Diagnostics from Anywhere over the Network…

LINQ2 – Network Communication Module
LINQ2 provides remote IP access to real-time data from eFlow power supply/chargers to help keep systems up and running at optimal levels. It facilitates fast and easy installation and set-up, minimizes system downtime, and eliminates unnecessary service calls, which helps reduce Total Cost of Ownership (TCO) – as well as creating a new source of Recurring Monthly Revenue (RMR).
Features:
– UL is Listed in the U.S. and Canada.
– Local or remote control of up to (2) two Altronix eFlow power output(s) via LAN and/or WAN.
– Monitor real-time diagnostics: DC output voltage, output current, AC & battery status/service, input trigger state change, output state change and unit temperature.
– Access control and user managment: Restrict read/write, Restrict users to specific resources
– Two (2) integral network controlled Form “C” Relays.
– Three (3) programmable input triggers: Control relays and power supplies via external hardware sources.
– Email and Windows Dashboard notifications
– Event log tracks history.
– Secure Socket Layer (SSL).
– Programmable via USB or web browser – includes operating software and 6 ft. USB cable.
LINQ2 Mounts Inside any Trove Enclosure
Notes:
![]() | ![]() |
![]() | ![]() |
All registered trademarks are the property of their respective owners.
Rev. TSA122418
Installing Company: _________________________ Service Rep. Name: __________________________________________
Address: _________________________________________________________ Phone #: _________________________
Altronix is not responsible for any typographical errors.
140 58th Street, Brooklyn, New York 11220 USA
phone: 718-567-8181 | fax: 718-567-9056
web site: www.altronix.com
e-mail: [email protected].
IITrove1SA1 / TSA1 / Trove2SA2 / TSA2
J05U
Trove1SA1 / TSA1 / Trove2SA2 / TSA2 Installation Guide























