Access & Power Integration![]()
Trove2KS2 Trove2 Enclosure with Keri Systems Backplane
Trove2KS2
– Trove2 enclosure with Altronix/Keri Systems backplane (TKS2)
TKS2
– Altronix/Keri Systems backplane only
Installation Guide
More than just power.™
All registered trademarks are the property of their respective owners.
Rev. TKS2_060419
Installing Company: _______________________
Service Rep. Name: _______________________
Address: _______________________________
Phone #: _________________________
Overview:
Trove2KS2 accommodates various combinations of Keri Systems boards with or without Altronix power supplies and accessories for access systems.
Specifications:
- 16 Gauge grey backplane and enclosure with ample knockouts for convenient access.
Trove2KS2
Trove2 enclosure with TKS2 Altronix/Keri Systems backplane.
- Includes tamper switch, cam lock, and mounting hardware.
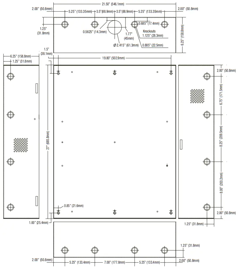
Enclosure Dimensions (H x W x D): 27.25” x 21.75” x 6.5” (692.2mm x 552.5mm x 165.1mm).
Accommodates up to four (4) 12VDC/7AH batteries.
TKS2
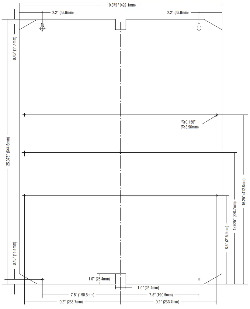
TKS2 Altronix/Keri Systems backplane.
- Includes mounting hardware.
Dimensions (H x W x D): 25.375” x 19.375” x 0.3125” (644.6mm x 492.1mm x 7.9mm).
TKS2 accommodates a combination of the following:
Altronix:
- Up to four (4) AL400ULXB2, AL600ULXB, AL1012ULXB, AL1024ULXB2, eFlow4NB, eFlow6NB, eFlow102NB, or eFlow104NB.
- Two (2) PDS8(CB), VR6, ACM8(CB), ACMS8(CB), MOM5, PD4UL(CB), PD8UL(CB), or ACM4(CB).
Keri Systems: - Six (6) NXT-2D-MSCNE, NXT-4D-MSCNE or three (3) NXT-4x4NE, or any combination of the above.
Agency Listings:
- UL 294 – 6th edition: Line Security I, Destructive Attack I, Endurance IV, Stand-by Power II*. *Stand-by Power Level I if no battery is supplied.
- This Class B digital apparatus complies with Canadian ICES-003.
Cet appareil numérique de la classe B est conforme á la norme NMB-003 du Canada. - CE European Conformity.
Installation Instructions:
Wiring methods shall be in accordance with the National Electrical Code/NFPA 70/ANSI, and with all local codes and authorities having jurisdiction. The product is intended for indoor use only.
- Remove the backplane from the enclosure. Do not discard hardware.
- Mark and predrill holes in the wall to line up with the top three keyholes in the enclosure. Install three upper fasteners and screws in the wall with the screw heads protruding. Place the enclosure’s upper keyholes over the three upper screws; level and secure.
Mark the position of the lower three holes. Remove the enclosure. Drill the lower holes and install the three fasteners.
Place the enclosure’s upper keyholes over the three upper screws. Install the three lower screws and make sure to tighten all screws. - Mount included UL Listed tamper switch (Altronix Model TS112 or equivalent) in the desired location, opposite hinge. Slide the tamper switch bracket onto the edge of the enclosure approximately 2” from the right side (Fig. 1, pg. 2). Connect the tamper switch wiring to the Access Control Panel input or the appropriate UL Listed reporting device. To activate the alarm signal open the door of the enclosure.
- Mount Altronix/Keri Systems boards to backplanes, refer to pages 3, 4.

Installation Instructions for Altronix Power Supplies and Sub-Assemblies to TKS2:
- Fasten spacers (provided) into pem configuration (A) or (B) of the backplane (Fig. 2, pg. 3).
- Mount boards to spacers utilizing 5/16” pan head screws (provided) (Fig. 2a, pg. 3).
- Mount the backplane to the enclosure with hardware.
Access Controller Position Chart for the Following Models:
| Altronix Board | Pem Mounting |
| Altronix Power Supply or Sub-Assembly | A |
| Altronix Sub-Assembly | B |

Installation Instructions for Keri Systems Boards to TKS2:
- Fasten spacers (provided) into pem configuration (A) or (B) of the backplane (Fig. 3, pg. 4).
- Mount boards to spacers utilizing 5/16” pan head screws (provided) (Fig. 3a, pg. 4).
Note: Keri Systems NXT-2D-MSCNE and NXT-4D-MSCNE boards have one (1) RJ45 jack each.
Please make sure that they are mounted correctly, as shown in Fig. 3 below. - Mount the backplane to the enclosure with hardware.
If the use of NXTWI or NXTRM3 expansion boards is desired, there is no need to remove NXT-2D-MSCNE, NXT-4D-MSCNE or NXT-4X4NE from the TKS2.
Access Controller Position Chart for the Following Models:
| Keri Systems Board | Pem Mounting |
| NXT-2D-MSCNE, NXT-4D-MSCNE | A |
| NXT-4X4NE | B |

![]()
eFlow Power Supply/Chargers can be Controlled and Monitored while Reporting Power/Diagnostics from Anywhere over the Network…
LINQ2 – Network Communication Module
LINQ2 provides remote IP access to real-time data from eFlow power supply/chargers to help keep systems up and running at optimal levels. It facilitates fast and easy installation and set-up, minimizes system downtime, and eliminates unnecessary service calls, which helps reduce the Total Cost of Ownership (TCO) – as well as creates a new source of Recurring Monthly Revenue (RMR).
Features:
- UL is Listed in the U.S. and Canada.
- Local or remote control of up to (2) two Altronix eFlow power output(s) via LAN and/or WAN.
- Monitor real-time diagnostics: DC output voltage, output current, AC & battery status/service, input trigger state change, output state change, and unit temperature.
- Access control and user management: Restrict read/write, Restrict users to specific resources
- Two (2) integral network controlled Form “C” Relays.
- Three (3) programmable input triggers: Control relays and power supplies via external hardware sources.
- Email and Windows Dashboard notifications
- The event log tracks history.
- Secure Socket Layer (SSL).
- Programmable via USB or web browser – includes operating software and 6 ft. USB cable.
LINQ2 Mounts Inside any Trove Enclosure
TKS2 Dimensions (H x W x D):
25.375” x 19.375” x 0.3125” (644.6mm x 492.1mm x 7.9mm)
Trove2KS2 Enclosure Dimensions (H x W x D approximate):
27.25” x 21.75” x 6.5” (692.2mm x 552.5mm x 165.1mm)
Altronix is not responsible for any typographical errors.
140 58th Street, Brooklyn, New York 11220 USA
phone: 718-567-8181 | fax: 718-567-9056
web site: www.altronix.com | e-mail: [email protected]
IITroveKS I28U



















