Altronix T2KSK3F8 Keri Systems Kits

T2KSK7F12
12 Door Kit with PTC Outputs Fully assembled kit includes:
- Trove2 enclosure with TKS2 Altronix/Keri Systems backplane
- One (1) eFlow104NB – Power Supply/Charger
- One (1) ACMS8 – Dual Output Fused Access Power Controller
- One (1) VR6 – Voltage Regulator
- One (1) PDS8 – Dual Input Fused Power Distribution Module
- One (1) ACM4 – Fused Access Power Controller
Overview
Altronix Trove Keri Systems kits are pre-assembled and consist of Trove enclosures/backplanes with factory installed Altronix power supply/chargers and sub-assemblies. Both kits accommodate a variety of Keri Systems modules for up to eight (T2KSK3F8) or twelve (T2KSK7F12) doors in a single enclosure.
Configuration Chart
|
Altronix Model Number | 120VAC 60Hz Input Current (A) | Power Supply Board Input Fuse Rating | Power Supply Board Battery Fuse Rating | Maximum Supply Current for Main and Aux. Outputs on Power Supply board and ACMS8/ACM4 Access Power Controllers’ outputs | Nominal DC Output Voltage | Fail-Safe/Fail-Secure or Dry Form “C” Outputs | Additional Fused Outputs | ACMS8 Board Input Fuse Rating | ACMS8 Board Output Fuse Rating | PDS8 Board Input Fuse Rating | PDS8 Board Output Fuse Rating | ACM4 Board Input Fuse Rating | ACM4 Board Output Fuse Rating | |
| [DC] | [Aux] | |||||||||||||
| Output Range (VDC) | Output Range (VDC) | |||||||||||||
| T2KSK3F8 | 3.5 | 5A/ 250V | 15A/ 32V | 24VDC @ 5.7A | 20.17- 26.4 | 20.28- 26.4 | 8 | 8 | 15A/ 32V | 3A/ 32V | 10A/ 32V | 3A/ 32V | – | – |
| T2KSK7F12 | 4.5 | 6.3A/ 250V | 15A/ 32V | 24VDC @ 9.4A | 20.17- 26.4 | 20.28- 26.4 | 12 | 8 | 15A/ 32V | 3A/ 32V | 10A/ 32V | 3A/ 32V | 10A/ 250V | 3A/ 32V |
Installation Instructions
Wiring methods shall be in accordance with the National Electrical Code/NFPA 70/ANSI, and with all local codes and authorities having jurisdiction. Product is intended for indoor use only.
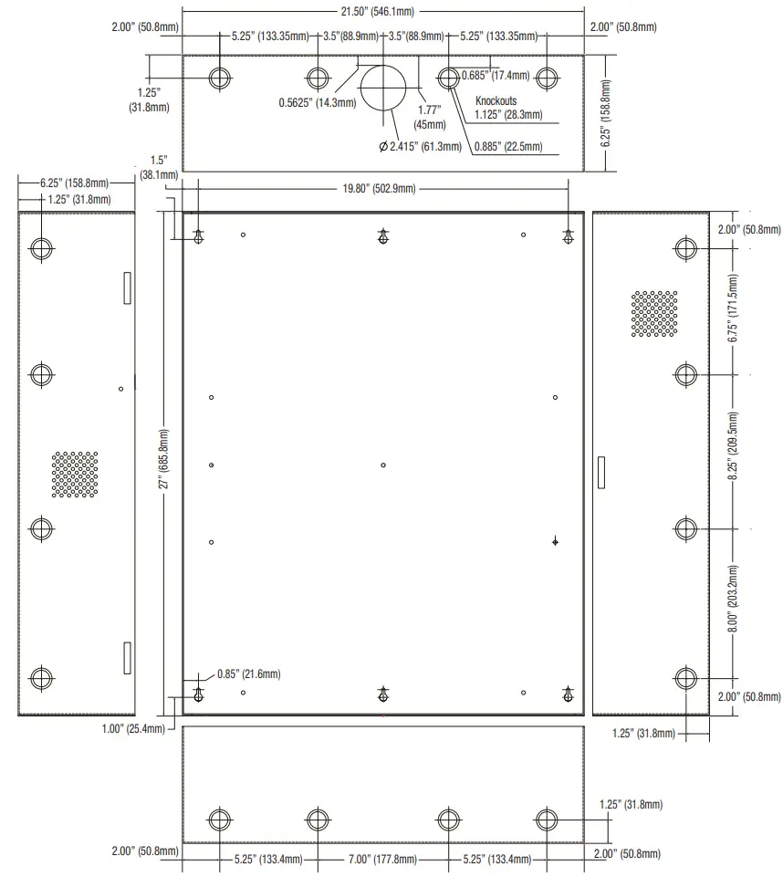
- Remove backplane from enclosure. Do not discard hardware.
- Mark and predrill holes in the wall to line up with the top two/three keyholes in the enclosure. Install two/three upper fasteners and screws in the wall with the screw heads protruding. Place the enclosure’s upper keyholes over the two/three upper screws;
level and secure. Mark the position of the lower three holes. Remove the enclosure. Drill the lower holes and install the three fasteners. Place the enclosure’s upper keyholes over the two/three upper screws. Install the three lower screws and make sure to tighten all screws. - Mount included UL Listed tamper switch (Altronix Model TS112 or equivalent) in desired location, opposite hinge. Slide the tamper switch bracket onto the edge of the enclosure approximately 2” from the right side (Fig. 1, pg. 2).
Connect tamper switch wiring to the Access Control Panel input or the appropriate UL Listed reporting device. To activate alarm signal open the door of the enclosure. - Mount Keri Systems boards to backplane, refer to pages 3, 4.
- Refer to the eFlow Power Supply/Charger Installation Guide for eFlow6NB and eFlow104NB and corresponding Sub-Assembly Installation Guides for ACMS8, PDS8, VR6 and ACM4 for further installation instructions.

Hardware
T2KSK3F8: Installation Instructions for Keri Systems Access Controllers
- Fasten spacers (provided) into pem configuration (A) or (B) of backplane (Fig. 2, pg. 3).
- Mount boards to spacers utilizing 5/16” pan head screws (provided) (Fig. 2a, pg. 3).
Note: Keri Systems NXT-2D-MSCNE and NXT-4D-MSCNE boards have one (1) RJ45 jack each.
Please make sure that they are mounted correctly, as shown in Fig. 2 below. - Mount backplane to enclosure with hardware.
If use of NXTWI or NXTRM3 expansion boards is desired, there is no need to remove NXT-2D-MSCNE, NXT-4D-MSCNE or NXT-4X4NE from the TKS2.
Keri Systems Access Controller Position Chart for the Following Models:
| Keri Systems Board | Pem Mounting |
| NXT-2D-MSCNE, NXT-4D-MSCNE | A |
| NXT-4X4NE | B |

T2KSK7F12: Installation Instructions for Keri Systems Access Controllers
- Fasten spacers (provided) into pem configuration (A) or (B) of backplane (Fig. 2, pg. 3).
- Mount boards to spacers utilizing 5/16” pan head screws (provided) (Fig. 2a, pg. 3).
Note: Keri Systems NXT-2D-MSCNE and NXT-4D-MSCNE boards have one (1) RJ45 jack each. Please make sure that they are mounted correctly, as shown in Fig. 2 below. - Mount backplane to enclosure with hardware.
If use of NXTWI or NXTRM3 expansion boards is desired, there is no need to remove NXT-2D-MSCNE, NXT-4D-MSCNE or NXT-4X4NE from the TKS2.
Keri Systems Access Controller Position Chart for the Following Models:
| Keri Systems Board | Pem Mounting |
| NXT-2D-MSCNE, NXT-4D-MSCNE | A |
| NXT-4X4NE | B |

Network Communication Module
LINQ2 provides remote IP access to real-time data from eFlow power supply/chargers to help keep systems up and running at optimal levels. It facilitates fast and easy installation and set-up, minimizes system downtime, and eliminates unnecessary service calls, which helps reduce Total Cost of Ownership (TCO) – as well as creat-ing a new source of Recurring Monthly Revenue (RMR).
Features
- UL Listed in the U.S. and Canada.
- Local or remote control of up to (2) two Altronix eFlow power output(s) via LAN and/or WAN.
- Monitor real time diagnostics: DC output voltage, output current, AC & battery status/service, input trigger state change, output state change and unit temperature.
- Access control and user managment: Restrict read/write, Restrict users to specific resources
- Two (2) integral network controlled Form “C” Relays.
- Three (3) programmable input triggers: Control relays and power supplies via external hardware sources.
- Email and Windows Dashboard notifications
- Event log tracks history.
- Secure Socket Layer (SSL).
- Programmable via USB or web browser – includes operating software and 6 ft. USB cable.
LINQ2 Mounts Inside any Trove Enclosure
Enclosure Dimensions (H x W x D approximate):
27.25” x 21.75” x 6.5” (692.2mm x 552.5mm x 165.1mm)
web site: www.altronix.com | e-mail: [email protected] | Lifetime Warranty IITrove Keri Systems Kits






















