T2MK74 Altronix Mercury Kits
Installation Guide
Models Include:
T2MK74
4 Door Kit with Fused Outputs
Fully assembled kit includes:
- Trove2 enclosure with TM2 Altronix/Mercury backplane
- (1) AL1024ULXB2 – Power Supply/Charger
- (1) ACM4 – Fused Access Power Controller
- (1) PD8UL – Fused Power Distribution Module
- (1) RSB1 – Rocker Switch Bracket with One (1) Rocker Switch
T2MK74D
4 Door Kit with PTC Outputs
Fully assembled kit includes:
- Trove2 enclosure with TM2 Altronix/Mercury backplane
- (1) AL1024ULXB2 – Power Supply/Charger
- (1) ACM4CB – PTC Access Power Controller
- (1) PD8ULCB – PTC Power Distribution Module
- (1) RSB1 – Rocker Switch Bracket with One (1) Rocker Switch
All components of these Trove kits are UL Listed as sub-assemblies.
Please refer to the included corresponding Sub-Assembly Installation Guides for further information.
Installation Guide
More than just power.™
All registered trademarks are the property of their respective owners.
Rev. 011922
Installing Company: _________________________ Service Rep. Name: __________________________________________
Address: _________________________________________________________ Phone #: _________________________
Overview:
Altronix Trove Mercury kits are pre-assembled and consist of Trove2M2 enclosure/backplane with factory-installed Altronix power supply/charger and sub-assemblies. These kits also accommodate various combinations of Mercury boards for up to four (4) doors in a single enclosure.
Configuration Chart:
| Altronix Model Number | 115VAC 60Hz Input Current (A) | Power Supply Board Input Fuse Rating | Power Supply Board Battery Fuse Rating | Nominal DC Output Voltage Range (v) | Maximum Supply Current for Main Output on the Power Supply board and ACM4(CB) Access Power Controller’s outputs (A) | Fail-Safe/ Fail-Secure or Dry Form “C” Outputs | Fail-Safe/ Fail-Secure Outputs (auto- resettable) | Current Per ACM4 Output (A) | Current Per ACM4CB Output (A) | ACM4(CB) Board Input Fuse Rating | ACM8 Board Output Fuse Rating | ACM8CB Board Output PTC Rating |
| T2MK74 | 4. | 5A/ 250V | N/A | 20.19-26.4 | 24VDC @ 9.7A | 4 | — | 2.5 | – | 1500VA/ 2 | 2.5A | — |
| T2MK74D | 4. | 5A/ 250V | 15A/ 32V | 20.17- 26.4 | 24VDC @ 9.7A | – | 4 | — | 2.0 | 10A/ 250V | — | 2A |
Installation Instructions:
Wiring methods shall be in accordance with the National Electrical Code/NFPA 70/ANSI and with all local codes and authorities having jurisdiction.
The product is intended for indoor use only.
- Remove the backplane from the enclosure. Do not discard hardware.
- Mark and predrill holes in the wall to line up with the top three keyholes in the enclosure. Install three upper fasteners and screws in the wall with the screw heads protruding. Place the enclosure’s upper keyholes over the three upper screws, level, and secure.
Mark the position of the lower three holes. Remove the enclosure. Drill the lower holes and install the three fasteners.
Place the enclosure’s upper keyholes over the three upper screws. Install the three lower screws and make sure to tighten all screws. - Mount included UL Listed tamper switch (Altronix Model TS112 or equivalent) in the desired location, opposite hinge. Slide the tamper switch bracket onto the edge of the enclosure approximately 2” from the right side (Fig. 1, pg. 2).
Connect tamper switch wiring to the Access Control Panel input or the appropriate UL Listed reporting device. To activate the alarm signal open the door of the enclosure.
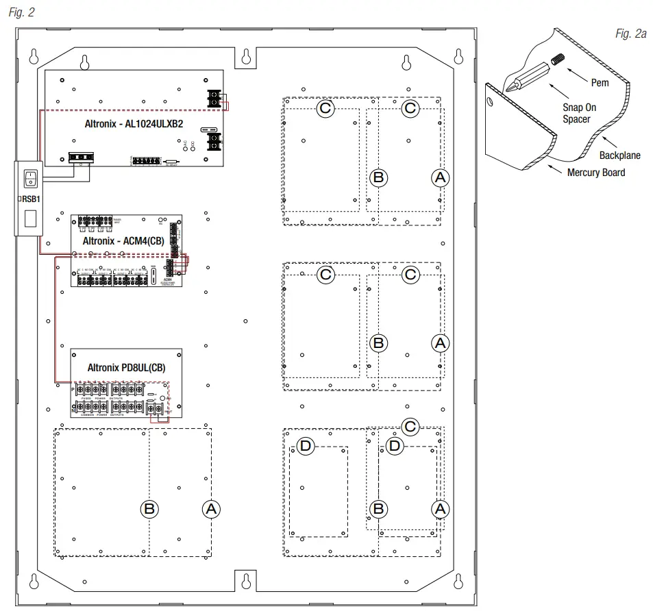
- Mount Mercury boards to the backplane, refer to page 3.
- Refer to the ULXB Power Supply/Charger Installation Guide for AL1024ULXB2 and Sub-Assembly Installation Guide for ACM4(CB) and PD8UL(CB) for further installation instructions.
Hardware:

T2MK74(D) Configuration of Mercury Boards:
- Fasten snap-on spacers onto metal pens configuration (A), (B), (C) or (D) of the backplane depending on the access controller (Fig. 2, pg. 3).
- Position the access controller module over corresponding spacers and depress it onto snap-on spacers (Fig. 2a, pg. 3).
- Mount the backplane to the enclosure with hardware.
Access Controller Position Chart for the Following Models:
| Mercury Access Controller | Pem Mounting |
| EP1502, MR52, MR16IN, MR16OUT | A |
| EP2500, MUX8 | B |
| EP1501, MR51e | C |
| MR50 | D |

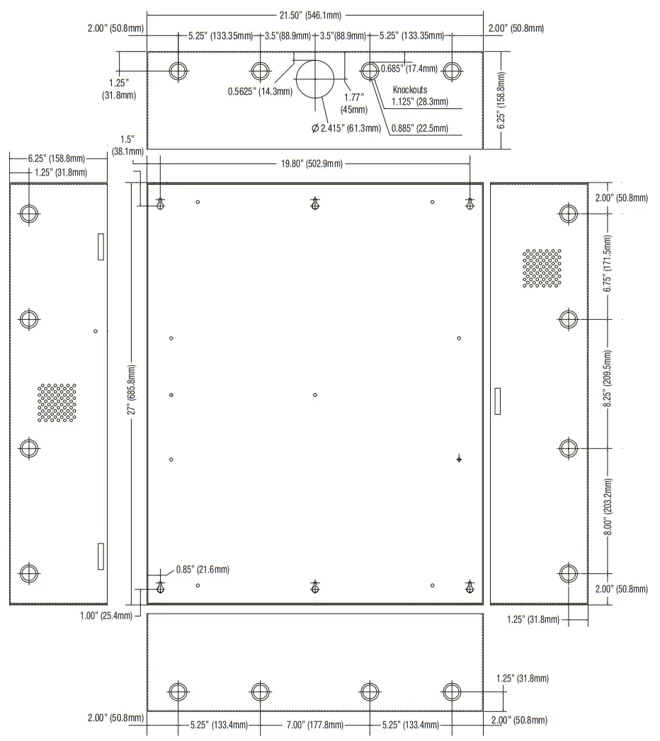
Enclosure Dimensions (H x W x D approximate):
27.25” x 21.5” x 6.5” (692.2mm x 552.5mm x 165.1mm)

Altronix is not responsible for any typographical errors.
––––––––––––––––––––––––––––––––––––––––––––––––––––––––––––––––––––––––––––––––
140 58th Street, Brooklyn, New York 11220 USA | phone: 718-567-8181 | fax: 718-567-9056
web site: www.altronix.com | e-mail: [email protected] | Lifetime Warranty
IIT2MK74(D) A19V




















