Altronix TROVE Access and Power Integration Mercury Kits with Fused Outputs

Overview
Altronix Trove Mercury kits are pre-assembled and consist of a Trove2M2 enclosure with factory-installed Altronix power supply/charger(s) and sub-assemblies. These kits also accommodate various combinations of Mercury boards for up to sixteen (16) doors in a single enclosure.
Configuration Chart
|
Altronix Model Number | 115VAC 60Hz Input Current (A) | Power Supply Board Input Fuse Rating | Power Supply Board Battery Fuse Rating | Output Voltage Options |
Maximum Supply Current for Main and Aux. Outputs on Power Supply board and ACM4/ACM8 Access Power Controller’s outputs | Fail-Safe/Fail-Secure Outputs | Current Per ACM4/ACM8 Output (A) | ACM4/ACM8 Board Input Fuse Rating | ACM4/ACM8 Board Output PFuse Rating | PDS8 Board Input Fuse Rating | PDS8 Board Output Fuse Rating | PD8UL/PD16W Board Output Fuse Rating | |
|
Power Supply 1 |
Power Supply 2 | ||||||||||||
| T2MK34 | 3.5 | 5A/ 250V | N/A | 12VDC @ 5.7A | – | 24VDC @ 5.7A | 4 | 2.5 | 10A/ 250V | 3A/ 32V | 10A/ 250V | 3A/ 32V | – |
| 24VDC @ 5.5A | |||||||||||||
| T2MK38 | 3.5 | 5A/ 250V | N/A | 12VDC @ 5.7A | – | 24VDC @ 5.7A | 8 | 2.5 | 10A/ 250V | 3.5A/ 250V | 10A/ 250V | 3A/ 32V | – |
| 24VDC @ 5.5A | |||||||||||||
| T2MK78 | 4.2 | 5A/ 250V | 15A/ 32V | 24VDC @ 9.5A | – | 24VDC @ 9.5A | 8 | 2.5 | 10A/ 250V | 3.5A/ 250V | 10A/ 250V | 3A/ 32V | – |
| T2MK7516 | 6.8 | 5A/ 250V | 15A/ 32V | 12VDC @ 9.5A | 24VDC @ 9.5A | 12VDC @ 9.3A 24VDC @ 9.5A | 16 | 2.5 | 10A/ 250V | 3.5A/ 250V | – | – | 3.5A/ 250V |
| T2MK7716 | 8.4 | 5A/ 250V | 15A/ 32V | 24VDC @ 9.5A | 24VDC @ 9.5A | 24VDC @ 9.5A | 16 | 2.5 | 10A/ 250V | 3.5A/ 250V | 10A/ 250V | 3A/ 32V | – |
Installation Instructions
Wiring methods shall be in accordance with the National Electrical Code/NFPA 70/ANSI, and with all local codes and authorities having jurisdiction. The product is intended for indoor use only.
- Remove the backplane(s) from the enclosure. Do not discard hardware.
- Mark and predrill holes in the wall to line up with the top three keyholes in the enclosure. Install three upper fasteners and screws in the wall with the screw heads protruding. Place the enclosure’s upper keyholes over the three upper screws, level and secure. Mark the position of the lower three holes. Remove the enclosure. Drill the lower holes and install the three fasteners. Place the enclosure’s upper keyholes over the three upper screws. Install the three lower screws and make sure to tighten all screws.
- Mount included UL Listed tamper switch (Altronix Model TS112 or equivalent) in the desired location, opposite hinge. Slide the tamper switch bracket onto the edge of the enclosure approximately 2” from the right side (Fig. 1,). Connect the tamper switch wiring to the Access Control Panel input or the appropriate UL Listed reporting device. To activate the alarm signal open the door of the enclosure.
- Refer to the ULXB Power Supply/Charger Installation Guide for AL600ULXB, AL1012ULXB, and AL1024ULXB2 and
Sub-Assembly Installation Guide for the following models: ACM4, ACM8, PDS8, and VR6 for
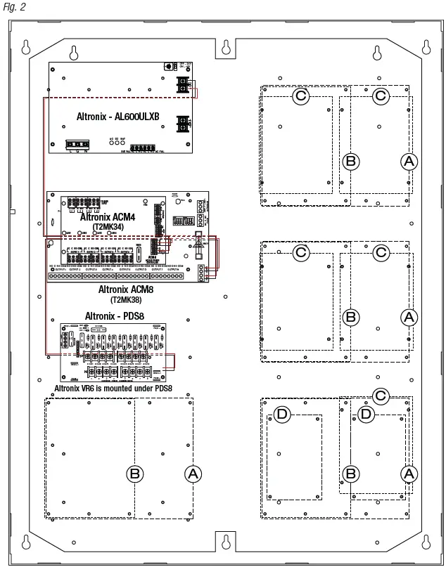
further installation instructions. - Fasten snap-on spacers onto the metal pens configuration of the backplane depending on the Mercury access controller (Fig. 2-5,).
- Position the Mercury access controller module over corresponding spacers and depress it onto snap-on spacers (Fig. 2-5,).
- Mount the backplane to the enclosure with hardware.

T2MK34 and T2MK38 Configuration of Mercury Boards:
- Fasten snap-on spacers onto metal pens configuration (A), (B), (C) or (D) of the backplane depending on the access controller (Fig. 2, pg. 3).
- Position the access controller module over corresponding spacers and depress it onto snap-on spacers (Fig. 2a, pg. 3).
- Mount the backplane to the enclosure with hardware.
Access Controller Position Chart for the Following Models
| Mercury Access Controller | Pem Mounting |
| EP1502, MR52, MR16IN, MR16OUT | A |
| EP2500, MUX8 | B |
| EP1501, MR51e | C |
| MR50 | D |


T2MK78: Configuration of Mercury Boards:
- Fasten snap-on spacers onto metal pens configuration (A), (B), (C) or (D) of the backplane depending on the access controller (Fig. 3,).
- Position the access controller module over corresponding spacers and depress it onto snap-on spacers (Fig. 3a,).
- Mount the backplane to the enclosure with hardware.
Access Controller Position Chart for the Following Models:
| Mercury Access Controller | Pem Mounting |
| EP1502, MR52, MR16IN, MR16OUT | A |
| EP2500, MUX8 | B |
| EP1501, MR51e | C |
| MR50 | D |


T2MK7516: Configuration of Mercury Boards:
- Fasten snap-on spacers onto metal pens configuration (A), (B), (C) or (D) of the backplane depending on the access controller (Fig. 4,).
- Position the access controller module over corresponding spacers and depress it onto snap-on spacers (Fig. 4a,).
- Mount the backplane to the enclosure with hardware.
Access Controller Position Chart for the Following Models:
| Mercury Access Controller | Pem Mounting |
| EP1502, MR52, MR16IN, MR16OUT | A |
| EP2500, MUX8 | B |
| EP1501, MR51e | C |
| MR50 | D |


T2MK7716: Configuration of Mercury Boards:
- Fasten snap-on spacers onto metal pens configuration (A), (B), (C) or (D) of the backplane depending on the access controller (Fig. 5).
- Position the access controller module over corresponding spacers and depress it onto snap-on spacers (Fig. 5a).
- Mount the backplane to the enclosure with hardware.
Access Controller Position Chart for the Following Models:
| Mercury Access Controller | Pem Mounting |
| EP1502, MR52, MR16IN, MR16OUT | A |
| EP2500, MUX8 | B |
| EP1501, MR51e | C |
| MR50 | D |


TMV2 (T2MK7516 and T2MK7716):
TMV2 accommodates a variety of Mercury boards with or without Altronix sub-assemblies for access systems.
Configuration of Mercury and/or Altronix Boards
Mercury Access Controllers:
- Fasten spacers onto metal pens configuration (A) (B) of the backplane depending on the access controller (Fig. 6).
- Position the access controller module over corresponding spacers and depress it onto snap-on spacers (Fig. 6a).
- Mount the backplane to the enclosure with hardware.
Altronix Sub-Assemblies and/or Adapters:
- Fasten spacers to pems which match the hole pattern (C) for Altronix Sub-Assemblies (Fig. 6, 6a).
- Mount boards to spacers utilizing pan head screws provided with the product (Fig. 6).
Access Controller Position Chart for the Following Models:
| Mercury | |
| Access Controller | Pem Mounting |
| EP1502, MR52, MR16IN, MR16OUT | A |
| EP2500, MUX8 | B |
| Altronix | |
| Sub-Assembly or Adapter | Pem Mounting |
| ACM4(CB), MOM5, PD4UL(CB), PD8UL(CB), PDS8(CB), VR6, GB1 (Genetec Synergis Cloud Link adapter plate) | C |
Dimensions
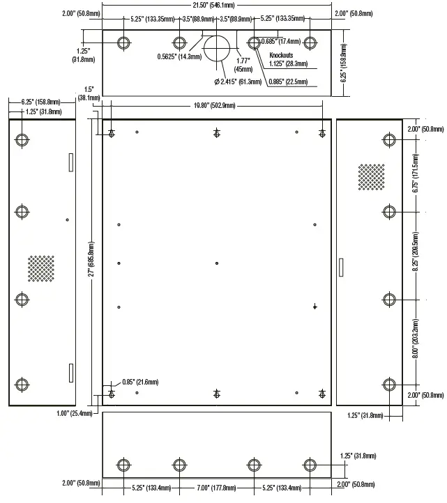
Enclosure Dimensions (H x W x D approximate):
27.25” x 21.5” x 6.5” (692.2mm x 552.5mm x 165.1mm)
Altronix is not responsible for any typographical errors. 140 58th Street, Brooklyn, New York 11220 USA | phone: 718-567-8181 | fax: 718-567-9056. web site: www.altronix.com | e-mail: [email protected] | Lifetime Warranty IITrove2/Mercury ULXB Fused Kits.




















