Altronix TROVE TM250 Access and Power Integration Installation Guide
Overview:
Altronix TM250 accommodates various combinations of Mercury EP1501 or MR51e boards with or without Altronix power supply for access systems. It features ample knockouts that are suitable for 0.75” and 1” conduit.
Specifications
Agency Listings:
- CE European Conformity.
Features
- 16 AWG powder coated steel enclosure with a single 2” center knockout on the top of the enclosure plus twelve (12) double knockouts (accommodate 0.75” and 1” conduit).
- Accommodates one (1) 12VDC/4AH battery.
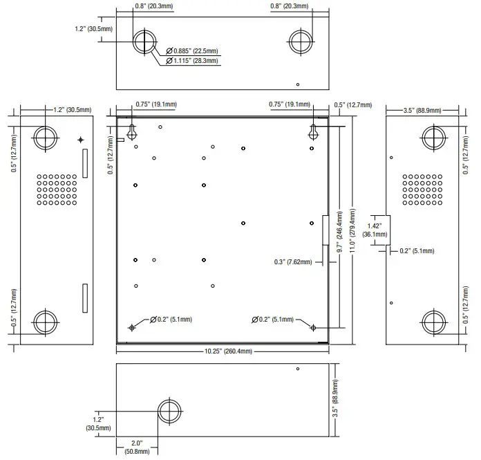
- Dimensions (H x W x D): 11.0” x 10.25” x 3.5” (279.4mm x 260.4mm x 88.9mm).
- Includes tamper switch (Altronix Model TS112 or equivalent), cam lock and mounting hardware.
Enclosure Accommodates a Combination of the Following:
Altronix:
- One (1) Altronix eFlow or Tango power supply/charger.
Mercury:
- Up to two (2) EP1501 or MR51e.
Hardware and Accessories:
Spacer![]()
5/16” Pan Head Screw
Sub-Assembly Position Chart for the Following Models
| Sub-Assembly | Pem Mounting |
| Altronix eFlow or Tango1B power supply | A |
| Mercury EP1501, MR51e | B |
Fig. 2 – TM250 Configurations



TM250 Enclosure Dimensions
11.0” x 10.25” x 3.5” (279.4mm x 260.4mm x 88.9mm)

Altronix is not responsible for any typographical errors.140 58th Street, Brooklyn, New York 11220 USA | phone: 718-567-8181 | fax: 718-567-9056
website: www.altronix.com |
e-mail: [email protected]




















