
T2HWK78 Access and Power Integration Kit
Installation Guide
T2HWK78 Access and Power Integration Kit
Altronix/Honeywell ProWatch/WinPak Kits
Models Include: T2HWK78
8 Door Kit with Fused Outputs
Fully assembled kit includes:
- Trove2 enclosure with THW2 Altronix/Honeywell backplane
- One (1) AL1024ULXB2 – Power Supply/Charger
- One (1) ACM8 – Fused Access Power Controller
- One (1) VR6 – Voltage Regulator
- One (1) PDS8 – Dual Input Fused Power Distribution Module
T3HWK7516
16 Door Kit with Fused Outputs
Fully assembled kit includes:
- Trove3 enclosure with THW3 Altronix/Honeywell backplane and THWD2 Honeywell door backplane
- One (1) AL1024ULXB2 – Power Supply/Charger
- One (1) AL1012ULXB – Power Supply/Charger
- Two (2) ACM8 – Fused Access Power Controllers
- One (1) PD8UL – Fused Power Distribution Module
- One (1) RSB2* – Rocker Switch Bracket with Two (2) Rocker Switches (Not evaluated by UL)
T2HWK78D
8 Door Kit with PTC Outputs
Fully assembled kit includes:
- Trove2 enclosure with THW2 Altronix/Honeywell backplane
- One (1) AL1024ULXB2 – Power Supply/Charger
- One (1) ACM8CB – PTC Access Power Controller
- One (1) VR6 – Voltage Regulator
- One (1) PDS8CB – Dual Input PTC Power Distribution Module
T3HWK7516D
16 Door Kit with PTC Outputs
Fully assembled kit includes:
- Trove3 enclosure with THW3 Altronix/Honeywell backplane and THWD2 Honeywell door backplane
- One (1) AL1024ULXB2 – Power Supply/Charger
- One (1) AL1012ULXB – Power Supply/Charger
- Two (2) ACM8CB – PTC Access Power Controllers
- One (1) PD8ULCB – PTC Power Distribution Module
- One (1) RSB2* – Rocker Switch Bracket with Two (2) Rocker Switches (Not evaluated by UL)
All components of these Trove kits are UL Listed sub-assemblies.
Please refer to the included corresponding Sub-Assembly Installation Guides for further information.
Overview:
Altronix Trove Honeywell kits are pre-assembled and consist of Trove enclosures/backplanes with factory installed Altronix power supply/chargers and sub-assemblies.
All kits accommodate a variety of Honeywell modules for up to eight (T2HWK78(D)) or sixteen (T3HWK7516(D)) doors in a single enclosure.
Configuration Chart:
| Altronix Model Number | 115VAC 60Hz Input Current(A) | Power Supply Board Input Fuse Rating | Power Supply Board Battery Fuse Rating | Maximum Supply Current for Main Outputs on Power Supply board and ACM8(CB) Access Power Controllers’ outputs | Nominal DC Output Voltage Range (VDC) | Fail-afe/ Fail-Secure or Dry Form“C” Outputs | Additional Fused (PTC) Outputs | ACM8(CB) Board Input Fuse Rating | ACM8(CB) Board Output Fuse (PTC) Rating | PDS8(CB) Board Input Fuse (PTC) Rating | PDS8(CB) Board Output Fuse(PTC) Rating | PD8UL(CB) Board Output Fuse (PTC) Rating |
| T2HWK78 | 4.2 | 5A/250V | 15A/32V | 24VDC @ 9.7A | 20.17-6.4 | 8 | 8 | 10A/250V | 2.5A/250V | 10A/32V | 3A/32V | – |
| T2HWK78D | 2.5A | 9A | 2.5A | – | ||||||||
| T3HWK7516 | 6.9 | 15A/32V | 24VDC @ 9.4A | 20.17-26.4 | 16 | 8 | 10A/250V | 2.5A/250V | – | – | 3.5A/250V | |
| T3HWK7516D | 12VDC@10A | 9.7-13.2 | 2.5A | 2.5A |
Installation Instructions:
Installation Instructions:
Wiring methods shall be in accordance with the National Electrical Code/NFPA 70/ANSI, and with all local codes and authorities having jurisdiction.
Product is intended for indoor use only.
- Remove backplane from enclosure. Do not discard hardware.
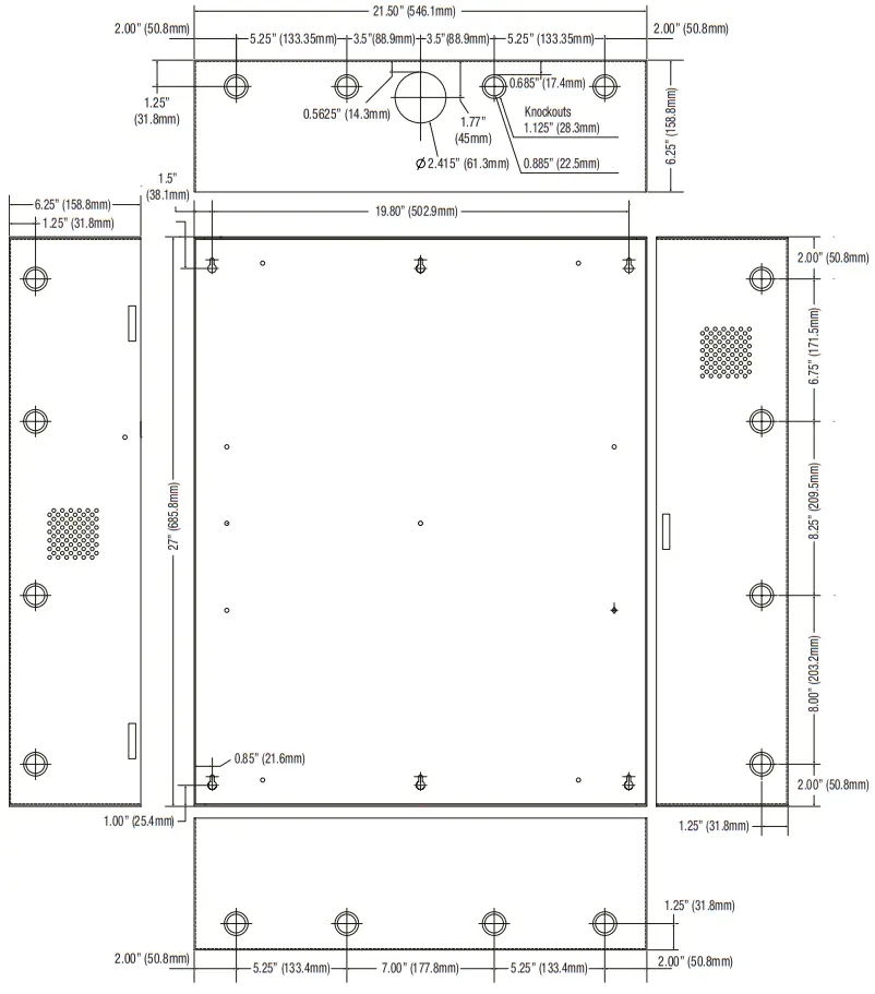
If your application requires a raised backplane, re-mount it using metal spacers and screws (provided). - Mark and predrill holes in the wall to line up with the top two/three keyholes in the enclosure. Install two/three upper fasteners and screws in the wall with the screw heads protruding. Place the enclosure’s upper keyholes over the two/three upper screws; level and secure. Mark the position of the lower three holes. Remove the enclosure. Drill the lower holes and install the three fasteners. Place the enclosure’s upper keyholes over the two/three upper screws. Install the three lower screws and make sure to tighten all screws.
- Mount included UL Listed tamper switch (Altronix Model TS112 or equivalent) in desired location, opposite hinge. Slide the tamper switch bracket onto the edge of the enclosure approximately 2” from the right side (Fig. 1, pg. 2).
Connect tamper switch wiring to the Access Control Panel input or the appropriate UL Listed reporting device. To activate alarm signal open the door of the enclosure. - Mount Honeywell modules to backplane(s), refer to pages 3, 4, 5.
- Refer to the ULXB Power Supply/Charger Installation Guide for AL1024ULXB2 and AL1012ULXB and corresponding Sub-Assembly Installation Guides for ACM8(CB), PDS8(CB), VR6 and PD8UL(CB) for further installation instructions.
Hardware:
T2HWK78(D): Installation Instructions for Honeywell Access Controllers
- Fasten spacers (provided) into pem configuration (A) or (B) of backplane (Fig. 2, pg. 3).
- Mount boards to spacers utilizing 5/16” pan head screws (provided) (Fig. 2a, pg. 3).
- Mount backplane to enclosure with hardware.
Honeywell ProWatch/WinPak Access Controller Position Chart for the Following Models:
| Honeywell Board | Pem Mounting |
| 3200 Series or WIN-PAK Series | A |
| PW6K1ICE or PW6K1R1E | B |
T3HWK7516(D): Installation Instructions for Honeywell Access Controllers
- Fasten spacers (provided) into pem configuration (A) or (B) of backplane (Fig. 3, pg. 4).
- Mount boards to spacers utilizing 5/16” pan head screws (provided) (Fig. 3a, pg. 4).
- Mount backplane to enclosure with hardware.
Honeywell ProWatch/WinPak Access Controller Position Chart for the Following Models:
| Honeywell Board | Pem Mounting |
| 3200 Series or WIN-PAK Series | A |
| PRO22MX8 | B |

T3HWK7516(D):
THWD2 (Door Backplane) Configuration of Honeywell ProWatch/WinPak Boards:
Honeywell ProWatch/WinPak Access Controllers:
- Fasten spacers (provided) into pem configuration (A) or (B) of backplane (Fig. 4, pg. 5).
- Mount boards to spacers utilizing 5/16” pan head screws (provided) (Fig. 4a, pg. 5).
- Mount backplane to enclosure with hardware.
Honeywell ProWatch/WinPak Access Controller Position Chart for the Following Models:
| Honeywell Board | Pem Mounting |
| 3200 Series or WIN-PAK Series | A |
| PRO22MX8 | B |
Notes:
T2HWK78(D) (Trove2) Enclosure Dimensions (H x W x D approximate): 27.25” x 21.75” x 6.5” (692.2mm x 552.5mm x 165.1mm)
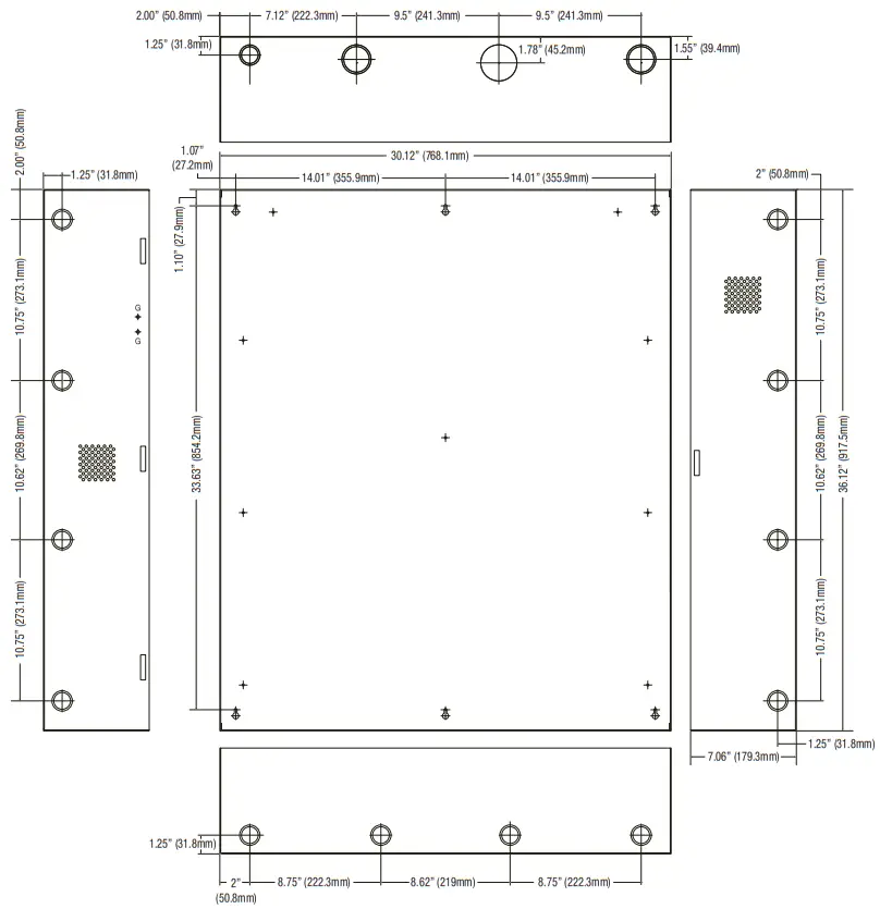
T3HWK7516(D) (Trove3) Enclosure Dimensions (H x W x D approximate): 36.12” x 30.125” x 7.06” (917.5mm x 768.1mm x 179.3mm)
Altronix is not responsible for any typographical errors.
140 58th Street, Brooklyn, New York 11220 USA | phone: 718-567-8181 | fax: 718-567-9056
web site: www.altronix.com
e-mail: [email protected]
Lifetime Warranty
IITrove Honeywell ULXB Kits
D06V
More than just power.™
All registered trademarks are property of their respective owners.
Rev. THWLK_040622
Installing Company: _____ Service Rep. Name: ______
Address: ________________ Phone #: ____



















