Altronix Access and Power Integration

Access & Power Integration
Altronix/Software House Kits
Models Include: T2SK7F8D
8 Door Kit with PTC Outputs
Fully assembled kit includes:
– Trove2 enclosure with
TSH2 Altronix/Software House backplane
– One (1) eFlow104NB – Power Supply/Charger
– One (1) ACM8CB – PTC Protected Access Power Controller
– One (1) VR6 – Voltage Regulator
– One (1) PDS8CB – Dual Input Power Distribution Module
– One (1) Rocker Switch Bracket with One (1) Rocker Switch
(Not evaluated by UL)
T3SK75F8D
8 Door Kit with PTC Outputs
Fully assembled kit includes:
– Trove3 enclosure with
TSH3 Altronix/Software House backplane
– One (1) eFlow104NB – Power Supply/Charger
– One (1) eFlow102NB – Power Supply/Charger
– One (1) ACM8CB – PTC Protected Access Power Controller
– One (1) PD8ULCB – PTC Protected Power Distribution Module
– One (1) Rocker Switch Bracket with Two (2) Rocker Switches
(Not evaluated by UL)
T3SK75F16D
16 Door Kit with PTC Outputs
Fully assembled kit includes:
– Trove3 enclosure with
TSH3 Altronix/Software House backplane
– One (1) eFlow104NB – Power Supply/Charger
– One (1) eFlow102NB – Power Supply/Charger
– Two (2) ACM8CB – PTC Protected Access Power Controllers
– One (1) PD8ULCB – PTC Protected Power Distribution Module
– One (1) Rocker Switch Bracket with Two (2) Rocker Switches
(Not evaluated by UL)
All components of these Trove kits are UL Listed sub-assemblies.
Please refer to the included corresponding Sub-Assembly Installation Guides for further information.
Installation Guide
All registered trademarks are property of their respective owners.
Rev. TSKD110817
Installing Company:
Service Rep.
Name:
Address:
Phone #:
Overview:
Altronix Trove Software House kits are pre-assembled and consist of Trove enclosure with factory installed Altronix power supply/chargers and
sub-assemblies. These kits also accommodate various combinations of Software House boards for up to sixteen (16) doors in a single enclosure.
Configuration Chart:

Hardware and Accessories:
Metal or Nylon Spacer |
5/16” Pan Head Screw |
Lock Nut
- Nylon spacers – eighteen (18) for T2SK7F8D, forty-six (46) for T3SK75F8D or T3SK75F16D.
- 5/16” pan head screws – eighteen (18) for T2SK7F8D, forty-six (46) for T3SK75F8D or T3SK75F16D.
- Tamper switch (Altronix Model TS112 or equivalent) – one (1) for T2SK7F8D, two (2) for T3SK75F8D or T3SK75F16D.
- Cam lock.
- Battery leads.
Installation Instructions:
Wiring methods shall be in accordance with the National Electrical Code/NFPA 70/ANSI, and with all local codes and authorities having jurisdiction.
Product is intended for indoor use only.
Remove backplane from enclosure. Do not discard hardware.- Mark and predrill holes in the wall to line up with the top three keyholes in the enclosure. Install three upper fasteners and screws in the wall with the screw heads protruding. Place the enclosure’s upper keyholes over the three upper screws, level and secure. Mark the position of the lower three holes. Remove the enclosure. Drill the lower holes and install the three fasteners. Place the enclosure’s upper keyholes over the three upper screws. Install the three lower screws and make sure to tighten all screws.
- Mount included UL Listed tamper switch (Altronix Model TS112 or equivalent) in desired location, opposite hinge. Slide the tamper switch bracket onto the edge of the enclosure approximately 2” from the right side (Fig. 1, pg. 2). Connect tamper switch wiring to the Access Control Panel input or the appropriate UL Listed reporting device. To activate alarm signal open the door of the enclosure.
- Mount Software House boards to backplane, refer to pages 3-8.
- Refer to the corresponding eFlow Power Supply/Charger Installation Guide (eFlow104NB, eFlow102NB) and corresponding Sub-Assembly Installation Guides for the following models: PD8ULCB, ACM8(CB), PDS8(CB), VR6 for further installation instructions.
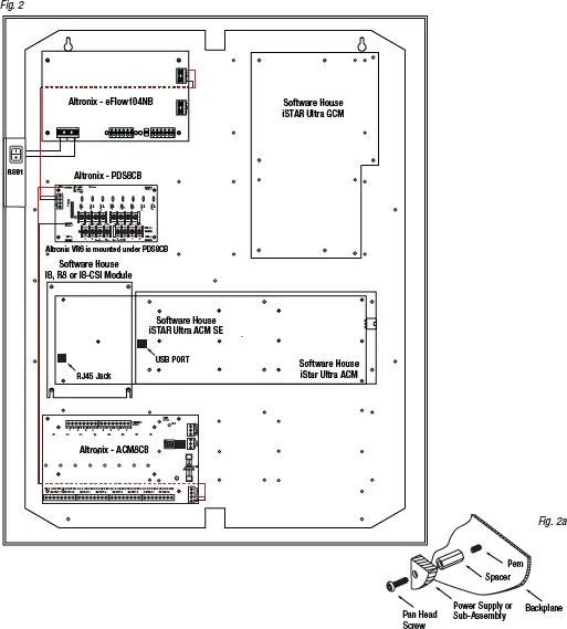
T2SK7F8D: Configuration of Software House iSTAR Ultra Boards
- Align the Software House boards on the backplane to match the boards’ mounting holes with corresponding pems.
- Fasten spacers (provided) to pems that match the hole pattern for Software House iSTAR Ultra GCM, iSTAR Ultra ACM, and /or I8, R8, I8-CSI boards (Fig. 2, 2a, pg. 3).
- Mount Software House boards to spacers utilizing provided 5/16” pan head screws (Fig. 2a, pg. 3).
Note: Software House iSTAR Ultra ACM boards have one (1) USB port each.
Please orient the board in the appropriate position according to the Fig. 2 below. - Fasten backplane to Trove2 enclosure utilizing lock nuts (provided).

Trove Software House (PTC) Kits Installation Guide
T2SK7F8D: Configuration of Software House iSTAR Pro Boards
- Align the Software House boards on the backplane to match the boards’ mounting holes with corresponding pems.
- Fasten provided spacers to pems that match the hole pattern for Software House iSTAR Pro GCM, iSTAR ACM SE/PRO ACM, and /or I8,
R8, I8-CSI boards (Fig. 3, 3a, pg. 4). - Mount Software House boards to spacers utilizing provided 5/16” pan head screws (Fig. 3a, pg. 4).
Note: Software House iSTAR ACM SE/PRO ACM boards have one (1) USB port each.
Please orient boards in the appropriate position according to the Fig. 3 below. - Fasten backplane to Trove2 enclosure utilizing lock nuts (provided).
Fig. 3

T3SK75F8D or T3SK75F16D: Configuration of Software House iSTAR Ultra Boards
- Align the Software House boards on the backplane to match the boards’ mounting holes with pems provided.
- Fasten spacers (provided) to pems that match the hole pattern for Software House iSTAR Ultra GCM, iSTAR Ultra ACM, and /or I8, R8, I8-CSI
boards (Fig. 4, 4a, pg. 5). - Mount Software House boards to spacers utilizing provided 5/16” pan head screws (Fig. 4a, pg. 5).
Note: Software House iSTAR Ultra ACM boards have one (1) USB port each.
Please orient the board in the appropriate position according to the Fig. 4 below. - Fasten backplane to Trove3 enclosure utilizing lock nuts (provided).
Fig. 4

T3SK75F8D or T3SK75F16D: Configuration of Software House iSTAR Pro Boards
- Align the Software House boards on the backplane to match the boards’ mounting holes with pems provided.
- Fasten provided spacers to pems that match the hole pattern for Software House iSTAR Pro GCM, iSTAR ACM SE/PRO ACM, and /or I8,
R8, I8-CSI boards (Fig. 5, 5a, pg. 6). - Mount Software House boards to spacers utilizing provided 5/16” pan head screws (Fig. 5a, pg. 6).
Note: Software House iSTAR ACM SE/PRO ACM boards have one (1) USB port each.
Please orient the board in the appropriate position according to the Fig. 5 below. - Fasten backplane to Trove3 enclosure utilizing lock nuts (provided).
Fig. 5

T2SK7F8D
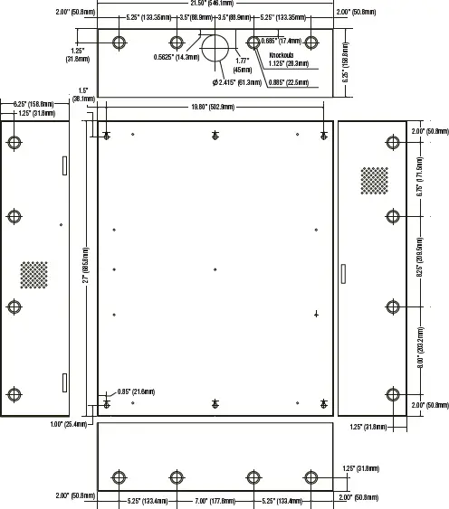
Enclosure Dimensions (H x W x D approximate):
27.25” x 21.5” x 6.5” (692.2mm x 552.5mm x 165.1mm)

T3SK75F8D and T3SK75F16D Enclosure Dimensions (H x W x D approximate):
36.12” x 30.125” x 7.06” (917.5mm x 768.1mm x 179.3mm)

Altronix is not responsible for any typographical errors.
––––––––––––––––––––––––––––––––––––––––––––––––––––––––––––––––––––––––––––––––––––––––––––––––––––––––––––––––––––––––––––––––––––––––––––––––––––––––
140 58th Street, Brooklyn, New York 11220 USA | phone: 718-567-8181 | fax: 718-567-9056
web site: www.altronix.com | e-mail: [email protected] | Lifetime Warranty
IITroveSH Kit D Series

Remove backplane from enclosure. Do not discard hardware.


















