More than just power.™
Access & Power Integration
Altronix/HID VertX® Kits
Installation Guide
T3VK75F20 Trove Access and Power Integration
Models Include:
T1VK3F4
4 Door Kit with Fused Outputs
The fully assembled kit includes:
- Trove1 enclosure with TV1 Altronix/HID VertX® backplane
- One (1) eFlow6NB – Power Supply/Charger
- One (1) VR6 – Voltage Regulator
- One (1) PDS8 – Dual Input Fused Power Distribution Module
T2VK7F8
8 Door Kit with Fused Outputs
The fully assembled kit includes:
- Trove2 enclosure with TV2 Altronix/HID VertX® backplane
- One (1) eFlow104NB – Power Supply/Charger
- One (1) ACM8 – Fused Access Power Controller
- One (1) VR6 – Voltage Regulator
- One (1) PDS8 – Dual Input Fused Power Distribution Module
T3VK75F20
20 Door Kit with Fused Outputs
The fully assembled kit includes:
- Trove3 enclosure with TV3 Altronix/HID VertX® backplane
- One (1) eFlow104NB – Power Supply/Charger
- One (1) eFlow102NB – Power Supply/Charger
- Two (2) ACM8 – Fused Access Power Controllers
- One (1) ACM4 – Fused Access Power Controller
- One (1) PD8UL – Fused Power Distribution Module
- One (1) RSB2 – Rocker Switch Bracket with Two (2) Switches (Not evaluated by UL)
All components of these Trove kits are UL Listed as sub-assemblies.
Please refer to the included corresponding Sub-Assembly Installation Guides for further information.
Overview:
Altronix Trove HID VertX® kits are pre-assembled and consist of Trove enclosures/backplanes with factory-installed Altronix power supply/ chargers and sub-assemblies. All kits accommodate a variety of HID VertX® modules for up to four (T1VK3F4), eight (T2VK7F8), or twenty (T3VK75F20) doors in a single enclosure.
Configuration Chart:

Installation Instructions for Trove1, Trove2, Trove3:
Wiring methods shall be in accordance with the National Electrical Code/NFPA 70/ANSI, and with all local codes and authorities having jurisdiction. The product is intended for indoor use only.
- Remove the backplane from the enclosure. Do not discard hardware.
- Mark and predrill holes in the wall to line up with the top two/three keyholes in the enclosure. Install two/three upper fasteners and screws in the wall with the screw heads protruding. Place the enclosure’s upper keyholes over the two/three upper screws, level, and secure. Mark the position of the lower two/three holes. Remove the enclosure. Drill the lower holes and install the two/three fasteners.
Place the enclosure’s upper keyholes over the upper screws. Install the two/three lower screws and make sure to tighten all screws. - Mount included UL Listed tamper switch (Altronix Model TS112 or equivalent) in the desired location, opposite hinge. Slide the tamper switch bracket onto the edge of the enclosure approximately 2” from the right side (Fig. 1, pg. 2). Connect the tamper switch wiring to the Access Control Panel input or the appropriate UL Listed reporting device. To activate the alarm signal open the door of the enclosure.
- Mount HID VertX® modules to the backplane(s), refer to pages 3, 4, and 5.
- Refer to the eFlow Power Supply/Charger Installation Guide for eFlow6NB, eFlow104NB, eFlow102NB, and corresponding Sub-Assembly Installation Guides for ACM4, ACM8, PDS8, VR6, and PD8UL for further installation instructions.
Hardware:
| Nylon Spacer | |
| 7/8” Pan Head Screw | |
| Lock Nut |
Fig. 1
T1VK3F4: Installation Instructions for HID VertX® Access Controllers
- Fasten spacers (provided) onto metal poems configuration (A) of the backplane (Fig. 2, pg. 3).
- Mount HID VertX® modules to spacers utilizing 7/8” pan head screws (provided) (Fig. 2a, pg. 3).
- Fasten backplane to Trove1 enclosure utilizing hardware (provided).
HID VertX® Access Controller Position Chart for the Following Models:
| Sub-Assembly | Pem Mounting |
| V100, V200, V300, V1000, V2000 | A |

T2VK7F8: Installation Instructions for HID VertX® Access Controllers
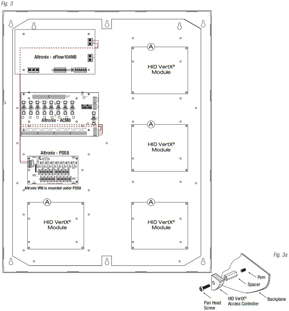
- Fasten spacers (provided) onto metal pens configuration (A) of the backplane (Fig. 3, pg. 4).
- Mount HID VertX® modules to spacers utilizing 7/8” pan head screws (provided) (Fig. 3a, pg. 4).
- Fasten the backplane to the Trove2 enclosure utilizing hardware (provided).
HID VertX® Access Controller Position Chart for the Following Models:
| Sub-Assembly | Pem Mounting |
| V100, V200, V300, V1000, V2000 | A |

T3VK75F20: Installation Instructions for HID VertX® Access Controllers
- Fasten spacers (provided) onto metal pens configuration (A) of the backplane (Fig. 4, pg. 5).
- Mount HID VertX® modules to spacers utilizing 7/8” pan head screws (provided) (Fig. 4a, pg. 5).
- Fasten the backplane to the Trove3 enclosure utilizing hardware (provided).
HID VertX® Access Controller Position Chart for the Following Models:
| Sub-Assembly | Pem Mounting |
| V100, V200, V300, V1000, V2000 | A |

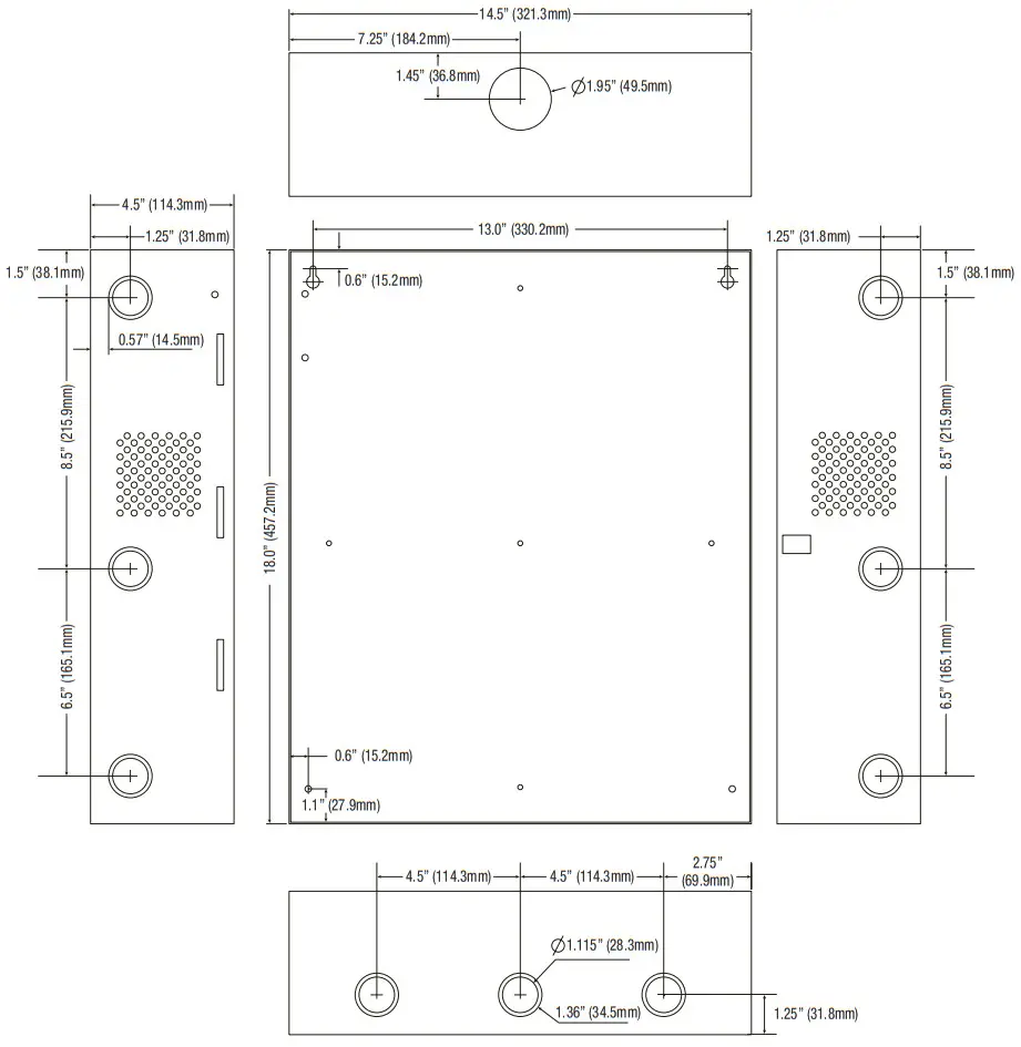
T1VK3F4 (Trove1) Enclosure Dimensions (H x W x D approximate):
18” x 14.5” x 4.625” (457mm x 368mm x 118mm)

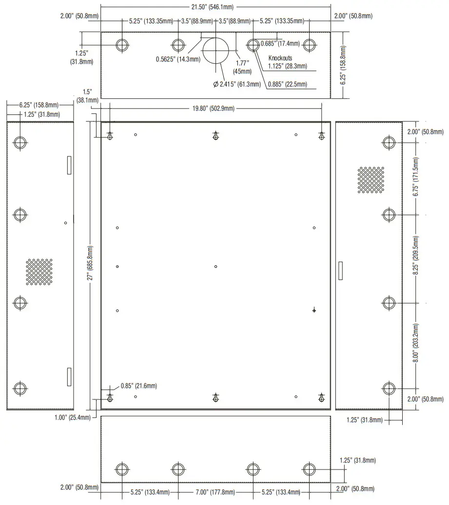
T2VK7F8 (Trove2) Enclosure Dimensions (H x W x D approximate):
27.25” x 21.75” x 6.5” (692.15mm x 546.1mm x 165.1mm)

T3VK75F20 (Trove3) Enclosure Dimensions (H x W x D approximate):
36.12” x 30.125” x 7.06” (917.5mm x 768.1mm x 179.3mm)

All registered trademarks are the property of their respective owners.
Rev. TVK_042519
Installing Company: _________________________ Service Rep. Name: __________________________________________
Address: _________________________________________________________ Phone #: _________________________
Altronix is not responsible for any typographical errors.
140 58th Street, Brooklyn, New York 11220 USA
phone: 718-567-8181
fax: 718-567-9056
web site: www.altronix.com
e-mail: [email protected]
Lifetime Warranty
IITrove HID VertX Kits
J21U



















