More than just power.™
Access & Power Integration
Installation Guide
TROVE2BL2 Trove Access and Power Integration
Trove2BL2
– Trove2 enclosure with universal blank backplane (TBL2)
TBL2
– Universal blank backplane only
Trove3BL3
– Trove3 enclosure with universal blank backplane (TBL3)
TBL3
– Universal blank backplane only
Overview:
Trove2BL2 and Trove3BL3 can be customized to accommodate various combinations of access control and power supply boards and accessories for access control systems. TBL2 and TBL3 backplanes are blank, which allows for ultimate flexibility in configuration.
Specifications:
- 16 Gauge backplane and enclosure with ample knockouts for convenient access.
Trove2BL2
Trove2 enclosure with TBL2 blank backplane
- Includes tamper switch, cam lock, lock nuts, and mounting hardware.
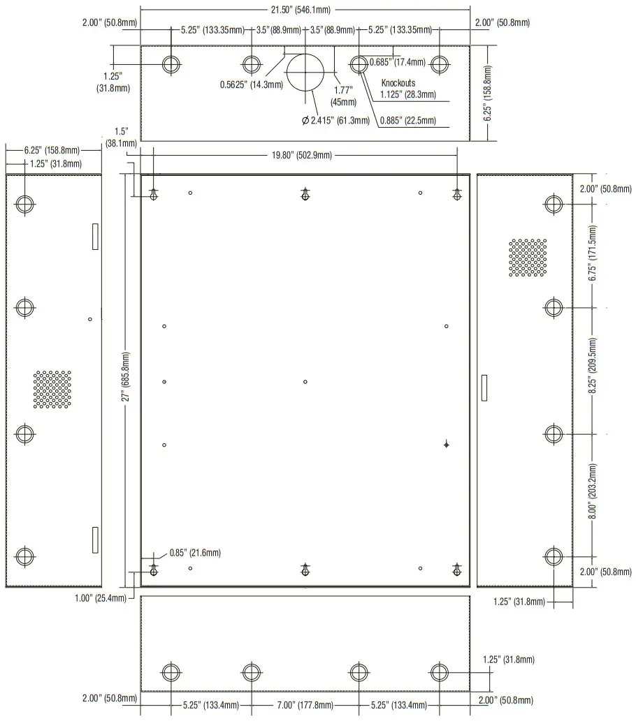
Enclosure Dimensions (H x W x D): 27.25” x 21.75” x 6.5” (692.2mm x 552.5mm x 165.1mm).
TBL2
Blank backplane only
- Includes mounting hardware.
Dimensions (H x W x D): 25.375” x 19.375” x 0.05” (644.5mm x 482.6mm x 1.3mm)
Trove3BL3
Trove3 enclosure with TBL3 blank backplane
- Includes two (2) tamper switches, cam lock, lock nuts, and mounting hardware.
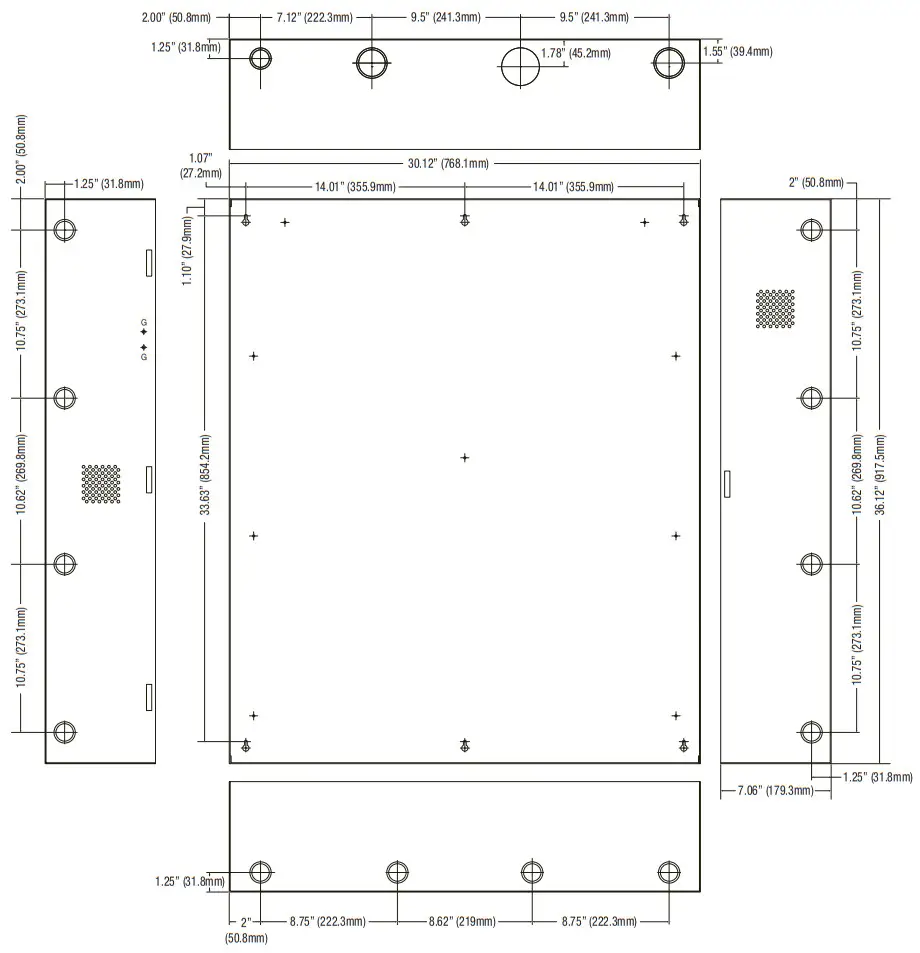
Enclosure Dimensions (H x W x D): 36.12” x 30.125” x 7.06” (917.5mm x 768.1mm x 179.3mm).
TBL3
Blank backplane only
- Includes mounting hardware.
Dimensions (H x W x D): 34” x 28” x 0.05” (863.6mm x 711.2mm x 1.3mm).
Agency Listings:
- UL 294 – 6th edition: Line Security I, Destructive Attack I, Endurance IV, Stand-by Power II*.
* Stand-by Power Level I if no battery is supplied. - This Class B digital apparatus complies with Canadian ICES-003.
Cet appareil numérique de la classe B est conforme á la norme NMB-003 du Canada. - CE European Conformity.
Installation Instructions:
Skip to Step 4 if you have a backplane only.
- Remove the backplane from the enclosure prior to mounting (do not discard hardware).
- Mark and predrill holes on the wall to line up with the top three keyholes in the enclosure. Install three upper fasteners and screws in the wall with the screw heads protruding. Place the enclosure’s upper keyholes over the three upper screws; level and secure.
Mark the position of the lower three holes. Remove the enclosure. Drill the lower holes and install the three fasteners. Place the enclosure’s upper keyholes over the three upper screws. Install the three lower screws and make sure to tighten all screws. - Mount included UL Listed tamper switch(es) (Altronix Model TS112 or equivalent) in the desired location(s), opposite hinge.
Slide the tamper switch bracket onto the edge of the enclosure approximately 2” from the right side (Fig. 1, pg. 2).
Connect tamper switch wiring to the Access Control Panel input or the appropriate UL Listed reporting device.
To activate the alarm signal open the door of the enclosure. - Mount boards and accessories to backplane:
a. Carefully plan the boards’ layout and mark their place(s) on the backplane.
b. Drill the backplane in the marked spots using appropriate tools.
c. Attach mounting hardware for the boards and mount boards according to their specifications. - After all, components are mounted on the backplane and attached to the enclosure using the included hardware.

Access and power integration
Our Trove™ access and power integration solution let you easily combine Altronix power with access controllers and accessories available from the industry’s leading manufacturers. A variety of backplanes offer a wide range of scalable access and power configurations. This solution simplifies board layout and wire management while reducing installation and labor costs. Customize your access control with Trove™.

- Easily combine Altronix power with access controllers and accessories available from the industry’s leading manufacturers.
- Simplifies board layout and wire management.
- Reduces installation time and labor costs.
- Enclosures and backplanes are sold separately.
- Optional door backplane (TMV2) accommodates Mercury and HID VertX.
Trove1:
Enclosure Dimensions: 18”H x 14.5”W x 4.625”D
Accommodates up to two (2) 12VDC/7AH batteries
Backplane Dimensions: 16.625”H x 12.5”W x 0.3125”D
Trove2:
Enclosure Dimensions: 27.25”H x 21.5”W x 6.5”D
Accommodates up to two (2) 12VDC/12AH batteries
Backplane Dimensions: 25.375”H x 19.375”W x 0.3125”D
Trove3:
Enclosure Dimensions: 36.12”H x 30.125”W x 7.06”D
Accommodates up to four (4) 12VDC/12AH batteries
Backplane Dimensions: 34”H x 28”W x 0.3125”D
Visit www.altronix.com for the list of Trove supported manufacturers
Notes:
TBL2 Dimensions
25.375” x 19.375” x 0.325” (644.5mm x 482.6mm x 8.3mm)

Trove2BL2 Enclosure Dimensions (H x W x D): 27.25” x 21.75” x 6.5” (692.2mm x 552.5mm x 165.1mm)

TBL3 Dimensions
34” x 28” x 0.3125” (863.6mm x 711.2mm x 7.9mm)

Trove3BL3 Enclosure Dimensions (H x W x D): 36.12” x 30.125” x 7.06” (917.5mm x 768.1mm x 179.3mm)

All registered trademarks are the property of their respective owners.
Rev. TBL042518
Installing Company: _________________________ Service Rep. Name: ________________________________________
Address: _________________________________________________________ Phone #: _________________________
Altronix is not responsible for any typographical errors.
140 58th Street, Brooklyn, New York 11220 USA
phone: 718-567-8181
fax: 718-567-9056
web site: www.altronix.com
e-mail: [email protected]
Lifetime Warranty
IITrove2BL2 / TBL2 / Trove3BL3 / TBL3
I24U![]()



















