
Trove2KH2
– Trove2 enclosure with Altronix/Kantech backplane (TKH2)
TKH2
– Altronix/Kantech backplane only
Installation Guide
Overview:
Trove2KH2 accommodates various combinations of Kantech boards with or without Altronix power supplies and accessories for access systems.
Specifications:
- 16 Gauge grey backplane and enclosure with ample knockouts for convenient access.
Trove2KH2
Trove2 enclosure with TKH2 Altronix/Kantech backplane. - Includes: tamper switch, cam lock, and mounting hardware.
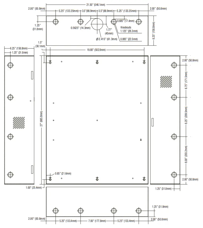
Enclosure Dimensions (H x W x D): 27.25” x 21.75” x 6.5” (692.15mm x 552.5mm x 165.1mm).
TKH2
Altronix/Kantech backplane only
- Includes mounting hardware.
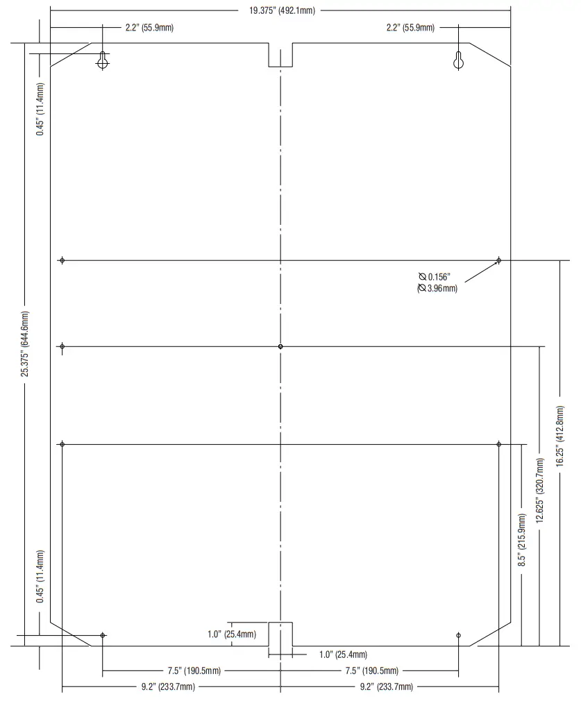
Dimensions (H x W x D): 25.375” x 19.375” x 0.3125” (644.5mm x 482.6mm x 7.9mm).
TKH2 accommodates a combination of the following:
Altronix Modules:
- One (1) AL400ULXB2, AL600ULXB, AL1012ULXB, AL1024ULXB2, eFlow4NB, eFlow6NB, eFlow102NB, or eFlow104NB.
- One (1) T1618300.
- One (1) PDS8(CB), VR6, ACM8(CB), MOM5, PD4UL(CB), PD8UL(CB), or ACM4(CB)..
Kantech Boards: - Four (4) KT-MOD-IN16 or KT-MOD-OUT16, four (4) KT300, or three (3) KT400, or any combination of the above.
Agency Listings:
- UL 294 – 6th edition: Line Security I, Destructive Attack I, Endurance IV, Stand-by Power II*. * Stand-by Power Level I if no battery is supplied.
- This Class B digital apparatus complies with Canadian ICES-003. Cet appareil numérique de la classe B est conforme á la norme NMB-003 du Canada.
- CE European Conformity.
Installation Instructions for Trove2:
- Remove the backplane from the enclosure prior to mounting (do not discard hardware).
- Trove2KH2 (Pg. 4): Mark and predrill holes on the wall to line up with the top three keyholes in the enclosure. Install three upper fasteners and screws in the wall with the screw heads protruding. Place the enclosure’s upper keyholes over the three upper screws; level and secure. Mark the position of the lower three holes. Remove the enclosure. Drill the lower holes and install the three fasteners. Place the enclosure’s upper keyholes over the three upper screws. Install the three lower screws and make sure to tighten all screws.
- Mount included UL Listed tamper switch (Altronix Model TS112 or equivalent) in the desired location, opposite hinge. Slide the tamper switch bracket onto the edge of the enclosure approximately 2” from the right side (Fig. 1, pg. 2). Connect the tamper switch wiring to the Access Control Panel input or the appropriate UL Listed reporting device. To activate the alarm signal open the door of the enclosure.
- Mount Altronix/Kantech modules to TKH2 backplane, refer to page 3.

TKH2: Configuration of Altronix Power Supply and/or Sub-Assembly Boards and Kantech Boards
- Fasten spacers (provided) to pets that match the hole pattern for Altronix Power Supply/Chargers or Altronix Sub-Assembly boards (Fig. 2, pg. 4).
Note: Please fasten metal spacers in the proper locations, see below (Fig. 2, pg. 4). - Mount boards to spacers utilizing 3/8” pan head screws (provided) (Fig. 2a, pg. 4).
- Mount Altronix T1618300 transformer to the backplane and connect it as follows (Fig. 2, pg. 4):
a. Place one metal washer on the bolt, then push the bolt through the square hole from the rear of the backplane (Fig. 2b, pg. 4, Step 1).
b. Place the first rubber washer on the bolt (Fig. 2b, pg. 4, Step 2).
c. Mount T1618300 on the bolt (Fig. 2b, pg. 4, Step 2).
d. Place a second rubber washer on the bolt. Mount the concave metal plate on top of the rubber washer as shown on Fig. 2b, pg. 4, Step 2.
e. Place a second metal washer on the bolt. Tighten assembly with the nut (Fig. 2b, pg. 4, Step 2).
f. T1618300’s primary leads are black and white. Connect AC power 115VAC, 50/60Hz to them.
g. Measure output voltage across the secondary leads before connecting devices. This helps avoid potential damage.
– Yellow and Brown for 16VAC (open circuit voltage @ 115VAC approx. 16.6VAC).
– Black and Brown for 18VAC (open circuit voltage @ 115VAC approx. 18.8VAC).
h. Connect 16VAC device(s) to Yellow and Brown leads or 18VAC device(s) to Black and Brown leads. - Mount appropriate Kantech boards into the correct positions (Fig. 2, pg. 4):
a. Position the spacer over the appropriate hole on the rear of the backplane and depress it until it locks in place (Fig. 2c, pg. 4, Step 1a).
b. Depress down on board to secure it to the spacer (Fig. 2c, pg. 4, Step 1b). - Fasten the backplane to Trove2 enclosure utilizing pan head screws (provided).
Kantech Access Controller Position Chart for the Following Models:
| Kantech Board | Pem Mounting |
| KT-400 Door Controller | A |
| KT-300 Door Controller | B |
| KT-MOD-IN16 or KT-MOD-OUT16 Expansion Modules | C |
Fig. 2 – Trove2KH2/TKH2 Configurations
Notes:
eFlow Power Supply/Chargers can be Controlled and Monitored while Reporting Power/Diagnostics from Anywhere over the Network…
![]()

LINQ2 – Network Communication Module
LINQ2 provides remote IP access to real-time data from eFlow power supply/chargers to help keep systems up and running at optimal levels. It facilitates fast and easy installation and set-up, minimizes system downtime, and eliminates unnecessary service calls, which helps reduce Total Cost of Ownership (TCO) – as well as creates a new source of Recurring Monthly Revenue (RMR).
Features:
- UL is Listed in the U.S. and Canada.
- Local or remote control of up to (2) two Altronix eFlow power output(s) via LAN and/or WAN.
- Monitor real time diagnostics: DC output voltage, output current, AC & battery status/service, input trigger state change, output state change, and unit temperature.
- Access control and user management: Restrict read/write, Restrict users to specific resources
- Two (2) integral network controlled Form “C” Relays.
- Three (3) programmable input triggers: Control relays and power supplies via external hardware sources.
- Email and Windows Dashboard notifications
- The event log tracks history.
- Secure Socket Layer (SSL).
- Programmable via USB or web browser – includes operating software and 6 ft. USB cable.
LINQ2 Mounts Inside any Trove Enclosure
TKH2 Dimensions (H x W x D):
25.375” x 19.375” x 0.5” (644.6mm x 492.1mm x 12.7mm)
Trove2KH2 Enclosure Dimensions (H x W x D):
27.25” x 21.75” x 6.5” (692.15mm x 552.5mm x 165.1mm)
More than just power.™
All registered trademarks are the property of their respective owners.
Rev. TKH_103017
Installing Company: ____________
Service Rep. Name: ___________
Address: __________________
Phone #: _________________
Altronix is not responsible for any typographical errors.
140 58th Street, Brooklyn, New York 11220 USA
phone: 718-567-8181 | fax: 718-567-9056
web site: www.altronix.com
e-mail: [email protected]
IITroveKH I28U
Trove / Kantech Installation Guide




















