Altronix TROVE Trove1M1WP, TM1X Access and Power Integration

Overview:
Altronix Trove1M1WP accommodates various combinations of Mercury/LenelS2 boards with or without Altronix power supplies and sub-assemblies for access systems in a NEMA 4/IP 66 Rated outdoor enclosure.
Specifications:
Trove1M1WP :
Outdoor enclosure with TM1X Altronix/Mercury/LenelS2 backplane.
Accommodates the following Mercury/LenelS2 controllers:
LP1501, MR51e, MR50, LP1502, MR4502, MR52, MR16IN, MR16OUT, LP2500, MUX8 Accommodates the following Altronix power supplies and/or sub-assemblies: eFlow or ULX Power Supply/Chargers, AL175ULB, T2428100, ACM4, ACM4CB, VR6, PDS8, PDS8CB, PD4UL, PD4ULCB, PD8UL or PD8ULCB
- 16 Gauge Backplane (TM1X):
- Dimensions (H x W x D): 14.875” x 12.875” x 0.3125” (377.8mm x 327mm x 7.9mm).
- Enclosure (WP2):
- Hot compression molded, halogen free, self-extinguishing fiberglass reinforced polyester.
- Stainless steel continuous hinge and stainless steel padlockable latches.
- Dimensions (H x W x D): 17.53” x 15.3” x 6.67” (445.3mm x 388.6mm x 169.4mm).
- Includes mounting hardware.
Gauge Backplane.
Accommodates the following Mercury/LenelS2 controllers:
LP1501, MR51e, MR50, LP1502, MR4502, MR52, MR16IN, MR16OUT, LP2500, MUX8 Accommodates the following Altronix power supplies and/or sub-assemblies: eFlow or ULX Power Supply/Chargers, AL175ULB, T2428100, ACM4, ACM4CB, VR6, PDS8, PDS8CB, PD4UL, PD4ULCB, PD8UL or PD8ULCB. Dimensions (H x W x D): 14.875” x 12.875” x 0.3125” (377.8mm x 327mm x 7.9mm).
Battery Backup:
- Trove1M1WP enclosure accommodates up to two (2) 12VDC/7AH batteries.
Accessories
PMK2 pole mount kit is designed to simplify installation of outdoor units. It accommodates 2â€- 8â€(diameter) poles or 5†(127mm) square poles. Kit includes:
- Two (2) powder coated steel mount brackets.
- Four (4) stainless steel bolts and lock washers.
- Two (2) wormgear quick release straps.
Installation Instructions:
Wiring methods shall be in accordance with the National Electrical Code/NFPA 70/ANSI and with all local codes and authorities having jurisdiction. Product is intended for indoor use only.
- Remove backplane from enclosure prior to drilling. Do not discard hardware.
Note: Make sure that hardware will not interfere with components of the circuit board. - Mark and drill desired inlets on the enclosure to facilitate wiring. Maximum NEMA type 4X rated fittings to be used are 0.5”. Follow manufacturer’s specifications for the appropriate size opening.
Note: Inlets for conduit fittings should only be made on the bottom of the enclosure. UL Listed NEMA type 4X rated conduit connector/hubs shall be used for the appropriate size inlets. - Mounting NEMA4/4X rated enclosure (Enclosure Dimensions, pg. 8): Wall mount: Mount unit in desired location. Mark and drill holes to line up with the top and bottom holes of the enclosure flange.
- To facilitate wire entry utilize weather-tight NEMA rated connectors, bushings, and cable.
Installation Instructions for Sub-Assemblies to Trove1M1WP/TM1X:
Power Supply/Charger:
Fasten two (2) nylon and two (2) metal standoffs (supplied) to pem location (1) (Fig. 1, pg. 4). Secure board to standoffs using pan head screws (supplied) (Fig. 1a, pg. 4).
T2428100 Transformer:
Position transformer on pem location (3) as shown in Fig. 2, pg. 5. Secure transformer to backplane using two (2) lock nuts (supplied).
Sub-Assemblies:
Fasten standoffs (supplied) to pem location (2) as shown on Fig. 1, 2, pg. 4, 5. Secure boards to standoffs using pan head screws (supplied) (Fig. 1a, 2a, pg. 4, 5).
For detailed information about installing and connecting Altronix sub-assemblies refer to the individual Installation Guides.
Position Chart for the Following Altronix Models:
| Altronix Board | Pem Mounting |
| AL400ULXB2, AL600ULXB, AL1012ULXB, AL1024ULXB2, eFlow4NB, eFlow6NB, eFlow102NB, eFlow104NB | 1 |
| AL175ULB, ACM4, ACM4CB, VR6, PDS8, PDS8CB, PD4UL, PD4ULCB, PD8UL or PD8ULCB | 2 |
| T2428100 | 3 |
Position Chart for the Following Mercury/LenelS2 Models:
| Mercury/LenelS2 Access Controller | Pem Mounting |
| LP1502, LP4502, MR52, MR16IN, MR16OUT | A |
| LP2500, MUX8 | B |
| LP2500, MUX8 | C |
| LP1501, MR62e | D |

Wall Mount Installation
Place unit at desired location and secure with mounting screws (not included) (Fig. 3, pg. 6).

Pole Mounting Using Optional Pole Mount Kit PMK2 (not included):
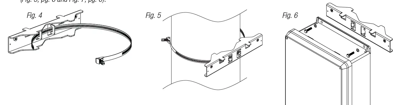
This installation should be made by qualified service personnel. This product contains no serviceable parts. PMK2 is intended for use with Altronix outdoor rated power supplies or accessories housed in WP2 enclosures. Brackets are designed for use with the Wormgear Quick Release Straps (two included).
- Thread one (1) wormgear quick release strap through the slots on the back of a mounting bracket (Fig. 4, pg. 6).
- Once the desired height of the top Pole Mount bracket is achieved, tighten the straps down by sliding open end of the strap through the locking mechanism on the strap, then tighten the screw with flat head screwdriver or 5/16” hex socket driver (Fig. 5, pg. 6 and Fig. 7, pg. 6).

- Attach the bottom bracket to the enclosure by inserting bolts through the flange of the enclosure and into the bracket, tightening bolts with a 7/16” hex socket (Fig. 6, pg. 6).
- Thread the second wormgear quick release strap through the slots on the back of the bottom mounting bracket (Fig. 4, pg. 6).
- Mount enclosure onto the top bracket by inserting bolts through flange of the enclosure and into the bracket, tightening bolts with a 7/16” hex socket (Fig. 6, pg. 6).
- Tighten the straps of the bottom bracket down by sliding the open end of the strap through the locking mechanism on the strap, then tighten screw with flat head screwdriver or 5/16” hex socket driver (Fig. 4, pg. 6).
- Clip excess straps.

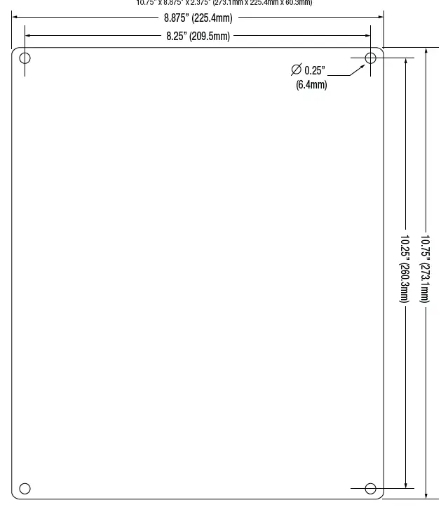
TM1X Drawing and Dimensions (H x W x D approx.):
10.75” x 8.875” x 2.375” (273.1mm x 225.4mm x 60.3mm)

Enclosure Dimensions (H x W x D approximate):
17.53” x 15.3” x 6.67” (445.3mm x 388.6mm x 169.4mm)

140 58th Street, Brooklyn, New York 11220 USA | phone: 718-567-8181 | fax: 718-567-9056 web site: www.altronix.com | e-mail: [email protected]


Wall Mount Installation




















