
Access & Power Integration
![]()
TROVE Access and Power Integration Solution
Trove1DM1
– Trove1 enclosure with Altronix/DMP backplane (TDM1)
TDM1
– Altronix/DMP backplane only
Trove2DM2
– Trove2 enclosure with Altronix/DMP backplane (TDM2)
TDM2
– Altronix/DMP backplane only
TDMD2
– DMP door backplane for Trove2 and Trove3
Installation Guide
All registered trademarks are property of their respective owners.
Rev. TDMP103017
Installing Company: _______
Service Rep. Name: ________
Address: _________________
Phone #: _________________
Overview:
Trove1DM1 and Trove2DM2 accommodate DMP 734/734N Wiegand Modules with or without Altronix power supplies and accessories for access control systems.
Agency Listings:
- UL 294 – 6th edition: Line Security I, Destructive Attack I, Endurance IV, Stand-by Power II*. *Stand-by Power Level I if no battery is supplied.
- This Class B digital apparatus complies with Canadian ICES-003. Cet appareil numérique de la classe B est conforme á la norme NMB-003 du Canada.
- CE European Conformity.
Specifications:
- 16 Gauge backplane and enclosure with ample knockouts for convenient access.
Trove1DM1
Trove1 enclosure with TDM1 Altronix/ DMP backplane
- Includes: tamper switch, cam lock, lock nuts, and mounting hardware. Enclosure Dimensions (H x W x D): 18” x 14.5” x 4.625” (457mm x 368mm x 118mm).
TDM1
Altronix/DMP backplane only
- Includes mounting hardware.
Dimensions (H x W x D): 16.625” x 12.5” x 0.3125” (422.3mm x 317.5mm x 7.9mm).
TDM1 accommodates a combination of the following:
Altronix Modules:
- One (1) AL400ULXB2, AL600ULXB, AL1012ULXB, AL1024ULXB2, eFlow4NB, eFlow6NB, eFlow102NB or eFlow104NB.
- One (1) ACM4(CB), MOM5, PD4UL(CB), PD8UL(CB), PDS8(CB), VR6.
DMP Modules:
- Up to eight (8) DMP 734/734N modules.
Trove2DM2
Trove2 enclosure with TDM2 Altronix/ DMP backplane
- Includes: tamper switch, cam lock, lock nuts, and mounting hardware. Enclosure Dimensions (H x W x D): 27.25” x 21.75” x 6.5” (692.2mm x 552.5mm x 165.1mm).
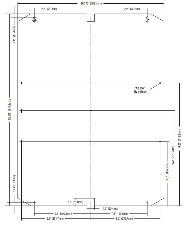
TDM2
Altronix/DMP backplane only
- Includes mounting hardware.
Dimensions (H x W x D): 25.375” x 19.375” x 0.325” (644.5mm x 482.6mm x 8.3mm)
TDM2 accommodates a combination of the following:
Altronix Modules:
- Two (2) AL400ULXB2, AL600ULXB, AL1012ULXB, AL1024ULXB2, eFlow4NB, eFlow6NB, eFlow102NB or eFlow104NB.
- Two (2) ACM8(CB), MOM5, PD4UL(CB), PD8UL(CB), PDS8(CB), VR6. DMP Modules:
- Up to sixteen (16) DMP 734/734N modules.
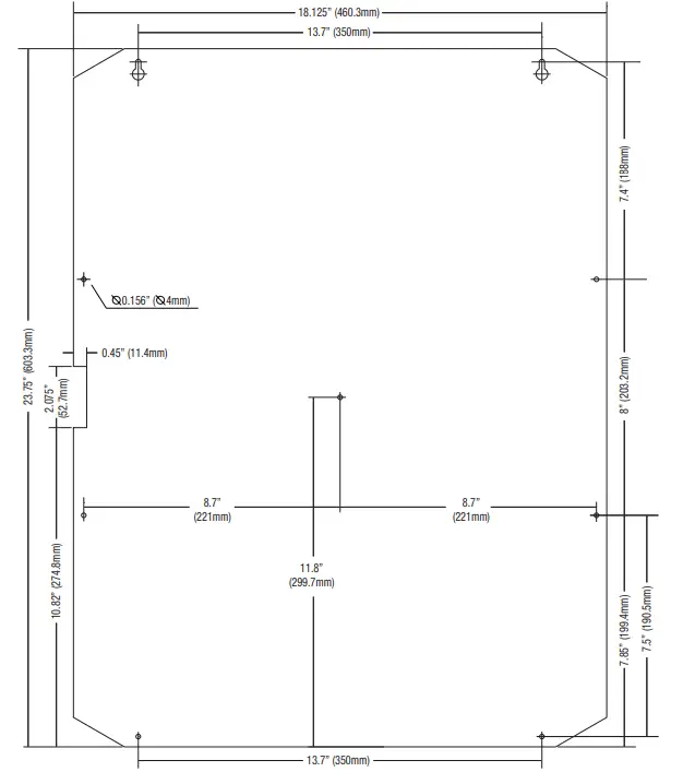
TDMD2
DMP door backplane only
- Includes mounting hardware.
Dimensions (H x W x D): 23.75” x 18.125” x 0.3125” (603.3mm x 460.3mm x 7.9mm).
TDMD2 accommodates a combination of the following DMP boards:
- One (1) XR150 or XR550 board and up to three (3) multi-zone 714 expansion boards for up to forty-eight (48) zones.
Installation Instructions for Trove1 and Trove2:
- Remove backplane from enclosure prior to mounting (do not discard hardware).
- Trove1DM1 (Pg. 7):
Mark and predrill holes on the wall to line up with the top two keyholes in the enclosure. Install two upper fasteners and screws in the wall with the screw heads protruding. Place the enclosure’s upper keyholes over the two upper screws; level and secure. Mark the position of the lower two holes. Remove the enclosure. Drill the lower holes and install the two fasteners. Place the enclosure’s upper keyholes over the two upper screws. Install the two lower screws and make sure to tighten all screws.
Trove2DM2 (Pg. 8):
Mark and predrill holes on the wall to line up with the top three keyholes in the enclosure. Install three upper fasteners and screws in the wall with the screw heads rotruding. Place the enclosure’s upper keyholes over the three upper screws; level and secure. Mark the position of the lower three holes. Remove the enclosure. Drill the lower holes and install the three fasteners. Place the enclosure’s upper keyholes over the three upper screws. Install the three lower screws and make sure to tighten all screws. - Mount included UL Listed tamper switch (Altronix Model TS112 or equivalent) in desired location, opposite hinge. Slide the tamper switch bracket onto the edge of the enclosure approximately 2” from the right side (Fig. 1, pg. 1). Connect tamper switch wiring to the Access Control Panel input or the appropriate UL Listed reporting device. To activate alarm signal open the door of the enclosure.
- Mount Altronix/DMP modules to TDM1 or TDM2 backplane, refer to pages 3, 4.

TDM1: Configuration of Altronix Power Supply and/or Sub-Assembly Boards and DMP 734/734N Wiegand Modules
- Fasten spacers (provided) to pems that match the hole pattern for Altronix Power Supply/Chargers or Altronix
Sub-Assembly boards (Fig. 2, pg. 3). Fasten metal spacers in the correct locations to provide proper grounding, see below (Fig. 2, pg. 3). - Mount boards to spacers utilizing 5/16” pan head screws (provided) (Fig. 2, 2a, pg. 3).
- Mount DMP 734/734N modules into the correct positions (Fig. 2, pg. 3):
a. fasten spacers to appropriate pems on the backplane (Fig. 2, 2b, pg. 3).
b. remove DMP 734/734N board from the plastic housing. Use the base part of the housing to mount onto TDM1 (Fig. 2b, pg. 3).
c. secure the base of DMP 734/734N to the spacers using provided 5/16” pan head screws.
d. make all necessary connections before reassembling DMP 734/734N Wiegland. - Fasten TDM1 backplane to Trove1 enclosure utilizing pan head screws (provided).
Fig. 2 – Trove1DM1/TDM1 Configurations
TDM2: Configuration of Altronix Power Supply and/or Sub-Assembly Boards and DMP 734/734N Wiegand Modules
- Fasten spacers (provided) to pems that match the hole pattern for Altronix Power Supply/Chargers or Altronix Sub-Assembly boards (Fig. 3, pg. 4). Fasten metal spacers in the correct locations to provide proper grounding, see below (Fig. 3, pg. 4).
Note: each Altronix sub-assembly position can accommodate one (1) ACM8/ACM8CB, PD4UL/PD4ULCB, PD8UL/PD8ULCB, MOM5, PDS8(CB) or VR6. - Mount boards to spacers utilizing 5/16” pan head screws (provided) (Fig. 3, 3a, pg. 4).
- Mount DMP 734/734N modules into the correct positions (Fig. 3, pg. 4):
a. fasten spacers to appropriate pems on the backplane (Fig. 3, 3b, pg. 4).
b. remove DMP 734/734N board from the plastic housing. Use the base part of the housing to mount onto TDM2 (Fig. 3b, pg. 4).
c. secure the base of DMP 734/734N to the spacers using provided 5/16” pan head screws.
d. make all necessary connections before reassembling DMP 734/734N Wiegland. - Fasten TDM2 backplane to Trove2 enclosure utilizing pan head screws (provided).
Fig. 3 – Trove2DM2/TDM2 Configurations
Trove1DM1 / TDM1 / Trove2DM2 / TDM2 / TDMD2 Installation Guide
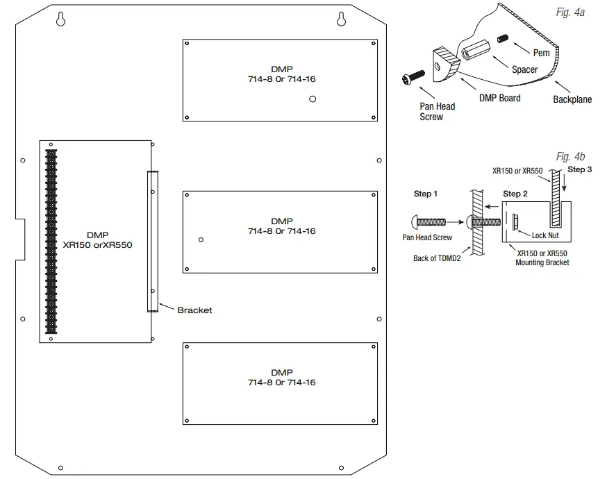
TDMD2: Configuration of DMP Boards:
- Mounting 714 expansion boards:
a. Fasten spacers (provided) into a corresponding pem configuration of backplane (Fig. 4, pg. 5).
b. Mount boards to spacers utilizing 5/16” pan head screws (provided) (Fig. 4a, pg. 5). - Mounting XR150 or XR550 board utilizing a bracket (provided):
a. Push two (2) pan head screws (provided) through the corresponding holes from the back of the backplane (Fig. 4b, pg. 5, Step 1).
b. Mount bracket with slits to the left on screws and secure it with two (2) lock nuts (provided) (Fig. 4b, pg. 5, Step 2).
c. Fasten two (2) spacers (provided) onto the mounting pems.
d. Orient DMP XR150 or XR550 so the terminal block is to the left. Slide the opposite edge of the board into the bracket’s slits
(Fig. 1b, pg. 2, Step 3) and secure the board to spacers with two (2) pan head screws (provided). - Mount backplane to enclosure’s door with hardware.
Fig. 4 – TDMD2 Configuration
TDM1 Dimensions (H x W x D):
16.625” x 12.5” x 0.3125” (422.3mm x 317.5mm x 7.9mm)
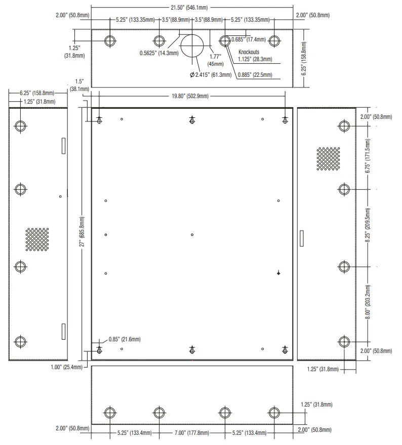
TDM2 Dimensions (H x W x D):
25.375” x 19.375” x 0.325” (644.5mm x 482.6mm x 8.3mm)
TDMD2 Dimensions (H x W x D):
23.75” x 18.125” x 0.3125” (603.3mm x 460.3mm x 7.9mm)
Trove1DM1 Enclosure Dimensions (H x W x D):
18” x 14.5” x 4.625” (457mm x 368mm x 118mm)
Trove2DM2 Enclosure Dimensions (H x W x D):
27.25” x 21.75” x 6.5” (692.2mm x 552.5mm x 165.1mm)
Altronix is not responsible for any typographical errors.
140 58th Street, Brooklyn, New York 11220 USA
phone: 718-567-8181
fax: 718-567-9056
web site: www.altronix.com
e-mail: [email protected]
Lifetime Warranty
IITrove1DM1 / TDM1 / Trove2DM2 / TDM2 / TDMD2 ![]()



















