TSH2, Trove3SH3, TSH3, TROVE Access, and Power Integration
Installation Guide
Trove2SH2, TSH2, Trove3SH3, TSH3, TROVE Access, and Power Integration
Trove2SH2– Trove2 enclosure with Altronix/Software House backplane (TSH2)
TSH2– Altronix/Software House backplane only
Trove3SH3– Trove3 enclosure with Altronix/Software House backplane (TSH3)
TSH3 – Altronix/Software House backplane only
All registered trademarks are the property of their respective owners.
Rev. TSH012918
Installing Company: ________________
Service Rep. Name: ________________
Address: ________________________
Phone #: _______________________
Overview: Trove2SH2 and Trove3SH3 accommodate various combinations of Software House boards with or without Altronix power supplies and accessories for access systems.
Specifications
- 16 Gauge backplanes and enclosures with ample knockouts for convenient access.
Trove2SH2: Trove2 enclosure with TSH2 Altronix/Software House backplane. - Includes: tamper switch, cam lock, lock nuts, and mounting hardware. Enclosure Dimensions (H x W x D): 27.25” x 21.75” x 6.5” (692.2mm x 552.5mm x 165.1mm). Accommodates up to four (4) 12VDC/7AH batteries. TSH2 TSH2 Altronix/Software House backplane.
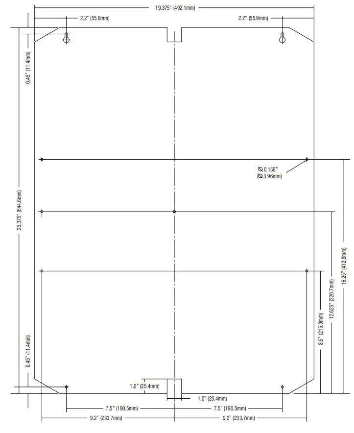
- Includes mounting hardware. Dimensions (H x W x D): 25.375” x 19.375” x 0.3125” (644.6mm x 492.1mm x 7.9mm). TSH2 accommodates a combination of the following:
- Altronix Modules:
- Up to three (3) AL400ULXB2, AL600ULXB, AL1012ULXB, AL1024ULXB2, eFlow4NB, eFlow6NB, eFlow102NB, or eFlow104NB.
- Up to five (5) ACM8(CB).
- Up to two (2) ACM4(CB), MOM5, PD4UL(CB), PD8UL(CB), PDS8(CB), or VR6.
- Software House Modules:
- One (1) iStar Ultra GCM or one (1) iStar Pro GCM and two (2) iStar Ultra ACM or two (2) iStar ACM SE/PRO ACM.
- One (1) I8, R8, or I8-CSI expansion module.
Trove3SH3
Trove3 enclosure with TSH3 Altronix/Software House backplane.
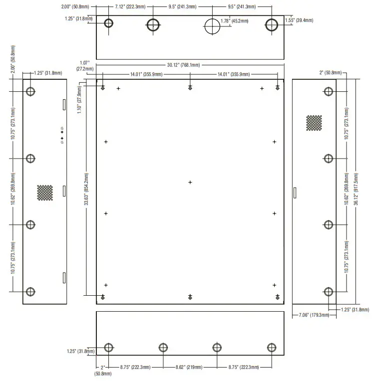
- Includes two (2) tamper switches, cam lock, lock nuts and mounting hardware. Enclosure Dimensions (H x W x D): 36.12” x 30.125” x 7.06” (917.5mm x 768.1mm x 179.3mm). Accommodates up to four (4) 12VDC/12AH batteries.
TSH3
TSH3 Altronix/Software House backplane.
- Includes mounting hardware.
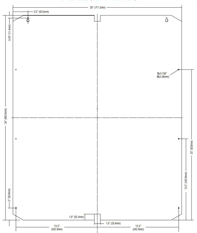
Dimensions (H x W x D): 34” x 28” x 0.3125” (863.6mm x 711.2mm x 7.9mm). TSH3 accommodates a combination of the following: - Altronix Modules:
- Up to four (4) AL400ULXB2, AL600ULXB, AL1012ULXB, AL1024ULXB2, eFlow4NB, eFlow6NB, eFlow102NB, or eFlow104NB.
- Up to four (4) ACM8(CB).
- Up to five (5) ACM4(CB), MOM5, PD4UL(CB), PD8UL(CB), PDS8(CB), or VR6.
- Software House Modules:
- One (1) iStar Ultra GCM or one (1) iStar Pro GCM and two (2) iStar Ultra ACM or two (2) iStar ACM SE/PRO ACM.
- One (1) I8, R8, or I8-CSI expansion module.
Agency Listings:
- UL 294 – 6th edition: Line Security I, Destructive Attack I, Endurance IV, Stand-by Power II*. *Stand-by Power Level I if no battery is supplied.
- This Class B digital apparatus complies with Canadian ICES-003.
- CE European Conformity.
Installation Instructions
Wiring methods shall be in accordance with the National Electrical Code/NFPA 70/ANSI, and with all local codes and authorities having jurisdiction. The product is intended for indoor use only.

- Remove the backplane from the enclosure. Do not discard hardware.
- Mark and predrill holes in the wall to line up with the top three keyholes in the enclosure. Install three upper fasteners and screws in the wall with the screw heads protruding. Place the enclosure’s upper keyholes over the three upper screws; level and secure. Mark the position of the lower three holes. Remove the enclosure. Drill the lower holes and install the three fasteners. Place the enclosure’s upper keyholes over the three upper screws. Install the three lower screws and make sure to tighten all screws.
- Mount included UL Listed tamper switch (Altronix Model TS112 or equivalent) in the desired location, opposite hinge. Slide the tamper switch bracket onto the edge of the enclosure approximately 2” from the right side (Fig. 1, pg. 2). Connect the tamper switch wiring to the Access Control Panel input or the appropriate UL Listed reporting device. To activate the alarm signal open the door of the enclosure.
- Mount Altronix/Software House boards to the backplane, refer to pages 3-8.
TSH2: Configuration of Altronix Power Supply and/or Sub-Assembly Boards
- Fasten spacers (provided) to poems that match the hole pattern for Altronix Power Supply/Chargers or Altronix Sub-Assembly boards (Fig. 2, pg. 2). Fasten metal spacers in the correct locations to provide proper grounding, see below (Fig. 2a, pg. 3).
- Mount boards to spacers utilizing 5/16” pan head screws (provided) (Fig. 2a, pg. 3).
- Fasten the backplane to the Trove2 enclosure utilizing lock nuts (provided).

TSH2: Configuration of Software House iSTAR Ultra Boards

- Align the Software House boards on the backplane to match the boards’ mounting holes with the corresponding poems.
- Fasten provided spacers to pems that match the hole pattern for Software House iSTAR Ultra GCM and iSTAR Ultra ACM boards.
- Mount Software House boards to spacers utilizing 5/16” pan head screws (provided) (Fig. 3a, pg. 4).
Note: Software House iSTAR Ultra ACM boards have one (1) USB port each. Please orient boards in the appropriate position according to Fig. 3 below. - Fasten the backplane to the Trove2 enclosure utilizing lock nuts (provided).
TSH2: Configuration of Software House iSTAR Pro Boards

- Align the Software House boards on the backplane to match the boards’ mounting holes with the corresponding poems.
- Fasten provided spacers to poems that match the hole pattern for Software House iSTAR Pro GCM, iSTAR ACM SE/PRO ACM, and /or I8, R8, and I8-CSI boards.
- Mount Software House boards to spacers utilizing 5/16” pan head screws (provided) (Fig. 4, pg. 5).
Note: Software House iSTAR ACM SE/PRO ACM boards have one (1) USB port each. Please orient boards in the appropriate position according to the Fig. 4 below. - Fasten the backplane to the Trove2 enclosure utilizing lock nuts (provided).
TSH3: Configuration of Altronix Power Supply and/or Sub-Assembly Boards

- Fasten spacers (provided) to poems that match the hole pattern for Altronix Power Supply/Chargers or Altronix Sub-Assembly boards (Fig. 5, pg. 6). Fasten metal spacers in the correct locations to provide proper grounding, see below (Fig. 5, pg. 6).
- Mount boards to spacers utilizing 5/16” pan head screws (provided) (Fig. 5a, pg. 6).
- Fasten the backplane to the Trove3 enclosure utilizing lock nuts (provided).
TSH3: Configuration of Software House iSTAR Ultra Boards

- Align the Software House boards on the backplane to match the boards’ mounting holes with the corresponding poems.
- Fasten provided spacers to poems that match the hole pattern for Software House iSTAR Ultra GCM and iSTAR Ultra ACM boards.
- Mount Software House boards to spacers utilizing 5/16” pan head screws (provided) (Fig. 6a, pg. 7).
Note: Software House iSTAR Ultra ACM boards have one (1) USB port each. Please orient boards in the appropriate position according to Fig. 6 below. - Fasten the backplane to the Trove3 enclosure utilizing lock nuts (provided).
TSH3: Configuration of Software House iSTAR Pro Boards

- Align the Software House boards on the backplane to match the boards’ mounting holes with the corresponding poems.
- Fasten provided spacers to pems that match the hole pattern for Software House iSTAR Pro GCM, iSTAR ACM SE/PRO ACM, and /or I8, R8, and I8-CSI boards.
- Mount Software House boards to spacers utilizing 5/16” pan head screws (provided) (Fig. 7a, pg. 8).
Note: Software House iSTAR Ultra ACM boards have one (1) USB port each. Please orient boards in the appropriate position according to Fig. 7 below. - Fasten the backplane to the Trove3 enclosure utilizing lock nuts (provided).
TSH2 Dimensions (H x W x D): 25.375” x 19.375” x 0.3125” (644.6mm x 492.1mm x 7.9mm)

Trove2 Enclosure Dimensions (H x W x D approximate): 27.25” x 21.75” x 6.5” (692.2mm x 552.5mm x 165.1mm)

TSH3 Dimensions (H x W x D): 34” x 28” x 0.3125” (863.6mm x 711.2mm x 7.9mm)

Trove3 Enclosure Dimensions (H x W x D approximate): 36.12” x 30.125” x 7.06” (917.5mm x 768.1mm x 179.3mm)

Altronix is not responsible for any typographical errors.
140 58th Street, Brooklyn, New York 11220 USA
phone: 718-567-8181
fax: 718-567-9056
web site: www.altronix.com
e-mail: [email protected]
IITrove2SH2/TSH2/Trove3SH3/ TSH3
J05U




















