More than just power.™
Access & Power Integration
Trove2PX2
– Trove2 enclosure with Altronix/Paxton backplane (TPX2)
TPX2
– Altronix/Paxton backplane only
Installation Guide
All registered trademarks are the property of their respective owners.
Rev. 041018
Installing Company: _________________________ Service Rep. Name: ____________________
Address: _________________________________ Phone #: __________
Overview:
Trove2PX2 accommodates Paxton Net2 Plus boards with or without Altronix power supplies and accessories for access control systems.
Agency Listings:
- UL 294 – 6th edition: Line Security I, Destructive Attack I, Endurance IV, Stand-by Power II*.
*Stand-by Power Level I if no battery is supplied. - This Class B digital apparatus complies with Canadian ICES-003.
Cet appareil numérique de la classe B est conforme á la norme NMB-003 du Canada. - CE European Conformity.
Installation Instructions for Trove2:
- Remove the backplane from the enclosure prior to mounting (do not discard hardware).
- Mark and predrill holes in the wall to line up with the top keyholes in the enclosure. Install the upper fasteners and screws in the wall with the screw heads protruding. Place the enclosure’s upper keyholes over the screws; level and secure. Mark the position of the lower holes. Remove the enclosure. Drill the lower holes and install the fasteners. Place the enclosure’s upper keyholes over the upper screws. Install the lower screws and make sure to tighten all screws (Enclosure Dimensions, pg. 4).
- Mount included UL Listed tamper switch (Altronix Model TS112 or equivalent) in the desired location, opposite hinge. Slide the tamper switch bracket onto the edge of the enclosure approximately 2” from the right side (Fig. 1, pg. 2). Connect the tamper switch wiring to the Access Control Panel input or the appropriate UL Listed reporting device. To activate the alarm signal open the door of the enclosure.
- Mount Altronix/Paxton boards to the backplane, refer to page 3.
TPX2: Configuration of Altronix Power Supply and/or Sub-Assembly Boards and Paxton Net2 Plus Modules
- Fasten spacers (provided) to poems that match the hole pattern for Altronix Power Supply/Chargers or Altronix Sub-Assembly boards (Fig. 2, pg. 3). Fasten metal spacers in the correct locations to provide proper grounding, see below (Fig. 2, pg. 3).
Note: Each Altronix sub-assembly position can accommodate one (1) ACM8/ACM8CB, PD4UL/PD4ULCB, PD8UL/PD8ULCB, MOM5, PDS8(CB) or VR6. - Mount boards to spacers utilizing 5/16” pan head screws (provided) (Fig. 2, 2a, pg. 2).
- Mount Paxton Net2 Plus modules into the correct positions (Fig. 2, pg. 2).
Note: Paxton Net2 Plus modules have one (1) RJ45 jack and one (1) switch each. Please make sure that they are mounted correctly, as shown in Fig. 2 below - Fasten the TPX2 backplane to the Trove2 enclosure utilizing pan head screws (provided).
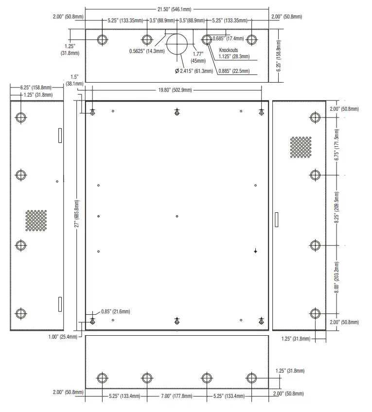
Trove2PX2 Enclosure Dimensions (H x W x D):
27.25” x 21.75” x 6.5” (692.2mm x 552.5mm x 165.1mm)


Altronix is not responsible for any typographical errors.
140 58th Street, Brooklyn, New York 11220 USA | phone: 718-567-8181 | fax: 718-567-9056
web site: www.altronix.com | e-mail: [email protected]
IITrove2PX2 / TPX2
J05U



















