Altronix T3M7724LXK1V Access and Power Integration Solution Instruction Manual
Altronix T3M7724LXK1V is a 24-door access and power integration kit which includes Altronix power and sub-assemblies along with factory installed wire management and wire assemblies that are pre-configured with terminal blocks for Mercury hardware. This unit provides ample power and dual voltage outputs to support Mercury platform controllers and locking devices. The T3M7724LXK1V accommodates up to one (1) Intelligent Dual Reader Controller and eleven (11) Dual Reader Interface Modules. Trove Plus simplifies field installations and provides reliable, robust critical power and control for the most demanding applications.
*Also compatible with these authentic Mercury partners:
AccessNsite, Avigilon, BadgePass, BluBox, Feenics, Genetec, Identicard, IMRON, Johnson Controls, Kastle, Keri Systems, LockState, Maxxess, Midpoint Security, NLSS, Open Options, Panasonic i-PRO MonitorCast, Quintron, RS2, S2 Security, Schneider Electric, Vanderbilt.
Key Features
- Accommodates the following Mercury controllers:
1 – LP1502 / LP4502 and 11 – MR52- Convenient knockout configuration:
- One (1) single knockout – 2” Conduit
- Two (2) double knockout – 1.25” Conduit and 1.5” Conduit
- Thirteen (13) double knockouts – 3/4” Conduit and 1” Conduit
- Unit includes:
- Removable backplane
- 3” high finger duct for wire management
- Custom Wire Harnesses for power distribution and controller connections
- Supervision
- AC Fail
- Low Battery and Battery Presence
- 16 AWG galvanized steel backplane simplifies board layout and wire management
- Enclosure accommodates up to four (4) 12VDC/12AH batteries
- CE European Conformity
- Lifetime Warranty*
*Altronix Power Supply/Chargers and Sub-Assemblies only
Accessories
(order separately)
WM5
WM5, WM25, WM100 – Magnetic Cable Tie Mounts
Altronix WM5, WM25, and WM100 are packs of 5, 25 or 100 magnetic cable tie mounts respectively. They accommodate standard zip ties or velcro straps. These are ideal for wire management in our Trove series.
Mounting Magnet
MM4, MM8, MM12, MM24 – Magnetic Mounting Solution
Altronix mounting magnets accommodate screws and nylon standoffs to allow for mounting various boards/ accessories in any metal enclosure or backplane.
Specifications
Two (2) Power Supplies (AL1024XB2V):
- Input
- Voltage 220VAC (working range 198VAC-256VAC),
- 50/60Hz, 2.5A
- Fusing 5A / 250V
- Outputs
- Voltage 24VDC
- Current 10A @ 24VDC continuous max.
- Other Filtered and regulated
- Battery Backup
- Capacity 12AH / 12VDC (2 within enclosure)
- 40 AH / 65 AH (requires separate enclosure)
- Type Sealed lead acid or gel type
- Failover Upon AC loss, instantaneous
- Supervision
- AC Failure Form “C” contacts
- Battery Form “C” contacts
- Indicators (LED)
- Input 220VAC is present
- DC Output Powered
- Battery Discharged or not connected

TMV2 – Door Backplane accommodates four Mercury boards
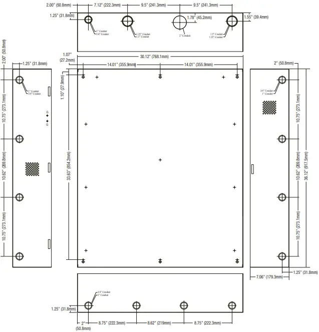
Dimensions and Drawing
Dimensions (H x W x D approximate)
36.12” x 30.125” x 7.06” (917.5mm x 768.1mm x 179.3mm)
Altronix Corporation | 140 58th St | Brooklyn, NY 11220 USA
phone: +1 718.567.8181
fax: +1 718.567.9056
email: [email protected]
www.altronix.com





















