T2SLK7F8 8 Door Kit with Fused Outputs
Installation Guide
Access & Power Integration
T2SLK7F8
8 Door Kit with Fused Outputs
Fully assembled kit includes:
- Trove2 enclosure with TSL2 Altronix/Sielox backplane
- One (1) eFlow104NB – Power Supply/Charger
- One (1) ACM8 – Fused Access Power Controller
- One (1) VR6 – Voltage Regulator
- One (1) PDS8 – Dual Input Fused Power Distribution Module
All components of this Trove kit are UL Listed as sub-assemblies.
Please refer to the included corresponding Sub-Assembly Installation Guides for further information.
Installation Guide
All registered trademarks are the property of their respective owners.
Rev. 011122
Installing Company: _________________________ Service Rep. Name: __________________________________________
Address: _________________________________________________________ Phone #: _________________________
Overview:
Altronix T2SLK7F8 Trove Sielox kit is pre-assembled and consists of Trove2SL2 enclosure/backplane with factory-installed Altronix power supply/ charger and sub-assemblies. T2SLK7F8 kit also accommodates up to four (4) Sielox AC-1700 boards for up to eight (8) doors in a single enclosure.
Configuration Chart:
| Altronix Model Number | 120VAC 60Hz Input Current (A) | Power Supply Board Input Fuse Rating | Power Supply Board Battery Fuse Rating | Maximum Supply Current for Main and Aux. Outputs on Power Supply board and ACM8 Access Power Controllers’ outputs | Nominal DC Output Voltage | Fail-Safe/Fail-Secure or Dry Form “C” Outputs | Additional Fused Outputs | ACM8 Board Input Fuse Rating | ACM8 Board Output Fuse Rating | PDS8 Board Input Fuse Rating | PDS8 Board Output Fuse Rating | |
| [DC] | [Aux] | |||||||||||
| Output Range (VDC) | Output Range (VDC) | |||||||||||
| T2SLK7F8 | 4.5 | 6.3A/ 250V | 15A/ 32V | 24VDC @ 9.7A | 20.1726.4 | 20.2826.4 | 8 | 8 | 10A/ 250V | 2.5A/ 250V | 10A/ 32V | 3A/ 32V |
Installation Instructions:
Wiring methods shall be in accordance with the National Electrical Code/NFPA 70/ANSI, and with all local codes and authorities having jurisdiction.
Product is intended for indoor use only.
- Remove the backplane from the enclosure. Do not discard hardware.
- Mark and predrill holes in the wall to line up with the top three keyholes in the enclosure. Install three upper fasteners and screws in the wall with the screw heads protruding. Place the enclosure’s upper keyholes over the three upper screws, level, and secure. Mark the position of the lower three holes. Remove the enclosure. Drill the lower holes and install the three fasteners. Place the enclosure’s upper keyholes over the three upper screws. Install the three lower screws and make sure to tighten all screws.
- Mount included UL Listed tamper switch (Altronix Model TS112 or equivalent) in the desired location, opposite hinge. Slide the tamper switch bracket onto the edge of the enclosure, approximately 2” from the right side (Fig. 1, pg. 2). Connect the tamper switch wiring to the Access Control Panel input or the appropriate UL Listed reporting device.
To activate the alarm signal open the door of the enclosure. - Mount Sielox AC-1700 boards to TSL2 backplane, refer to page 3.
- Refer to the eFlow Power Supply/Charger Installation Guide for eFlow104NB and corresponding Sub-Assembly Installation Guides for the following models: ACM8, PDS8, and VR6 for further installation instructions.

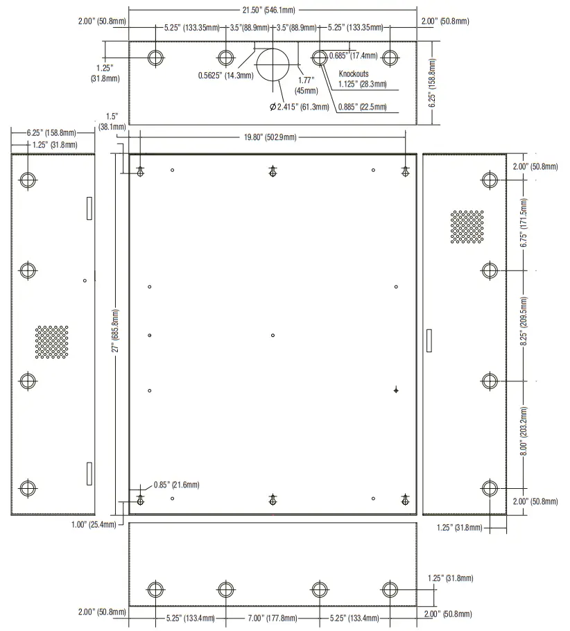
Hardware:

Configuration of Sielox AC-1700 Boards:
- Align the Sielox AC-1700 boards on the backplane to match the boards’ mounting holes with the corresponding poems.
- Fasten spacers (provided) onto metal pets (Fig. 2a, pg. 3).
- Mount Sielox AC-1700 boards to spacers utilizing pan head screws (provided) (Fig. 2a, pg. 3).
Note: Sielox AC-1700 boards have one (1) RJ45 jack each.
Please make sure that they are mounted correctly, as shown in Fig. 2 below - Fasten TSL2 backplane to Trove2 enclosure utilizing hardware (provided).


Enclosure Dimensions (H x W x D approximate):
27.25” x 21.5” x 6.5” (692.15mm x 546.1mm x 165.1mm)

Sielox LLC is not responsible for any typographical errors.
–––––––––––––––––––––––––––––––––––––––––––––––––––––––––––––––––––––––––––––––––––––––––––––––––––
170 East Ninth Avenue Runnemede, New Jersey 08078 | phone: 856-939-9300
web site: www.sielox.com | e-mail: tech.[email protected]
IIT2SLK7F8 A11V



















