
Access & Power Integration
T2PXK7F8V 8 Door Kit with Fused Outputs
Fully assembled kit includes:
– Trove2 enclosure with TPX2 Altronix/Paxton backplane
– One (1) eFlow104NBV – Power Supply/Charger
– One (1) ACM8 – Fused Access Power Controller
– One (1) VR6 – Voltage Regulator
– One (1) PDS8 – Dual Input Fused Power Distribution Module
Installation Guide
All components of this Trove kit are UL Listed sub-assemblies.
Please refer to the included corresponding Sub-Assembly Installation Guides for further information.
All registered trademarks are property of their respective owners.
More than just power.™
Rev. 070819
Installing Company: _____________________
Service Rep. Name: _____________________
Address: _____________________________
Phone #: _________________________
Overview:
Altronix T2PXK7F8V Trove Paxton kit is pre-assembled and consists of Trove2PX2 enclosure/backplane with factory installed Altronix power supply/charger and sub-assemblies. T2PXK7F8 kit also accommodates up to eight (8) Paxton Net2 Plus modules for up to eight (8) doors in a single enclosure.
Configuration Chart:

Installation Instructions:
Wiring methods shall be in accordance with the National Electrical Code/NFPA 70/ANSI, and with all local codes and authorities having jurisdiction.
Product is intended for indoor use only.
- Remove backplane from enclosure. Do not discard hardware.
- Mark and predrill holes in the wall to line up with the top three keyholes in the enclosure. Install three upper fasteners and screws in the wall with the screw heads protruding. Place the enclosure’s upper keyholes over the three upper screws, level and secure. Mark the position of the lower three holes. Remove the enclosure. Drill the lower holes and install the three fasteners. Place the enclosure’s upper keyholes over the three upper screws. Install the three lower screws and make sure to tighten all screws.
- Mount included UL Listed tamper switch (Altronix Model TS112 or equivalent) in desired location, opposite hinge. Slide the tamper switch bracket onto the edge of the enclosure, approximately 2” from the right side (Fig. 1, pg. 2). Connect tamper switch wiring to the Access Control Panel input or the appropriate UL Listed reporting device.
To activate alarm signal open the door of the enclosure.
- Mount Paxton Net2 Plus modules to TPX2 backplane, refer to page 3.
- Refer to the eFlow Power Supply/Charger Installation Guide for eFlow104NBV and corresponding Sub-Assembly Installation Guides for the following models: ACM8, PDS8 and VR6 for further installation instructions.
Hardware:

Configuration of Paxton Net2 Plus Modules:
- Align the Paxton Net2 Plus modules on the backplane to match the modules’ mounting holes with corresponding pems.
- Fasten spacers (provided) onto metal pems (Fig. 2a, pg. 3).
- Mount Paxton Net2 Plus modules to spacers utilizing pan head screws (provided) (Fig. 2a, pg. 3).
Note: Paxton Net2 Plus modules have one (1) RJ45 jack and one (1) switch each.
Please make sure that they are mounted correctly, as shown in Fig. 2 below. - Fasten TPX2 backplane to Trove2 enclosure utilizing hardware (provided)

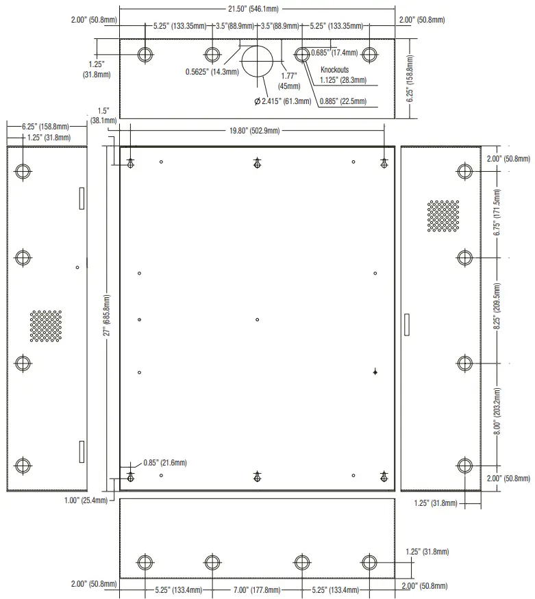
Enclosure Dimensions (H x W x D approximate):
27.25” x 21.5” x 6.5” (692.15mm x 546.1mm x 165.1mm)
Altronix is not responsible for any typographical errors.
140 58th Street, Brooklyn, New York 11220 USA
phone: 718-567-8181
fax: 718-567-9056
web site: www.altronix.com
e-mail: [email protected]
Lifetime Warranty
IIT2PXK7F8V J22U
T2PXK7F8V T2PXK7F8V Installation Guide



















