
Access & Power Integration
T3KAK33F16 16-Door Kit with Fused Outputs
Installation Guide
T3KAK33F16 16-Door Kit with Fused Outputs
T3KAK33F16
16 Door Kit with Fused Outputs
The fully assembled kit includes:
- Trove3 enclosure with TKA3 Altronix/Keyscan backplane
- (2) eFlow6NB – Power Supply/Chargers
- (2) ACM8 – Fused Access Power Controllers
- (1) PD4UL – Fused Power Distribution Board
- (1) T16175 Transformer (packed separately)
Installation Guide
All components of this Trove kit are UL Listed as sub-assemblies.
Please refer to the included corresponding Sub-Assembly Installation Guides for further information.
All registered trademarks are the property of their respective owners.
Rev. T3KAK33F16_112119
Installing Company: _________________________ Service Rep. Name: __________________________________________
Address: _________________________________________________________ Phone #: _________________________
Overview
Altronix T3KAK33F16 Trove Keyscan kit is pre-assembled and consists of Trove3KA3 enclosure/backplane with factory-installed Altronix power supply/chargers, transformer, and sub-assemblies. This kit also accommodates various combinations of Keyscan boards for up to sixteen (16) doors in a single enclosure.
Configuration Chart

Installation Instructions
Wiring methods shall be in accordance with the National Electrical Code/NFPA 70/ANSI and with all local codes and authorities having jurisdiction.
The product is intended for indoor use only.
- Remove the backplane from the enclosure. Do not discard hardware.
- Mark and predrill holes in the wall to line up with the top three keyholes in the enclosure. Install three upper fasteners and screws in the wall with the screw heads protruding. Place the enclosure’s upper keyholes over the three upper screws, level, and secure. Mark the position of the lower three holes. Remove the enclosure. Drill the lower holes and install the three fasteners. Place the enclosure’s upper keyholes over the three upper screws. Install the three lower screws and make sure to tighten all screws.

- Mount included UL Listed tamper switch (Altronix Model TS112 or equivalent) in the desired location, opposite hinge. Slide the tamper switch bracket onto the edge of the enclosure approximately 2” Enclosure Tamper Switch from the right side (Fig. 1, pg. 2). Connect the tamper switch wiring to the Access Control Panel input or the appropriate UL Listed reporting device. To activate the alarm signal open the door of the enclosure.
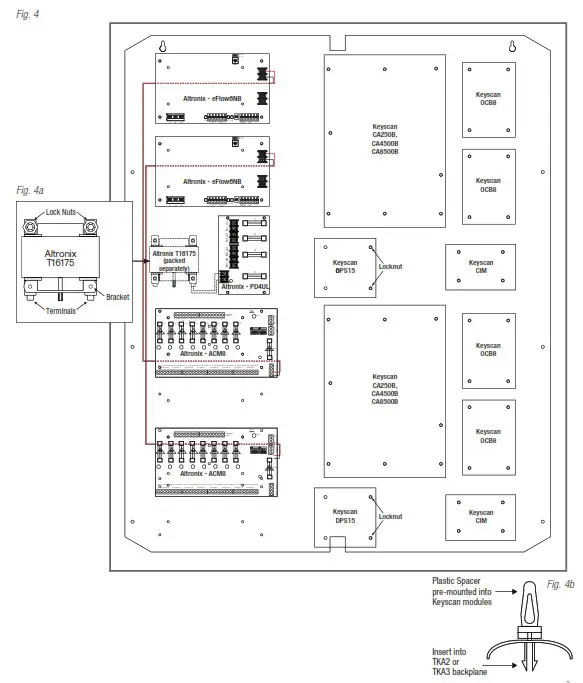
- Mounting Included T16175 Transformer:
To prevent damage, T16175 is packed separately and needs to be installed by the user. It is to be mounted on the left of the backplane, next to the PD4UL power distribution board. Please follow the steps below:
a. Orient T16175 so the terminals are facing down (Fig. 4, 4a, pg. 3).
b. Put T16175’s upper mounting holes over two mounting poems on the backplane and secure with two (2) lock nuts (Fig. 4, 4a, pg. 3).
c. Use included mounting bracket to secure T16175’s lower mounting holes. Align poems on the bracket with T16175’s lower mounting holes and corresponding holes in the backplane. Push the bracket’s poems through the holes and secure it from the back side of the backplane with two (2) lock nuts (Fig. 2, pg. 2).
d. Connect AC power 115VAC, 50/60Hz to primary leads (black and white) from terminal numbers 1 and 2 (Fig. 3, pg. 2).
e. Measure output voltage across the secondary leads (yellow and blue) from terminal numbers 7 and 12 (Fig. 3, pg. 2) before connecting devices. This helps avoid potential damage.
f. Connect PD4UL (factory mounted) to the secondary leads (yellow and blue) from terminal numbers 7 and 12 (Fig. 3, pg. 2). - Mount Keyscan boards to the backplane, refer to page 3.
- Refer to the eFlow Power Supply/Charger Installation Guide for eFlow6NB, ACM8/CB Installation Guide for ACM8, and T16175 Installation Guide for T16175 for further installation instructions.

T3KAK33F16: Configuration of Keyscan Boards
- Mount appropriate Keyscan boards into the correct positions (Fig. 4, pg. 3) by positioning spacers over appropriate holes in the backplane and depressing down on board to secure the spacer to the backplane (Fig. 4b, pg. 3).
- Fasten the backplane to the Trove2 enclosure utilizing pan head screws (provided).

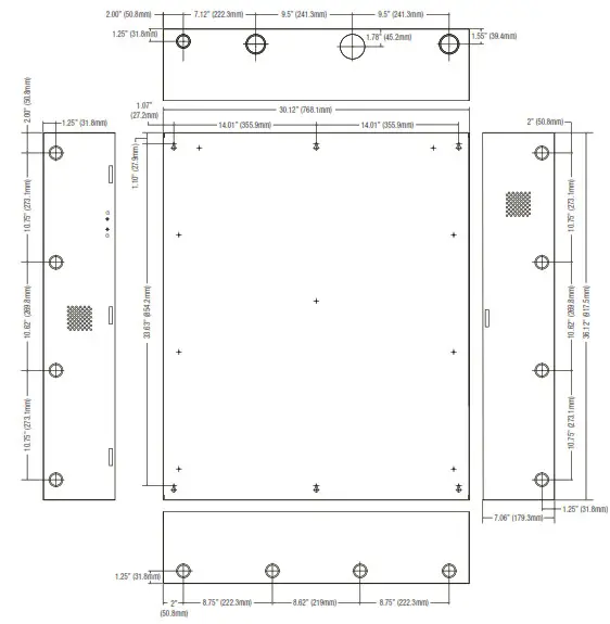
Enclosure Dimensions (H x W x D approximate):
36.12” x 30.125” x 7.06” (917.5mm x 768.1mm x 179.3mm)

Altronix is not responsible for any typographical errors.
140 58th Street, Brooklyn, New York 11220 USA | phone: 718-567-8181 | fax: 718-567-9056
web site: www.altronix.com
e-mail: [email protected]
Lifetime Warranty
IIT3KAK33F16 I28U
T3KAK33F16 Installation Guide





















