
![]()
Access & Power Integration
Installation Guide
![]()
T2HNK7F8
8 Door Kit with Fused Outputs
The fully assembled kit includes:
- Trove2 enclosure with THN2 Altronix/Honeywell NetAXS backplane
- One (1) eFlow104NB – Power Supply/Charger
- One (1) ACM8 – Fused Access Power Controller
- One (1) VR6 – Voltage Regulator
- One (1) PDS8 – Dual Input Fused Power Distribution Module
All components of this Trove kit are UL Listed as sub-assemblies. Please refer to the included corresponding Sub-Assembly Installation Guides for further information.
All registered trademarks are the property of their respective owners.
Rev. 040819
Installing Company: _________________________ Service Rep. Name: _______________________________________
Address: _________________________________________________________ Phone #: ________________________
Overview:
Altronix T2HNK7F8 Trove Honeywell NetAXS kit is pre-assembled and consists of Trove2HN2 enclosure/backplane with factory-installed Altronix power supply/charger and sub-assemblies. T2HNK7F8 kit also accommodates various combinations of Honeywell NetAXS boards for up to eight (8) doors in a single enclosure.
THN2 accommodates a combination of the following Honeywell NetAXS boards:
- Up to two (2) NX4PCB access control panels.
- Up to four (4) NetAXS-123 access control panels.
- Up to four (4) NXD1 or NXD2 add-on boards to NetAXS-123.
- Up to four (4) NX4IN or NX4OUT boards.
Configuration Chart:

Installation Instructions:
Wiring methods shall be in accordance with the National Electrical Code/NFPA 70/ANSI, and with all local codes and authorities having jurisdiction. The product is intended for indoor use only.
- Remove the backplane from the enclosure. Do not discard hardware.
- Mark and predrill holes in the wall to line up with the top three keyholes in the enclosure. Install three upper fasteners and screws in the wall with the screw heads protruding. Place the enclosure’s upper keyholes over the three upper screws, level, and secure. Mark the position of the lower three holes. Remove the enclosure. Drill the lower holes and install the three fasteners. Place the enclosure’s upper keyholes over the three upper screws. Install the three lower screws and make sure to tighten all screws.

- Mount included UL Listed tamper switch (Altronix Model TS112 or equivalent) in the desired location, opposite hinge. Slide the tamper switch bracket onto the edge of the enclosure, approximately 2″ from the right side (Fig. 1, pg. 2). Connect the tamper switch wiring to the Access Control Panel input or the appropriate UL Listed reporting device. To activate the alarm signal open the door of the enclosure.
- Mount Honeywell NetAXS boards to THN2 backplane, refer to pages 3-5.
- Refer to the eFlow Power Supply/Charger Installation Guide for eFlow104NB and corresponding Sub-Assembly Installation Guides for the following models: ACM8, PDS8, and VR6 for further installation instructions.
Hardware:

Configuration of Honeywell NX4PCB Boards:
- Align Honeywell NX4PCB boards on the backplane to match the boards’ mounting holes with the corresponding poems.
- Fasten spacers (provided) onto metal poems (Fig. 2a, pg. 3).
- Mount Honeywell NX4PCB boards to spacers utilizing pan head screws (provided) (Fig. 2a, pg. 3).
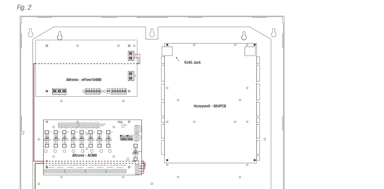
Note: Honeywell NX4PCB boards have one (1) RJ45 jack and one (1) switch each. Please make sure that they are mounted correctly, as shown in Fig. 2 below. - Fasten THN2 backplane to Trove2 enclosure utilizing hardware (provided).


Configuration of Honeywell NetAXS-123 with or without NXD1/NXD2 Boards:
- Align Honeywell NetAXS-123 boards on the backplane to match the boards’ mounting holes with the corresponding poems.
- Fasten spacers (provided) onto metal poems (Fig. 3a, pg. 4).
- Mount Honeywell NetAXS-123 boards to spacers utilizing pan head screws (provided) (Fig. 3a, pg. 4).
Note: Honeywell NetAXS-123 boards have one (1) RJ45 jack. Please make sure that they are mounted correctly, as shown in Fig. 3 below.
In order to properly mount and connect NXD1/NXD2 do the following:
• prior to mounting on the backplane, attach NXD1/NXD2 to the NetAXS-123 by connecting the multi-pin connector on the bottom of NXD1/NXD2 to the multi-pin jack on NetAXS-123. Make sure that pre-installed bump screws on NXD1/ NXD2 go through the corresponding holes in NetAXS-123.
• secure NXD1/NXD2 to NetAXS-123 using pre-installed bump screws and included spacers (Fig. 3b, pg. 4).
• after NXD1/NXD2 is firmly attached and connected to NetAXS-123, follow steps 1 and 2 above to mount them onto THN2. - Fasten THN2 backplane to Trove2 enclosure utilizing hardware (provided).


Configuration of Honeywell NX4IN or NX4OUT Boards:
- Align Honeywell NX4IN or NX4OUT boards on the backplane to match the boards’ mounting holes with the corresponding poems.
- Fasten spacers (provided) onto metal pems (Fig. 4a, pg. 5).
- Mount Honeywell NX4IN or NX4OUT boards to spacers utilizing pan head screws (provided) (Fig. 4a, pg. 5).
- Fasten THN2 backplane to Trove2 enclosure utilizing hardware (provided).


Notes:
___________________________________________
eFlow Power Supply/Chargers can be Controlled and Monitored while Reporting Power/Diagnostics from Anywhere over the Network…
![]()

LINQ2 – Network Communication Module
LINQ2 provides remote IP access to real-time data from eFlow power supply/chargers to help keep systems up and running at optimal levels. It facilitates fast and easy installation and set-up, minimizes system downtime, and eliminates unnecessary service calls, which helps reduce Total Cost of Ownership (TCO) – as well as creating a new source of Recurring Monthly Revenue (RMR).
Features:
- UL is Listed in the U.S. and Canada.
- Local or remote control of up to (2) two Altronix eFlow power output(s) via LAN and/or WAN.
- Monitor real-time diagnostics: DC output voltage, output current, AC & battery status/service, input trigger state change, output state change, and unit temperature.
- Access control and user management: Restrict read/write, Restrict users to specific resources
- Two (2) integral network controlled Form “C” Relays.
- Three (3) programmable input triggers: Control relays and power supplies via external hardware sources.
- Email and Windows Dashboard notifications
- The event log tracks history.
- Secure Socket Layer (SSL).
- Programmable via USB or web browser – includes operating software and 6 ft. USB cable.
LINQ2 Mounts Inside any Trove Enclosure

Enclosure Dimensions (H x W x D approximate):
27.25″ x 21.75″ x 6.5″ (692.2mm x 552.5mm x 165.1mm)


Altronix is not responsible for any typographical errors.
140 58th Street, Brooklyn, New York 11220 USA | phone: 718-567-8181 | fax: 718-567-9056
web site: www.altronix.com | e-mail: [email protected] | Lifetime Warranty
![]()
IIT2HNK7F8
I27U
T2HNK7F8 Installation Guide




















