TROVE Altronix/Kantech Kits

Altronix/Kantech Kits
Models Include:/
T2KHK312
12 Door Kit with Fused Outputs
Fully assembled kit includes:
- Trove2 enclosure with TKH2 Altronix/Kantech backplane
- One (1) AL600ULXB – Power Supply/Charger
- One (1) T1618300K – Transformer
- One (1) ACM4 – Fused Access Power Controller
- One (1) ACM8 – Fused Access Power Controller
T2KHK312D
12 Door Kit with PTC Outputs
Fully assembled kit includes:
- Trove2 enclosure with TKH2 Altronix/Kantech backplane
- One (1) AL600ULXB – Power Supply/Charger
- One (1) T1618300K – Transformer
- One (1) ACM4CB – PTC Access Power Controller
- One (1) ACM8CB – PTC Access Power Controller
All components of these Trove kits are UL Listed sub-assemblies.
Please refer to the included corresponding Sub-Assembly Installation Guides for further information.
Installation Guide
All registered trademarks are property of their respective owners.
Rev. 121521
Installing Company: _________________________
Service Rep. Name: __________________________________________
Address: _________________________________________________________
Phone #: _________________________
Overview
Altronix T2KHK312 and T2KHK312D Trove Kantech kits are pre-assembled and consist of Trove2KH2 enclosure/backplane with factory installed Altronix power supply/charger and sub-assemblies. T2KHK312 and T2KHK312D also accommodate various combinations of Kantech boards for up to twelve (12) doors in a single enclosure.
TKH2 accommodates a combination of the following Kantech boards:
- Up to four (4) KT-MOD-INP16 or KT-MOD-OUTP16.
- Up to four (4) KT300.
- Up to three (3) KT400.
Configuration Chart:
| Altronix Model Number | 115VAC 60Hz Input Current (A) | Power Supply Board Input Fuse Rating | Maximum Supply Current for Main and Aux. Outputs on Power Supply board and ACM4(CB)/ ACM8(CB) Access Power Controllers’ outputs | Nominal DC Output Voltage Range (VDC) | Fail-Safe/Fail- Secure or Dry Form “C” Outputs | ACM4(CB) Board Input Fuse Rating | ACM4 Board Output Fuse Rating | ACM4CB Board Output PTC Rating | ACM8(CB) Board Input Fuse Rating | ACM8 Board Output Fuse Rating | ACM8CB Board Output PTC Rating |
| T2KHK312 | 3.5 | 5A/250V | 24VDC @ 5.4A | 20.17 | 12 | 10A/32V | 3A/32V | – | 10A/250V | 2.5A/250V | – |
| T2KHK312D | – | 2.5A | – | 2.5A |
Installation Instructions
Wiring methods shall be in accordance with the National Electrical Code/NFPA 70/ANSI, and with all local codes and authorities having juris-diction. Product is intended for indoor use only.
- Remove backplane from enclosure. Do not discard hardware.
- Mark and predrill holes in the wall to line up with the top three keyholes in the enclosure. Install three upper fasteners and screws in the wall with the screw heads protruding. Place the enclosure’s upper keyholes over the three upper screws, level and secure. Mark the position of the lower three holes. Remove the enclosure. Drill the lower holes and install the three fasteners. Place the enclosure’s upper keyholes over the three upper screws. Install the three lower screws and make sure to tighten all screws.
- Mount included UL Listed tamper switch (Altronix Model TS112 or equivalent) in desired location, opposite hinge. Slide the tamper switch bracket onto the edge of the enclosure approximately 2” from the right side (Fig. 1, pg. 2). Connect tamper switch wiring to the Access Control Panel input or the appropriate UL Listed reporting device.
To activate alarm signal open the door of the enclosure. - Mount Kantech boards to TKH2 backplane, refer to page 3.
- Refer to the ULXB Power Supply/Charger Installation Guide for AL600ULXB and corresponding Sub-Assembly Installation Guides for the following models: ACM8(CB), ACM4(CB) and T1618300K for further installation instructions.

Configuration of Kantech Boards
- Align Kantech boards on the backplane to match the boards’ mounting holes with corresponding holes in backplane.
- Position spacer over appropriate hole on the rear of backplane and depress it until it locks in place (Fig. 2a, pg. 3, Step 1a).
- Depress down on board to secure it to the spacer (Fig. 2a, pg. 3, Step 1b).
- Fasten backplane to Trove2 enclosure utilizing pan head screws (provided).
Kantech Access Controller Position Chart for the Following Models:
| Kantech Board | Pem Mounting |
| KT-400 Door Controller | A |
| KT-300 Door Controller | B |
| KT-MOD-INP16 or KT-MOD-OUTP16 Expansion Boards | C |

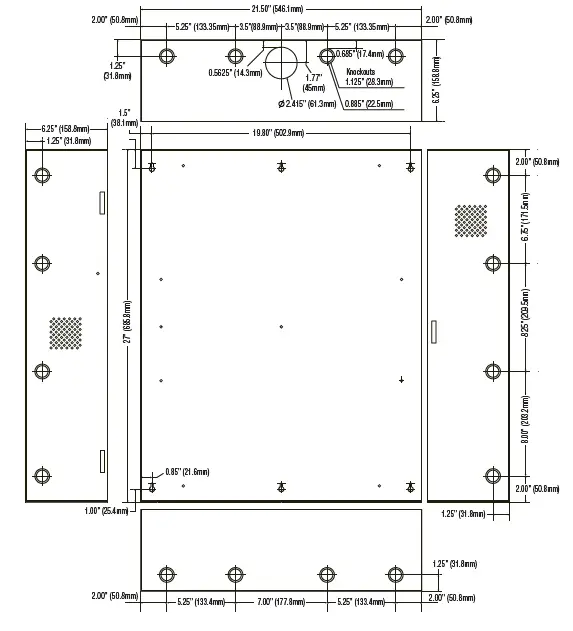
Enclosure Dimensions (H x W x D):
27.25” x 21.75” x 6.5” (692.2mm x 552.5mm x 165.1mm)
Altronix is not responsible for any typographical errors. –––––––––––––––––––––
140 58th Street, Brooklyn, New York 11220 USA | phone: 718-567-8181 | fax: 718-567-9056
- web site: www.altronix.com
- e-mail: [email protected]
- Lifetime Warranty IIT2KHK312(D)





















