More than just power.™
Trove2Z2
– Trove2 enclosure with Altronix/ZKTeco backplane (TZ2)
TZ2
– Altronix/ZKTeco backplane only![]()
All registered trademarks are property of their respective owners.
Trove2Z2/TZ2_Rev. 013118
Installing Company: _____________ Service Rep. Name: ________
Address: ______________________ Phone #: ___________
Overview:
Trove2Z2 accommodates various combinations of ZKTeco door controllers with or without Altronix power supplies and accessories for access control systems.
Specifications:
- 16 Gauge backplane and enclosure with ample knockouts for convenient access.
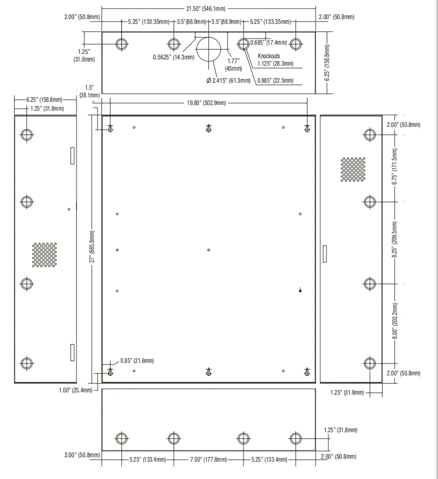
Trove2Z2
Trove2 enclosure with Altronix/ZKTeco backplane - Includes: tamper switch, cam lock, board mounting hardware.
Enclosure Dimensions (H x W x D): 27.25” x 21.75” x 6.5” (692.2mm x 552.5mm x 165.1mm).
Accommodates up to four (4) 12VDC/7AH batteries.
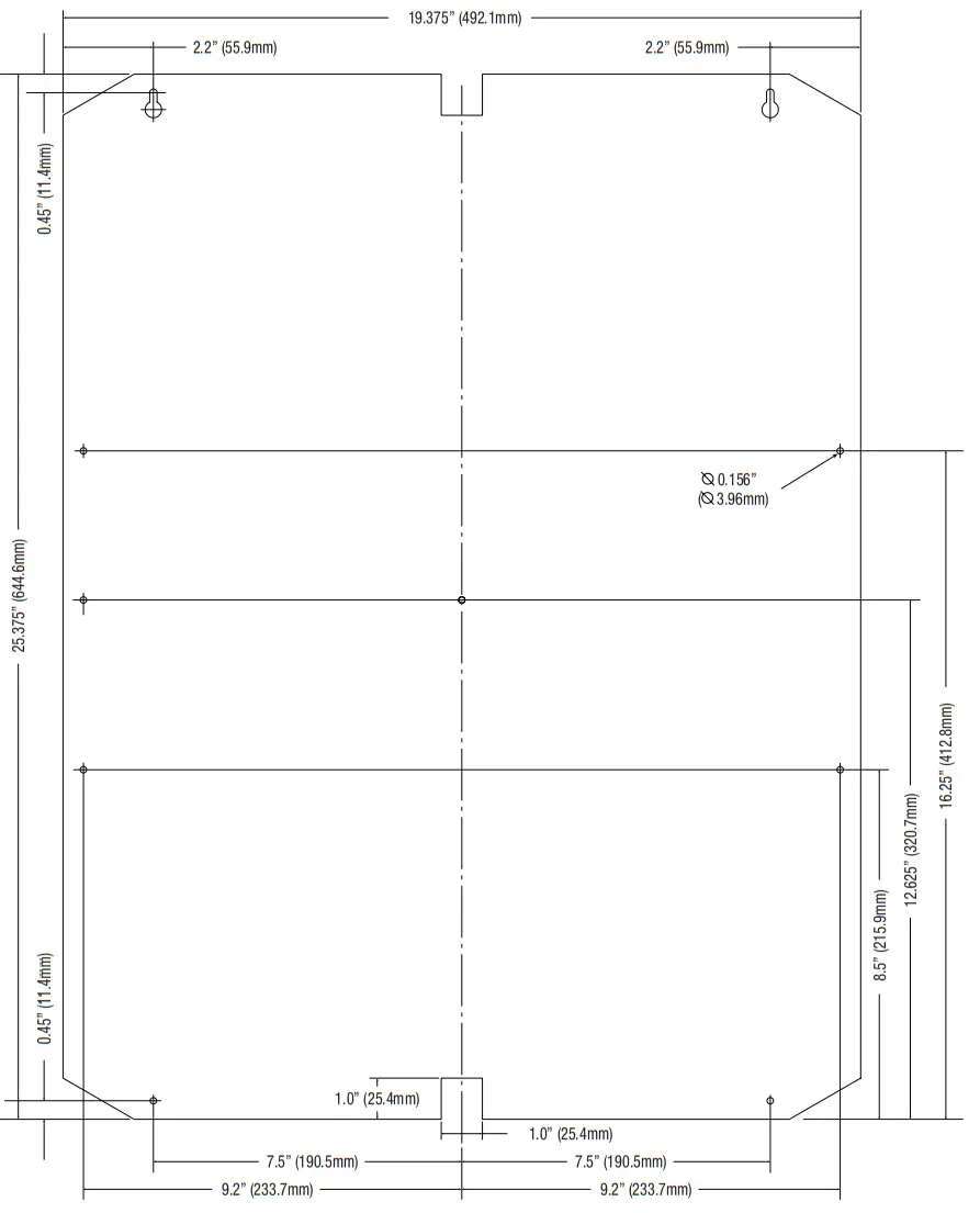
TZ2
Altronix/ZKTeco backplane only - Includes board mounting hardware.
Dimensions (H x W x D): 25.375” x 19.375” x 0.3125” (644.6mm x 492.1mm x 7.9mm).
Agency Listings:
- UL 294 – 6th edition: Line Security I, Destructive Attack I, Endurance IV, Stand-by Power II (*Stand-by Power Level I if no battery is supplied).
- This Class B digital apparatus complies with Canadian ICES-003. Cet appareil numérique de la classe B est conforme á la norme
NMB-003 du Canada. - CE European Conformity.
Installation Instructions for Trove2:
- Remove the backplane from the enclosure prior to mounting (do not discard hardware).
- Mark and predrill holes in the wall to line up with the top keyholes in the enclosure. Install the upper fasteners and screws in the wall with the screw heads protruding. Place the enclosure’s upper keyholes over the screws, level, and secure. Mark the position of the lower holes. Remove the enclosure. Drill the lower holes and install the fasteners. Place the enclosure’s upper keyholes over the upper screws. Install the lower screws and make sure to tighten all screws (Enclosure Dimensions, pg. 8).
- Mount UL Listed tamper switch (Altronix Model TS112 included or equivalent) in the desired location, opposite hinge. Slide the tamper switch bracket onto the edge of the enclosure approximately 2” from the right side (Fig. 1, pg. 2). Connect the tamper switch wiring to the Access Control Panel input or the appropriate UL Listed reporting device. To activate the alarm signal open the door of the enclosure.
- Mount Altronix/ZKTeco boards/modules to a backplane, refer to pages 3-5.
Hardware:
Nylon or Metal Spacer |
5/16” Pan Head Screw

Installation Instructions for Altronix Power Supplies and/or Sub-Assemblies to TZ2:
- Fasten spacers (included) to pems that match the hole pattern for Altronix Power Supply/Chargers or Altronix Sub-Assembly boards (Fig. 2, pg. 3). Fasten metal spacers in the correct locations to provide proper grounding, see below (Fig. 2, pg. 3).
- Mount boards to spacers utilizing 5/16” pan head screws (included) (Fig. 2, 2a, pg. 3).
| Altronix Model | Pem Mounting |
| AL400ULXB2, AL600ULXB, AL1012ULXB, AL1024ULXB2, eFlow4NB, eFLow6NB, eFlow102NB, eFlow104NB, ACM8(CB), ACMS8(CB) | A |
| ACM4(CB), PD4UL/PD4ULCB, PD8UL/PD8ULCB, MOM5, PDS8(CB) or VR6 | B |

Installation Instructions for ZKTeco Modules to TZ2:
- Fasten DIN Rail (provided by ZKTeco) to pem spacers, utilizing 5/16” pan head screws (included) (Fig. 3, pg. 4).
- Mount ZKTeco modules to DIN Rail (refer to below chart for the model number, Fig. 3, pg. 4).
- Fasten the TZ2 backplane to Trove2 enclosure utilizing lock nuts (provided by Altronix).
| ZKTeco Model | Pem Mounting |
| SMB/Pro Series inBio 460 | C |
| SMB/Pro Series inBio160/260 | D |

Installation Instructions for ZKTeco Boards to TZ2:
- Fasten spacers (provided) to pems that match the hole pattern for ZKTeco boards (refer to the below chart for the model number, Fig. 4, pg. 5).
- Mount ZKTeco boards to spacers utilizing 5/16” pan head screws (included) (refer to the below chart for the model number, Fig. 4, pg. 5).
- Fasten TZ2 backplane to Trove2 enclosure utilizing lock nuts (included).
| ZKTeco Model | Pem Mounting |
| SMB/Pro Series C3 400 | E |
| SMB/Pro Series C3 100/200 | F |

eFlow Power Supply/Chargers can be Controlled and Monitored while Reporting Power/Diagnostics from Anywhere over the Network…
LINQ™
LINQ2 – Network Communication Module
LINQ2 provides remote IP access to real-time data from eFlow power supply/chargers to help keep systems up and running at optimal levels. It facilitates fast and easy installation and set-up, minimizes system downtime, and eliminates unnecessary service calls, which helps reduce Total Cost of Ownership (TCO) – as well as creates a new source of Recurring Monthly Revenue (RMR).

Features:
- UL Listed in the U.S. and Canada.
- Local or remote control of up to (2) two Altronix eFlow power output(s) via LAN and/or WAN.
- Monitor real-time diagnostics: DC output voltage, output current, AC & battery status/service, input trigger state change, output state change, and unit temperature.
- Access control and user management: Restrict read/write, Restrict users to specific resources
- Two (2) integral network controlled Form “C” Relays.
- Three (3) programmable input triggers: Control relays and power supplies via external hardware sources.
- Email and Windows Dashboard notifications
- Event log tracks history.
- Secure Socket Layer (SSL).
- Programmable via USB or web browser – includes operating software and 6 ft. USB cable.
LINQ2 Mounts Inside any Trove Enclosure

TZ2 Dimensions (H x W x D):
25.375” x 19.375” x 0.325” (644.5mm x 482.6mm x 8.3mm)

Trove2Z2 Enclosure Dimensions (H x W x D):
27.25” x 21.75” x 6.5” (692.2mm x 552.5mm x 165.1mm) 
Trove2Z2 / TZ2 Installation Guide
Altronix is not responsible for any typographical errors.
140 58th Street, Brooklyn, New York 11220 USA | phone: 718-567-8181 | fax: 718-567-9056
web site: www.altronix.com | e-mail: [email protected]
IITrove2Z2 J20U![]()



















