

Access & Power Integration
Trove1PD1 Trove1 Enclosure with PDK Backplane
Trove1PD1
– Trove1 enclosure with Altronix/PDK backplane (TPD1)
TPD1
– Altronix/PDK backplane only
Installation Guide
All registered trademarks are the property of their respective owners.
Rev. TPDK031418
Installing Company: _________________________ Service Rep. Name: __________________________________________
Address: _________________________________________________________ Phone #: _________________________
Overview:
Altronix Trove1PD1 accommodates various combinations of PDK boards with or without Altronix power supplies and sub-assemblies for access systems.
Specifications:
- 16 Gauge backplane and enclosure with ample knockouts for convenient access.
Trove1PD1
Trove1 enclosure with TPD1 Altronix/PDK backplane
- Includes tamper switch, cam lock, lock nuts, and mounting hardware.
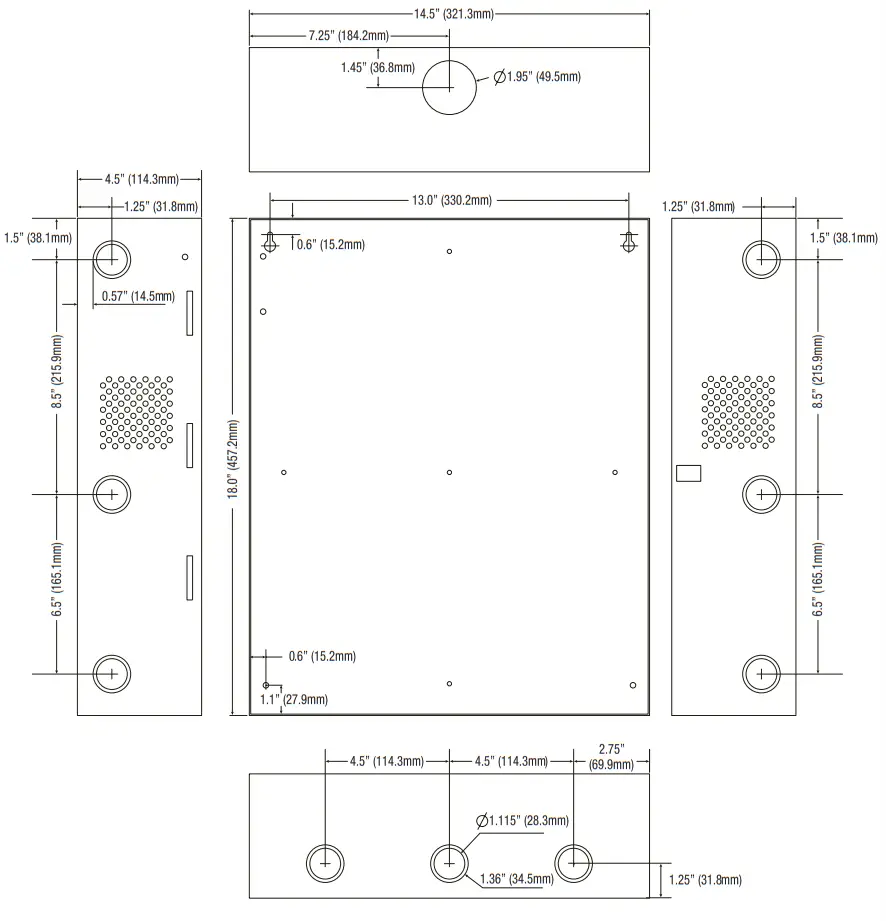
Enclosure Dimensions (H x W x D): 18” x 14.5” x 4.625” (457mm x 368mm x 118mm).
TPD1
Altronix/PDK backplane only
• Includes mounting hardware.
Dimensions (H x W x D): 16.625” x 12.5” x 0.3125” (422.3mm x 317.5mm x 7.9mm).
TPD1 accommodates a combination of the following:
- Altronix Modules:
Up to two (2) AL400ULXB2, AL600ULXB, AL1012ULXB, AL1024ULXB2, eFlow4NB, eFlow6NB, eFlow102NB or eFlow104NB. One (1) ACM8, ACM8CB, ACMS8, ACMS8CB, LINQ8ACM, LINQ8ACMCB or one (1) ACM4, ACM4CB, LINQ8PD, LINQ8PDCB, MOM5, PD4UL, PD4ULCB, PD8UL, PD8ULCB, PDS8, PDS8CB, VR6 - PDK Modules:
Up to three (3) 8DEE modules.
Agency Listings:
- UL 294 – 6th edition: Line Security I, Destructive Attack I, Endurance IV, Stand-by Power II*.
*Stand-by Power Level I if no battery is supplied. - This Class B digital apparatus complies with Canadian ICES-003.
Cet appareil numérique de la classe B est conforme á la norme NMB-003 du Canada. - CE European Conformity.
Installation Instructions for Trove1:
- Remove the backplane from the enclosure prior to mounting (do not discard hardware).
- Mark and predrill holes on the wall to line up with the top two keyholes in the enclosure. Install two upper fasteners and screws in the wall with the screw heads protruding. Place the enclosure’s upper keyholes over the two upper screws; level and secure.
Mark the position of the lower two holes. Remove the enclosure. Drill the lower holes and install the two fasteners. Place the enclosure’s upper keyholes over the two upper screws. Install the two lower screws and make sure to tighten all screws. - Mount included UL Listed tamper switch (Altronix Model TS112 or equivalent) in the desired location, opposite hinge.
Slide the tamper switch bracket onto the edge of the enclosure approximately 2” from the right side (Fig. 1, pg. 1).
Connect tamper switch wiring to the Access Control Panel input or the appropriate UL Listed reporting device.
To activate the alarm signal open the door of the enclosure. - Mount Altronix/PDK modules to TPD1 backplane, refer to page 3.

TPD1: Configuration of Altronix Power Supply, Sub-Assemblies, and PDK Modules
- Fasten spacers (provided) to poems that match the hole pattern for Altronix Power Supply/Chargers (Fig. 2, pg. 3). Fasten metal spacers in the correct locations to provide proper grounding, see below (Fig. 2, pg. 3).
- Mount boards to spacers utilizing 5/16” pan head screws (provided) (Fig. 2a, pg. 3).
- Fasten spacers (provided) to poems that match the hole pattern for PDK 8DEE modules. Mount boards to spacers utilizing 5/16” pan head screws (provided) (Fig. 2, 2a, pg. 3).
Note: PDK 8DEE modules have one (1) RJ45 jack each.
Please make sure that they are mounted correctly, as shown in Fig. 2 below. - Fasten the TPD1 backplane to the Trove1 enclosure utilizing pan head screws (provided).
Fig. 2 – Trove1PD1/TPD1 Configurations

Trove1PD1 Enclosure Dimensions (H x W x D):
18” x 14.5” x 4.625” (457mm x 368mm x 118mm)
Altronix is not responsible for any typographical errors.
140 58th Street, Brooklyn, New York 11220 USA | phone: 718-567-8181 | fax: 718-567-9056
web site: www.altronix.com | e-mail: [email protected]
IITrove1PD1 / TPD1
J05U
Trove1PD1 / TPD1 Installation Guide




















