WP1 Weatherproof Enclosure
Installation Guide
Overview:
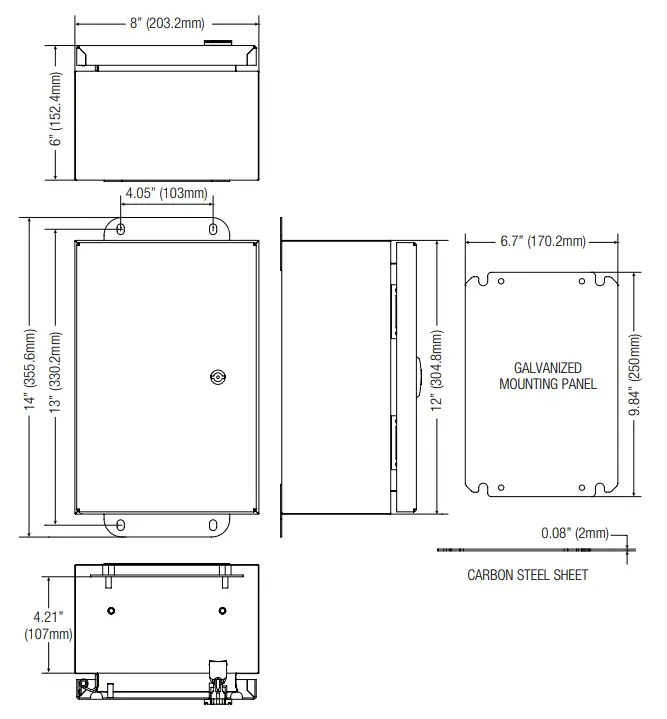
Altronix WP1 is a UL Listed, NEMA 4/IP 65 Rated power supply/battery outdoor enclosure with a metal backplane that can accommodate a wide variety of Altronix power supplies, sub-assemblies, and other accessories.
Specifications:
- NEMA 4/4X, IP66-11 Rated enclosure for outdoor use.
- 16 GA steel enclosure finished with heat-fused polyester powder.
- Includes metal backplanes for mounting power supplies and accessories.
- Turn lock included.
- Integral flanges simplify wall or pole mounting.
- Fits two (2) 12VDC/7AH batteries.
- Product weight: 9 lb. (4.08 kg).
- Shipping weight: 10 lb. (4.54 kg).
Installation Instructions:
- Remove the backplane inside the enclosure by removing the four (4) mounting screws (Fig. 1a, pg. 1).
- Mark and drill desired knockouts on the enclosure to facilitate wiring (Fig. 2, pg. 2).
- Secure the backplane inside an enclosure with the four (4) mounting screws (Fig. 1a, pg. 1).
- Secure enclosure to earth ground.


Wall Mount Installation
- Place the unit at the desired location and secure it with mounting screws (not included) (Fig. 3, pg. 3).

Pole Mounting Using Optional Pole Mount Kit PMK1 (not included):
This installation should be made by qualified service personnel. This product contains no serviceable parts.
PMK1 is intended for use with Altronix outdoor-rated power supplies or accessories housed in WP1, WP2, WP3, and WP4 enclosures. Brackets are designed for use with the Wormgear Quick Release Straps (two included).
- Thread one (1) wormgear quick-release strap through the slots on the back of a mounting bracket (Fig. 4, pg. 3).
- Once the desired height of the top Pole Mount bracket is achieved, tighten the straps down by sliding the open end of the strap through the locking mechanism on the strap, then tighten the screw with flat head screwdriver or 5/16” hex socket driver (Fig. 5, pg. 3 and Fig. 7, pg. 3).

- Attach the bottom bracket to the enclosure by inserting bolts through the flange of the enclosure and into the bracket, tightening bolts with a 7/16” hex socket (Fig. 6, pg. 3).
- Thread the second wormgear quick-release strap through the slots on the back of the bottom mounting bracket (Fig. 4, pg. 3).
- Mount the enclosure onto the top bracket by inserting bolts through the flange of the enclosure and into the bracket, tightening bolts with a 7/16” hex socket (Fig. 6, pg. 3).
- Tighten the straps of the bottom bracket down by sliding the open end of the strap through the locking mechanism on the strap, then tighten the screw with a flathead screwdriver or 5/16” hex socket driver (Fig. 4, pg. 3).
- Clip excess straps.

Enclosure Dimensions (H x W x D approximate):
12” x 8” x 6” (304.8mm x 203.2mm x 152.4mm)

Altronix is not responsible for any typographical errors.
140 58th Street, Brooklyn, New York 11220 USA | phone: 718-567-8181 | fax: 718-567-9056
website: www.altronix.com | e-mail: [email protected]
IIWP1 – Rev. 121409 G14U





















