Contents hide
Altronix ALTV2416220 Series 16-Output CCTV Power Supplies

Overview
Altronix ALTV2416220 Series CCTV Power Supplies provide 24VAC or 28VAC distributed via sixteen(16) fuse or PTC protected outputs for powering CCTV cameras, heaters and other video accessories.
Sixteen (16) Output ALTV2416220 Reference Chart
|
Altronix Model Number | Output Voltage | Total Output Current (Power) | Number of Outputs | PTC Protected Outputs (auto-resettable) | Fuse Protected Outputs | Output Current (max. per output) | Main Fuse Ratings | 220VAC 50/60Hz Input Current |
| ALTV2416220 | 24VAC | 8A |
16 | – | P | 3.5A | 5A/ 250V |
0.5A |
| 28VAC | 7A | |||||||
| ALTV2416CB220 | 24VAC | 8A | P | – | 2.5A | |||
| 28VAC | 7A | |||||||
| ALTV2416350220 | 24VAC | 14A | – | P | 3.5A |
15A/ 250V |
1.5A | |
| 28VAC | 12.5A | |||||||
| ALTV2416350CB220 | 24VAC | 14A | P | – | 2.5A | |||
| 28VAC | 12.5A | |||||||
| ALTV2416300M220 | 24VAC | 12.5A | – | P | 3.5A | |||
| 28VAC | 10A | |||||||
| ALTV2416300CBM220 | 24VAC | 12.5A | P | – | 2.5A | |||
| 28VAC | 10A | |||||||
| ALTV2416600220 | 24VAC | 28A | – | P | 3.5A |
3A | ||
| 28VAC | 25A | |||||||
| ALTV2416600CB220 | 24VAC | 28A | P | – | 2.5A | |||
| 28VAC | 25A |
Specifications
Agency Listing:
- CE European Conformity.
Input:
- 220VAC, 50/60Hz.
Output:
- Sixteen (16) fuse or PTC protected outputs.
- 24VAC or 28VAC supply current.
- Outputs are rated @ 3.5A (fused) or 2.5A (PTC).
- Surge suppression.
Features:
- AC power LED.
- Power ON/OFF switch.
- Spare fuses provided.
(all models w/primary and/or secondary fuses). - Unit maintains camera synchronization.
- Ease of installation saves time & eliminates costly labor.
- Spare fuses included (on fuse protected models).
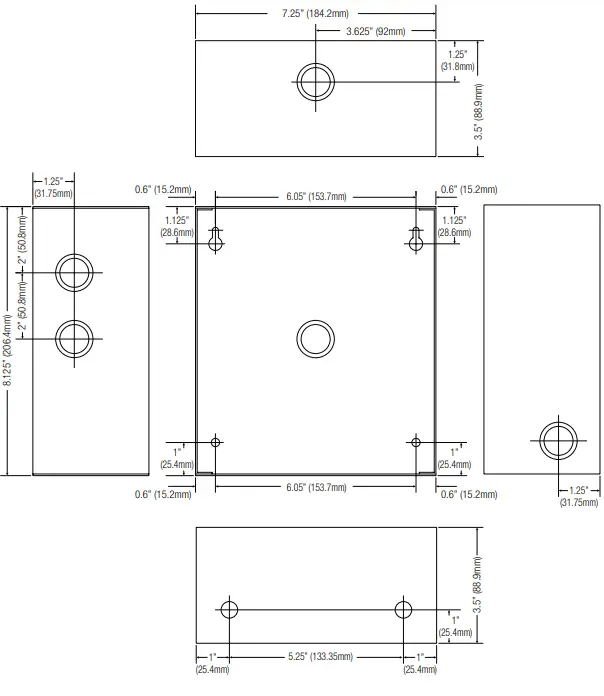
Enclosure Dimensions:
- ALTV2416220 and ALTV2416CB220:
8.5” x 7.5” x 3.5”
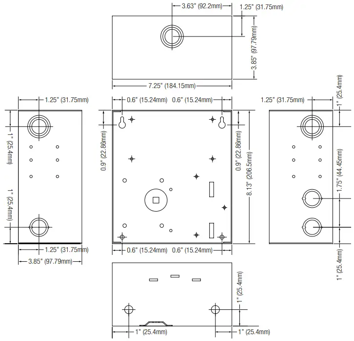
(215.9mm x 190.5mm x 88.9mm). - ALTV2416300M220 and ALTV2416300CBM220:
8.5” x 7.5” x 3.875”
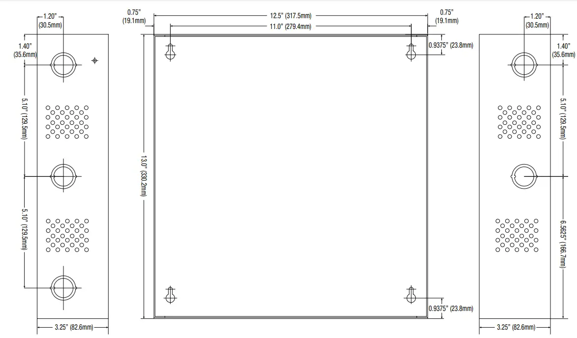
(215.9mm x 191mm x 98.4mm). - ALTV2416350220, ALTV2416350CB220,
- ALTV2416600220, and ALTV2416600CB220:
13.5” x 13” x 3.25”
(342.9mm x 330.2mm x 82.6mm).
Installation Instructions
- Mount unit in the desired location. Mark and predrill holes in the wall to line up with the top two keyholes in theenclosure. Install two upper fasteners and screws in the wall with the screw heads protruding. Place the enclosure’s upper keyholes over the two upper screws, level and secure. Mark the position of the lower two holes. Remove the enclosure. Drill the lower holes and install three fasteners. Place the enclosure’s upper keyholes over the two upper screws. Install the two lower screws and make sure to tighten all screws (Enclosure Dimensions, pg. 9-12). Secure enclosure to earth ground.
- Slide switch on PD board to the OFF position for models ALTV2416220 and ALTV2416CB220 (Fig. 1, pg. 4).
Turn OFF main switch on all other models, (Figs. 2-5, pgs. 5-8). - All units are factory set for 24VAC operation. For 28VAC operation adjust unit prior to mounting and applying power as follows: Change the wire position so that the black wire [28V] is connected to the terminal marked [P] and the yellow wire [24V] is connected to the terminal marked [S].
- Connect unswitched AC circuit (220VAC, 50/60Hz) as follows: Green branch wire (ground) connects to the terminal marked , Line connects to the terminal marked [L], and Neutral connects to the terminal marked [N] of the Inlet Appliance Connector. (Figs. 1-5, pgs. 4-8).
Use 18 AWG or larger for all power connections. - Slide switch SW1 to the ON position on models ALTV2416220 and ALTV2416CB220 (Fig. 1, pg. 4).
Turn main switch on all other models to the “RESET” (ON) position (Figs. 2, 3, pgs. 5, 6). - Measure output voltage before connecting devices. This helps avoiding potential damage.
Terminals marked [1P – 8P] are positive of the same polarity.
CAUTION: Determine the maximum operating voltage of the equipment being powered before adjusting the output voltage. - Slide switch on PD board to the OFF position for models ALTV2416220 and ALTV2416CB220
(Fig. 1, pg. 4). Turn OFF main switch on all other models, (Figs. 2-5, pgs. 5-8). - Connect devices to the terminals marked [1P – 1N] through [8P – 8N] on PD8/PD8CB board (Fig. 5, pg. 8) or terminals marked [1P – 1N] through [16P – 16N] on PD16W/PD16WCB board (Figs. 1-4, pgs. 4-7), carefully observing polarity.
- Slide switch on PD board to the ON position for models ALTV2416220 and ALTV2416CB220
(Fig. 1, pg. 4). Turn main switch on all other models to the “RESET” (ON) position (Figs. 2-5, pgs. 5-8). - Green LED will illuminate when unit is powered.
- Upon completion of wiring, secure enclosure door with screws (supplied).
CAUTION: Equipment to be installed / serviced by authorized / trained personnel only. Shut branch circuit power before installing / servicing equipment.
WARNING: To reduce the risk of fire or electric shock, do not expose the unit to rain or moisture. This installation should be made by qualified service personnel and should conform to the National Electrical Code and all local codes.



Voltage Selection Configuration
Terminal Identification:
PD8/PD8CB – Distribution Module
| 1P – 8P | AC output. |
| 1N – 4N | AC output. |
PD16W/PD16WCB – Distribution Module
| 1P – 16P | AC output. |
| 1N – 16N | AC output. |
ATTENTION
- The lightning flash with arrowhead symbol within an equilateral triangle is intended to alert the user to the presence of an insulated DANGEROUS VOLTAGE within the product’s enclosure that may be of sufficient magnitude to constitute an electric shock.
- The exclamation point within an equilateral triangle is intended to alert the user to the presence of important operating and maintenance (servicing) instructions in the literature accompanying the appliance.
- CAUTION:
- To reduce the risk of electric shock do not open enclosure.
- There are no user serviceable parts inside.
- Refer servicing to qualified service personnel.
Enclosure Dimensions (H x W x D) for
- ALTV2416220
- ALTV2416CB220
8.5” x 7.5” x 3.5” (215.9mm x 190.5mm x 88.9mm)
- ALTV2416300M220
- ALTV2416300CBM220
8.5” x 7.5” x 3.875” (215.9mm x 191mm x 98.4mm)
- ALTV2416350220
- ALTV2416350CB220
- ALTV2416600220
- ALTV2416600CB220
13.5” x 13” x 3.25” (342.9mm x 330.2mm x 82.6mm)



ABOUT COMPANY
- Altronix is not responsible for any typographical errors.
- 140 58th Street, Brooklyn, New York 11220 USA
- 718-567-8181
- fax: 718-567-9056
- website: www.altronix.com
- e-mail: [email protected]
- Lifetime Warranty
- IIALTV2416220 Series






























