Altronix ALTV2416 Series 16-Output CCTV Power Supplies
Overview
Altronix ALTV2416 Series CCTV Power Supplies provide 24VAC or 28VAC distributed via sixteen(16) fuse or PTC protected outputs for powering CCTV cameras, heaters and other video accessories.
Sixteen (16) Output ALTV2416 Reference Chart:
Specifications
Input:
- 115VAC, 50/60Hz.
Output:
- Sixteen (16) fuse or PTC protected outputs.
- 24VAC or 28VAC supply current.
- Outputs are rated @ 3.5A (fused) or 2.5A (PTC).
- Surge suppression.
Features:
- AC power LED.
- Power ON/OFF switch.
- Spare fuses are provided. (all models w/primary and/or secondary fuses).
- Unit maintains camera synchronization.
Features (cont’d):
- Ease of installation saves time & eliminates costly labor.
- Spare fuses included (on fuse-protected models).
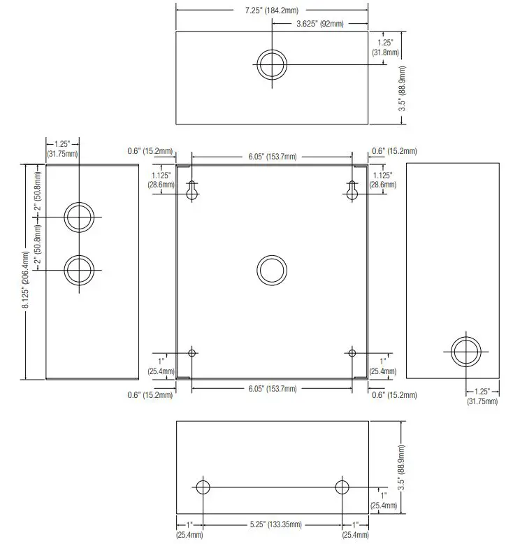
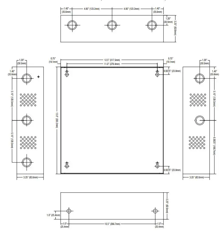
Enclosure Dimensions:
ALTV2416 and ALTV2416CB: 8.5” x 7.5” x 3.5” (215.9mm x 190.5mm x 88.9mm). ALTV2416350, ALTV2416350CB, ALTV2416600, and ALTV2416600CB: 13.5” x 13” x 3.25” (342.9mm x 330.2mm x 82.6mm).
Installation Instructions
- Mount unit in the desired location. Mark and predrill holes in the wall to line up with the top two keyholes in the enclosure. Install two upper fasteners and screws in the wall with the screw heads protruding. Place the enclosure’s upper keyholes over the two upper screws, level and secure. Mark the position of the lower two holes. Remove the enclosure. Drill the lower holes and install three fasteners. Place the enclosure’s upper keyholes over the two upper screws. Install the two lower screws and make sure to tighten all screws (Enclosure Dimensions, pg. 7-8). Secure enclosure to earth ground.
- Slide switch on PD board to OFF position for models ALTV2416 and ALTV2416CB (Fig. 1, pg. 4). Turn OFF main switch on all other models (Figs. 2-4, pgs. 5-7).
- All units are factory set for 24VAC operation. For 28VAC operation, adjust unit prior to mounting and applying power as follows: Change the wire position so that the black wire [28V] is connected to the terminal marked [P] and the yellow wire [24V] is connected to the terminal marked [S].
- Connect AC power to the black and white flying lead of the transformer(s) (Figs. 1-3, pgs. 4-6). Use 18 AWG or larger for all power connections.
- Measure output voltage before connecting devices. This helps avoiding potential damage. Terminals marked [1P – 8P] are positive of the same polarity.
CAUTION: Determine the maximum operating voltage of the equipment being powered before adjusting the output voltage. - Connect devices to terminals marked [1P – 1N] through [8P – 8N] on PD8/PD8CB board, carefully observing polarity.
- Slide switch on PD board to ON position for models ALTV2416, and ALTV2416CB (Fig. 1, pg. 4). Turn main switch on all other models to the “RESET” (ON) position (Figs. 2-3, pgs. 5-6).
- Green LED will illuminate when the unit is powered.
- Upon completion of the wiring, secure the enclosure door with screws (supplied).
Caution: Equipment to be installed/serviced by authorized/trained personnel only. Shut branch circuit power before installing/servicing equipment.
WARNING: To reduce the risk of fire or electric shock, do not expose the unit to rain or moisture. This installation should be made by qualified service personnel and should conform to the National Electrical Code and all local codes.
Terminal Identification
PD8/PD8CB – Distribution Module
PD16W/PD16WCB – Distribution Module
The lightning flash with arrowhead symbol within an equilateral triangle is intended to alert the user to the presence of an insulated DANGEROUS VOLTAGE within the product’s enclosure that may be of sufficient magnitude to constitute an electric shock. The exclamation point within an equilateral triangle is intended to alert the user to the presence of important operating and maintenance (servicing) instructions in the literature accompanying the appliance.
Fig. 1 – ALTV2416 and ALTV2416CB

Voltage Selection Configuration

Fig. 2 – ALTV2416350 and ALTV2416350CB

Voltage Selection Configuration

Fig. 3 – ALTV2416600 and ALTV2416600CB

Voltage Selection Configuration

Enclosure Dimensions
ALTV2416/ALTV2416CB

ALTV2416600/ALTV2416600CB






















