Altronix ALTV244ULCB3 CCTV Power Supply Installation Guide

Overview:
Altronix ALTV244UL3 Series CCTV Power Supplies provide 24VAC or 28VAC distributed via four (4) fuse or PTC
protected outputs for powering CCTV cameras, heaters and other video accessories.
Four (4) Output ALTV244UL3 Reference Chart:
|
Altronix Model Number | Output Voltage | Total Output Current (Power) | Number of Outputs | PTC Protected Outputs (Class 2 power-limited for Dry locations – Class 3 for Wet locations) (auto-resettable) | Fuse Protected Class 1 Outputs | Individual Output Current (max per output, not to exceed total output current) | Fuse Ratings | Main Fuse Ratings | Primary In-line Fuse Ratings | 115VAC 60Hz Input Current | Agency Listings |
| ALTV244UL3 | 24VAC | 3.5A | 4 | – | 3.5A | 3.5A | 5A/ 250V | 3.5A/ 250V | 0.9A |
| |
| 28VAC | 3A | ||||||||||
| ALTV244ULX3 | 24VAC | 3.5A | 4 | – | 3.5A | 3.5A | 5A/ 250V | 3.5A/ 250V | 0.9A | ||
| 28VAC | 3A | ||||||||||
| ALTV244ULCB3 | 24VAC | 3.5A | 4 | – | 2.5A | – | 5A/ 250V | 3.5A/ 250V | 0.9A | ||
| 28VAC | 3A | ||||||||||
| ALTV244175UL3 | 24VAC | 7A | 4 | – | 3.5A | 3.5A | 10A/ 250V | – | 1.76A | ||
| 28VAC | 6.25A | ||||||||||
| ALTV244175ULCB3 | 24VAC | 7A | 4 | – | 2.5A | – | 10A/ 250V | – | 1.76A | ||
| 28VAC | 6.25A |
Specifications:
Agency Listings:
- UL Listed for Commercial CCTV Equipment (UL 2044).
CUL Listed – CSA Standard C22.2 No.1-98, Audio, Video and Similar Equipment. - CE European Conformity. Input:
- 115VAC, 50/60Hz.
Output:
- Four (4) fuse or PTC protected outputs.
- 24VAC or 28VAC output.
- Outputs are rated @ 3.5A (fused) or 2.5A (PTC).
- Surge suppression.
Features:
- Power ON/OFF switch (ALTV244UL3, ALTV244ULX3, and ALTV244ULCB3).
Features (cont’d):
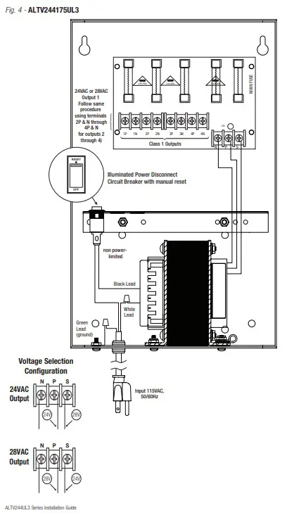
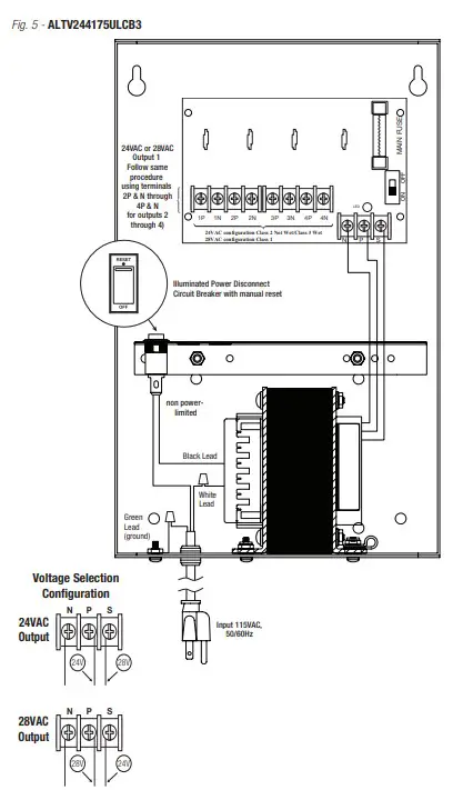
- lluminated power disconnect circuit breaker with manual reset (ALTV244175UL3 and ALTV244175ULCB3).•
- Unit maintains camera synchronization.
- Ease of installation saves time & eliminates
costly labor.
- Spare fuses included (on fuse protected models).
Enclosure Dimensions (H x W x D): - ALTV244UL3, ALTV244ULCB3 8.5” x 7.5” x 3.5” (215.9mm x 190.5mm x 88.9mm).
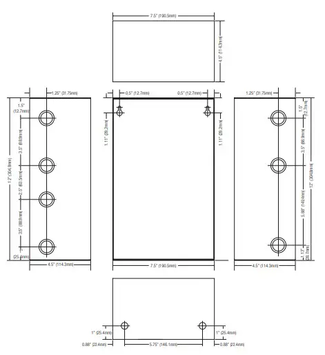
- ALTV244175UL3, ALTV24175ULCB3 12” x 7.5” x 4.5” (304.8mm x 190.5mm x 114.3mm).
- ALTV244ULX3 13.5” x 13” x 3.25” (342.9mm x 330.2mm x 82.6mm).
Installation Instructions:
- Mount unit in the desired location. Mark and predrill holes in the wall to line up with the top two keyholes in the enclosure. Install two upper fasteners and screws in the wall with the screw heads protruding. Place the enclosure’s upper keyholes over the two upper screws, level and secure. Mark the position of the lower two holes. Remove the enclosure. Drill the lower holes and install the three fasteners. Place the enclosure’s upper keyholes over the two upper screws. Install the two lower screws and make sure to tighten all screws (Enclosure Dimensions, pgs. 10-12). Secure enclosure to earth ground.
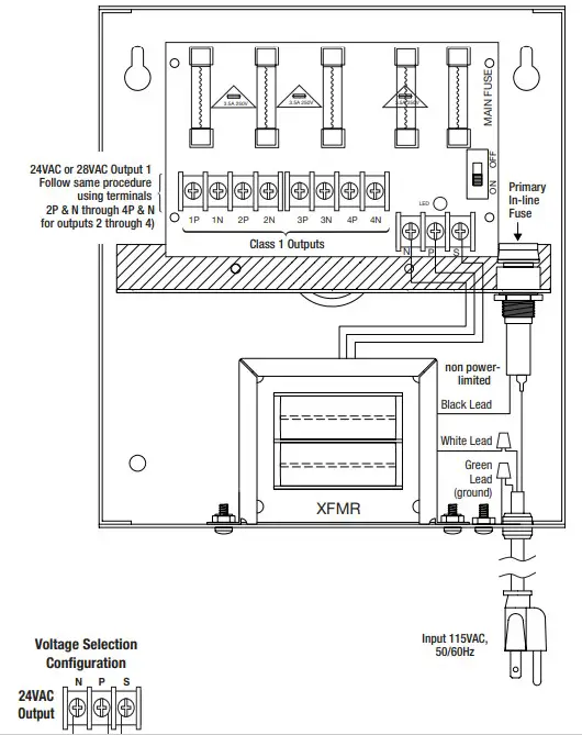
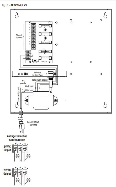
- Set power switch on power distribution board marked [PD] to OFF position for models ALTV244UL3, ALTV244ULX3 or ALTV244ULCB3 (Figs. 1-3, pgs. 4-6).
- All units are factory set for 24VAC operation. For 28VAC operation adjust unit prior to applying power as follows: Remove wires marked [24V] and [28V] from terminals marked [P] and [S]. Connect wire marked [28V] to terminal marked [P] and connect wire marked [24V] to terminal marked [S].
Note: ALTV244ULCB3 set for 28VAC operation is not Class 2 Rated, not power-limited. - Plug in 3-wire line cord (Figs. 1-5, pgs. 4-8). Keep power-limited (PTC protected outputs only) wiring separate from non power-limited wiring. Minimum 0.25” spacing must be provided. Use separate knockouts.
- Set power switch on power distribution board marked [PD] to ON position for models ALTV244UL3, ALTV244ULX3 or ALTV244ULCB3 (Figs. 1-3, pgs. 4-6).
- Measure output voltage before connecting devices. This helps avoiding potential damage. Terminals marked [1P – 4P] are of the same polarity.
CAUTION: Determine the maximum operating voltage of the equipment being powered before adjusting the output voltage. - Set power switch on power distribution board marked [PD] to OFF position for models ALTV244UL3, ALTV244ULX3 or ALTV244ULCB3 (Figs. 1-3, pgs. 4-6).
- Connect devices to the terminals marked [1P] – [1N] through [4P] – [4N] on PD4 or PD4CB board (Figs. 1-5, pgs. 4-8), carefully observing polarity.
- Set power switch on power distribution board marked [PD] to ON position for models ALTV244UL3, ALTV244ULX3 or ALTV244ULCB3 (Figs. 1-3, pgs. 4-6).
- Green LED will illuminate when power is present.
- Upon completion of the wiring, secure enclosure door with screws (supplied). Installation of a cam lock is optional.
Caution: Equipment to be installed/serviced by authorized/trained personnel only. Shut branch circuit power before installing/servicing equipment.
WARNING:
To reduce the risk of fire or electric shock, do not expose the unit to rain or moisture. This installation should be made by qualified service personnel and should conform to the National Electrical
Code and all local codes. Use 75˚C or higher rated UL insulated wiring for connecting the unit to the mains. Replace fuses with the same type and rating (refer to Four (4) Output ALTV244UL3 Reference Chart, pg. 2).
Terminal Identification:
PD4/PD4CB – Distribution Module
| 1P – 4P | AC output. |
| 1N – 4N | AC output. |
The lightning flash with arrowhead symbol within an equilateral triangle is intended to alert the user to the presence of an insulated DANGEROUS VOLTAGE within the product’s enclosure that may be of sufficient magnitude to constitute an electric shock.
The exclamation point within an equilateral triangle is intended to alert the user to the presence of impor- tant operating and maintenance (servicing) instructions in the literature accompanying the appliance.
CAUTION: To reduce the risk of electric shock do not open enclosure.
There are no user serviceable parts inside. Refer servicing to qualified service personnel.
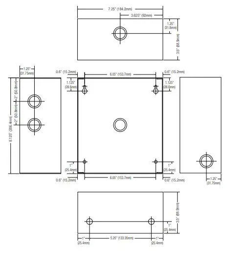
Fig. 1 – ALTV244UL3







Enclosure Dimensions (H x W x D) for:
- ALTV244UL3
- ALTV244ULCB3 8.5” x 7.5” x 3.5” (215.9mm x 190.5mm x 88.9mm)

Enclosure Dimensions (H x W x D) for:
- ALTV244ULX3 13.5” x 13” x 3.25” (342.9mm x 330.2mm x 82.6mm)

Enclosure Dimensions (H x W x D) for:
- ALTV244ULX3 13.5” x 13” x 3.25” (342.9mm x 330.2mm x 82.6mm)






















