Altronix ALTV1224C CCTV Power Supply

Overview
Altronix ALTV1224C Series AC/DC dual output power supplies provide both 12VDC and 24VAC outputs where a combination of both AC and DC outputs is required. They provide eight (8) 12VDC outputs at 3.5A total max. and eight (8) 24VAC outputs at 3.5A total max.
ALTV1224C Series Configuration Reference Chart:

Features
Visual Indicators:
- AC / DC power LED indicator. Battery Backup (DC Outputs Only):
- Built-in charger for sealed lead acid or gel type batteries.
- Automatic switch over to stand-by battery when AC fails.
- Zero voltage drop when switched over to battery backup.
Additional Features:
- Surge protection.
- Power ON/OFF switch.
- Spare fuses included.
- Unit maintains camera synchronization.
- Ease of installation saves time and eliminates costly labor.
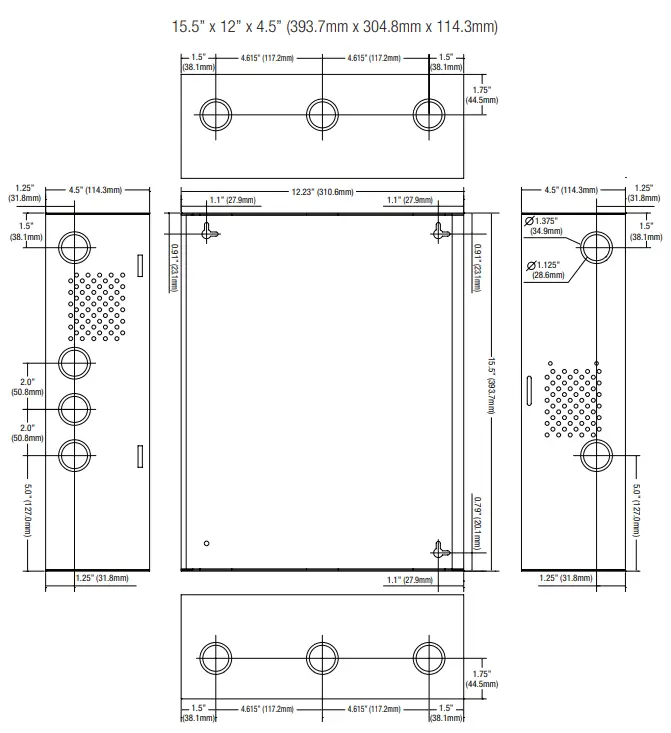
Enclosure Dimensions (H x W x D):
15.5” x 12” x 4.5” (393.7mm x 304.8mm x 114.3mm).
Installation Instructions

- Mount unit in the desired location. Mark and predrill holes in the wall to line up with the top two keyholes in the enclosure. Install two upper fasteners and screws in the wall with the screw heads protruding. Place the enclosure’s upper keyholes over the two upper screws; level and secure. Mark the position of the lower two holes. Remove the enclosure. Drill the lower holes and install two fasteners. Place the enclosure’s upper keyholes over the two upper screws. Install the two lower screws and make sure to tighten all screws (Enclosure Dimensions, pg. 4). Secure enclosure to earth ground.
- Slide switch SW1 (Fig. 1, pg. 3) to OFF position.
- Connect the AC (115VAC 50/60 Hz) to the two black and white flying leads of the transformers (Fig 1, pg. 3).
- Connect devices to output terminals using the following procedure (Fig. 1, pg. 3):
- Connect each DC device to terminal pairs on DC output board 1 through 8, marked [P (+)] and [N (–)], carefully observing correct polarity.
- Connect each AC device to terminal pairs on AC output board 1 through 8, marked [P (+)] and [N (–)]. Note: It is important to measure output voltage before connecting devices. This helps avoiding potential damage.
- When batteries are being used, the DC output voltage must be adjusted by turning the trim pot VR1 (Fig 1) clockwise to increase the output voltage to 13.7VDC. Connect battery to the terminals marked [– BAT +] (Fig. 1) on the unit (battery leads included).
CAUTION: Determine the maximum operating voltage of the equipment being powered before adjusting the output voltage. When the battery charging voltage is increased, the DC output voltage will also increase. - Slide switch SW1 (Fig. 1, pg. 3) to ON position.
- Green LED on the PD8(CB)s will illuminate when power is present.
- Upon completion of wiring secure enclosure door with screws (supplied).
Caution: Equipment to be installed / serviced by authorized / trained personnel only. Shut branch circuit power before installing / servicing equipment.
WARNING: To reduce the risk of fire or electric shock, do not expose the unit to rain or moisture. This installation should be made by qualified service personnel and should conform to the National Electrical Code and all local codes.
Terminal Identification
SMP5 – Power Supply Board
| Terminal Legend | Function/Description |
| AC / AC | Low voltage AC input (24VAC / 175VA). Altronix part # T24175 |
| + DC – | 12VDC 3.5A total continuous output. |
| – BAT + | Stand-by battery connections. Maximum charge rate 0.5A. |
PD8(CB) – DC Output
| 1P – 8P | Positive DC power outputs. |
| 1N – 8N | Negative DC power outputs. |
PD8(CB) – AC Output
| 1P – 8P | AC power outputs. |
| 1N – 8N | AC power outputs. |
WARNING
- The lightning flash with arrowhead symbol within an equilateral triangle is intended to alert the user to the presence of an insulated DANGEROUS VOLTAGE within the product’s enclosure that may be of sufficient magnitude to constitute an electric shock.
- The exclamation point within an equilateral triangle is intended to alert the user to the presence of impor-tant operating and maintenance (servicing) instructions in the literature accompanying the appliance.
CAUTION: To reduce the risk of electric shock do not open enclosure. There are no user serviceable parts inside. Refer servicing to qualified service personnel.
Enclosure Dimensions
15.5” x 12” x 4.5” (393.7mm x 304.8mm x 114.3mm)

Altronix is not responsible for any typographical errors.
140 58th Street, Brooklyn, New York 11220 USA | 718-567-8181 | fax: 718-567-9056 website: www.altronix.com | e-mail: [email protected] | Lifetime Warranty IIALTV1224C Series J26U




















