Altronix ALTV244220 Series 4-Output CCTV Power Supplies

Models Include
ALTV244220
- 24VAC @ 4A (100VA) or 28VAC @ 3.5A (100VA).
- Four (4) Fuse Protected Outputs.
ALTV244175220
- 24VAC @ 7.25A (175VA) or 28VAC @ 6.25A (175VA).
- Four (4) Fuse Protected Outputs.
ALTV244300220
- 24VAC @ 12.5A (300VA) or 28VAC @ 10A (300VA).
- Four (4) Fuse Protected Outputs.
ALTV244CB220
- 24VAC @ 4A (100VA) or 28VAC @ 3.5A (100VA).
- Four (4) PTC Protected Outputs.
ALTV244175CB220
- 24VAC @ 7.25A (175VA) or 28VAC @ 6.25A (175VA).
- Four (4) PTC Protected Outputs.
ALTV244300CB220
- 24VAC @ 12.5A (300VA) or 28VAC @ 10A (300VA).
- Four (4) PTC Protected Outputs.
Installation Guide

Overview
Altronix ALTV244220 Series CCTV Power Supplies provide 24VAC or 28VAC distributed via four (4) fuse or PTC-protected outputs for powering CCTV cameras, heaters, and other video accessories.
Four (4) Output ALTV244 Reference Chart:
| Altronix Model Number | Total Output Current | Output Voltage | Number of Outputs | PTC Protected Outputs (auto-resettable) | Fuse Protected Outputs | Output Current (max per output) | Main Fuse Ratings | 220VAC 50/60Hz Input Current | |
| ALTV244220 | 4A | 24VAC |
4 | – | ✓ | 3.5A | 0.5A | ||
| 3.5A | 28VAC | 5A/ | |||||||
| ALTV244CB220 | 4A | 24VAC | ✓ | – | 2.5A | ||||
| 250V | |||||||||
| 3.5A | 28VAC | ||||||||
| ALTV244175220 | 7.25A | 24VAC | – | ✓ | 3.5A | 0.8A | |||
| 6.25A | 28VAC | 10A/ | |||||||
| ALTV244175CB220 | 7.25A | 24VAC | ✓ | – | 2.5A | ||||
| 250V | |||||||||
| 6.25A | 28VAC | ||||||||
| ALTV244300220 | 12.5A | 24VAC | – | ✓ | 3.5A | 1.8A | |||
| 10A | 28VAC | 15A/ | |||||||
| ALTV244300CB220 | 10A | 24VAC | ✓ | – | 2.5A | ||||
| 32V | |||||||||
| 10A | 28VAC |
Specifications
Agency Listing:
- CE European Conformity.
Input:
- 220VAC (working range 198VAC – 256VAC), 50/60Hz.
Output:
- Four (4) fuse or PTC-protected outputs.
- 24VAC or 28VAC supply current.
- Outputs are rated @ 3.5A (fused) or 2.5A (PTC).
- Surge suppression.
Features:
- Slow blow main fuse on power distribution board.
- AC power LED.
- Power ON/OFF switch.
- Spare fuses provided. (all models w/primary and/or secondary fuses).
Enclosure Dimensions:
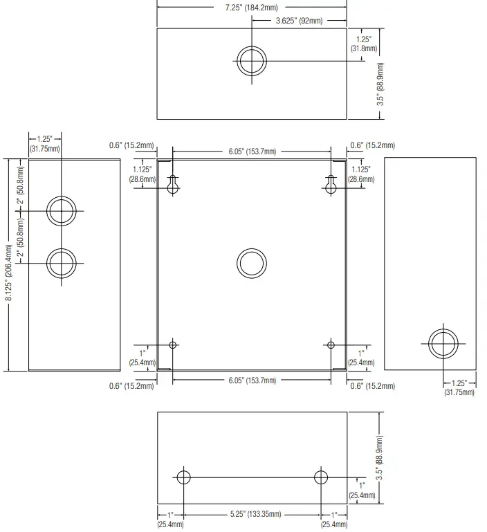
- ALTV244220 and ALTV244CB220:
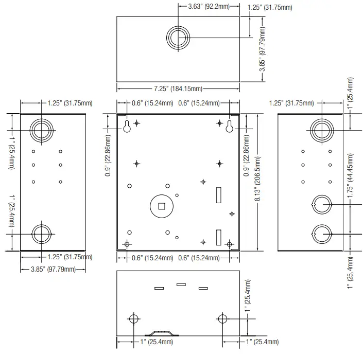
8.5” x 7.5” x 3.5” (215.9mm x 190.5mm x 88.9mm). - ALTV244175220, ALTV244175CB220, ALTV244300220, and ALTV244300CB220:
8.5” x 7.5” x 3.875” (215.9mm x 191mm x 98.4mm).
Installation Instructions
- Mount unit in the desired location. Mark and predrill holes in the wall to line up with the top two keyholes in the enclosure. Install two upper fasteners and screws in the wall with the screw heads protruding. Place the enclosure’s upper keyholes over the two upper screws; level and secure. Mark the position of the lower two holes. Remove the enclosure. Drill the lower holes and install the fasteners. Place the enclosure’s upper keyholes over the two upper screws. Install the two lower screws and make sure to tighten all sc (Enclosure Dimensions, pg. 7, 8). Secure enclosure to earth ground.
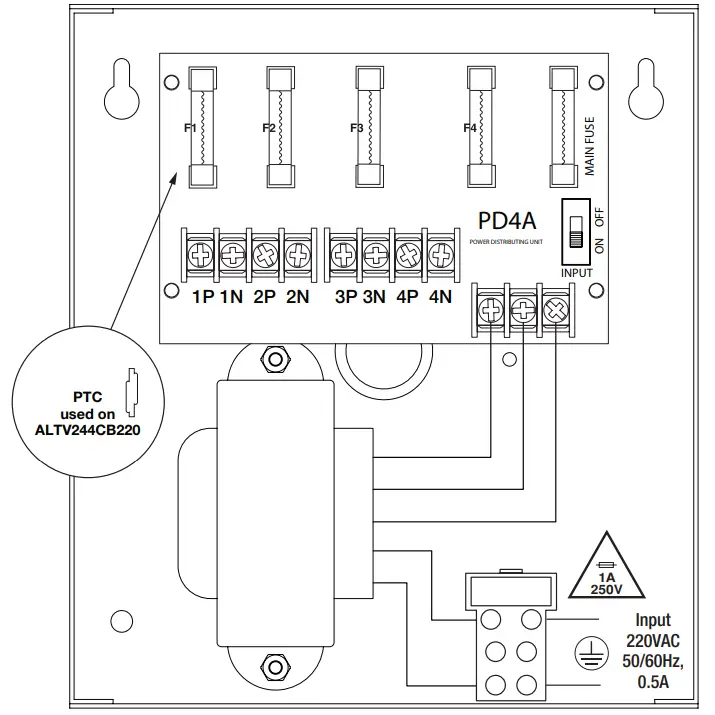
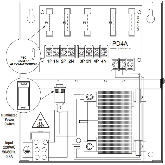
- Slide switch SW1 to the OFF position on models ALTV244220 and ALTV244CB220 (Fig. 1, pg. 4). Turn main switch on all other models to the OFF position (Figs. 2, 3, pgs. 5, 6).
- All units are factory set for 24VAC operation. For 28VAC operation adjust unit prior to mounting and applying power as follows: Change the wire position so that the black wire [28V] is connected to the terminal marked [P] and the yellow wire [24V] is connected to the terminal marked [S].
- Connect unswitched AC circuit (220VAC, 50/60Hz) as follows: Green branch wire (ground) connects to the terminal marked , Line connects to the terminal marked [L], and Neutral connects to the terminal marked [N] of the Inlet Appliance Connector. (Figs. 1-3, pgs. 4-6). Use 18 AWG or larger for all power connections (Battery, AC output).
- Slide switch SW1 to the ON position on models ALTV244220 and ALTV244CB220 (Fig. 1, pg. 4). Turn main switch on all other models to the “RESET” (ON) position (Figs. 2, 3, pgs. 5, 6).
- Measure output voltage before connecting devices. This helps avoiding potential damage.
CAUTION: Determine the maximum operating voltage of the equipment being powered before adjusting the output voltage. - Slide switch SW1 to the OFF position on models ALTV244220 and ALTV244CB220 (Fig. 1, pg. 4). Turn main switch on all other models to the OFF position (Figs. 2, 3, pgs. 5, 6).
- Connect devices to the terminals marked [1P – 1N] through [4P – 4N] on PD4/PD4CB board, carefully observing correct polarity (Figs. 1 – 3, pgs. 4 – 6).
- Slide switch SW1 to ON position on models ALTV244 and ALTV244CB (Fig. 1, pg. 4). Turn main switch on all other models to the “RESET” (ON) position (Figs. 2, 3, pgs. 5, 6).
- Green LED will illuminate when unit is powered.
- Upon completion of the wiring, secure enclosure door with screws (supplied).
CAUTION: Equipment to be installed /serviced by authorized/trained personnel only. Shut branch circuit power before installing/servicing equipment.
Troubleshooting
PD4/PD4CB – Distribution Module
| 1P – 4P | AC output. |
| 1N – 4N | AC output. |
The lightning flash with arrowhead symbol within an equilateral triangle is intended to alert the user to the presence of an insulated DANGEROUS VOLTAGE within the product’s enclosure that may be of sufficient magnitude to constitute an electric shock. The exclamation point within an equilateral triangle is intended to alert the user to the presence of important operating and maintenance (servicing) instructions in the literature accompanying the appliance.
CAUTION: To reduce the risk of electric shock do not open enclosure. There are no user serviceable parts inside. Refer servicing to qualified service personnel.
Fig. 1 – ALTV244220 and ALTV244CB220

Voltage Selection Configuration

Fig. 2 – ALTV244175220 and ALTV244175CB220

Voltage Selection Configuration

Fig. 3 – ALTV244300220 and ALTV244300CB220

Voltage Selection Configuration

Enclosure Dimensions (H x W x D) for:
- ALTV244220
- ALTV244CB220
8.5” x 7.5” x 3.5” (215.9mm x 190.5mm x 88.9mm)
Enclosure Dimensions (H x W x D) for:
- ALTV244175220
- ALTV244175CB220
- ALTV244300220
- ALTV244300CB220
8.5” x 7.5” x 3.875” (215.9mm x 191mm x 98.4mm)
Altronix is not responsible for any typographical errors.
140 58th Street, Brooklyn, New York 11220 USA | phone: 718-567-8181 | fax: 718-567-9056
website: www.altronix.com | e-mail: [email protected] | Lifetime Warranty IIALTV244220 Series




















