Altronix Sav4D Sav Series DC CCTV Power Supply

Sav4D
- 12VDC @ 5A
- Four (4) Class 2 Rated PTC Protected Power-Limited Outputs.
Sav9D
- 12VDC @ 5A
- Nine (9) Class 2 Rated PTC Protected Power-Limited Outputs.
Sav18D
- 12VDC @ 5A
- Eighteen (18) Class 2 Rated PTC Protected Power-Limited Outputs.
Sav182D
- 12VDC @ 11A
- Eighteen (18) Class 2 Rated PTC Protected Power-Limited Outputs.
Sav36D
- 12VDC @ 11A
- Thirty-Six (36) Class 2 Rated PTC Protected
Power-Limited Output
Rev. 070709 More than just power.TM
Installing Company: ________________ Service Rep. Name: __________________________________
Address: ______________________________________________ Phone #: _ __________________
Overview
Altronix Sav Power Supplies provide 12VDC distributed via four (4), nine (9), eighteen (18), thirty-six (36) Class 2 Rated PTC protected power-limited auto-resettable outputs for powering surveillance cameras and other 12VDC devices.
Sav Reference Chart:

Not to exceed total output current.
230VAC/50Hz operation is intended for use outside of the North American Markets only.
Specifications
Input:
- 115VAC, 60Hz or 230VAC, 50Hz.
Output:
- 12VDC outputs (1.2A per device, 2.5A max.).
- Four (4), nine (9), eighteen (18) or thirty-six (36)
- Class 2 Rated PTC protected power-limited outputs.
- Filtered and electronically regulated outputs.
- Short circuit and thermal overload protection.
Features:
- Power LEDs.
- Unit maintains camera synchronization.
Features (cont’d):
- Field installable 3-wire line cord with integral strain relief.
- Ease of installation saves time and eliminates costly labor.
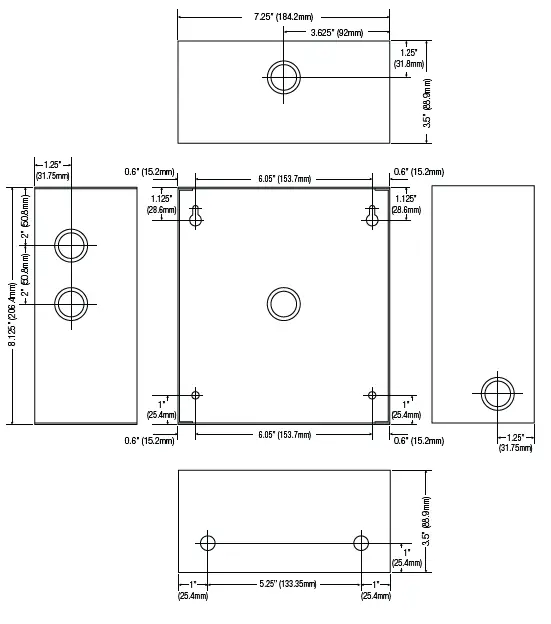
Enclosure Dimensions (H x W x D approx.):
- Sav4D, Sav9D, and Sav18D:
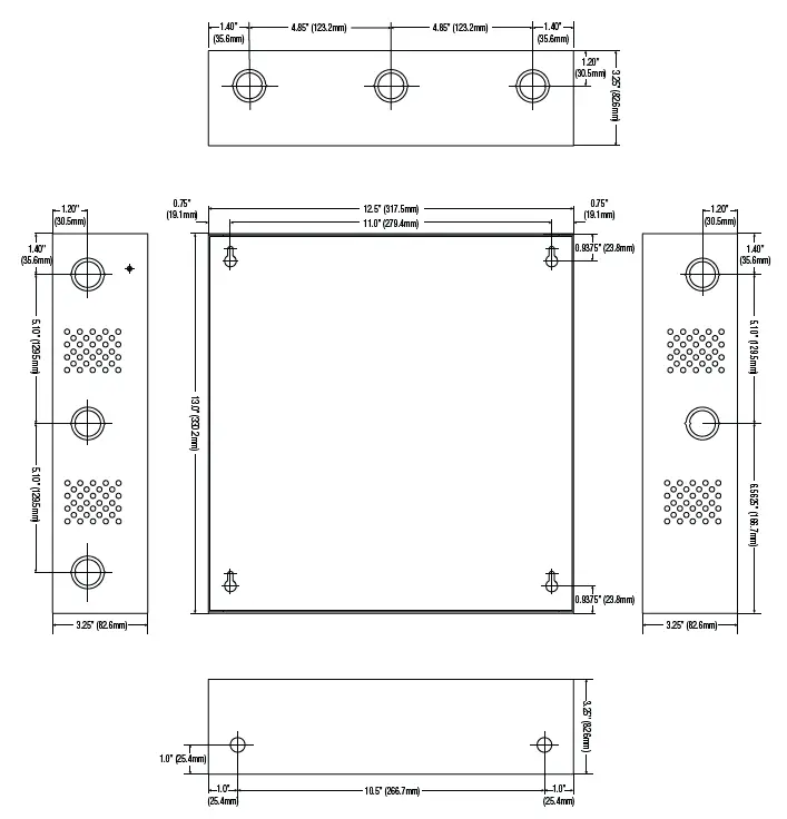
8.5” x 7.5” x 3.5” (215.9mm x 190.5mm x 88.9mm). - Sav182D and Sav36D:
13.5” x 13” x 3.25” (342.9mm x 330.2mm x 82.6mm).
Installation Instructions
This installation should be made by qualified service personnel and should conform to all local codes and in accordance with the National Electrical Code. Product is intended for indoor use only.
- Mount unit in the desired location. Mark and predrill holes in the wall to line up with the top two keyholes in the enclosure. Install two upper fasteners and screws in the wall with the screw heads protruding. Place the enclosure’s upper keyholes over the two upper screws; level and secure. Mark the position of the lower two holes. Remove the enclosure. Drill the lower holes and install two fasteners.
Place the enclosure’s upper keyholes over the two upper screws.
Install the two lower screws and make sure to tighten all screws
(Enclosure Dimensions, pgs. 11-12). - Sav4D, Sav9D, and Sav18D:
Connect unswitched AC power 115VAC, 60Hz or 230VAC, 50Hz to the removable terminals marked [L, G, N] (Fig. 1, pg. 2).
Sav182D and Sav36D:
Connect unswitched AC power 115VAC, 60Hz or 230VAC, 50Hz to black and white flying leads, which are factory installed. Connect main incoming ground to the provided green grounding conductor lead.
To install 3-wire line cord with integral strain relief (supplied) refer to pages 9 and 10. - Unit is factory set at 12VDC. To adjust output voltage use the trimpot (Fig. 2a, pg. 4; Fig. 3a, pg. 5; Fig. 4a,pg. 6; Fig. 5a pg. 7, Fig. 6a, pg. 8) on the power supply board(s), connect digital volt meter to the terminals marked [OUT1 to OUT18] and slowly turn trimpot clockwise to increase voltage or counter-clockwise to decrease voltage.
Note: Voltage will be the same for all outputs. - Measure output voltage before connecting devices. This helps avoiding potential damage.
- Connect cameras to be powered to the terminals marked [OUT1] through [OUT4] (Sav4D) (Fig. 2, pg. 4),[OUT1] through [OUT9] (Sav9D) (Fig. 3, pg. 5), [OUT1] through [OUT18] (Sav18D) (Fig. 4, pg. 6),[OUT1] through [OUT9] on each power supply board (Sav182D) (Fig. 5, pg. 7), [OUT1] through [OUT18] on each power supply board (Sav36D) (Fig. 6, pg. 8), carefully observing correct polarity.
- Upon completion of wiring, secure enclosure door with screws (supplied).
Caution: Equipment to be installed/serviced by authorized/trained personnel only and should conform to the National Electrical Code and all local codes. Shut branch circuit power before installing/servicing equipment.
WARNING: To reduce the risk of fire or electric shock, do not expose the unit to rain or moisture.
Use 75˚C or higher rated UL insulated wiring for connecting the unit to the mains.
Maintenance:
Unit should be tested at least once a year for the proper operation as follows:
Output Voltage Test: Under normal load conditions, the DC output voltage should be checked for proper voltage level.
Terminal Identification
| Model | Terminal Legend | Description |
| All | L, G, N | 115VAC, 60Hz or 230VAC, 50Hz Input |
| Sav4D | OUT1 (– , +) through OUT4 (–, +) |
12VDC power output. |
| Sav9D | OUT1 (–, +) through OUT9 (–, +) | |
| Sav18D | OUT1 (–, +) through OUT18 (–, +) | |
| Sav182D | OUT1 (–, +) through OUT9 (–, +) (on both power supply boards) | |
| Sav36D | OUT1 (–, +) through OUT18 (–, +) (on both power supply boards) |
LED Identification:
| Model | LED | ON | OFF |
| All | AC | Normal operating condition. | Loss of AC, No DC output |
| Sav4D | OUT1 through OUT4 |
Normal operating condition. |
No Power Output. |
| Sav9D | OUT1 through OUT9 | ||
| Sav18D | OUT1 through OUT18 | ||
| Sav182D | OUT1 through OUT9 (on both power supply boards) | ||
| Sav36D | OUT1 through OUT18 (on both power supply boards) |
Fig. 2 – Sav4D
Keep power-limited wiring separate from non power-limited.
Use minimum 0.25″ spacing.
Fig. 3 – Sav9D

Keep power-limited wiring separate from non power-limited.
Use minimum 0.25″ spacing.
Fig. 4 – Sav18D

Keep power-limited wiring separate from non-power-limited.
Use minimum 0.25″ spacing.
Fig. 5 – Sav182D

Keep power-limited wiring separate from non power-limited.
Use minimum 0.25″ spacing.
Fig. 6 – Sav36D

Keep power-limited wiring separate from non power-limited.
Use minimum 0.25″ spacing.
The lightning flash with arrowhead symbol within an equilateral triangle is intended to alert the user to the presence of an insulated DANGEROUS VOLTAGE within the product’s enclosure that may be of sufficient magnitude to constitute an electric shock.
The exclamation point within an equilateral triangle is intended to alert the user to the presence of impor-tant operating and maintenance (servicing) instructions in the literature accompanying the appliance.
CAUTION: To reduce the risk of electric shock do not open enclosure. There are no user serviceable parts inside.
Refer servicing to qualified service personnel.
Installation Instructions for 3-wire Line Cord
Wiring methods shall be in accordance with the National Electrical Code/NFPA 70/NFPA 72/ANSI, and with all local codes and authorities having jurisdiction. Product is intended for indoor use only.
The line cord option should be used when the equipment needs to be removed for maintenance or servicing.
Do not attach the 3-wire line cord to the building surface.
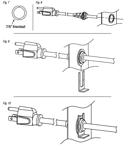
- Remove 7/8” knockout by applying pressure from the inside of enclosure (Fig. 7).
Note: Keep power-limited wiring separate from non-power-limited. Use minimum 0.25” spacing. Please refer to the SAV DC Power Supplies Installation Guide’s wiring diagram. - Insert AC line cord with integral strain relief through the desired enclosure knockout (Fig. 8).
- Secure AC line cord by sliding hog ring into strain relief slot inside the enclosure (Figs. 9 and 10).

Wiring AC Line Cord for Models SAV4D, SAV9D, and SAV18D
- Connect black lead to terminal marked [L]. Connect green lead to terminal marked [G].
Connect white lead to terminal marked [N] (Fig. 11).
Wiring AC Line Cord for Models SAV182D and SAV36D:
- Splice black lead from line cord to black leads from each power supply board utilizing wire nut (Fig. 12).
Splice green lead from line cord to green flying lead in the enclosure utilizing wire nut (Fig. 12).
Splice white lead from line cord to white leads from each power supply board utilizing wire nut (Fig. 12).
Note: To prevent loosening of splices secure each wire nut separately with a few wraps of electrical tape (Fig. 13).

Enclosure Dimensions for Sav4D, Sav9D, and Sav18D:
8.5” x 7.5” x 3.5” (215.9mm x 190.5mm x 88.9mm)

Enclosure Dimensions for Sav182D and Sav36D:
13.5” x 13” x 3.25” (342.9mm x 330.2mm x 82.6mm)

Altronix is not responsible for any typographical errors. ––––––––––––––––––––––––––––––––––––––––––––––––––––––––––––––––––––––––––––––––––––––––––––––––––––––––––––––––140 58th Street, Brooklyn, New York 11220 USA | phone: 718-567-8181 | fax: 718-567-9056
website: www.altronix.com | e-mail: [email protected] | Lifetime Warranty IISAV4D/SAV9D/SAV18D/SAV182D/SAV36D H16U
MEMBER
Sav4/9/18/182/36D Installation Guide






















