Altronix ALTV244UL ALTV244UL Series CCTV Power Supplies

Overview
Altronix ALTV244UL Series CCTV Power Supplies provide 24VAC or 28VAC distributed via four (4) fuse or PTC protected outputs for powering CCTV cameras, heaters and other video accessories.
Four (4) Output ALTV244UL Reference Chart

Specifications
Agency Listings:
- UL Listed for Commercial CCTV Equipment
(UL 2044).
CUL Listed – CSA Standard C22.2 No.1-98,
Audio, Video and Similar Equipment. - CE European Conformity.
Input:
115VAC, 50/60Hz.
Output:
- Four (4) fuse or PTC protected outputs.
- 24VAC or 28VAC output.
- Outputs are rated @ 3.5A (fused) or 2.5A (PTC).
- Surge suppression.
Features:
- Power ON/OFF switch
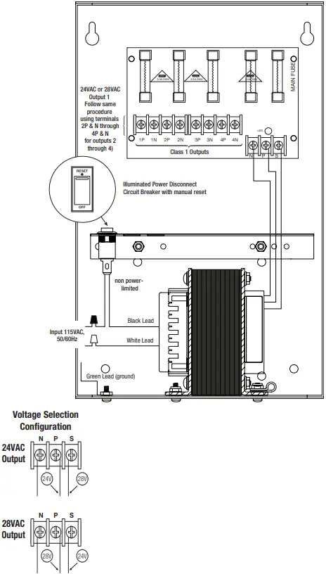
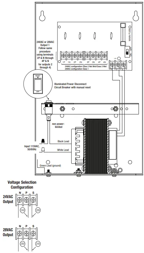
(ALTV244UL, ALTV244ULX, and ALTV244ULCB). - Illuminated power disconnect circuit breaker with manual reset
(ALTV244175UL and ALTV244175ULCB). - Unit maintains camera synchronization.
- Ease of installation saves time & eliminates costly labor.
- Spare fuses included (on fuse-protected models).
Enclosure Dimensions (H x W x D):
- ALTV244UL, ALTV244ULCB
8.5” x 7.5” x 3.5” (215.9mm x 190.5mm x 88.9mm). - ALTV244175UL, ALTV24175ULCB
12” x 7.5” x 4.5” (304.8mm x 190.5mm x 114.3mm). - ALTV244ULX
13.5” x 13” x 3.25”
(342.9mm x 330.2mm x 82.6mm).
Installation Instructions
- Mount unit in the desired location. Mark and predrill holes in the wall to line up with the top two keyholes in the enclosure. Install two upper fasteners and screws in the wall with the screw heads protruding. Place the enclosure’s upper keyholes over the two upper screws, level and secure. Mark the position of the lower two holes. Remove the enclosure. Drill the lower holes and install the three fasteners. Place the enclosure’s upper keyholes over the two upper screws. Install the two lower screws and make sure to tighten all screws (Enclosure Dimensions, pgs. 10-12). Secure enclosure to earth ground.
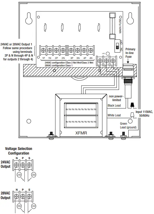
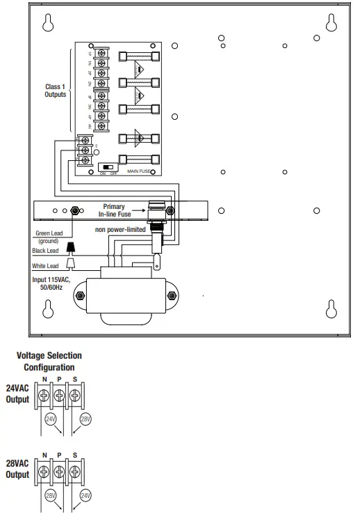
- Set power switch on power distribution board marked [PD] to OFF position for models ALTV244UL, ALTV244ULX or ALTV244ULCB (Figs. 1-3, pgs. 4-6).
- All units are factory set for 24VAC operation. For 28VAC operation adjust unit prior to applying power as follows:
Remove wires marked [24V] and [28V] from terminals marked [P] and [S].
Connect wire marked [28V] to terminal marked [P] and connect wire marked [24V] to terminal marked [S].
Note: ALTV244ULCB set for 28VAC operation is not Class 2 Rated, not power-limited. - Connect AC power to the black and white flying leads of the transformer (Figs. 1-5, pgs. 4-8). Secure green lead to earth ground. Use 18 AWG or larger gauge for all power connections. Keep power-limited (PTC protected outputs only) wiring separate from non-power-limited wiring. Minimum 0.25” spacing must be provided. Use separate knockouts.
- Set power switch on power distribution board marked [PD] to ON position for models ALTV244UL, ALTV244ULX or ALTV244ULCB (Figs. 1-3, pgs. 4-6).
- Measure output voltage before connecting devices. This helps avoid potential damage. Terminals marked [1P – 4P] are of the same polarity.
CAUTION: Determine the maximum operating voltage of the equipment being powered before adjusting the output voltage. - Set power switch on power distribution board marked [PD] to OFF position for models ALTV244UL, ALTV244ULX or ALTV244ULCB (Figs. 1-3, pgs. 4-6).
- Connect devices to the terminals marked [1P] – [1N] through [4P] – [4N] on PD4 or PD4CB board (Figs. 1-5, pgs. 4-8), carefully observing polarity.
- Set power switch on power distribution board marked [PD] to ON position for models ALTV244UL, ALTV244ULX or ALTV244ULCB (Figs. 1-3, pgs. 4-6).
- Green LED will illuminate when power is present.
- Upon completion of the wiring, secure the enclosure door with screws (supplied). Installation of a cam lock is optional.
Caution: Equipment to be installed/serviced by authorized/trained personnel only. Shut branch circuit power before installing/servicing equipment.
WARNING:
To reduce the risk of fire or electric shock, do not expose the unit to rain or moisture. This installation should be made by qualified service personnel and should conform to the National Electrical Code and all local codes. Use 75˚C or higher rated UL insulated wiring for connecting the unit to the mains. Replace fuses with the same type and rating (refer to Four (4) Output ALTV244UL Reference Chart, pg. 2).
Terminal Identification:
PD4/PD4CB – Distribution Module
- 1P – 4P AC output.
- 1N – 4N AC output.
CIRCUIT DIAGRAMS
Fig. 1 – ALTV244UL

Fig. 2 – ALTV244ULCB

Fig. 3 – ALTV244ULX

Fig. 4 – ALTV244175UL

Fig. 5 – ALTV244175ULCB

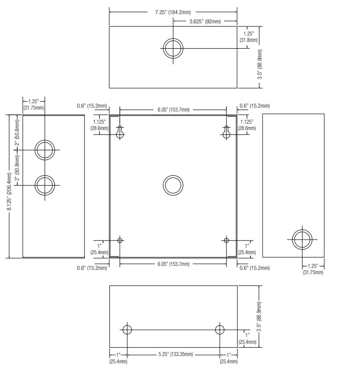
DIMENSIONS
Enclosure Dimensions (H x W x D) for:
- ALTV244UL
- ALTV244ULCB
8.5” x 7.5” x 3.5” (215.9mm x 190.5mm x 88.9mm)

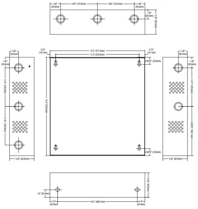
Enclosure Dimensions (H x W x D) for:
- ALTV244ULX
13.5” x 13” x 3.25” (342.9mm x 330.2mm x 82.6mm)

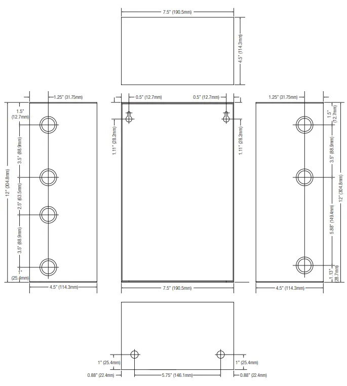
Enclosure Dimensions (H x W x D) for:
- ALTV244175UL
- ALTV244175ULCB
12” x 7.5” x 4.5” (304.8mm x 190.5mm x 114.3mm)

Altronix is not responsible for any typographical errors.
140 58th Street, Brooklyn, New York 11220 USA | phone: 718-567-8181 | fax: 718-567-9056
website: www.altronix.com | e-mail: [email protected] | Lifetime Warranty
IIALTV244UL Series



















