Bard W18AB-A, W24AB-A, W24AB-B, W24AB-C, W24AB-D, W24AB-F Wall Mounted Packaged Air Conditioner

General Notes
- Revised and/or additional pages may be issued from time to time.
- A complete and current manual consists of pages shown in the following contents section.
Important
- Contact the installing and/or local Bard distributor for all parts requirements. Make sure to have the complete model and serial number available from the unit rating plates.
CABINET COMPONENTS

Dwg No. | Part Number | Description | W18AB-A | W24AB-A | W24AB-B | W24AB-D | W24AB-C | W24AB-F |
| 1 1 1 | 113-141-* 113-361 k 113-141-4 | Top Rain Flashing Top Rain Flashing Top Rain Flashing | X X X | X X X | X X X | X X X | X X X | X X X |
| 2 2 2 | S507-311-* S507-318-* S507-317 k | Top Top Top | X X X | X X X | X X X | X X X | X X X | X X X |
| 3 3 | S123-126 S123-140 k | Drain Pan Drain Pan | X X | X X | X X | X X | X X | X X |
| 4 4 4 | S509-445 S509-447 S509-449 k | Upper Back Upper Back Upper Back | X X X | X X X | X X X | X X X | X X X | X X X |
| 5 | 105-1302 | Grommet Retainer | X | X | X | X | X | X |
| 6 6 6 | S501-933-* S501-994 k S501-937 | Right Side Right Side Right Side | X X X | X X X | X X X | X X X | X X X | X X X |
| 7 7 7 | S543-175-* S543-185 k S543-184 | Right Side Cover Plate (Outer) Right Side Cover Plate (Outer) Right Side Cover Plate (Outer) | X X X | X X X | X X X | X X X | X X X | X X X |
| 8 | 113X480 | Filter Bracket | 2 | 2 | 2 | 2 | 2 | 2 |
| 9 | 137-259 | Fill Plate | X | X | X | X | X | X |
| 10 10 | S132-104 S132-172 | Control Panel Cover (Inner) Control Panel Cover (Inner) | X | X | X | X | X | X |
| 11 | 113-140 | Bottom Mounting Bracket | X | X | X | X | X | X |
| 12 12 12 | S153-218 S153-405 k S153-387 | Disconnect Access Door Disconnect Access Door Disconnect Access Door | X X X | X X X | X X X | X X X | X X X | X X X |
| 13 13 13 | S533-228-* S533-235 k S533-236 | Control Panel Cover (Outer) Control Panel Cover (Outer) Control Panel Cover (Outer) | X X X | X X X | X X X | X X X | X X X | X X X |
| 14 14 14 | 118-124-* 118-140 k 118-141 | Side Grille Side Grille Side Grille | 2 2 2 | 2 2 2 | 2 2 2 | 2 2 2 | 2 2 2 | 2 2 2 |
| 15 | Control Panel Assembly | See Control Panel Assy. Drawing & Parts List Assy. | X | X | X | X | X | X |
| 17 17 | S536-176 S536-878 k | Cond. Partition Block Off Plate Cond. Partition Block Off Plate | X X | X X | X X | X X | X X | X X |
| 18 18 | S127-467 S127-534 k | Lower Base Lower Base | X X | X X | X X | X X | X X | X X |
| 19 19 | 125-080 125-082 k | Fan Shroud Fan Shroud | X X | X X | X X | X X | X X | X X |
| 20 20 | S521X528 S521-553 k | Condenser Partition Condenser Partition | X X | X X | X X | X X | X X | X X |
| 21 | FAD-NE2 | Fresh Air Damper Assembly | X | X | X | X | X | X |
| 22 22 22 | 118-101-* 118-106 k 118-144 | Condenser Grille Condenser Grille Condenser Grille | X X X | X X X | X X X | X X X | X X X | X X X |
| 23 23 23 23 23 23 23 23 23 | S553-537-* S553-547 k S553-548 S553-539-* S553-555 k S553-556 S553-666-* S553-692 S553-693 k | Vent Option Door Vent Option Door Vent Option Door Vent Option Door with ERV Vent Option Door with ERV Vent Option Door with ERV Vent Option Door with CRV or ECON-S Vent Option Door with CRV or ECON-S Vent Option Door with CRV or ECON-S | X X X X X X X X X | X X X X X X X X X | X X X X X X X X X | X X X X X X X X X | X X X X X X X X X | X X X X X X X X X |
| 24 24 24 | S553-538-* S553-552-* S553-551 k | Filter Door Filter Door Filter Door | X X X | X X X | X X X | X X X | X X X | X X X |
| 25 25 25 | S514-240-* S514-237-* S514-236 k | Upper Front Upper Front Upper Front | X X X | X X X | X X X | X X X | X X X | X X X |
| 26 | 121X480 | Blower Partition | X | X | X | X | X | X |
| 27 | 105X850 | Side Support | X | X | X | X | X | X |
| 28 | 137-694 | Bottom Evaporator Fill | X | X | X | X | X | X |
| 29 29 29 | S501-934-* S501-995 k S501-940 | Left Side Left Side Left Side | X X X | X X X | X X X | X X X | X X X | X X X |
| 30 | 147-044 | Evaporator Support | X | X | X | X | X | X |
| 31 | S111X032 | Outlet Air Frame Assembly | X | X | X | X | X | X |
| 32 | 135X127 | Heat Shield | X | X | X | X | X | X |
| 33 33 33 | 109-444 109-446 109-448 k | Lower Back Lower Back Lower Back | X X X | X X X | X X X | X X X | X X X | X X X |
| NS | 5252-033 | Bard Nameplate | X | X | X | X | X | X |
FUNCTIONAL COMPONENTS

Dwg No. | Part Number | Description | W18AB-A | W24AB-A | W24AB-B | W24AB-D | W24AB-C | W24AB-F |
| 1 1 1 | S900-358-002 S900-359-001 S900-358-001 | Blower Assembly Blower Assembly Blower Assembly |
X | X | X | X | X | X |
| 2 2 2 2 | 917-0381BX 917-0382BX 917-0353BX 917-0354BX | Evaporator Coil with Distributor Assembly Evaporator Coil – Coated with Distributor Assembly Evaporator Coil with Distributor Assembly Evaporator Coil – Coated with Distributor Assembly | X X |
X X |
X X |
X X |
X X |
X X |
| 3 3 | 800-0458 800-0481 | Distributor Assembly Distributor Assembly | X | X | X | X | X | X |
| 4 | 1171-023 | 1/4″ Receptacle | X | X | X | X | X | X |
| 5 | 1171-024 | 1/4″ Turn Retainer | X | X | X | X | X | X |
| 6 | 1171-022 | 1/4″ Turn Fastener | X | X | X | X | X | X |
| 7 7 | 8103-028 8103-030 | Condenser Motor Condenser Motor | X | X | X | X | X | X |
| 8 8 | 8200-001 8200-050 | Fan Motor Mount Stainless Steel Fan Motor Mount | X X | X X | X X | X X | X X | X X |
| 9 9 9 9 | 5151-033 5151C003 5151-046 5151C046 | Fan Blade Coated Fan Blade Fan Blade Coated Fan Blade | X X | X X | X X |
X X | X X | X X |
| 10 | CMC-31 | Dirty Filter Switch Kit | X | X | X | X | X | X |
| 11 11 | CMA-37 CMA-38 | Modulating Low Ambient Control (Screw On) k 460V Modulating Low Ambient Control k | X | X | X | X | X | X |
| 12 12 12 12 12 | 8000-433 8000-434 8000-435 8000-436 8000-437 | Compressor Compressor Compressor Compressor Compressor | X | X |
X |
X |
X |
X |
| 13 13 13 13 | 5051-205BX 5054-205BX 5051-204BX 5054-204BX | Condenser Coil Condenser Coil – Coated Condenser Coil Condenser Coil – Coated | X X |
X X |
X X |
X X |
X X |
X X |
| 14 14 14 14 14 | 7004-011 7003-032 7004-025 7004-059 7004-061 | Air Filter 1″ Throw-Away (16x25x1) Air Filter 1″ Washable k (16x25x1) Air Filter 2″ Pleated k (16x25x2) Air Filter 2″ Pleated – MERV 11 k (16x25x2) Air Filter 2″ Pleated – MERV 13 k (16x25x2) | X X X X X | X X X X X | X X X X X | X X X X X | X X X X X | X X X X X |
| NS NS | 8406-142 8406-140 | High Pressure Switch (Screw On) Low Pressure Switch (Screw On) | X X | X X | X X | X X | X X | X X |
| NS | 5201-021 | Filter Drier | X | X | X | X | X | X |
| NS | 5451-024 | Tubing Isolation Grommet | X | X | X | X | X | X |
| NS | 6031-009 | Coremax Value Core | X | X | X | X | X | X |
| NS | 1171-028 | Filter Door Clip | 2 | 2 | 2 | 2 | 2 | 2 |
| NS | 1171-057 | Filter Door Screw | 2 | 2 | 2 | 2 | 2 | 2 |
| NS | 1171-027 | Filter Door Screw Retainer | 2 | 2 | 2 | 2 | 2 | 2 |
| NS | CMC-29 | Freeze Thermostat Kit | X | X | X | X | X | X |
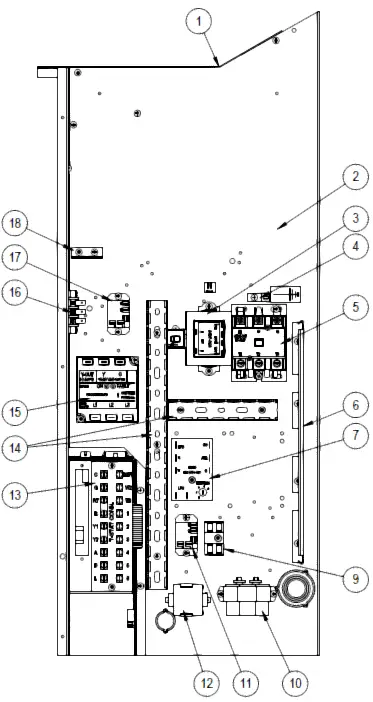
CONTROL PANEL

Dwg No. | Part Number | Description | W18AB-A | W24AB-A | W24AB-B | W24AB-D | W24AB-C | W24AB-F |
| 1 | 117X137 | Control Panel Top | X | X | X | X | X | X |
| 2 | 117X407 | Control Panel | X | X | X | X | X | X |
| 3 3 | 8407-068 8407-069 | Transformer Transformer | X | X | X | X | X | X |
| 4 | 8611-006 | Ground Terminal | X | X | X | X | X | X |
| 5 5 | 8401-033 8401-035 | Compressor Contactor Compressor Contactor | X | X | X | X | X | X |
| 6 | 135-122 | Wire Shield | X | X | X | X | X | X |
| 7 | 8201-164 | Compressor Control Module | X | X | X | X | X | X |
| 9 | 8607-017 | Terminal Block (Optional) | X | X | X | X | X | X |
| 10 10 10 | 8552-047 8552-050 8552-002 | Compressor Capacitor Compressor Capacitor Outdoor Motor Capacitor | X | X |
X |
X | X |
X |
| 11 | 8201-130 | Alarm Relay (Optional) | X | X | X | X | X | X |
| 12 | 8551-004 | Start Device (PTCR) (Optional) | X | X | X | |||
| 13 | 8607-063 | Low Voltage Terminal Strip | X | X | X | X | X | X |
| 14 14 | 8611-140-1400 8611-140-0500 | Cable Duct – 14″ Piece Cable Duct – 5″ Piece | X X | X X | X X | X X | X X | X X |
| 15 | 8201-126 | Phase Monitor | X | X | X | |||
| 16 | 8607-042 | Blower Speed Terminal | X | X | X | X | X | X |
| 17 | 8201-130 | Blower Control Relay | X | X | X | X | X | X |
| 18 | 141-188 | Plug Support Bracket | X | X | X | X | X | X |
| NS | 3000-1598 | Blower Power Plug | X | X | X | X | X | X |
| NS NS | 3000-1607 3000-1599 | Blower Speed Plug Blower Speed Plug | X | X | X | X | X | X |
| NS | 3000-1524 | Vent Jumper Plug | X | X | X | X | X | X |
| NS | 8615-035 | Circuit Breaker 20A 2 Pole (Opt.) | X | X | ||||
| NS | 8615-036 | Circuit Breaker 25A 2 Pole (Opt.) | X | |||||
| NS | S8615-067 | Toggle Disconnect (Optional) | X | X | ||||
| NS | 8615-056 | Circuit Breaker 15A 3 Pole (Opt.) | X | |||||
| NS NS | 8607-013 113-601 | Terminal Block 2 Pole Terminal Block Bracket | X X | |||||
| NS | 4095-197 | Wiring Diagram | X | |||||
| NS | 4095-196 | Wiring Diagram | X | X | ||||
| NS | 4095-296 | Wiring Diagram | X | |||||
| NS | 4095-381 | Wiring Diagram | X | |||||
| NS | 4095-640 | Wiring Diagram | X | |||||
| NS NS | 3000-1224 3000-1231 | Compressor Plug/Harness Compressor Plug/Harness | X | X | X | X | X | X |
| NS NS NS NS | 3003-047 3003-048 3003-049 3003-052 | Control Panel Harness Control Panel Harness Control Panel Harness Control Panel Harness |
X | X | X | X | X |
X |
| NS | 3000-1608 | Low Voltage Terminal Block Harness | X | X | X | X | X | X |
| NS | S910-2047 | Complete Low Voltage Box Assembly (Sheet Metal, LVTS & Wire Harness) | X | X | X | X | X | X |
NS = Not Shown
Circuit breakers listed are for units without electric heat, “0Z” models. See heater replacement parts manual for units with electric heat.
BLOWER ASSEMBLY

Dwg No. | Part Number | Description | W18AB-A | W24AB-A | W24AB-B |
| 1 1 1 1 1 1 | S8105-064-0147 S8105-064-0148 S8105-065-0149 C8105-064-0147 C8105-064-0148 C8105-065-0149 | Blower Motor & Control (230/208V) Blower Motor & Control (230/208V) Blower Motor & Control (460V) Programmed Control Only (230/208V) Programmed Control Only (230/208V) Programmed Control Only (460V) | X O | X
O | X O |
| 2 | 151-115 | Housing | 2 | 2 | 2 |
| 3 | 144-183 | Cutoff | X | X | X |
| 4 | 5152-092 | Wheel 9-6 CW | X | X | X |
| 5 | 5152-093 | Wheel 9-6 CCW | X | X | X |
| 6 | 105-1061 | Back Brace | X | X | X |
| 7 | 5451-011 | Grommets | 6 | 6 | 6 |
| 8 | 8200-031 | Motor Mount | X | X | X |
| 9 | 103-435 | Front Brace | X | X | X |
| 10 | 113-721 | Motor Control Bracket | X | X |


















