Bard W30AB-A, W30AB-B, W30AB-C, W30AB-D, W30AB-F, W36AB-A , W36AB-B, W36AB-C, W36AB-D, W36AB-E, W36AB-F, W30ABDA, W30ABDB, W30ABDC, W36ABDA, W36ABDB, W36ABDC, W36ABDV Wall Mounted Packaged Air Conditioner

General Notes
- Revised and/or additional pages may be issued from time to time.
- A complete and current manual consists of pages shown in the following contents section.
Important
- Contact the installing and/or local Bard distributor for all parts requirements. Make sure you have the complete model and serial number available from the unit rating plates.
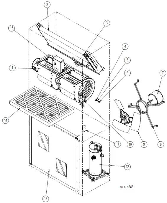
CABINET COMPONENTS

Dwg No. | Part Number | Description | W30AB-A, B, D | W30AB-C, F | W30ABDA, B | W30ABDC | W36AB-A, B, D, E | W36AB-C, F | W36ABDA, B | W36ABDC, V |
| 1 1 1 | 113-149-* 113-360 k 113-149-4 | Top Rain Flashing Top Rain Flashing Top Rain Flashing | X X X | X X X | X X X | X X X | X X X | X X X | X X X | X X X |
| 2 2 2 | S507-308-* S507-319 k S507-320 | Top Top Top | X X X | X X X | X X X | X X X | X X X | X X X | X X X | X X X |
| 3 3 | S123-127 S123-141 k | Drain Pan Drain Pan | X X | X X | X X | X X | X X | X X | X X | X X |
| 4 4 4 | S509-451 S509-455 k S509-453 | Upper Back Upper Back Upper Back | X X X | X X X | X X X | X X X | X X X | X X X | X X X | X X X |
| 5 | 105-1302 | Grommet Retainer | X | X | X | X | X | X | X | X |
| 6 6 6 | S501-933-* S501-994 k S501-937 | Right Side Right Side Right Side | X X X | X X X | X X X | X X X | X X X | X X X | X X X | X X X |
| 7 7 7 | S543-175-* S543-185 k S543-184 | Right Side Cover Plate (Outer) Right Side Cover Plate (Outer) Right Side Cover Plate (Outer) | X X X | X X X | X X X | X X X | X X X | X X X | X X X | X X X |
| 8 | 113X480 | Filter Bracket | 2 | 2 | 2 | 2 | 2 | 2 | 2 | 2 |
| 9 | 137-259 | Fill Plate | X | X | X | X | X | X | X | X |
| 10 10 | S132-104 S132-172 | Control Panel Cover (Inner) Control Panel Cover (Inner) | X | X | X | X | X | X | X | X |
| 11 | 113-140 | Bottom Mounting Bracket | X | X | X | X | X | X | X | X |
| 12 12 12 | S153-218 S153-405 k S153-387 | Disconnect Access Door Disconnect Access Door Disconnect Access Door | X X X | X X X | X X X | X X X | X X X | X X X | X X X | X X X |
| 13 13 13 | S533-228 S533-235 k S533-236 | Control Panel Cover (Outer) Control Panel Cover (Outer) Control Panel Cover (Outer) | X X X | X X X | X X X | X X X | X X X | X X X | X X X | X X X |
| 14 14 14 | 118-124-* 118-140 k 118-141 | Side Grille Side Grille Side Grille | 2 2 2 | 2 2 2 | 2 2 2 | 2 2 2 | 2 2 2 | 2 2 2 | 2 2 2 | 2 2 2 |
| 15 | Control Panel Assembly | See Control Panel Assy. Drawing & Parts List Assy. | X | X | X | X | X | X | X | X |
| 17 17 | S536-498 S536-877 k | Cond. Partition Block Off Plate Cond. Partition Block Off Plate | X X | X X | X X | X X | X X | X X | X X | X X |
| 18 18 | 127-471 S127-528 k | Lower Base Lower Base | X X | X X | X X | X X | X X | X X | X X | X X |
| 19 19 | 125-081 125-083 k | Fan Shroud Fan Shroud | X X | X X | X X | X X | X X | X X | X X | X X |
| 20 20 | S521X527 S521-552 k | Condenser Partition Condenser Partition | X X | X X | X X | X X | X X | X X | X X | X X |
| 21 | FAD-NE3 | Fresh Air Damper Assembly | X | X | X | X | X | X | X | X |
| 22 22 22 | 118-103-* 118-108 k 118-145 | Condenser Grille Condenser Grille Condenser Grille | X X X | X X X | X X X | X X X | X X X | X X X | X X X | X X X |
| 23 23 23 23 23 23 23 23 23 | S553-523-* S553-540-* S553-665-* S553-549 k S553-557 k S553-694 k S553-550 S553-558 S553-695 | Vent Option Door Vent Option Door with ERV Vent Option Door with CRV or ECON-S Vent Option Door Vent Option Door with ERV Vent Option Door with CRV or ECON-S Vent Option Door Vent Option Door with ERV Vent Option Door with CRV or ECON-S | X X X X X X X X X | X X X X X X X X X | X X X X X X X X X | X X X X X X X X X | X X X X X X X X X | X X X X X X X X X | X X X X X X X X X | X X X X X X X X X |
| 24 24 24 | S553-524-* S553-553 k S553-554 | Filter Door Filter Door Filter Door | X X X | X X X | X X X | X X X | X X X | X X X | X X X | X X X |
| 25 25 25 | S514-241-* S514-238 k S514-239 | Upper Front Upper Front Upper Front | X X X | X X X | X X X | X X X | X X X | X X X | X X X | X X X |
| 26 | 121X467 | Blower Partition | X | X | X | X | X | X | X | X |
| 27 | 105X850 | Side Support | X | X | X | X | X | X | X | X |
| 28 28 | 137-685 137-722 | Bottom Evaporator Fill Bottom Evaporator Fill | X | X | X | X | X | X | X | X |
| 29 29 29 | S501-934-* S501-995 k S501-940 | Left Side Left Side Left Side | X X X | X X X | X X X | X X X | X X X | X X X | X X X | X X X |
| 30 | 147-044 | Evaporator Support | X | X | X | X | X | X | X | X |
| 31 | S111X247 | Outlet Air Frame Assembly | X | X | X | X | X | X | X | X |
| 32 | 135X123 | Heat Shield | X | X | X | X | X | X | X | X |
| 33 33 33 | 109-450 109-454 k 109-452 | Lower Back Lower Back Lower Back | X X X | X X X | X X X | X X X | X X X | X X X | X X X | X X X |
| NS | 135-329 | Air Baffle | X | X | X | X | ||||
| NS | 5252-033 | Bard Nameplate | X | X | X | X | X | X | X | X |
- EXterior cabinet parts are manufactured with various paint color options. To ensure the proper paint color is received, include the complete model and serial number of the unit for which cabinet parts are being ordered.
- Exterior cabinet parts are manufactured from stainless steel Code “S”
- Exterior cabinet parts are manufactured from aluminum Code “A”
FUNCTIONAL COMPONENTS

Dwg No. | Part Number | Description | W30AB-A | W30AB-B | W30AB-C | W30AB-D | W30AB-F | W36AB-A | W36AB-B | W36AB-C | W36AB-D | W36AB-E | W36AB-F |
| 1 1 1 1 | S900-360-001 S900-361-001 900-360-002 900-361-002 | Blower Assembly Blower Assembly Blower Assembly Blower Assembly | X | X | X | X | X |
X |
X |
X |
X |
X |
X |
| 2 2 2 2 | 917-0355BX 917-0356BX 917-0357BX 917-0358BX | Evaporator Coil w/Distributor Assy. Evaporator Coil – Coated w/Distributor Assy. Evaporator Coil w/Distributor Assy. Evaporator Coil – Coated w/Distributor Assy. | X X | X X | X X | X X | X X |
X X |
X X |
X X |
X X |
X X |
X X |
| 3 3 | 800-0456 800-0479 | Distributor Assembly Distributor Assembly | X | X | X | X | X | X | X | X | X | X | X |
| 4 | 1171-023 | 1/4″ Receptacle | X | X | X | X | X | X | X | X | X | X | X |
| 5 | 1171-024 | 1/4″ Turn Retainer | X | X | X | X | X | X | X | X | X | X | X |
| 6 | 1171-022 | 1/4″ Turn Fastener | X | X | X | X | X | X | X | X | X | X | X |
| 7 7 | 8103-029 8103-030 | Condenser Motor Condenser Motor | X | X | X | X | X | X | X | X | X | X | X |
| 8 8 | 8200-001 8200-050 | Fan Motor Mount Stainless Steel Fan Motor Mount | X X | X X | X X | X X | X X | X X | X X | X X | X X | X X | X X |
| 9 9 | 5151-045 5151C045 | Fan Blade Coated Fan Blade | X X | X X | X X | X X | X X | X X | X X | X X | X X | X X | X X |
| 10 | CMC-31 | DIrty Filter Switch Kit | X | X | X | X | X | X | X | X | X | X | X |
| 11 | CMA-39 | Low Ambient Control (Screw On) k | X | X | X | X | X | X | X | X | X | X | X |
| 12 12 12 12 12 12 12 12 | 8000-277 8000-365 8000-366 8000-438 8000-278 8000-283 8000-342 8000-439 | Compressor Compressor Compressor Compressor Compressor Compressor Compressor Compressor | X | X |
X |
X |
X |
X |
X |
X |
X |
X |
X |
| 13 13 13 13 | 5051-203BX 5054-203BX 5051-202BX 5054-202BX | Condenser Coil Condenser Coil – Coated Condenser Coil Condenser Coil – Coated | X X | X X | X X | X X | X X |
X X |
X X |
X X |
X X |
X X |
X X |
| 14 14 14 14 14 | 7004-019 7003-031 7004-026 7004-048 7004-062 | Air Filter 1″ Throw-Away (16x30x1) Air Filter 1″ Washable k (16x30x1) Air Filter 2″ Pleated k (16x30x2) Air Filter 2″ Pleated MERV 11 k (16x30x2) Air Filter 2″ Pleated MERV 13 k (16x30x2) | X X X X X | X X X X X | X X X X X | X X X X X | X X X X X | X X X X X | X X X X X | X X X X X | X X X X X | X X X X X | X X X X X |
| NS NS | 8406-142 8406-140 | High Pressure Switch (Screw On) Low Pressure Switch (Screw On) | X X | X X | X X | X X | X X | X X | X X | X X | X X | X X | X X |
| NS | 5201-021 | Filter Drier | X | X | X | X | X | X | X | X | X | X | X |
| NS | 5451-024 | Tubing Isolation Grommet | 2 | 2 | 2 | 2 | 2 | 2 | 2 | 2 | 2 | 2 | 2 |
| NS | 6031-009 | Coremax Valve Core | 2 | 2 | 2 | 2 | 2 | 2 | 2 | 2 | 2 | 2 | 2 |
| NS | 1171-028 | Filter Door Clip | 2 | 2 | 2 | 2 | 2 | 2 | 2 | 2 | 2 | 2 | 2 |
| NS | 1171-057 | Filter Door Screw | 2 | 2 | 2 | 2 | 2 | 2 | 2 | 2 | 2 | 2 | 2 |
| NS | 1171-027 | Filter Door Screw Retainer | 2 | 2 | 2 | 2 | 2 | 2 | 2 | 2 | 2 | 2 | 2 |
| NS | CMC-29 | Freeze Thermostat Kit | X | X | X | X | X | X | X | X | X | X | X |
NS – Not Shown
- Used with stainless steel cabinet option k
- Optional on these models
EEV CONTROLLER ASSEMBLY

Dwg No. | Part Number | Description | S910-2050-001 |
| 1 | 143-219 | EEV Control Box Cover | X |
| 2 | 127-572 | EEV Control Box | X |
| 3 3 | S8301-079-0001 5651-246 | EEV Control Module & Stator Cable EEV Stator Cable Only | X X |
| 4 | 8201-130 | Control Relay | X |
| 5 | 3000-1602 | Main Wire Assembly | X |
| 6 | 3000-1611 | Transducer Wire Assembly – Connects to EEV Board | X |
| NS | 3000-1603 | Transducer Wire Assembly – Connects to Transducer | |
| 7 | 8408-056 | EEV Thermistor | X |
| 8 | 8611-075 | Clear Snap Plug | X |
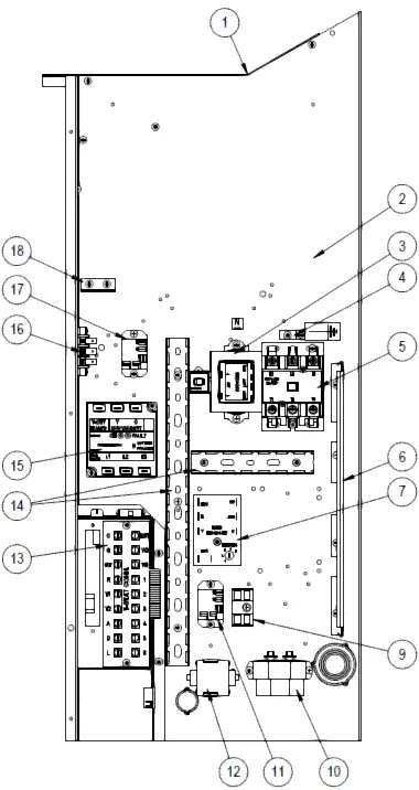
CONTROL PANEL

Dwg No. | Part Number | Description | W30AB-A | W30AB-B | W30AB-C | W30AB-D | W30AB-F | W36AB-A | W36AB-B | W36AB-C | W36AB-D | W36AB-E | W36AB-F |
| 1 | 117X137 | Control Panel Top | X | X | X | X | X | X | X | X | X | X | X |
| 2 | 117X407 | Control Panel | X | X | X | X | X | X | X | X | X | X | X |
| 3 3 | 8407-068 8407-069 | Transformer Transformer | X | X | X | X | X | X | X | X | X | X | X |
| 4 | 8611-006 | Ground Terminal | X | X | X | X | X | X | X | X | X | X | X |
| 5 5 | 8401-033 8401-035 | Compressor Contactor Compressor Contactor | X | X | X | X | X | X | X | X | X | X | X |
| 6 | 135-122 | Wire Shield | X | X | X | X | X | X | X | X | X | X | X |
| 7 | 8201-164 | Compressor Control Module | X | X | X | X | X | X | X | X | X | X | X |
| 9 | 8607-017 | Terminal Block (Optional) | X | X | X | X | X | X | X | X | X | X | X |
| 10 10 10 | 8552-052 8552-002 8552-062 | Compressor Capacitor Outdoor Motor Capacitor Compressor Capacitor | X | X | X |
X | X | X | X | X |
X | X | X |
| 11 | 8201-130 | Alarm Relay (Optional) | X | X | X | X | X | X | X | X | X | X | X |
| 12 | 8551-004 | Start Device (PTCR) (Optional) | X | X | X | X | |||||||
| 13 | 8607-063 | Low Voltage Terminal Strip | X | X | X | X | X | X | X | X | X | X | X |
| 14 14 | 8611-140-1400 8611-140-0500 | Cable Duct – 14″ Piece Cable Duct – 5″ Piece | X X | X X | X X | X X | X X | X X | X X | X X | X X | X X | X X |
| 15 | 8201-126 | Phase Monitor | X | X | X | X | X | X | X | ||||
| 16 | 8607-042 | Blower Speed Terminal | X | X | X | X | X | X | X | X | X | X | X |
| 17 | 8201-130 | Blower Control Relay | X | X | X | X | X | X | X | X | X | X | X |
| 18 | 141-188 | Plug Support Bracket | X | X | X | X | X | X | X | X | X | X | X |
| NS | 8615-038 | Circuit Breaker 35A 2 Pole (Opt.) | X | X | X | ||||||||
| NS | 8615-054 | Circuit Breaker 20A 3 Pole (Opt.) | X | ||||||||||
| NS | 8615-051 | Circuit Breaker 25A 3 Pole (Opt.) | X | ||||||||||
| NS | 8615-052 | Circuit Breaker 30A 3 Pole (Opt.) | X | X | |||||||||
| NS | 8615-095 | Toggle Disconnect (Optional) | X | X | X | X | |||||||
| NS NS | 8607-013 113-601 | Terminal Block 2 Pole Terminal Block Bracket | X X | X X | |||||||||
| NS | 4095-196 | Wiring Diagram | X | X | X | X | |||||||
| NS | 4095-296 | Wiring Diagram | X | X | X | ||||||||
| NS | 4095-378 | Wiring Diagram | X | X | |||||||||
| NS | 4095-640 | Wiring Diagram | X | X | |||||||||
| NS | 3000-1598 | Blower Power Plug | X | X | X | X | X | X | X | X | X | X | X |
| NS | 3000-1599 | Blower Speed Plug | X | X | X | X | X | X | X | X | X | X | X |
| NS | 3000-1524 | Vent Jumper Plug | X | X | X | X | X | X | X | X | X | X | X |
| NS NS | 3000-1224 3000-1231 | Compressor Plug/Harness Compressor Plug/Harness | X | X | X | X | X | X | X | X | X | X | X |
| NS NS NS | 3003-047 3003-048 3003-049 | Control Panel Harness Control Panel Harness Control Panel Harness | X | X | X | X |
X | X | X | X | X | X |
X |
| NS | 3000-1608 | Low Voltage Terminal Block Harness | X | X | X | X | X | X | X | X | X | X | X |
| NS | S910-2047 | Complete Low Voltage Box Assembly (Sheet Metal, LVTS & Wire Harness) | X | X | X | X | X | X | X | X | X | X | X |

Dwg No. | Part Number | Description | W30ABDA | W30ABDB | W30ABDC | W36ABDA | W36ABDB | W36ABDC | W36ABDV |
| 1 | 117X137 | Control Panel Top | X | X | X | X | X | X | X |
| 2 | 117-407 | Control Panel | X | X | X | X | X | X | X |
| 3 3 | 8407-068 8407-069 | Transformer Transformer | X | X | X | X | X | X | X |
| 4 | 8611-006 | Ground Terminal | X | X | X | X | X | X | X |
| 5 5 | 8401-033 8401-035 | Compressor Contactor Compressor Contactor | X | X | X | X | X | X | X |
| 6 | 135-122 | Wire Shield | X | X | X | X | X | X | X |
| 7 | 8201-164 | Compressor Control Module | X | X | X | X | X | X | X |
| 8 | 8201-113 | Dehum. Logic Control | X | X | X | X | X | X | X |
| 9 | 8607-017 | Terminal Block (Optional) | X | X | X | X | X | X | X |
| 10 10 | 8552-052 8552-002 | Compressor Capacitor Outdoor Motor Capacitor | X | X | X | X | X | X | X |
| 11 | 8201-130 | Dehumidification Control Relay | X | X | X | X | X | X | X |
| 12 | 8551-004 | Start Device (PTCR) (Optional) | X | X | |||||
| 13 | 8607-063 | Low Voltage Terminal Strip | X | X | X | X | X | X | X |
| 14 14 | 8611-140-1400 8611-140-0500 | Cable Duct – 14″ Piece Cable Duct – 5″ Piece | X X | X X | X X | X X | X X | X X | X X |
| 15 | 8201-126 | Phase Monitor | X | X | X | X | X | ||
| 16 | 8607-042 | Blower Speed Terminal | X | X | X | X | X | X | X |
| 17 | 8201-130 | Blower Control Relay | X | X | X | X | X | X | X |
| 18 | 141-188 | Plug Support Bracket | X | X | X | X | X | X | X |
| NS | 8615-038 | Circuit Breaker 35A 2 Pole (Optional) | X | X | |||||
| NS | 8615-054 | Circuit Breaker 20A 3 Pole (Optional) | X | ||||||
| NS | 8615-051 | Circuit Breaker 25A 3 Pole (Optional) | X | ||||||
| NS | 8615-095 | Toggle Disconnect (Optional) | X | X | X | ||||
| NS NS NS NS | 4095-198 4095-297 4095-379 4095-641 | Wiring Diagram Wiring Diagram Wiring Diagram Wiring Diagram | X | X | X | X | X | X | X |
| NS | 3000-1598 | Blower Power Plug | X | X | X | X | X | X | X |
| NS | 3000-1599 | Blower Speed Plug | X | X | X | X | X | X | X |
| NS | 3000-1524 | Vent Jumper Plug | X | X | X | X | X | X | X |
| NS NS | 3000-1224 3000-1231 | Compressor Plug/Harness Compressor Plug/Harness | X | X | X | X | X | X | X |
| NS NS | 3003-050 3003-051 | Control Panel Harness Control Panel Harness | X | X | X | X | X | X | X |
| NS | 3000-1608 | Low Voltage Terminal Block Harness | X | X | X | X | X | X | X |
| NS | S910-2047 | Complete Low Voltage Box Assembly (Sheet Metal, LVTS & Wire Harness) | X | X | X | X | X | X | X |
BLOWER ASSEMBLY

Dwg No. | Part Number | Description | S900-360-001 | S900-360-002 | S900-361-001 | S900-361-002 |
| 1 | S8106-068-0150 | Blower Motor & Control (230/208V) | X
O | X
O |
X
O |
X
O |
| 1 | S8106-068-0152 | Blower Motor & Control (230/208V) | ||||
| 1 | S8106-069-0151 | Blower Motor & Control (460V) | ||||
| 1 | S8106-069-0153 | Blower Motor & Control (460V) | ||||
| 1 | C8106-068-0150 | Programmed Control Only (230/208V) | ||||
| 1 | C8106-068-0152 | Programmed Control Only (230/208V) | ||||
| 1 | C8106-069-0151 | Programmed Control Only (460V) | ||||
| 1 | C8106-069-0153 | Programmed Control Only (460V) | ||||
| 2 | 151-111 | Housing | 2 | 2 | 2 | 2 |
| 3 | 144-174 | Diffuser | 2 | 2 | 2 | 2 |
| 4 | 5152-090 | Wheel CW | X | X | X | X |
| 5 | 5152-091 | Wheel CCW | X | X | X | X |
| 6 | 105-870 | Back Brace | X | X | X | X |
| 7 | 5451-011 | Grommets | 6 | 6 | 6 | 6 |
| 8 | 8200-031 | Motor Mount | X | X | X | X |
| 9 | 103-401 | Front Brace | X | X | X | X |
| 10 | 113-721 | Motor Control Bracket | X | X | X | X |




















