
Bard W30AB Wall-Mount Air Conditioner Installation Guide

The WMICF3A-* is an accessory item intended to lower the interior sound level when applied with a Bard wall-mount air conditioner or heat pump. This is accomplished by isolating the vibrations created by the mechanical devices of the wall mount operation using rubber isolation mounts to prevent the energy from transferring into the wall of the structure that it is mounted on. (This will be more beneficial on wood or steel frame structures in eliminating the drumming effect of the wall than on masonry structures.)
This accessory maintains existing supply-to-return spacing for the applied wall-mounted unit.
Bard Wall Mount Isolation Curb WMICF3A-* is for use with any Bard wall-mount product produced since 1992 that measures 38-1/4″ wide x 70-1/2″ tall x 17-1/8″ deep that is being applied as a front outlet supply duct. Refer to Table 1 for application.
Denotes Color
X = Beige
1 = White
4 = Buckeye Gray
5 = Desert Brown
8 = Dark Bronze
Table 1
WMICF3A-* Applications

- Refer to specific wall-mount model instructions for proper application of blower speed and maximum duct static limitations.
- Curb must use matching replacement top adapter for WG use.
Adding to Existing Installation
- Disconnect the electrical entrance and thermostat wires.
- Disconnect the duct work as required.
- Supporting the unit, remove the mechanical fasteners retaining the wall-mount unit to the structure, then lower the unit and move it off to the side for re-installation later.
- Continue with New Installation.
New Installation
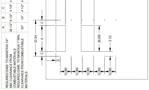
- Frame wall structure in accordance with these instructions (see Figures 1, 2 and 3).
- Uncarton WMICF3A-* assembly.
- Separate inner and outer curb sections (see Figure 4 on page 6, #1 and #2) by removing four (4) 12mm bolts and lock washers from the inner curb sides (see Figure 4, #3 and #4).
- On the inner curb section, locate the side stamped “TL” indicating Top Left (see Figure 4, #5).
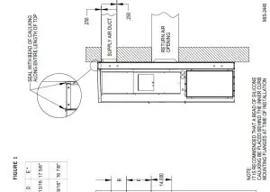
- On the rear of the attachment flange, apply a liberal amount of silicone caulk to weather seal the inner curb frame to the structure (see Figures 1 and 4).
- Place inner curb section onto structure aligning (centering) the supply and return air openings, driving fasteners into framework. If adding to existing installation, these holes will line up with fasteners removed from previous installation. Ensure that the curb is square when bolted to the structure (measure corner to corner). recommended that these bolts be started by hand to prevent cross threading.
NOTE: A clamp or pliers will likely need to be used to compress the rear gasket at the top of the assembly to align the bolt holes. It is necessary for this seal to be under compression so that when the wall-mount unit is installed, adequate weather sealing is maintained.
- Take outer curb assembly and locate the seam in the flex seal. Orient this seam so that it is on the bottom, setting the outer curb over the inner curb (see Figure 4, #2).
- Using the four (4) 12mm bolts and lock washers removed in Step 3, reattach the outer curb to the inner curb (see Figure 4, #1, #2, #3 and #4). It is
- Raise the unit to the curb with a suitable lift and engage the top of the unit to the curb first by slightly tipping the unit toward the curb.
- Engage nuts and washers (supplied) loosely to the top two (2) bolts in the curb to help keep the top of the unit in position.
- Pivot the unit down to engage the remainder of the bolts and fasten securely to the curb with nuts and washers (supplied) (see Figure 4).
- Apply a liberal amount of caulk across the seam between the unit top and the top of the curb. Apply caulk also between the inner curb frame and the rear seal of the outer curb frame all the way across the top and 2″ down each side (see Figure
1). - Connect electrical entrance and thermostat wires to the unit making sure that they are secured in a flexible conduit (liquid tite). The use of rigid conduit is not recommended as it could cancel the effects of the vibration isolators inclusive with this accessory.
- Connect duct work per standard practice.
NOTE: Refer to the wall-mount unit instructions for maximum allowable duct design statics.


FIGURE 2
Electric Heat Clearance




FIGURE 4


Read More About This Manual & Download PDF:




















