Callaway 40 Direct Vent Fireplace
Instructions Manual
Callaway 40 Direct Vent Fireplace
Please leave these reference guides at the installation location until the installation is finished. See owners manual for full installation and finishing instructions before making final decisions as information is subject to change.
Specifications
(all measurements are in inches)
– GAS LINE OPENING: LEFT SIDE
– ELECTRICAL ACCESS: RIGHT SIDE
| Model | BTU | Height | Front Width | Back Width | Depth | Glass Viewing Area | ||||
| Actual | Framing | Actual | Framing | Actual | Framing | Actual | Framing | |||
| CLW‐40 | 31,500 | 39‐1/4 | 60 | 49‐1/2 | 56‐1/2 | 49‐1/2 | 56‐1/2 | 18‐15/16 | 22 | 40 x 13 |
Framing Opening
If installing the Komfort Zone Kit or Heat Transfer Kit(s), please refer to the installation manual included with the corresponding kit

See the KZK‐044 or KZK‐158A manuals or Vented Cavity Installation (in the install manual) for their specific minimum dimension requirements
| Dimension | CLW‐40 |
| A | 57 |
| B | 56‐1/2 |
| C | 22 |
| D | 60 |

| E | F | G | H | I | J | K | L | M |
| 22 | 56‐1/2 | 22 | 56‐1/2 | 97‐1/2 | 56‐1/2 | 22 | 48‐3/4 | 69 |
Finishing Clearances

Clearances are for STANDARD installation ONLY
| Dimension | CLW‐40 |
| N | 47‐7/8 |
| O | 31‐1/8 |
| P | 7‐3/8 |
| Q | 10‐1/2 |
| R | 3/4 |
Non‐Combustible Material Only
Combustible Material Allowed
Combustible Material Allowed*
*See install manual for acceptable screw location usage
Horizontal Termination Framing

Framing outlined here applies to the minimum for all standard, KZK and vented options when venting with natural draft.
If using Kozy Power Vent (#KPV), reference the manual included with the kit.
| Dimension | CLW‐40 |
| S | 22 |
| T | 34‐7/8 |
Mantel Clearances ‐ Standard Installation (NO optional Komfort Zone Heat Distribution Kit)
ON‐COMBUSTIBLE ZONE

No optional Decorative Surround
MANTEL PROJECTION: Each square represents 1” of projection
| Dimension | CLW‐40 |
| U | 9‐7/8 |
| V | 26‐5/8 |
| W | 16‐3/4 |
| X | 20‐3/8 |
| Y | 23‐7/8 |
| Z | 29‐7/8 |
| AA | 22 |
| BB | 60 |

| Dimension | CLW‐40 |
| CC | 32‐5/8 |
| DD | 6 |
| EE | 22 |
| FF | 60 |
Mantel & Hearth Clearances
Komfort Zone Kit Installed (#KZK‐158A or #KZK‐044)

Each square represents 1” of projection
| Dimension | CLW‐40 |
| GG | 9‐7/8 |
| HH | 26‐5/8 |
| II | 16‐3/4 |
Below shows where to end masonry finishing materials, when measuring from the finishing edge. This allows the installation of an Optional Surround. This is important, due to the fact that most masonry finishing materials will not fit behind the optional surround if one is installed.

| Surround | JJ | KK |
| CW40‐RS | 1‐1/2 | 1‐1/2 |
| CW40‐RS4 | 2‐5/8 | 2‐5/8 |
| CW40‐GS | 6 | 2‐5/8 |
| CW40‐FS | 3‐1/8 | 3‐1/8 |
- Measurement ‘JJ’ shows the space to leave on each side
- Measurement ‘KK’ shows the space to leave on the top and the bottom
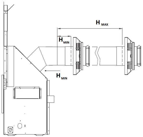
Minimum Horizontal NATURAL DRAFT Venting Requirements

H = Horizontal
V = Vertical
Consult venting chart in the manual for all options above minimum requirements
| Requirement | CLW‐40 |
| (NG/LP) Horizontal Min | 45o Elbow + 9” |
| (NG/LP) Horizontal Max | 24” |
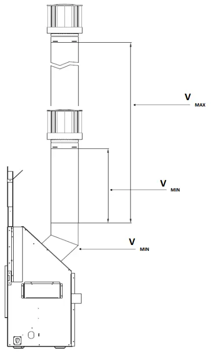
Minimum Vertical NATURAL DRAFT Venting Requirements

V = Vertical
| Requirement | CLW‐40 |
| (NG/LP) Vertical Min | 45o Elbow + 3 ft. |
| (NG/LP) Vertical Max | 50 ft. |

| Requirement | CLW‐40 |
| (NG/LP) Vertical Min | 45o Elbow + Reducer + 10 ft. |
| (NG/LP) Vertical Max | 50 ft. |
Class ’A’ Chimney Conversion Venting

| Requirement | CLW‐40 |
| (NG/LP) Vertical Min | 45o Elbow + Reducer + Connector + 10 ft. |
| (NG/LP) Vertical Max | 50 ft. |
Coaxial to Co‐Linear Chimney Venting

| Requirement | CLW‐40 |
| (NG/LP) Vertical Min | 45o Elbow + Reducer + Connector + 10 ft. |
| (NG/LP) Vertical Max | 50 ft. |


















