BRECKWELL BH6113LFP Direct Vent Linear Fireplace

WARNING
FIRE OR EXPLOSION HAZARD
Failure to follow safety warnings exactly could result in serious injury, death, or property damage.
- Do not store or use gasoline or other flammable vapors and liquids in the vicinity of this or any other appliance.
- WHAT TO DO IF YOU SMELL GAS
- Do not try to light any appliance.
- Do not touch any electrical switch; do not use any phone in your building.
- Leave the building immediately.
- Immediately call your gas supplier from a neighbor’s phone. Follow the gas supplier’s instructions.
- If you cannot reach your gas supplier, call the fire department.
- Installation and service must be performed by a qualified installer, service agency or gas supplier.
Please read this manual BEFORE installing and operating this fireplace.
INSTALLER
Leave this manual with the appliance. CONSUMER: Retain this manual for future reference.
CALIFORNIA PROPOSITION 65 WARNING
This product can expose you to chemicals including carbon monoxide, which is known to the State of California to cause cancer, birth defects, and/or other reproductive harm. For more information, go to www.P65warnings.ca.gov 227 Industrial Park Rd.
- South Pittsburg, TN 37380
- Phone: 800-750-2723
- Web: www.breckwell.com
Laboratory
PFS-TECO Laboratories Standards:
- ANSI Z21.88-2017/CSA 2.33-2017, Vented Gas Fireplace Heaters
- CSA 2.17-2017, Gas-Fired Appliances for Use at High Altitudes
- CSA P.4.1-2015, Testing Method for Measuring Annual Fireplace Efficiency
This installation must conform with local codes, or in the absence of local codes, with the National Fuel Gas Code, ANSI Z223.1/NFPA 54, or the Natural Gas and Propane Installation Code, CSA B149.1
We recommend that our gas hearth products be installed and serviced by professionals who are certified in the U.S. by the National Fireplace Institute® (NFI) as NFI Gas Specialists. This appliance may be installed in an after-market permanently located, manufactured home (USA only) or mobile home, where not prohibited by local codes. It is only for use with the type of gas indicated on the rating plate, and is not convertible for use with other gases unless a certified kit is used. After-market: Completion of sale, not for purpose of resale, from the manufacturer.
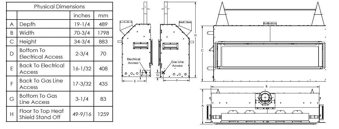
Dimensions
Safety Label
NOTE: This image is only an example. The label on the actual unit will vary slightly.
NOTE
When initially lit, condensation will appear on the glass. This is normal and will disappear after several minutes. A paint smell will occur during the first few hours of burning. It is recommended to leave the fan off during this period to help speed up the paint-curing process. It may produce noises of varying degrees as it heats and cools due to metal expansion and contraction. This is normal and does not affect performance or longevity. See the “Curing Instructions” section of this manual.
Requirements For The Commonwealth Of Massachusetts
The following requirements reference various Massachusetts and national codes not contained in this manual. For all sidewall horizontally vented gas-fueled equipment installed in every dwelling, building or structure used in whole or in part for residential purposes, including those owned or operated by the Commonwealth and where the side wall exhaust vent termination is less than (7) feet above finished grade in the area of the venting, including but not limited to decks and porches, the following requirements shall be satisfied:
INSTALLATION OF CARBON MONOXIDE DETECTORS
At the time of installation of side wall horizontally vented gas-fueled equipment, the installing plumber or gas-fitter shall observe that a hard-wired carbon monoxide detector with an alarm and battery back-up is installed on the floor level where the gas equipment is to be installed. In addition, the installing plumber or gas-fitter shall observe that a battery-operated or hard-wired carbon monoxide detector is installed on each additional level of the dwelling, building or structure served by the side wall horizontal vented gas-fueled equipment. It shall be the responsibility of the property owner to secure the services of qualified licensed professionals for the installation of hard-wired carbon monoxide detectors. In the event that the side wall horizontally vented gas-fueled equipment is installed in a crawl space or attic, the hard-wired carbon monoxide detector with alarm and battery back-up may be installed on the next adjacent floor level. In the event that the requirements of this subdivision can not be met at the time of completion of installation, the owner shall have a period of thirty (30) days to comply with the above requirements; provided, however, that during said thirty (30) day period, a battery operated carbon monoxide detector with an alarm shall be installed.
APPROVED CARBON MONOXIDE DETECTORS
Each carbon monoxide detector as required in accordance with the above provisions shall comply with NFPA 720 and be ANSI/UL 2034 listed and IAS certified.
SIGNAGE
A metal or plastic identification plate shall be permanently mounted to the exterior of the building at a minimum of eight (8) feet above grade directly in line with the exhaust vent terminal for the horizontally vented gas-fueled heating the appliance or equipment. The sign shall read, in print no less the one-half inch (1/2) in size, “GAS VENT DIRECTLY BELOW. KEEP CLEAR OF ALL OBSTRUCTIONS”.
INSPECTION
The state or local gas inspector of the side wall horizontally vented gas-fueled equipment shall not approve the installation unless, upon inspection, the inspector observes carbon monoxide detectors and signage installed in accordance with the provisions of 248 CMR 5.08 (2) (a) 1 through 4.
EXEMPTIONS
The following equipment is exempt from 248 CMR 5.08 (2) (a) 1 through 4: The equipment listed in Chapter 10 entitled “Equipment Not Required To Be Vented” in the most current edition of NFPA 54 as adopted by the Board; and Product Approved side wall horizontally vented gas fueled equipment installed in a room or structure separate from the dwelling, building or structure used in whole or in part for residential purposes.
MANUFACTURER REQUIREMENTS
Gas Equipment Venting System Provided: When the manufacturer of Product Approved side wall horizontally vented gas equipment provides a venting system design or venting system components with the equipment, the instructions provided by the manufacturer for installation of the equipment and the venting system shall include:
- Detailed instructions for the installation of the venting system design or the venting system components; and
- A complete parts list for the venting system design or venting system.
GAS EQUIPMENT VENTING SYSTEM NOT PROVIDED
When the manufacturer of Product Approved side wall horizontally vented gas equipment does not provide the parts for venting the flue gases, but identifies “special venting systems”, the following requirements shall be satisfied by the manufacturer:
- The referenced “special venting systems” instructions shall be included with the appliance or equipment installation instructions and;
- The “special venting systems” shall be Product Approved by the Board, and the instructions for that system shall include a parts list and detailed installation instructions.
- A copy of all installation instructions for all Product Approved side wall horizontally vented gas-fueled equipment, all venting instructions, all parts lists for venting instructions, and/or all venting design instructions shall remain with the appliance or equipment at the completion of the installation.
Before You Start
WARNING
Read this owner’s manual carefully and completely before trying to assemble, operate, or service. Any change to this appliance or its controls can be dangerous. Improper installation or use can cause serious injury or death from fire, burns, explosions, electrical shock and carbon monoxide poisoning. This is a vented product. It must be properly installed by a qualified service person. The glass door must be properly seated and sealed. If this appliance is not properly installed by a qualified service person with a glass door properly seated and sealed, combustion leakage can occur.
CARBON MONOXIDE POISONING
Early signs of carbon monoxide poisoning are similar to the flu with headaches, dizziness and/or nausea. If you have these signs, it may not have been installed properly. Get fresh air at once! Have it inspected and serviced by a qualified service person? Some people are more affected by carbon monoxide than others. These include pregnant women, people with heart or lung disease or anemia, those under the influence of alcohol, and those at high altitudes. Propane/LP gas and natural gas are both odorless. An odor-making agent is added to each of these gases. The odor helps you detect a gas leak. However, the odor added to these gases can fade. Gas may be present even though no odor exists. Make certain you read and understand all warnings. Keep this manual for reference. It is your guide to safe and proper operation.
- Installation and repair should be done by a qualified service person. The appliance should be inspected before use and at least annually by a professional service person. More frequent cleaning may be required due to excessive lint from carpeting, bedding material, etc. It is imperative that control compartments, burners, and circulating air passageways of the appliance be kept clean.
- Only use the type of gas indicated on the rating plate. This appliance is not convertible for use with other gases unless a certified kit is used.
- Do not place propane/LP supply tank(s) inside any structure. Locate propane/LP supply tank(s) outdoors. To prevent performance problems, do not use a propane/LP fuel tank of fewer than 100 lbs. capacity.
- If you smell gas:
- Shut off the gas supply.
- Do not try to light any appliance.
- Do not touch any electrical switch; do not use any phone in your building.
- Immediately call your gas supplier from a neighbor’s phone. Follow the gas supplier’s instructions.
- Never install:
- In a recreational vehicle
- Where curtains, furniture, clothing, or other flammable objects are less than 36” from the front, top, or sides of it
- In high-traffic areas
- In windy or drafty areas
- This appliance reaches high temperatures. Children and adults should be alerted to the hazards of high surface temperature and should stay away to avoid burns or clothing ignition. It will remain hot for a time after shutdown. Allow surfaces to cool before touching.
- Young children should be carefully supervised when they are in the same room as the appliance. Toddlers, young children and others may be susceptible to accidental contact burns. A physical barrier is recommended if there are at-risk individuals in the house. To restrict access to a fireplace or stove, install an adjustable safety gate to keep toddlers, young children and other at-risk individuals out of the room and away from hot surfaces.
- Due to high temperatures, the appliance should be located out of traffic and away from furniture and draperies. Clothing or other flammable material should not be placed on or near the appliance.
- When the appliance is installed directly on carpeting, tile or other combustible material other than wood flooring, you must use a metal or wood panel or hearth pad extending the full width and depth of the appliance.
- Do not modify the appliance under any circumstances. Any parts removed for servicing must be replaced prior to operating.
- Turn off and let cool before servicing, installing, or repairing. Only a qualified service person should install, service, or repair it. Has the burner system inspected annually by a qualified service person?
- You must keep control compartments, burners, and circulating air passages clean. More frequent cleaning may be needed due to excessive lint and dust. Turn off the gas valve and pilot light before cleaning.
- Have the venting system inspected annually by a qualified service person. If needed, have venting system cleaned or repaired.
- Keep the surrounding area clear of combustible materials, gasoline, and other flammable vapor and liquids. Do not run the appliance where these are used or stored. Do not place items such as clothing or decorations on or around the appliance.
- Do not use to cook food or burn paper or other objects.
- Never place anything on top of the appliance.
- Do not use any solid fuels (wood, coal, paper, cardboard, etc.) in this appliance. Use only the gas type indicated on the rating plate.
- This appliance, when installed, must be electrically grounded in accordance with local codes or in the absence of local codes, with the National Electrical Code, ANSI/NFPA 70, or the Canadian Electrical Code, CSA C22.1.
- Do not obstruct the flow of combustion and ventilation air in any way. Provide adequate clearances around air openings into the combustion chamber along with adequate accessibility clearance for servicing and proper operation.
- Do not use if any part has been underwater. Immediately call a qualified service technician to inspect and if needed replace any part of the control system and any gas control which as been under water.
- Do not operate if any log is broken.
- Do not use a blower insert, heat exchanger insert, or any other accessory not approved for use with this appliance.
- Do not operate with the glass front removed, cracked, or broken. Replacement of the glass should be done by a licensed qualified service person.
CAUTION
PLEASE READ THE FOLLOWING CAREFULLY It is not unusual to have some odor during the first burn. This is due to the manufacturing process. Please ensure that your room is well-ventilated during burn-off — open all windows. It is recommended that you burn your fireplace for at least ten (10) hours the first time you use it. Place the fan switch in the “OFF” position during this time.
WARNING
Never connect this appliance to private (non-utility) gas wells. This gas is commonly known as wellhead gas.
Product Features
PRODUCT SPECIFICATIONS
This appliance:
- has been certified for use with either natural or propane gas. See appropriate data plates.
- is not for use with solid fuels.
- is approved for bedroom or bed-sitting room installations.
- must be installed in accordance with local codes if any. If none exist use the current installation code. ANSI Z223.1/NFPA 54 in the USA, CSA B149.1 in Canada.
- is mobile home approved?
- must be properly connected to a venting system.
- is not approved for closet installations.
- is approved to be vented using DuraVent, BDM, and Olympia components.
- The classification “noncombustible material” includes, but is not limited to stone, brick and mortar. Noncombustible are safe to overlay the black-painted metal face (including radiant plates) and do not pose a fire hazard. Do not allow any noncombustible finish material to extend past or interfere with the opening.
- The classification “combustible material” includes, but is not limited to plywood, drywall and particle board. Combustible materials may contact the sides, bottom or back of the firebox. Do not overlay the black-painted face with combustible materials.
CONTROLS

HIGH ELEVATIONS
Input ratings are shown in BTU per hour and are certified without derating for elevations up to 4,500 feet (1,370 m) above sea level. For elevations above 2,000 feet (50.8 m) in USA, installations must be in accordance with the current ANSI Z223.1/NFPA 54 and/or local codes having jurisdiction. In Canada, please consult provincial and/or local authorities having jurisdiction for installations at elevations above 4,500 feet (1,370 m). Natural Gas and Propane Installation Code, CSA B149.1 NOTE: If you live in a cold climate, seal all cracks around your appliance, and wherever cold air could enter the room, with noncombustible material. It is especially important to insulate the outside chase cavity between the studs and under the floor on which the appliance rests, if the floor is above ground level. NOTE: Failure to follow these instructions will void the warranty.
- WARNING
Read all instructions completely and thoroughly before attempting installation. Failure to do so could result in serious injury, property damage or loss of life. Operation of an improperly installed and maintained venting system could result in serious injury, property damage or loss of life. - WARNING
This appliance must be vented to the outside. The venting system must NEVER be attached to a chimney serving a separate solid fuel-burning appliance. Each gas appliance must use a separate vent system. Do not use common vent systems. - WARNING
Do not pack the open-air spaces with insulation or other materials. This could cause high temperatures and may present a fire hazard and serious injury, property damage or loss of life. Operation of an improperly installed and maintained venting system could result in serious injury, property damage or loss of life.
Part Overview
Read this homeowner manual thoroughly and follow all instructions carefully. Inspect all contents for shipping damage and immediately inform your authorized dealer if any damage is found. Do not install any damaged, incomplete, or substitute parts. Check your packing list to verify that all listed parts have been received.
Venting
APPROVED VENT SYSTEMS
DuraVent, ICC, BDM, and Olympia components.
VENTING REQUIREMENTS
Consult the local and national installation codes to assure adequate combustion and ventilation air is available. Venting requirements apply to both natural gas and LP gas.
- Flame height and appearance will vary depending upon venting configuration and the type of fuel used.
- Refer to the vent manufacturer’s installation manual for complete installation instructions. Vent installation must conform with venting requirements and restrictions as outlined in this manual.
- Provide a means for visually checking the vent connection to the appliance after it is installed.
VENT SECTION CLEARANCES
NOTE
Wall thimble products that comply with the required 1 in (25 mm) clearance to combustibles must be installed for all horizontal vent runs that pass through interior or exterior walls. These wall thimble products may be insulated using unfaced insulation products listed as non-combustible per ASTM E 136.
USE OF ELBOWS
- MAXIMUM NUMBER OF 90° ELBOWS: 4
- For each additional 90° elbow used after the first 90° elbow, 3 ft (91.4 cm) must be subtracted from the maximum venting allowed.
- For each 45° elbow used, 1-1/2 ft (457 mm) must be subtracted from the maximum venting allowed.
- (2) 45° degree elbows may be used in place of (1) 90° elbows.
Framing
WARNING
The top stand-offs provide the minimum clearance to the header. Use only non-combustible material in this area for the entire width of the appliance. DO NOT use wood, sheetrock, etcetera, in this zone. Top stand-off brackets must be formed and attached prior to positioning into the framed opening.
- Attach the two stand-offs assembles to the top of the unit using four 10-32 X 1/2 screws.
- Slide the stand-off support brackets into place.
Attach the top shield to the two stand-offs assembles using 10-32 X 1/2 screws. NOTE: The stand-offs are located in the firebox. The eight10-32 X 1/2 screws and the two stand-off support brackets are provided in the parts bag.
WALL ENCLOSURE ROUGH OPENING
WARNING:
Provide adequate clearances around air openings in the combustion chamber. Provide adequate clearance in front of the appliance for barrier removal, component access, gas line installation, service access, etc.
- This unit requires a solid platform to support it. The solid platform can be made of combustible material. When the appliance is installed directly on carpeting, tile or other combustible material other than wood flooring, the appliance shall be installed on a metal or wood panel extending the full width and recessed depth of the appliance.
- 1/2” to 3/8” thick non-combustible material such as Mill-board or Hardy board ect. is required above, below, and on each side (NOT supplied).

- The minimum coverage area of non-combustible material. Any wall dinish applied to the shaded area must be non-combustible.

CAUTION
Apply a generous amount of high-temperature sealant around the flue outlet.


DIMENSION SHOWN WITH LISTED DURAVENT ELBOW
NOTE: Approved vent system elbows vary in vertical length. Consult the vent manufacturer’s instructions to determine the elbow dimension used for your installation. Adjust as necessary to maintain the required 1” (25mm) clearance from the vent pipe to the combustible material.
- Dimensions of venting are based on using Dura Vent elbows. Elbow curve radius dimensions may vary when using other brands. In general, other brands have slightly bigger radii.
- Minimum 24 inches vertical pipe section required at the unit. Refer to the “Venting Chart” section of this manual for allowable horizontal runs.
- 2 inches clearance to combustibles is required above the horizontal pipe. Slope horizontal pipe upwards of 1/4 inch per foot. 1-inch clearance is required around the sides and bottom of the horizontal pipe and around the vertical pipe.

- When calculating effective pipe lengths subtract approximately 1-1/2 inch for pipe joint – for example, a 12 inches pipe section will add approximately 10 -1/2 inches overall.
TOP OUTLET ONLY
This unit is supplied with a top vent outlet and should NOT be field-converted to a rear vent outlet (see vent chart in this manual).
VENT SEALING
Seal all outer coaxial pipe and elbow joints, including sectioned elbow joints, using high quality, high temperature 2 inch wide self-adhesive aluminum foil tape (Nashua-322-2 brand or similar). Wrap the tape completely around all joints and press firmly to seal. A high-temperature black silicone sealant may be used in the outer joints as a substitute to foil tape. Ensure all the pipe joints have a minimum of -1/4” overlap.
WALL THICKNESS
The appliance vent is suitable for penetrating a combustible wall assembly up to 8 inches in thickness. A non-combustible wall can be of any thickness up to the maximum horizontal run of vent pipe allowed for the particular installation.
FRAMING VENT IN COMBUSTIBLE WALLS & CEILINGS
When penetrating through combustible walls and ceilings, frame a minimum of 10 in x 10 in opening and ensure that the insulation is kept clear of the vent pipe using either a wall thimble or an attic insulation shield. Follow the installation instructions supplied with the individual venting components.
WEATHER SEALING & VAPOR BARRIERS
It is the installer’s responsibility to ensure that vent installations through exterior walls are caulked and weatherproofed in such a manner as to:
- Prevent rainwater from entering the wall from the weather side by adequately caulking the outer vent plate to the exterior wall surface.
- Prevent moisture inside the home from penetrating into the wall structure by ensuring the inside wall plate is adequately sealed to the inside vapor barrier.
- Prevent rainwater and moisture from entering the walls by sealing the joints between the outer vent tube and the inner and outer wall plates. We recommend the use of a high-quality polyurethane sealant.
All horizontal pipe runs must be graded 1/4” per foot upwards in the direction of the exhaust flow. The final pipe length, when terminating through the wall may be graded downwards slightly to prevent water migration.
MOUNTING BRACKET
ATTACH THE FOUR MOUNTING BRACKETS TO THE UNIT USING TWO #10A X 1/2” SCREWS PER BRACKET.
Mantel And Finishing Requirements
Gas Line Connection
CAUTION
The conversion shall be carried out in accordance with the requirements of the provincial authorities having jurisdiction and in accordance with the requirements of the ANSI Z223.1 installation code. This appliance is manufactured for use with natural gas. Follow the instructions included with the conversion kit if converting to LP gas. The conversion kit shall be installed by a qualified service agency.
GAS LINE INSTALLATION
CAUTION
Installation of the gas line must only be done by a qualified person in accordance with local building codes if any. If not, follow ANSI 223.1. Commonwealth of Massachusetts installations must be done by a licensed plumber or gas fitter.
NOTE
The appliance and its individual shutoff valve must be disconnected from the gas supply piping system during any pressure testing of that system at pressures in excess of 1/2 psi (3.5 kPa). For test pressures equal to or less than 1/2 psi (3.5 kPa), the appliance must be isolated from the gas supply piping system by closing its individual manual shut-off valve. A listed (and Commonwealth of Massachusetts approved) 1/2” (13 mm) tee handle manual shut-off valve and flexible gas connector are to be connected to the 1/2” (13 mm) control valve inlet. If substituting for these components, please consult local codes for compliance.
- This appliance is equipped with a 3/8” (10 mm) x 18” (457 mm) long flexible gas connector and manual shut-off valve.
- Run gas line into the appliance. The gas line should be run to the point of connection where the shut-off valve and flexible gas line will connect.
- Do not run gas line in a manner that would obstruct fan operation.
- For high-altitude installations, consult the local gas distributor or the authority having jurisdiction for proper rating methods.

Termination Locations
VERTICAL VENT CAP TERMINATION
WARNING: This appliance must not share or be connected to a chimney flue serving any other appliance.
MINIMUM TERMINATION CLEARANCES

Top Vent (Vertical Only)
WARNING
Improper vent installation may cause the burner flames to lift or “ghost.” Perform a visual check on flame appearance after restrictor adjustment to ensure proper performance.
RESTRICTOR ADJUSTMENT
Adjust the restrictor to achieve the desired flame appearance on any top venting configuration with 6 ft (1.83 m) of vertical pipe or more. Vertical terminations may display an active, compact flame. If this appearance is not desirable, the restrictor may need to be adjusted. Allow 15 minutes of burn time before making any adjustments. Adjust the restrictor as shown in this manual.
WARNING
To avoid property damage or personal injury, allow ample time to cool before making any adjustments.
- Reach in through the firebox and remove both baffles.

- Remove the two screws that are securing the relief baffle weldment to the top of the firebox (one screw on each side).

- To remove the relief baffle weldment push up and back, then lower front-first and remove.

- Slide the restrictor forward and backward to adjust.

Co-Axial Venting
TYPICAL CO-AXIAL VENTING COMPONENTS—TOP OUTLET ONLY
READING THE VENTING CHART
The chart below applies to the co-axial roof or wall termination.
- Minimum 24-inch vertical pipe section required right at unit.
- The total length of the vent pipe cannot exceed 40 feet.
- The minimum vertical height with roof termination is 6 feet.
- Any combination of rise and run can be used as long as they are within the allowable limits shown on the chart below.
- A maximum of 4 x 90° elbows—or equivalent (2 x 45° = 90°)—can be used. Excludes the 45° take-off elbow shipped with the appliance.
- Each 90° elbow installed on the horizontal plane is equivalent to a 3 feet horizontal pipe; therefore, 3 feet must be subtracted from the allowable horizontal run (45° elbow is equivalent to 18” horizontal pipe).
- All horizontal pipe runs must be graded 1/4 inch per foot upwards in the direction of the exhaust fl ow. The final pipe length, when terminating through the wall may be graded downwards slightly to prevent water migration.
- A restrictor adjustment is required for most installations having a vertical rise—see next section. NOTE: The restrictor is shipped and installed at the exhaust exit of the firebox.
VENTING CHART
Log and liner Installation
CAUTION
Do not place logs directly over burner port holes. Improper log placement may affect flame appearance and cause excessive soot to build upon the logs and glass.
- If converting to LP (propane) gas, complete the conversion before installing the log set. Follow the conversion instructions included with the kit.
- Refer to the instruction sheets provided with your log and liner set for proper installation.
- Only log and liner sets certified with the appliance shall be used. NOTE: This fireplace should not be burned without the approved logs, surrounds, and liners properly installed. Use without the logs, surrounds, and liners properly installed could cause damage to the appliance.
Setup
GLASS FRAME ASSEMBLY
WARNING
Do not operate with the glass removed, cracked, or broken. Replacement of the glass assembly should be done by a licensed or qualified service person.
WARNING
Use only authorized parts and materials when replacing defective or damaged glass.
REMOVE GLASS FRAME ASSEMBLY
WARNING
Do not remove the glass assembly when hot.
- Remove the two #8 X 0.375 screws that secure the control cover tray to the unit. Once the two #8 screws are removed lift the control cover unit up and out of the unit.

- Locate (2) spring-loaded latches securing the glass assembly at the top of the glass frame.

- Using your finger, pull the lever towards you and unhook it from the window frame bracket.
- Gently pull the top of the window outward. Lift the window out of its bottom railing and set it aside in a safe place to avoid damage.

Safety Barrier Information
WARNING
A barrier designed to reduce the risk of burns from the hot viewing glass is provided with this appliance and shall be installed for the protection of children and other at-risk individuals. If the barrier becomes damaged, the barrier shall be replaced with the manufacturer’s barrier for this appliance. Only doors certified with the appliance shall be used.
CAUTION
Consider the height of the hearth finish material when building a platform. Proper installation of safety barriers with an overlap fit design requires the bottom of the appliance to be level with the finished hearth. For installation instructions refer to “Safety Barrier Installations”.Do not operate this appliance without safety barriers. Only safety barriers certified with the appliance shall be used.
Control Board
WARNING
If the burner and/or pilot have been burning, use appropriate protection to avoid burns or damage to personal property before removing any components. DO NOT OPERATE THIS APPLIANCE WITHOUT THE HEAT SHIELDS (LOCATED OVER THE CONTROL BOARD AND VALVE) IN PLACE. IF THE GASKET IS DAMAGED, IT MUST BE REPLACED.
CAUTION
Check all connections for leaks with soapy water, whether field or factory-made.
Electrical Information
ELECTRICAL SPECIFICATIONS
This appliance, when installed, must be electrically grounded in accordance with local codes, or in the absence of local codes, with the National Electrical Code, ANSI/NFPA 70, or the Canadian Electrical Code, CSA C22.1.
WIRING REQUIREMENTS
- The Ignition Module requires 120V of electricity and/or batteries to operate.
- Using the battery backup will operate the burner only.
- Optional fan and light components will not function on battery backup power.
WARNING
Do not use this fireplace if any part has been under water. Immediately call a qualified service technician to inspect this appliance and to replace any part of the control system and any gas control which has been under water.
WARNING
Electrical Grounding Instructions: This appliance is equipped with a three-prong (grounding) plug for your protection against shock hazards and should be plugged directly into a properly grounded three-prong receptacle. Do not cut or remove the grounding prong from this plug.
Replacement Parts And Service
OVERFIRING OF BURNER
Never “overfire” adjusting gas pressure or drilling out the orifice to increase Btu/hr above nameplate specifications. Overfiring can cause permanent damage to the firebox and deterioration of parts and void warranty.
MAINTAINING CORRECT PILOT-FLAME
The pilot flame must be checked during initial installation and annually by a qualified technician. This appliance uses flame rectification technology. If the pilot flame is turned down too low, the flame sensor may not detect the pilot flame and the pilot may not stay lit. Do not turn down the pilot flame. The flame sensor rod may be coated with debris after a few months of use. It is important to clean the flame sensor rod using emery cloth if flame rectification problems are encountered after use for a few months. Environmental factors beyond the control of Breckwell can cause flame rectification concerns.
Installation Checklist
All items on the checklist must be completed.
- Co-axial vent rigid pipe, wall vent cap or roof vent cap is installed by an approved service person in accordance with instructions.
- All joints are secured, “twist-locked” and leak-proof. 1000°F sealant is used on the inner pipe joints of all DuraVent pipe sections.
- A horizontal or vertical vent cap is installed “right-side-up” and tightly sealed to the structure per instructions. Vent Caps are approved.
- Proper exterior and interior clearances for vent systems and locations for wall vent cap/roof vent cap are maintained.
- Correct gas pressure, proper size gas lines and gas leaks are checked.
- 120 V electrical service and gas supply is installed in accordance with instructions and local and national codes.
- Telescoping sections are not separated. They were used as complete assemblies.
- The glass door is in the proper closed position and centered in the firebox opening.
Lighting Checklist
All items on the checklist must be completed.
- Gas leaks and gas pressures prior to installing facing materials is checked.
- Fresh batteries are in the remote control. Follow “First-Time Lighting Instructions” to synchronize the remote control and the ignition module.
- Air shutter opening 0″ to 1/8″ natural gas or 0” to 1/2” LP gas is checked.
- All lighting and log installation instructions were followed.
- Burners light immediately and flame runs promptly around the burner and lights entire burner. NOTE: Do not proceed with the operation unless burner cycles “on/off” without delays.
- Flame is “stable” and does not “lift” off the burner. If flame lifts off burner, turn off and check that all vent pipes are “twist locked” and sealed, the vent cap is “right side up” and that 1000°F sealant has been used on the inner pipe joints of all DuraVent pipe sections. Do not proceed with the operation if flame is “lifting off” burner.
Operation Information
USING YOUR REMOTE CONTROL
Your remote control is preprogrammed. Ensure you have installed 3 AAA batteries into your remote. Press the top button on the remote control. If you do not hear a beep when you press this button, follow the instructions below to synchronize your appliance and remote control.
SYNCHRONIZING THE REMOTE CONTROL
The master switch is located on the bottom left corner. Follow the steps below to synchronize:
- Toggle the master On/Off switch to “ON” (toggle up). The burners will not ignite unless the master switch is on.
- Locate sync switch on the ignition module. It is the red button located on the ignition module labeled “SW1”. Press the sync button and release. The module will beep 3 times indicating that it is ready to synchronize with a remote control. NOTE: If you do not hear any beeps when you press the sync button, contact your authorized dealer or installer for assistance.
- Within 7 seconds, press the “ON” button on the remote control. The appliance will beep to indicate that the remote control’s command is accepted and sets to the code of that controller.Your system is now synchronized.

REMOTE CONTROL FUNCTIONS
NOTE
You will hear a beep once every time a remote-control button is pressed, signaling that the command has been received. Locate the four function buttons on the remote control:
- On/Off Button: This button turns the appliance on or off. When this button is depressed, and the system is off, the pilot will ignite. After pilot ignition, the pilot will light the main burners. Refer to IPI and CPI Modes in this manual for pilot ignition.
- Thermostat Button: This button will allow the selection of three modes: Manual, Normal Thermostat, and Smart Thermostat. NOTE: The fireplace will automatically shut off after 12 hours of continuous use.
- Manual (Off): In this mode, the appliance can be turned on, regardless of the room temperature. The actual room temperature has no effect in this mode. All other functions such as fan speed control, flame height control, and accent light intensity controls are manually controllable.

- Normal Thermostat (On): Will turn itself on and off, depending on the temperature you set. When you set the thermostat, it will continue heating until the room temperature increases 1°F above the set thermostat temperature. To increase the thermostat temperature, press the up button until the desired temperature is displayed in the thermostat temperature window. The fan will turn on 5 minutes after startup and will turn off 12 -1/2 minutes after the
flames turn off. The flame height can be adjusted while in use, fan speed can be adjusted after 5 minutes of startup. The accent light can be adjusted any time after startup. - Smart Thermostat (Smart): In this mode, room temperature is maintained, and flame height adjust automatically to provide continual, efficient heat. All other functions of the normal thermostat mode, except the flame height adjustment, are allowed. Manual flame height adjustment is not allowed in this mode. The Smart Thermostat function adjusts the flame height in accordance to the difference between the set point temperature and the actual room temperature. As the room temperature gets closer to the set point temperature, the Smart Thermostat automatically modulates the flame down.
- Manual (Off): In this mode, the appliance can be turned on, regardless of the room temperature. The actual room temperature has no effect in this mode. All other functions such as fan speed control, flame height control, and accent light intensity controls are manually controllable.
- Up/Down Button: This button is used to increase or decrease the thermostat temperature, flame height, fan speed, and accent light intensity.
- Mode Selection Button: This button is used to toggle between the various function icons: flame height, fan speed, accent light, and rear burner (certain models).
- Press the on/off button. The remote-control display will show all active icons on the screen.
- Select the thermostat mode by pressing the thermostat button: OFF (meaning Manual), ON (meaning Normal Thermostat) or Smart (meaning Smart Thermostat).
- If the thermostat icon displays as “OFF” (Manual), it will ignite and start on Hi.
- If the thermostat icon displays as “ON” (Normal Thermostat), it will only ignite if the thermostat temperature is greater than the room temperature.
- If the thermostat icon displays as “SMART” (Smart Thermostat), it will only ignite if the thermostat temperature is greater than the room temperature.
UNDERSTANDING YOUR REMOTE-CONTROL ICONS
Your remote control displays and controls the following functions. See below for detailed control icon explanations.
ICON DETAILS
Mode Button: Pressing the mode button toggles between the various available functions: flame height, fan speed, accent light intensity and rear burner on/off.
Flame Height: Six flame height levels are available. While the flame height icon is displayed, pressing the up or down button once will increase or decrease the flame height by 1 of 6 levels. If the flame height is at Level 1 and the down button is pressed, all burners will turn off. If in IPI mode, the pilot will also extinguish. If in CPI mode, the pilot will remain on. If in Smart Thermostat, the flame height function is not available for manual adjustment. In Smart Thermostat, the flame height regulates automatically.
Fan Speed Control: The fan speed can be adjusted through 6 speeds and off. To activate this function, press the Mode button until it displays the fan icon. Use the up/down arrow button to turn on, off, or adjust the fan speed. Once you set the desired fan control, the system will remember your selected fan speed until you manually change it.
Accent Light: This function controls the accent light functions. Pressing the up button in this mode will turn on the accent light and allow you to control the 6 levels of intensity. Once you set the desired light level, the system will remember your selection until you manually change it.
IPI AND CPI MODES
Intermittent Pilot and Continuous (Standing) Pilot Features – First lights a pilot then uses the pilot to ignite the main burners. The pilot can be set in the CPI (Continuous Pilot Ignition) mode to allow the pilot to remain on indefinitely by setting the remote control to CPI mode. If the remote control is set to the IPI (Intermittent Pilot Ignition) mode, the pilot will only light and remain ON while the main burners are operating. IPI Mode: This mode turns the pilot off when not in use and only lights the pilot automatically when a call for heat is made by the remote control. CPI Mode: If set to CPI mode, the pilot will ignite and remain on at all times.
SETTING TO IPI OR CPI MODE
With the remote control off, press the MODE button. You will see either “CPI” or “IPI” displayed on the screen. Press the UP arrow button to set “CPI” mode and press the down arrow button to set “IPI” mode. Once set to the desired setting, press On/Off button to activate. Recommended: Keep in CPI mode. While not mandatory, this will keep the chimney heated for proper updraft during burner ignition, and it will also eliminate excessive condensation of exhaust vapors on the door glass. NOTE: The snowflake icon will be visible on the display always when in CPI mode.
Leaving it in CPI mode will keep the body warm and eliminate cold drafts and heat loss to the cold air that is trapped inside the firebox.
First-Time Lighting Instructions
WARNING
WHAT TO DO IF YOU SMELL GAS
- Do not light any fireplace.
- Do not touch any light switch
- Do not use any phone in your building.
- Call your gas supplier from a neighbor’s phone.
- Follow the provider representative’s instructions.
- If you cannot reach your gas supplier, call the fire department for assistance.
SAFETY INFORMATION
- This appliance is equipped with an ignition device that automatically lights the pilot. Do not attempt to light pilot by hand.
- Before operating, smell all around the area for gas. Be sure to smell next to the floor because some gas is heavier than air and will settle on the floor.
- Toggle master switch to on. The burners will not ignite unless the master switch is on.
- Use only the supplied remote control to light the pilot. This valve will not operate if the pilot is not lit and stable.
- Do not use if any part has been underwater. Immediately call a qualified service technician to inspect and replace any component which has been under water. The attempted operation may result in fire or explosion resulting in property damage, personal injury, and loss of life.
WARNING
If you do not follow these instructions exactly, a fire or explosion may result causing property damage, personal injury, and loss of life.
OPERATING INSTRUCTIONS
- Read the above safety information carefully before proceeding.
- Do not attempt to light the pilot by hand; the door must remain on this appliance during pilot ignition, except for the first time lighting.
- Press the On/Off button on the remote control to begin the ignition sequence.
- There will be an audible beep and then the igniter will begin to spark. After the pilot lights and is established, the valve will automatically open and the burner will light. The burner will initially light to full flame. Adjust it to an appealing setting with the remote (see “Remote Operating Instructions” in this manual).
- Press On/Off button on the remote control again to start the ignition sequence.
- If it will not operate, follow the instructions “Turning Off” section and call your service technician or gas supplier.
TURNING OFF
- Press the On/Off button on the remote control.
- Turn off the external manual shutoff valve supplied by the installer and mounted adjacent to the appliance.
- Turn off all electric power to the appliance if service is to be performed.
Frequently Asked Questions
WHERE CAN I FIND THE MODEL AND SERIAL NUMBERS?
This image is only an example. The label on the actual unit will vary slightly. When requesting service, you will be asked to provide the model number, serial number, and manufacture date to your authorized dealer. This information will expedite the warranty verification process. This is an example of your listing label:
WHAT HAPPENS WHEN FIRST LIT?
There is a curing period. This can include a small amount of smoke and odor. This is normal. Curing steps include: Step 1: Expelling Initial Smoke and Odors
- Complete the installation of any surround, front, doors, or safety screen.
- Turn on in the Manual (Off) thermostat mode.
- Set the flame height to Hi.
- Set the fan speed control to Level 2.
- Run with these settings for a minimum of 3 hours. Then turn off and let it cool.
CAUTION
It is important that the blowers are on during this step to prevent the curing smoke from staining the surrounding wall finish. Complete Step 1 prior to installation of wall finish materials. Visible smoke and odor is expected during this step. If desired, disable smoke alarms before this step. Smoke from the initial cure may set off smoke alarms. Open doors and windows to circulate fresh air.
Step 2: High Heat Curing Cycle
- Turn on in the Manual (Off) thermostat mode.
- Set the flame height to Hi.
- Set the fan speed control to Off.
- Run it with these settings for 8 continuous hours or until the curing odors have diminished.
- When odors have diminished, leave on and continue below.
- Set the fan speed control to Level 1.
- If any new curing odors are detected, continue to run this setting until the curing odors have diminished.
CAUTION
Slight odors may still be noticeable on future startups. These will diminish over time with further use.
ADDITIONAL CURING INFORMATION
It is not unusual to require more than 10 continuous hours on high for curing odors to diminish. There are variables that can extend or shorten the curing time, such as decorative fronts, doors, facing materials, and their applications. It is normal for surrounding surfaces to be too hot to touch. Provided that all clearances and R-value requirements in the installation manual have been met, this is not a safety concern. Be aware that any material used around the appliance will heat up and has the potential to cause odor issues. Adhesives, glue, wall substrate, wall finish material, paints, and polishes are common materials that if used incorrectly will cause odor issues. Breckwell is not responsible for any odor issues caused by the materials used. If you have any additional questions or concerns, contact your authorized dealer or email service at www.breckwell.com.
CAN I OPERATE DURING POWER OUTAGES?
This electronic ignition system uses the supplied 120VAC power when it is available for all functions of this system. If you experience a power outage, insert 4 AA batteries into battery pack located in the ignition module box. During the power outage, the burner will function as well as the flame height adjustment. The fan and accent light, which are dependent on 120VAC power, will not function. Your installer should demonstrate the backup DC power pack during power outages. Be sure to retain the DC battery pack and the connecting harness in a safe and secure place for use during power outages.
WHAT IS THE REQUIRED ANNUAL MAINTENANCE?
NOTE: Any adjustments to the burner, pilot, or logs must be done by a qualified authorized service person. The following procedures must be performed each year by a qualified service person. Recommended steps for yearly maintenance:
- Remove logs and coals and clean away any foreign matter (lint, carbon, etc.) on the burner and logs. Be sure the burner ports are “open”. Clean the pilot and underside of the logs for any carbon deposits. Logs should be visually checked for carbon buildup. If carbon deposits are visible on logs, turned off and contact an authorized service person. Be sure logs are re-installed per instructions.
- Clean all lint and dust build-up around the control. Inspect the condition of any wiring under the burner for melting or damage. Clean flame sensor rod/hook using emery cloth. Vacuum all burner ports and pilot assembly.
- Check the condition of glass door gasket, the gasket must seal tightly over the firebox, Inspect the gasket along top and sides of glass. If the gasket at the corners of the glass are bulging outward or if the gasket bulb along top edge or sides are discolored to a white color appearance throughout the whole thickness of the gasket bulb, then replace the gasket. White-colored gasket bulb indicates an exhaust leak through the discolored area and requires the replacement of the glass gasket.
CAUTION
Do not use oven cleaner or ammonia-based products to clean glass. Clean the glass only when it has cooled to room temperature.
HOW DO I CLEAN THE GLASS?
CAUTION
Additives that are put in gas (both natural and LP) to make it smell can be harmful to glass and can leave a white film deposit on the glass. This deposit can be removed with cleaners such as KEL KEM “Polish Plus” or comparable products. Contact your authorized dealer for more information.The glass should be cleaned periodically.
To clean glass surfaces, use Kel Kem Polish or a comparable product. Do not use oven cleaner or abrasive cleaners to clean glass. Do not clean when glass is hot.
IS MY FLAME APPEARANCE CORRECT?
There are air shutters and media that can be adjusted depending on your fuel and venting configuration. These adjustments should be made by a qualified technician to achieve the best flame appearance. Contact your installer or authorized dealer if you feel it is not burning correctly. Improper setup and adjustment is not covered under warranty.
Follow these steps for periodic inspections:
- Check to verify that the vent system and vent cap are open and free of blockage.
- The glass should be cleaned periodically (see the “How Do I Clean The Glass?” section of this manual).
- Before re-installing glass, have qualified service person check the operation of the pilot and cycle the burner per lighting instructions. Be sure all items in lighting and installation checklists are completed.

- A periodic visual check of pilot flames is required. Pilot flame must overlap flame sensor and burner ignition ports always. Especially for LP gas applications, always verify the visible pilot flame length is at least 1” long.
- A periodic visual check of the burner flame is required.
WHAT SHOULD I DO IF SHOOTING OCCURS?
Sooting is caused by improper installation or air shutter operation. However, some small areas of soot deposits on log surfaces are deemed acceptable. If you observe large soot areas (larger than 1”x1”) on log surfaces or signs of sooting on the door glass (usually a thin black film on the viewing glass or on the outside of the home around the vent cap), turned off immediately and the local authorized dealer promptly informed. Authorized dealers will correct “sooting” problems, but they are not responsible for damage caused by excessive sooting that has not been immediately brought to their attention.
HOW DO I CHANGE FROM °C TO °F ON MY REMOTE?
To change between °C to °F, follow these steps:
- Press the ON/OFF button and turn off.
- Simultaneously, press both the mode button and the thermostat button.
- Look at the LCD display to verify that your desired indicator (°F or °C) is being displayed. If not, repeat Step 2.
HOW DO I SET THE CHILD-LOCK MODE?
To prevent unsupervised children from operating, a child-lock function is provided with this remote-control system. To activate the child-lock function: Simultaneously press the “MODE button” and the “UP button”. To deactivate the child-lock function: Simultaneously press the “MODE button” and the “UP button”. During the child-lock mode, none of the remote-control buttons will function. You must deactivate the child-lock function before you can use the remote control.
WHEN SHOULD I CHANGE THE BATTERIES IN MY REMOTE?
When the remote control batteries are low, a battery icon will appear on the LCD display of the remote control before all battery power is lost. When the batteries are replaced, this icon will disappear.
WHY DID MY THERMOSTAT DISAPPEAR FROM MY REMOTE?
When reinstalling batteries, the thermostat may have been pressed while the batteries were changed. To make your thermostat reappear, follow these steps:
- Remove one battery.
- Press and hold the thermostat button on the remote.
- Reinstall the battery while holding the thermostat button down.
- If you see “set”, the thermostat button is now enabled.
- If you see “clear”, the thermostat button is disabled.
- Repeat this procedure if you did not see “set” or “clear” to add/remove the thermostat option.
WHY WON’T IT TURN ON?
If your remote control is working, but your appliance won’t turn on, it may be in “lockout” mode. To reset a lockout follow these steps:
- Turn off the remote.
- Turn on the remote and wait 2 seconds.
- Turn off the remote and wait 2 seconds.
- Turn on the remote and wait 2 seconds.
- Turn off the remote.
This should clear the lockout mode. Turn on the remote and start the appliance. Ensure the master switch is in the “ON” position. If the lockout mode is still on, follow these steps:
- Turn off the remote.
- If you see the snowflake icon, press the Mode button and toggle it to IPI mode.
- Shut off AC power to the ignition control module (shut off breaker).
- Toggle the master switch to off. Wait 30 seconds.
- Turn on AC power by turning on the breaker.
- Turn on remote, then turn it off the remote.
- Toggle the master switch back on.
- Press the Mode button on the remote. Select CPI mode to reignite the pilot. After the pilot lights, turn on your remote to ignite.After completing these steps, contact your authorized dealer if it won’t turn on.
Adjustment
PRESSURE TESTING
NOTE
The fireplace and its main gas valve must be disconnected from the gas supply piping system during any pressure testing of the system at test pressures in excess of 1/2 psi (3.5 kPa).
CAUTION
Pressure check taps for manifold (outgoing) and inlet (incoming) pressure have been incorporated into the valve. The pressure tap marked OUT measures outgoing pressure. The pressure tap marked IN measures incoming pressure.
INLET PRESSURE TEST
NOTE: Make sure to apply these incoming pressure test with all other gas fireplaces on, or at full capacity in the house for proper pressure reading.
CAUTION
If the inlet pressure reading is too high or too low, contact the gas company. Only a qualified gas service technician should adjust incoming gas pressure.
- Loosen the inlet (IN) pressure tap by turning the screw counterclockwise. See (A).
- Attach the manometer using a 1/4” (6 mm) I.D. hose. . Light pilot and burner. Check pressure to ensure it is between the minimum and maximum recommended pressure settings.
- Turn off the burner and pilot.
- Disconnect the hose and tighten the inlet (IN) pressure tap by turning the screw clockwise. The screw should be snug. Do not over-tighten.
- Relight pilot and burner. Then reattach the manometer to the inlet pressure tap (A) to verify the tap is completely sealed. The manometer should read no pressure.
MANIFOLD PRESSURE TEST
- Light pilot.
- Loosen the manifold (OUT) pressure tap by turning the screw counter-clockwise (see (B).
- Attach the manometer to the pressure tap using a 1/4” (6 mm) I.D. hose.
- Light burner. Check the manometer reading.
- Turn the burner and pilot off.
- Disconnect the manometer hose and tighten the manifold (OUT) pressure tap by turning screw clockwise. The screw should be snug. Do not over-tighten.
- Attach the manometer to the manifold pressure tap (B) to verify it is completely sealed. The manometer should read no pressure when pilot and burner are on.

BURNER FLAME ADJUSTMENTS
WARNING
To avoid property damage or personal injury, allow ample time to cool before making any adjustments. Burner flame appearance and characteristics are affected by altitude, fuel quality, venting configuration, and other factors. After installation, additional adjustments may be required to achieve the optimum flame appearance and visual aesthetics.
WARNING
VENTURI ADJUSTMENT MUST BE DONE BY A QUALIFIED SERVICE TECHNICIAN.
GAS FLAME ADJUSTMENT
During the initial installation, the air shutter opening should be checked to be certain that the shutter is set correctly as specified in this manual. Adjustments should only be made by a qualified installer. NOTE: For altitudes above 5,000 ft., some variations may be required.Be sure the burner and logs are properly installed. Afterburner has been properly installed and operated for 2-3 hours, small additional adjustments to the air shutter may be necessary for final flame appearance. These small shutter adjustments can be made by the following procedure. NOTE: Very small changes in shutter settings make major changes in flame appearance.
- The air shutter control is located below the cover panel at the right center of the appliance next to the valve assembly.
- If flame is too “blue,” push the air shutter control in (open) in small 1/8” increments until flame turns desired realistic “orange” color.
- If flame is too “orange” or is causing sooting on viewing glass, pull the air shutter control out (close) in approximately 1/8” increments until sooting stops.
CAUTION
Try each new shutter setting for approximately 1 hour before making additional changes. Changes in burner flame can be made by re-arranging the media.
Troubleshooting
Before proceeding with the steps in the following troubleshooting guide,
- Verify proper 120VAC power supply to the control module.
- Verify the control module battery pack and the remote control batteries are fresh and installed with correct polarity.
- Verify all connections between the wire harnesses and the system components are proper and positive.
- Verify the communication link is established between the remote control and the ignition module.
- Verify inlet pressure meets the recommended inlet pressure.
- If necessary, adjust line pressure regulator.


CAUTION
Installation and repair shall only be done by a qualified service person. The fireplace should be inspected before use by a qualified service person. It is required to be inspected at least once a year by a professional service person.
WARNING
The fireplace area must be kept clear and free from combustible materials, gasoline and other flammable vapors and liquids.
BURNER AND PILOT SYSTEM
The burner assembly may be removed for easier access to the control compartment. Performed by: Qualified Service Person
Frequency: Annually
Action:
- Vacuum all components of the burner system.
- Visually check burner ports for blockage, especially near the pilot.
- Visually check pilot light and burner flame pattern when in operation. Flames should be steady, not lifting or floating.

CAUTION
Label all wires prior to disconnection when servicing controls. Wiring errors can cause improper and dangerous operations. Verify proper operation after servicing.
Performed by: Qualified Service Person Frequency: Annually
Action:
- Disconnect the fans from the electrical current and vacuum.
- The bearings are sealed and require no oiling.
VENT SYSTEM
NOTE: If the vent-air intake system is disassembled for any reason, reinstall per instructions provided with installation (see Installation section).
Performed by: Qualified Service Person
Frequency: Annually
Action:
- Examination of the vent system is required.
- The flow of combustion and ventilation air must not be obstructed.
GLASS ASSEMBLY
CAUTION
Do not operate with the glass assembly removed, cracked, or broken. Use protective gloves to handle any broken or damaged glass assembly components.
WARNING
Do not use substitute materials. Avoid striking or slamming glass assembly. Avoid abrasive cleaner. DO NOT clean glass while it is hot.
CAUTION
Any safety screen, guard, or barrier removed for servicing must be replaced prior to operating.
Performed by: Homeowner Frequency: Annually Action:
- Prepare a work area large enough to accommodate the glass assembly on a flat, stable surface.
- Remove the safety screen and glass frame assembly.
- Clean glass with a soft cloth and a non-abrasive cleaner.
- Reinstall glass assembly and safety screen.
- Any safety screen, guard, or barrier removed for servicing an appliance must be replaced prior to operating the appliance.
Performed by: Qualified Service Person Frequency: Annually
Action:
- Inspect the glass for cracks, scratches, and nicks.
- Verify the glass assembly is properly intact and not damaged.
- Replace the glass and the assembly as necessary.
- Only Breckwell will supply the replacement of the glass assembly as a complete unit.




































