heatilator Caliber 36X Direct Vent Gas Fireplace

Product Information
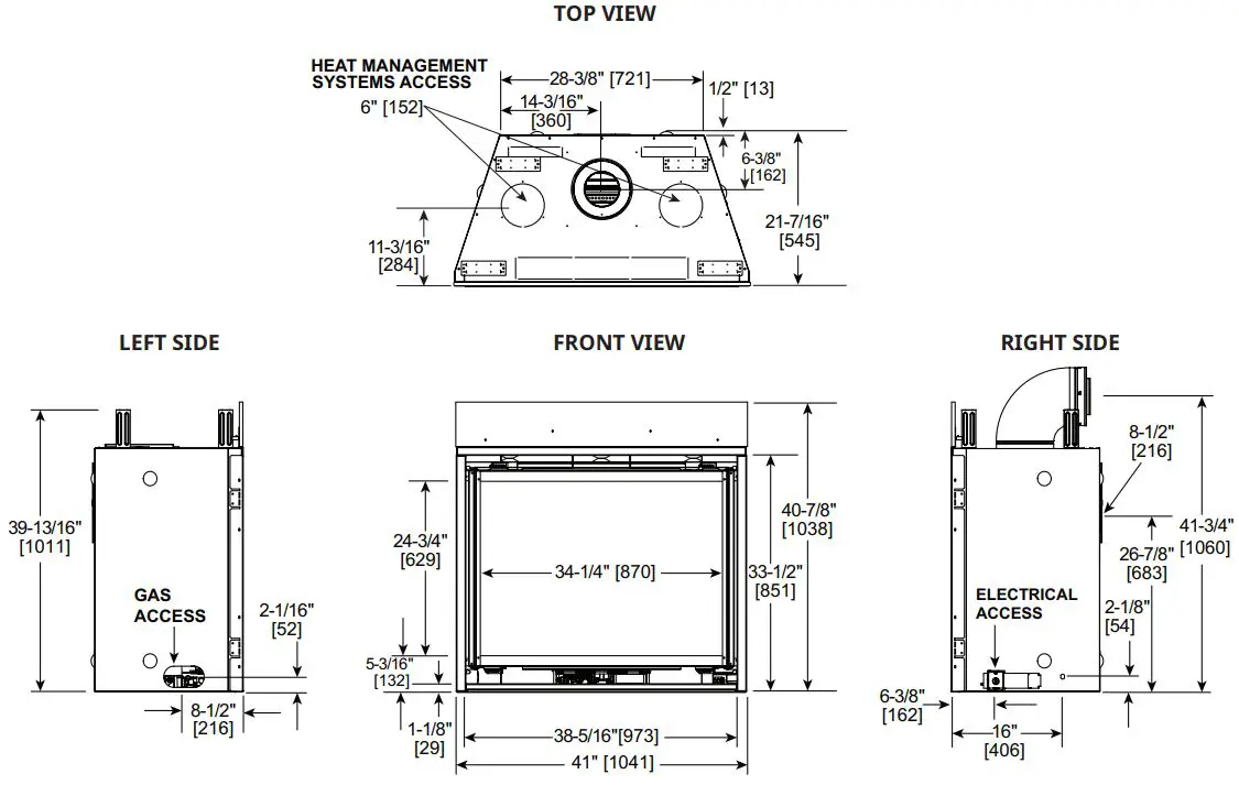
The Caliber 36X is a direct vent gas fireplace with a Caliber 36X caliber. It has actual dimensions of 41 inches in front width, 40-7/8 inches in height, and 21-7/16 inches in depth. The glass size is 34-1/4 x 24-3/4 inches. It has a heat management system access of 6 inches, and a BTU/hour input range of 22,000 – 40,000 BTUs (NG) and 21,000 – 40,000 BTUs (LP). The weight of the fireplace is 183 lbs.
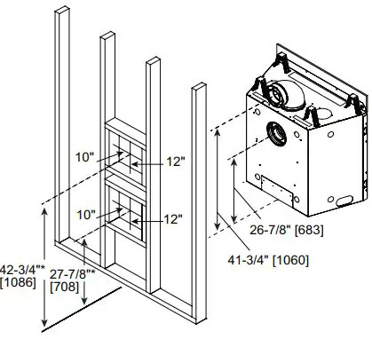
Framing Dimensions
- Front Width: 42 inches
- Height: 40-1/8 inches
- DVP Pipe: 10 inches
- SLP Pipe: 8-5/8 inches
Mantel Projections
The fireplace has combustible mantel projections and non-combustible mantel projections. The measurement from the fireplace opening to the bottom of the appliance is 33-1/2 inches.
Exterior Chase Minimum Height Requirements
- Wall Penetration A: 10 inches
- Wall Penetration B*: 12 inches
- Minimum Height C: 3 inches
Product Usage Instructions
To use the Caliber 36X Direct Vent Gas Fireplace, follow these steps:
- Ensure that the fireplace is properly installed according to the installation manual.
- If using heat management, refer to the fireplace installation manual for framing guidelines and reduced mantel clearances.
- Make sure the vent framing hole is not packed with insulation or any other material.
- For top or rear venting, locate the center of the vent framing hole. It should be one inch above the center of the horizontal vent pipe.
- Check the clearance from the top of the termination cap to the bottom of any overhang. If the overhang is less than 2 inches, the clearance may be 0 inches.
- Measure the distance from the back of the vent cap to the end of the overhang (A).
- Measure the distance from the bottom of the overhang to the top of the termination cap (B).
- Measure the distance from the bottom of the appliance to any combustible surface (C).
For additional information on venting, TV clearances, finishing requirements, and fronts, refer to the installation and owner’s manual.
Dimension
ACTUAL DIMENSIONS

| FRONT WIDTH | HEIGHT | DEPTH | GLASS SIZE | BTU/HOUR INPUT |
| 41″ [1041] | 40-7/8″ [1038] | 21-7/16″ [545] | 34-1/4″ x 24-3/4″ [870 X 629] | 22,000 – 40,000 BTUs (NG) 21,000 – 40,000 BTUs (LP) |
FRAMING DIMENSIONS

BASIC CORNER INSTALLATION
- Reference install manual for additional venting scenarios

| FRONT WIDTH | HEIGHT | DEPTH | WEIGHT |
| 42″ [1067] | 40-1/8″ [1019] | 22″ [559] | 183lbs [83 KGS] |
Specifications
COMBUSTIBLE MANTEL PROJECTIONS

Note: Measurement is taken from top of the opening, NOT the top of the fireplace.
NON-COMBUSTIBLE MANTEL PROJECTIONS

Note: Measurement is taken from top of the opening, NOT the top of the fireplace.
COMBUSTIBLE MANTEL LEGS OR WALL PROJECTIONS

| If A minimum is , then B maximum is . | |||||||
| A | Inches | 2-7/16 | 3-7/16 | 4-7/16 | 5-7/16 | 6-7/16 | 7-7/16 |
| Millimeters | 62 | 87 | 113 | 138 | 164 | 189 | |
| B | Inches | 1 | 2 | 3 | 4 | 5 | |
| Millimeters | 25 | 51 | 76 | 102 | 127 | ||
Combustible Mantel Leg or Wall Projections
(Acceptable on both sides of opening)
NON-COMBUSTIBLE MANTEL LEGS OR WALL PROJECTIONS

| If A minimum is , then B maximum is . | |||
| A | Inches | 0-7-7/16 | 7-7/16 |
| Millimeters | 0-189 | 189 | |
| B | Inches | 6 | |
| Millimeters | 152 | ||
Non-Combustible Mantel Leg or Wall Projections
(Acceptable on both sides of opening)
If using heat management please refer to the fireplace installation manual for framing guidelines and reduced mantel clearances. Additional information on venting, TV clearances, finishing requirements, fronts, etc can be found in the installation and owner’s manual.
EXTERIOR CHASE MINIMUM HEIGHT REQUIREMENTS

NOTE: If overhang is less than 2 inches, clearance from top of termination cap to bottom of overhang may be 0 inches.
- A – Measured from back of vent cap to end of overhang
- B – Measured from bottom of overhang to top of termination cap
- C – Measured from bottom of appliance to combustible surface
Vinyl Siding Shield (TRAP-VSS) Information
- TRAP-VSS required if overhang (A) is greater than 3 inches but less than 5 inches and B dimension is less than 18 inches.
TRAP-VSS recommended if either of the below is true:
- Overhang (A) is less than 5 inches (to combat water infiltration)
- A vinyl overhang is present
WALL PENETRATION

- DO NOT PACK VENT FRAMING HOLE WITH INSULATION OR OTHER MATERIAL.
- Shows center of vent framing hole for top or rear venting. The center of the hole is one (1) in. (25 mm) above the center of the horizontal vent pipe.
| PRODUCT LISTING CODES | |
| US | ANSI Z21.88-2019 |
| CAN | CSA 2.33-2019 |
![]() | UL307B |
Product information provided is not complete and is subject to change without notice. Product installation must adhere strictly to instructions accompanying product to avoid risk of fire and potential injury.
Contact
Heatilator
- A Brand of Hearth & Home Technologies
- 7571 215th Street West | Lakeville, MN 55044
- 877-486-9123
- heatilator.com


















